Mẫu thiết kế nhà cấp 4 mái thái 11x11m ở Đông Hưng Thái Bình NDNC4172
Trong thời đại hiện nay, việc xây dựng và thiết kế nhà cấp 4 mái thái 11x11m đang trở thành xu hướng và được rất nhiều gia đình chủ đầu tư lựa chọn với mong muốn có được một không gian sống xanh, thoáng, và sáng. lành mạnh và gần gũi, thiết thực với thiên nhiên. Đặc biệt đối với những gia đình có kinh tế hơi hạn chế ở mức trung bình thì việc lựa chọn mẫu nhà vườn 1 tầng là một điều vô cùng sáng suốt và đúng đắn. Có một câu ca dao mà hầu như người dân nào cũng đã từng đọc, đã từng nghe: “Khi ta ở chỉ là nơi ở, khi ta đi, đất liền hóa thành tâm hồn”, dựa trên tiêu chí đó của các kiến trúc sư công ty. Công ty Nhà Đẹp chúng tôi đã đặt hết tâm huyết và nỗ lực không ngừng ngày đêm để tạo nên một mẫu thiết kế nhà cấp 4 11x11m vô cùng đẳng cấp và sang trọng cho gia đình anh Hiếu ở Thái Bình. Đây là mẫu nhà mà gia đình anh rất ưng ý với vẻ đẹp cuốn hút từ bên ngoài và mặt bằng công năng vô cùng tiện nghi. Sau đây, mời quý vị và các bạn cùng theo dõi về mẫu nhà cấp 4 mái thái 11x11m hiện đại kiểu Nhật này nhé!
Thông tin xây nhà cấp 4 mái thái 11x11m kiểu nhật
- Địa điểm xây dựng: Thái Bình
- Chủ đầu tư: Anh Hiếu
- Diện tích nhà: 121m2
- Kích thước nhà: 11x11m
- Tổng giá trị hoàn thiện: 850 triệu đồng
Phối cảnh 3D mẫu nhà cấp 4 mái thái hiện đại 11x11m kiểu Nhật

Điểm nhấn đầu tiên của mẫu thiết kế nhà cấp 4 mái thái 11x11m kiểu Nhật mà chắc hẳn ai đi qua cũng thường để ý chính là lớp gạch men ốp chân tường. Gạch men là vật liệu cao cấp, có nguồn gốc từ thiên nhiên nên rất bền và thân thiện với môi trường. Gạch men màu ghi xám được ốp xung quanh chân tường, cột khiến công trình trở nên sang trọng và cuốn hút hơn bao giờ hết. Gạch ốp tường ngoại thất ngoài vai trò mang lại giá trị thẩm mỹ rất cao cho người nhìn, còn có tác dụng chống ẩm, mốc, rêu mốc phát triển, nhất là vào mùa mưa hay những ngày mưa. Với khí hậu nhiệt đới gió mùa như ở nước ta, việc sử dụng gạch ốp lát ngoại thất sẽ giúp dễ dàng vệ sinh hơn, không bị thấm nước vào bên trong và hạn chế những tác động gây ảnh hưởng xấu đến mỹ quan của ngôi nhà. Vẻ đẹp của ngôi nhà cấp 4 mái thái Nhật Bản.

Màu sắc chủ đạo được sử dụng cho ngoại thất của mẫu thiết kế nhà mái thái 11x11m kiểu Nhật là màu trắng kết hợp với màu xám. Đây là một trong những gam màu hiện đại, sang trọng được sử dụng rộng rãi và phổ biến trong nhiều công trình nhà ở hiện nay. Màu trắng chủ đạo được sử dụng để sơn toàn bộ các mảng tường mặt tiền, đây là gam màu trung tính bền đẹp, tinh tế dễ kết hợp với các gam màu khác tạo nên điểm độc đáo nhất cho không gian mặt tiền. tiền của mẫu nhà cấp 4 mái thái hiện đại kiểu nhật. Màu xám ghi được sử dụng dưới mái và tường khiến ngôi nhà cấp 4 hiện đại kiểu Nhật trở nên bề thế và vững chãi hơn. Việc sử dụng tiết chế, không quá nhiều màu và các gam màu tương đồng hài hòa giúp người nhìn không bị chói, không gây cảm giác nhàm chán. Đây là hiệu quả cuối cùng trong việc sử dụng phối màu một cách linh hoạt.

Ba bậc tam cấp đi lên nhà cũng được chủ đầu tư thiết kế phù hợp về mặt phong thủy gồm 5 bậc theo sinh - lão - bệnh - tử - sinh. Với mong muốn của chủ nhân ngôi nhà cấp 4 hiện đại kiểu Nhật có kiến trúc đạt được tỷ lệ hài hòa cả chiều cao và chiều rộng cũng như thỏa mãn các yếu tố và nhu cầu về phong thủy. Sở hữu mặt tiền rộng và chiều sâu vừa phải, khối kiến trúc của mẫu thiết kế nhà mái thái 11x11m kiểu Nhật vô cùng hài hòa, đẳng cấp và sang trọng.
Có lẽ khi nhìn vào mặt tiền của mẫu nhà cấp 4 mái thái 11x11m bạn sẽ nhận thấy hệ thống cửa sổ được sử dụng là hệ thống cửa kính khung nhôm. Cửa chính được sử dụng là cửa gỗ có nhiều ô kính - đây là kiểu cửa đặc trưng của truyền thống Việt Nam từ xưa đến nay. Chất liệu kính được biết đến với vai trò là chất liệu hiện đại, dễ lau chùi, không che khuất tầm nhìn, giúp gia chủ dễ dàng ngắm nhìn khung cảnh thiên nhiên bên ngoài khi ở trong nhà. Chất liệu kính giúp đón nắng và gió tự nhiên tốt, mang đến không gian thoáng đãng, trong lành và vô cùng đáng sống cho gia đình chủ đầu tư.


Biện pháp thi công mái của mẫu thiết kế nhà 11x11m được sử dụng bằng cách đổ bê tông mái bằng, sau đó lợp vì kèo bên trên, sau đó dán ngói lên trên. Nhờ cách thi công chắc chắn như vậy đã mang đến cho công trình nhà cấp 4 mái thái Nhật Bản bền đẹp và kiên cố hơn theo thời gian. Không những vậy, với độ dốc tương đối lớn nên dễ dàng thoát nước mưa rất nhanh nên không lo bị nấm mốc, rong rêu phát triển, giúp tăng tuổi thọ và chất lượng cao cho công trình. Với cấu tạo độc đáo như vậy đã tạo nên khả năng cách nhiệt, chống ẩm tốt nên ngày nay mái tôn Nhật Bản ngày càng được ưa chuộng và sử dụng rộng rãi ở nước ta.
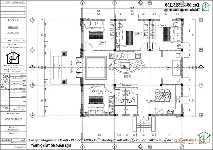
Mặt bằng công năng mẫu nhà cấp 4 mái thái 11x11m hiện đại

Tham khảo: Mẫu nhà cấp 4 3 phòng ngủ
Như đã phân tích về không gian ngoại thất của mẫu thiết kế nhà mái thái 11x11m kiểu Nhật ở trên. Vì vậy, bây giờ chúng ta hãy đi đến phần chức năng. Từ sảnh chính đi vào là phòng khách rộng rãi và phòng thờ trang trọng mang đến không khí đầm ấm, hạnh phúc cho gia đình chủ đầu tư. 4 phòng ngủ được thiết kế bố trí hợp lý với không gian của mẫu nhà cấp 4 mái thái hiện đại kiểu Nhật. Trong đó có khu vệ sinh khép kín phục vụ nhu cầu sinh hoạt riêng tư của các thành viên. Khu bếp + ăn được bố trí phía bên trái cạnh phòng thờ với trang thiết bị hiện đại phục vụ cho việc nấu nướng, ăn uống và tổ chức tiệc. Cuối cùng là khu vệ sinh chung cạnh phòng bếp rất tiện nghi giúp mang lại sự thuận tiện cho quá trình sinh hoạt.
Trên đây là một số hình ảnh phối cảnh 3D và mặt bằng công năng của mẫu thiết kế nhà cấp 4 mái thái 11x11m tại Thái Bình của gia đình anh Hiếu. Ngôi nhà có diện tích rộng, được thiết kế theo lối kiến trúc hiện đại. Nếu bạn quan tâm đến mẫu nhà cấp 4 mái thái kiểu Nhật này hãy liên hệ ngay với công ty Nhà Đẹp chúng tôi qua hotline để được tư vấn và báo giá cụ thể.
- Mẫu nhà cấp 4 có gác lửng 10x10m tại Hải Dương NDNC4174
- https://thietkethicongnhadep.net/mau-nha-dep/mau-nha-san-dep/
- https://thietkethicongnhadep.net/mau-nha-dep/biet-thu-2-tang/
- https://thietkethicongnhadep.net/mau-nha-dep/mau-nha-2-tang/
- https://thietkethicongnhadep.net/mau-nha-dep/biet-thu-co-dien/