Mẫu thiết kế nhà chữ L 7 × 22 phong cách Địa Trung Hải đẹp
Thực chất đây là phương án thiết kế nhà 2 tầng hình chữ L đẹp ngang 7m dài 22m của anh Mai. Phiên bản bản vẽ chính thức mới của mẫu nhà 1 tầng hình chữ L 3 phòng ngủ. Có một tùy chọn ở cuối bài viết. Bạn chọn 1 trong 2
- Bản vẽ thiết kế nhà 1 tầng hình chữ L 3 phòng ngủ hiện đại 2020
 - Mẫu nhà 3 gian chữ L mái thái hình chữ L mặt bằng công trình nhà anh Bình
 - Mẫu nhà mái thái 2 tầng hướng Tây Nam đường kính 8m anh Cầu
 
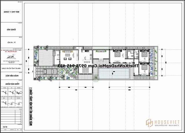
Hình ảnh mẫu nhà cấp 4 hình chữ L rộng 7m dài 22m M. Mai
Mẫu nhà cấp 4 mái thái chữ L đẹp 140m2 đặc biệt phù hợp với điều kiện khí hậu của nước ta. Tuy nhiên, phần lớn khi tư vấn xây nhà cấp 4 hiện nay. Có rất nhiều công ty xây dựng có rất nhiều kiểu thiết kế nhà cấp 4 đẹp như kiểu nhà mái lệch lợp ngói hay kiểu nhà 1 tầng mái thái chữ A đẹp chất lượng. Sau khi Covid 19 lắp khung thép hoặc khung xà gồ có ốp lát hoặc tôn để tiết kiệm chi phí không?
Mang đến một làn gió mới với phong cách Châu Âu. Công ty thiết kế nhà đẹp vừa giới thiệu mẫu nhà cấp 4 mái thái chữ L. Mai 7 × 22. Phương án 2 là mái ngói tân cổ điển kiểu song lập thông thoáng. Có một loại hình không gian thư giãn ngoài trời mới. Như vậy là bạn có mảnh đất ngang 10m, sâu 25m trở lên. Có thể xây ngôi nhà đẹp 1 tầng mái ngói này không

Phối cảnh kiến trúc của mẫu nhà cấp 4 mái thái chữ L 7 × 22 đẹp
Loại hình nhà cấp 4 đẹp 7 × 22 hình dạng L nếu bạn muốn xây dựng. Khi đó ít nhất mảnh đất của bạn có chiều rộng tối đa là 8m. Bởi khi xây dựng mẫu nhà đẹp 1 tầng mái thái chữ L 140m2 x 7m. Hai bên cần có lối đi thông thoáng và hàng rào an ninh chắc chắn. Đồng thời có các khoảng thông tầng để lấy ánh sáng và gió tự nhiên. Mẫu nhà cấp 4 đẹp phong cách Địa Trung Hải. Dưới mái có những chi tiết hoa văn mềm mại với những đường nét uyển chuyển. Phía trên trần của mẫu thiết kế nhà 1 tầng 7 × 22 đẹp được đổ keo dán gạch. Tất nhiên khi xây nhà tân cổ điển hình chữ L đẹp sẽ rất phù hợp với những gia chủ từ 50 tuổi trở lên. Có tư duy đúng đắn cho một phong cách đơn giản và thanh lịch.

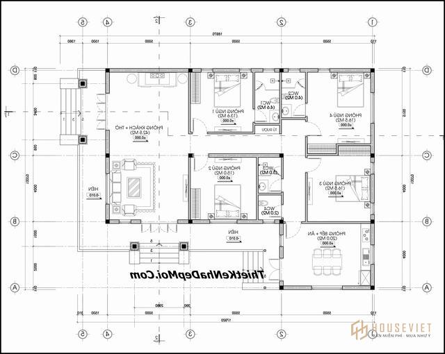
Mô tả mẫu thiết kế nhà 1 tầng hình chữ L 3 phòng ngủ 7m x 22m
Điều này không có nghĩa là chủ sở hữu trẻ chưa trưởng thành. Nhưng hiện nay hầu hết các chủ vườn ươm thường thích lối sống hiện đại. Các xu hướng mới như các mẫu Thiết kế nhà cấp 4 | Mái đơn Châu Âu. Hay những mẫu nhà chữ L 1 tầng mái bằng đẹp hiện đại khác. Thiết kế không gian mở có rất nhiều phong cách thiết kế sáng tạo khác. Lựa chọn theo gu thẩm mỹ và sở thích của bạn. Như mẫu thiết kế nhà chữ L mái thái ngang 7m x 16m này.
- Mẫu nhà 1 tầng hình chữ L ở nông thôn cấp 4 mái ngói đẹp
 - Các mẫu biệt thự 2 tầng hình chữ L mái ngói sơn đẹp sau Covid 19
 

Mô tả nhà cấp 4 hình chữ L rộng 7m dài 22m hướng Tây Nam.
Phối cảnh 3D mẫu nhà vườn đẹp cấp 4 rộng 7m sâu 22m. Đây là khu vực xây dựng trên quỹ đất. Tổng diện tích đất trước khi thiết kế nhà vườn 1 tầng đẹp là 10M. Độ sâu có thể lên đến hơn 30m phía sau hồ bơi, trong đó nó được quy hoạch để thiết kế các không gian với kích thước khác nhau. Chia làm hai gian dọc ở giữa là gian thờ. Mặt tiền của ngôi nhà là phòng khách liên thông với bếp và bàn ăn. Cung cấp riêng cho nơi tụ họp của các thành viên trong gia đình.

Đây có thể coi là hai mẫu thiết kế nhà hình chữ L khác biệt. Có phối cảnh kiến trúc phía sau dành riêng cho không gian nội thất 3 phòng ngủ. Trong đó có 1 phòng ngủ sử dụng chung phòng vệ sinh, 2 phòng ngủ còn lại. Thường sử dụng chung một phòng vệ sinh cạnh bức tường bên phải.
Đặc điểm nổi bật của bản vẽ nhà đẹp phong cách địa trung hải cấp 4 chữ L 7 × 22
Mời các bạn xem mẫu nhà cấp 4 hình chữ L 7 × 22 3 phòng ngủ. Phong cách thiết kế kiến trúc biệt thự 1 tầng mái thái hiện đại do hình ngôi nhà đẹp 140m2 có kết cấu và hình thức kiến trúc rộng rãi, thiết kế đẹp và rất bề thế. Diện tích xây dựng nhà phía trước là 7 × 10. Còn nhà phía sau 12 × 7 ở giữa có phòng thờ xứng đáng riêng. Bố trí hướng Tây có sân trước sau và chỗ để xe. Cũng như sáng tạo trong việc lồng ghép cảnh quan sân vườn. Giúp mẫu nhà đẹp 1 tầng mái thái 140m2 hài hòa với thiên nhiên và không khí trong lành.

Xem bản vẽ nhà cấp 4 hình chữ L đẹp 4 phòng ngủ A Điều
Một điểm mạnh đặc biệt khác của mẫu nhà cấp 4 đẹp Mái thái chữ L đẹp 140m2. Mặt bên chữ L phía trước là phòng thờ. Khéo léo trang bị một bể bơi mini với làn nước trong xanh. Giúp đối lưu không khí và hơi nước để tỏa nhiệt. Để có không gian nhà mát mẻ và là trung tâm thư giãn ngoài trời cho cả gia đình khi trời nóng bức.
Ngay góc từ bàn ăn hướng ra sân là một cabin nhỏ diện tích 5m2. Có thể bố trí 1 bàn trà đạo hoặc khu vực tiếp khách ngoài trời. Uống trà tươi thành viên khoảng 8-10m2. Cạnh hồ nước và cây xanh phản chiếu tạo cảm giác thoải mái lãng mạn. Ngoài ra còn có các bản vẽ chi tiết của mẫu nhà cấp 4 chữ L có 4 phòng ngủ như nhà chị M trong hình bên dưới


Xem phương án mẫu nhà cấp 4 đẹp hình chữ L rộng 7x22m anh Mai
Mẫu nhà chữ L đẹp tầng 4 7 × 22 Phong cách Địa Trung Hải Châu Âu. Thiết kế sáng tạo với diện tích xây dựng 140m2 sàn sử dụng. Được thiết kế trên khuôn viên đất có mặt tiền rộng 12m, sâu 30m. Trong đó ý tưởng thiết kế là chừa sân trước rộng 6m làm nhà ở giữa chừa 1m một bên. Mặt còn lại hình chữ L thông thoáng hơn 3m.
Bản vẽ nhà 1 tầng hình chữ L 3 phòng ngủ hiện đại hơn
Đây là một kế hoạch kiến trúc Mẫu nhà cấp 4 mái thái chữ L đẹp. của KTS Quỳnh. Văn phòng Hà Nội thiết kế cho gia đình anh Hải ở ngoại thành thủ đô Hà Nội. Tuy mang phong cách nhà đẹp mái ngói Địa Trung Hải. Nhưng thiết kế đơn giản hơn, loại bỏ các chi tiết phù điêu. Như sơn, gờ, phù điêu, phào chỉ .. Tiết kiệm một phần chi phí xây nhà 1 tầng 140m2 đẹp cho chủ đầu tư. Ngoài ra, các bạn có thể xem thêm bản vẽ nhà 1 tầng rộng 7m 3 phòng ngủ phương án 1. Chi tiết chọn ở đây Thêm 1 khu đất nhưng có 2 khả năng xây dựng

Các mẫu nhà cấp 4 mái thái hình chữ L hiện đại khác
Dù sao thì đó cũng là một thiết kế sáng tạo theo yêu cầu của chủ nhân. Được thiết kế cho địa hình có độ sâu lớn và một gia đình lớn. Mẫu nhà đẹp thời trang mới đặc biệt phù hợp với các vùng nông thôn. Thiết kế 3 mặt thoáng xung quanh nhiều cây xanh. Đặc biệt là các khu vực ven biển như Đại Tây Dương ở Nam Âu. Được bao bọc bởi vùng đất khô ráo, khí hậu mát mẻ quanh năm. Nếu bạn thích mẫu nhà cấp 4 chữ L ngang hoặc nhà 2 phòng ngủ hãy click vào tiêu đề để xem tại