Mẫu thiết kế nhà đẹp 2 tầng mặt tiền 5m
Những mẫu thiết kế nhà 2 tầng mặt tiền 5m luôn nhận được nhiều sự ưu ái trong thời gian gần đây. Mỗi thiết kế đều có sức hút riêng với đầy đủ chức năng nhưng vẫn đầy tính thẩm mỹ. Cùng tham khảo một số mẫu nhà đẹp 2 tầng mặt tiền 5m qua bài viết dưới đây nhé!
Mẫu thiết kế nhà 2 tầng mặt tiền 5m. mặt tiền
Mẫu thiết kế nhà phố 2 tầng mặt tiền 5m
Tuy diện tích hạn chế nhưng các kiến trúc sư đã khéo léo tạo nên sự đa dạng cho ngôi nhà phố 2 tầng mặt tiền 5m. Màu sắc được phối rất hài hòa và tinh tế. Từ những gam màu nhẹ nhàng, tối giản đến những gam màu nổi bật đều rất ấn tượng và bắt mắt. Các đường nét bên ngoài trông rất chắc chắn. Hệ thống cửa kính và ban công giúp ngôi nhà thoáng mát và gần gũi với thiên nhiên hơn.



Mẫu thiết kế nhà 2 tầng mái thái mặt tiền 5m
Ngôi nhà 2 tầng mái thái có kiến trúc đơn giản, mang đặc trưng của phong cách hiện đại kết hợp mái thái độc đáo. Vì vậy, mẫu thiết kế nhà ở này có tính ứng dụng cao, phù hợp với nhiều vùng miền khác nhau từ thành phố đến nông thôn. Với phương pháp thi công đơn giản, hiện đại, thời gian thi công nhà mái thái nhanh hơn rất nhiều và khá tiết kiệm chi phí.




Mẫu thiết kế nhà 2 tầng 5x10m
Mẫu thiết kế nhà 2 tầng 5x10m Tận dụng mọi không gian và sắp xếp sao cho hợp lý nhất. Tầng 1 gồm phòng khách và bếp ăn với không gian rộng rãi thoáng mát. Tầng 2 với 2 phòng ngủ nằm trong không gian rất riêng tư. Ban công bên ngoài mang đến cảm giác thư thái.



Mẫu thiết kế nhà 2 tầng 5x13m
Mẫu thiết kế nhà 2 tầng 5x13m được bố trí phòng khách bên tay phải, phòng bếp liền kề, phòng ngủ và vệ sinh chung cùng với khu giặt phơi của gia đình. Tầng 2 bố trí 2 phòng ngủ hướng ra sân trước và sau nhà. Phòng vệ sinh chung thiết kế gần cầu thang, phòng thờ thiết kế gần giếng trời thuận tiện cho việc đi lại và thờ cúng.



Mẫu thiết kế nhà 2 tầng 5x16m
Ngôi nhà 2 tầng diện tích 5x16m được các kiến trúc sư bố trí công năng rất hợp lý. Phòng khách rộng rãi nhìn ra cửa. Sau đó là không gian phòng ăn và bếp liên thông với nhau, thuận tiện cho việc sinh hoạt. Phòng ngủ nằm trong không gian rất riêng của phòng 1. Tầng 2 bố trí phòng ngủ master và phòng sinh hoạt chung rộng rãi thoáng mát.



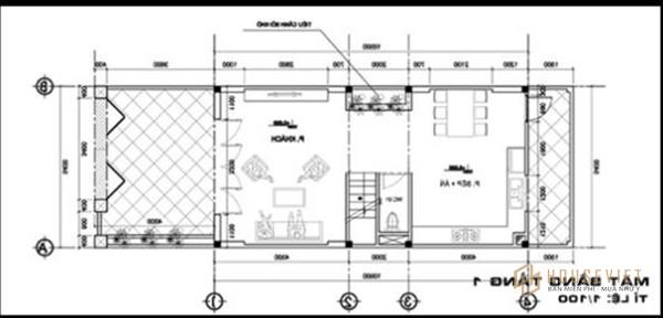
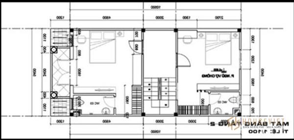
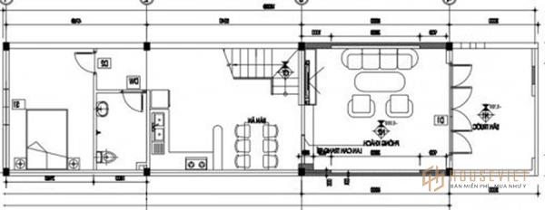
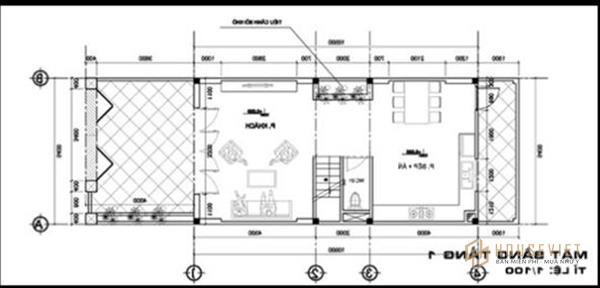
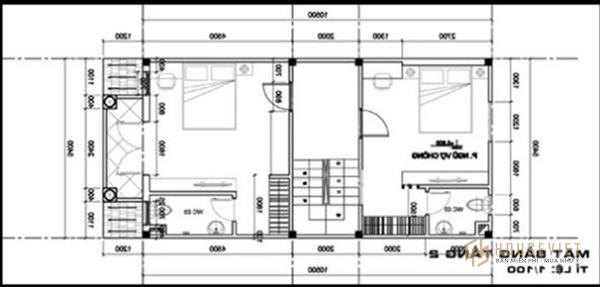
Một vài bản vẽ mặt bằng của mẫu nhà 2 tầng mặt tiền 5m
Dưới đây là một vài bản vẽ mặt bằng của mẫu nhà 2 tầng mặt tiền 5m mời các bạn tham khảo:
Mẫu 1: Mặt bằng tầng 1 là bản vẽ nhà 2 tầng với cách bố trí độc đáo, hệ thống hiên và sảnh trước rộng rãi. Đồng thời có thiết kế khu giếng trời ngay cạnh sảnh. Các không gian tiếp theo lần lượt là phòng khách, phòng ăn, bếp và phòng vệ sinh chung. Tầng 2 có 3 phòng ngủ thông nhau nhưng vẫn tạo không gian riêng tư cho từng phòng.


Dạng 2: GỠ BỎBản vẽ nhà 2 tầng 5 × 16m được thiết kế bên ngoài là không gian chung như phòng khách, bếp ăn, vệ sinh chung, bên trong là phòng ngủ 1. Thiết kế nội thất phòng ngủ sẽ đảm bảo sự riêng tư tuyệt đối cho người sử dụng. Phòng sinh hoạt chung được thiết kế tận dụng giếng trời trên tầng 2. Phòng thờ được thiết kế hướng ra ban công phía trước thoáng mát.


Lựa chọn đơn vị thiết kế và thi công uy tín
Hiện nay với sự ra đời của vô số đơn vị thiết kế và thi công nội thất khiến bạn khó lựa chọn. Nếu bạn vẫn đang tìm kiếm và chưa chọn được cho mình một nơi để an tâm gửi gắm niềm tin thì hãy để House Viet cùng bạn thực hiện những điều còn dang dở đó. Sở hữu nó ngay bây giờ Mẫu thiết kế nhà 2 tầng mặt tiền 5m và đầy đủ chức năng với House Viet.
Ở đây chúng tôi có đội ngũ kiến trúc sư giàu kinh nghiệm, phong cách đa dạng. Đồng thời, House Viet còn có xưởng sản xuất đồ gỗ công nghiệp, đảm bảo mang đến cho khách hàng những sản phẩm tốt nhất. Chúng tôi luôn nỗ lực để mang đến cho bạn sự hài lòng nhất.
THÔNG TIN LIÊN HỆ NỘI THẤT AN LỘC:
- Công ty Cổ phần Kiến trúc, Xây dựng và House Viet
- Trụ sở chính: Số 11, Ngõ 103 Phố Phương Canh, Xuân Phương, Nam Từ Liêm, Hà Nội
- Hotline: 1800 6015 - 0243 9999 839
- Trang web: https://anlocgroup.com
- Email: kientruc@anlocgroup.com
Tham khảo thêm một số mẫu nhà 2 tầng đẹp khác:
- Mẫu thiết kế nhà ống 2 tầng 5x20m đẹp và tiện nghi
- Những mẫu thiết kế nhà 2 tầng mặt tiền 7m đẹp lung linh
- Mẫu thiết kế nhà 2 tầng 8x10m độc đáo nhất
House Viet - Vững niềm tin