Mẫu thiết kế nhà ống 1 tầng 60m2 2 Phòng Ngủ Anh Quang Hà Nội
Mẫu DT: 60m2. thiết kế nhà ống một tầng Bố trí 2 phòng ngủ là phương án được nhiều cặp vợ chồng trẻ lựa chọn. Vậy với chi phí khoảng 300 - 500 triệu làm sao để có một ngôi nhà đẹp và công năng? Hãy cùng lắng nghe ý kiến tư vấn của kiến trúc sư ngay sau đây.
Câu hỏi tư vấn thiết kế nhà ống 1 tầng 60m2 anh Quang, Hà Nội
Xin chào Nội Thất Đương Đại!
Vợ chồng tôi mới mua mảnh đất khoảng 60m2. Tôi muốn xây nhà 1 tầng 2 phòng ngủ cho vợ chồng tôi và một con gái lớn. Vì tôi mới mua đất nên không có nhiều tiền. Tôi tập trung vào khả năng sử dụng nhiều hơn. Mong nhận được sự tư vấn của các KTS giàu kinh nghiệm. Để vợ chồng bạn sớm thực hiện được kế hoạch đã đề ra. Xin cảm ơn liên hệ số 039743xxxx! {Anh Quang, Hanoi}
Kiến trúc sư tư vấn thiết kế nhà ống 1 tầng 60m2:
Trước tiên, rất cảm ơn bạn đã tin tưởng và gửi câu hỏi đến chuyên mục Người đương thời. Dựa trên yêu cầu, mong muốn và kinh phí đầu tư của bạn, kiến trúc sư xin đưa ra các giải pháp sau:

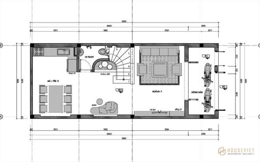
Với những mẫu nhà 60m2 này sẽ chú trọng đến công năng sử dụng hơn. Tức là nó phải được bố trí hợp lý không gây cảm giác chật chội. Thông thường chúng tôi khuyên gia chủ nên bố trí 1 hoặc 2 phòng ngủ, 1 phòng khách, bếp và WC chung. Các phòng này là cơ bản trong một ngôi nhà.
Như trong hình vẽ thiết kế nhà ống 1 tầng 60m2 mà chúng tôi cung cấp. Chúng tôi bố trí công năng bên trong với phòng khách đầu tiên từ tiền sảnh đi vào. Bên trong khách là bếp ăn tạo sự xuyên suốt. Tầng bên phải bố trí 2 phòng ngủ cho bố mẹ và con, có WC khép kín cho 2 vợ chồng.
Phương án thiết kế mặt bằng công năng của mẫu nhà cấp 4 60m2 này. Nó phù hợp với những gì anh Quang đưa ra, trong tầm kinh phí 300 triệu là hoàn toàn có thể xây dựng được.
Phối cảnh chi tiết thiết kế nhà ống 60m2 1 tầng
Phối cảnh mặt bằng ngoại thất

Mẫu thiết kế nhà ống 60m2 1 tầng được thiết kế với ngoại thất đơn giản và tiện nghi. Nhưng để bản vẽ không bị đơn điệu và nhàm chán, kiến trúc sư đã tạo điểm nhấn bằng những mảng tường kẻ sọc ngang. Phần mái trước sảnh được ốp bằng hệ lam giả đá tăng tính thẩm mỹ cho ngôi nhà.
Ngoài ra, cửa chính sử dụng kính trong suốt giúp đưa ánh sáng tự nhiên vào nhà và giảm tiếng ồn. Xung quanh được trồng cây xanh giúp ngôi nhà nhỏ trở nên yên bình.
Mẫu thiết kế nhà ống 1 tầng này còn tận dụng được khoảng không phía trước là đê để xe. Cũng như giúp các em nhỏ có thêm sân chơi. Nhà ống sử dụng phần phía trước là mái dốc tạo cảm giác thanh thoát cho ngôi nhà. Đan xen là chất liệu gỗ tạo nên sự khác biệt và đẹp mắt.
Ý tưởng thiết kế nội thất chung cư 60m2. nhà ống
Vật mẫu DT: 60m2. thiết kế nhà ống một tầng Không nên ưu tiên bố cục quá nhiều. Sử dụng các nguyên tắc bố trí nội thất đơn giản và tập trung nhiều vào chức năng. Trong đó nội thất sử dụng những vật dụng cơ bản đủ dùng hàng ngày.
- Phòng khách : Không gian phòng khách và bếp liên thông trong một không gian nhỏ gọn. Sử dụng những gam màu sặc sỡ làm điểm nhấn giúp toàn bộ căn hộ trở nên trẻ trung và năng động hơn rất nhiều.
- Nhà bếp và phòng ăn: Liên thông với nhau tạo độ thoáng cho không gian. Khu vực nấu nướng với tủ bếp hình chữ U tạo không gian riêng biệt.
- Phòng ngủ: Ngôi nhà có 2 phòng ngủ, được chia thành các diện tích khác nhau tùy theo nhu cầu sử dụng, có thiết kế phòng tắm riêng đảm bảo không gian nghỉ ngơi thoáng mát hơn.

Ghi chú: Các phòng đều có cửa sổ để thu hút ánh sáng từ bên ngoài vào đảm bảo sự thông thoáng. Khu vực bếp, phòng ăn, bếp nấu nên được bố trí trên một trục thẳng đứng gọn gàng.


Một số mẫu thiết kế nhà ống 1 tầng 60m2 công năng khác


Hy vọng cho một giải pháp DT: 60m2. thiết kế nhà ống một tầng ở trên. Không chỉ riêng anh Quang mà các gia đình trẻ đang có ý định xây dựng kiểu nhà cấp 4 này cũng đều có ý tưởng cho mình. Nếu bạn có bất kỳ thắc mắc nào về chuyên môn, vui lòng gọi cho chúng tôi. Các Kiến trúc sư Đương đại sẽ hỗ trợ và hướng dẫn bạn giải pháp tốt nhất và tối ưu hóa ngân sách của bạn.