Mẫu Thiết Kế Nhà Ống 2 Tầng 4x12m Hiện Đại Cho Vợ Chồng Trẻ
Trong thời gian gần đây, Nội Thất Đương Đại nhận được rất nhiều yêu cầu của các gia đình với mong muốn thiết kế nhà ống 2 tầng. Chính vì vậy, hôm nay chúng tôi xin gửi đến các bạn một mẫu thiết kế nhà ống 2 tầng 4x12m Hiện đại có 2 phòng ngủ. Đây sẽ là sự lựa chọn hoàn hảo cho các cặp vợ chồng trẻ.
Yêu cầu đối với mẫu thiết kế nhà ống 2 tầng 4x12m
Anh huy: “Vợ chồng tôi hiện có mảnh đất 4x12m và đang có ý định xây nhà trong thời gian sắp tới. Tôi yêu kiến trúc đơn giản, hiện đại. Không cần quá sang trọng nhưng vẫn thu hút. Gia đình có một cậu con trai 8 tuổi và tôi muốn bố trí một phòng ngủ riêng cho các thành viên. Vì vậy, công năng của ngôi nhà sẽ có phòng khách, phòng ăn, bếp và 2 phòng ngủ. Mặt tiền cần thoáng mát để có chỗ để xe cho 2 vợ chồng và đón ánh nắng tự nhiên từ bên ngoài vào. Mong các KTS có thể tư vấn giúp tôi. Đây là số điện thoại của tôi 03386xxxxx”
Phương án thiết kế nhà ống 2 tầng 4x12m
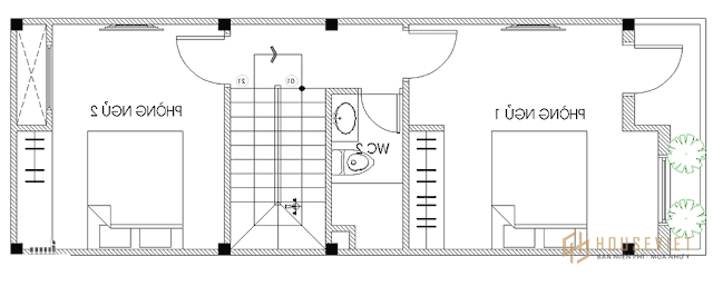
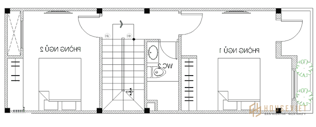
Ngay sau khi trao đổi với anh Huy về phương án thiết kế, gia đình sẽ thống nhất và hoàn thiện hồ sơ thiết kế. Đây là sơ đồ mặt bằng thiết kế nhà ống đẹphiện đại.
Tầng 1 được thiết kế tập trung làm không gian sinh hoạt chung của cả gia đình. Bước vào ngôi nhà ống là không gian phòng khách được thiết kế cạnh cửa chính. Tiếp đến là cầu thang áp mái nằm cạnh phòng khách. Gầm cầu thang được tận dụng làm vệ sinh chung cho tầng 1. Ở cuối mô hình thiết kế nhà ống 2 tầng 4x12m là phòng ăn và nhà bếp.
Tầng 2 bố trí 2 phòng ngủ và 1 phòng vệ sinh chung nằm cạnh cầu thang. 2 phòng ngủ được bố trí đối diện nhau qua cầu thang thông tầng với phòng ngủ master thiết kế bên ngoài và phòng ngủ con thiết kế bên trong.

Phối cảnh mặt tiền và hoàn thiện nội thất nhà ống
Phối cảnh mặt tiền đơn giản, hiện đại
Hình dạng kiến trúc của Nhà ống 2 tầng Được thiết kế theo phong cách đơn giản, hiện đại. Với những khối hình học vuông vắn, đường nét khỏe khoắn, ngôi nhà ống toát lên vẻ đẹp vững chãi. Không quá bề thế nhưng vẫn đủ tinh tế để tạo ấn tượng riêng.
Toàn bộ tường bê tông được thay thế bằng sàn nhựa giả gỗ 3D. Cùng với đó là hệ thống gạch thông gió màu trắng tạo nên sự cuốn hút cho mặt tiền.
Khoảng không gian ban công tầng 2 khá rộng để trồng tiểu cảnh. Mặt tiền với hệ thống cửa kính lớn, dầm rộng vừa che mưa che nắng vừa tạo hiệu quả thẩm mỹ cao. Màu sắc cũng được hài hòa. Sử dụng những gam màu trung tính như nâu, xám, trắng mang đến vẻ đẹp nổi bật.
Hoàn thiện nội thất mẫu thiết kế nhà ống 2 tầng 4x12m
Thiết kế phòng khách với gam màu trắng sáng tạo cảm giác không gian rộng và thoáng. Nội thất như bàn ghế sofa, tivi không quá cầu kỳ về đường nét mà đơn giản. Mang đến không gian hài hòa, tiện nghi nhưng tối ưu chi phí. Điểm nhấn cho không gian phòng khách là những bức ảnh gia đình.

Phòng ngủ của vợ chồng anh Huy cũng được thiết kế đơn giản. Một không gian ấm áp với những gam màu trung tính. Nội thất được lựa chọn cũng vô cùng đơn giản. Phòng có bàn làm việc để vợ chồng anh Huy tiện theo dõi. Không gian thoáng với hệ thống cửa hướng ra ban công giúp phòng ngủ của người mẫu thiết kế nhà ống 2 tầng 4x12m thông thoáng hơn và đón nắng trực tiếp, gió tự nhiên.
Đối diện phòng ngủ của hai vợ chồng là phòng ngủ của cậu con trai 8 tuổi. Căn phòng có diện tích nhỏ hơn nhưng với cách lựa chọn nội thất cũng như bố trí hợp lý căn phòng ngủ vẫn vô cùng tiện nghi và xinh xắn. Bức tường được dán những họa tiết máy bay ngộ nghĩnh và trang trí bằng nhiều bức tranh mà bé đã vẽ. Chăn ga gối đệm cũng được lựa chọn với họa tiết kẻ sọc nổi bật. Chính vì vậy, tuy thiết kế vô cùng đơn giản nhưng lại rất ấn tượng.

Một số mẫu thiết kế nhà ống 4x12m 2 tầng hiện đại
Ngoài mẫu thiết kế nhà ống trên, Nội Thất Đương Đại cũng đã tổng hợp một số mẫu nhà 2 tầng hiện đại với chi phí đầu tư hợp lý để các bạn tham khảo. Hi vọng những mẫu nhà ống này có thể giúp bạn có thêm nhiều ý tưởng thiết kế mới và độc đáo cho ngôi nhà của mình.



Nếu bạn đọc muốn sở hữu một mẫu thiết kế nhà ống 2 tầng 4x12m Nếu bạn đang có những tiện ích như vậy, hãy liên hệ ngay với chúng tôi để được tư vấn chi tiết nhất!