Mẫu thiết kế nhà ống 2 tầng 5x20m đẹp và tiện nghi
Thiết kế nhà ống 2 tầng là kiểu nhà được đông đảo khách hàng lựa chọn để xây dựng trong thời gian gần đây. Không chỉ phù hợp với những khu vực có diện tích hạn chế mà giá thành xây dựng ở mức ổn định. Bên cạnh đó, nhà ống thích hợp đặt ở nhiều khu vực với mật độ dân cư khác nhau. Bài viết dưới đây, chúng tôi chia sẻ đến bạn đọc mẫu thiết kế nhà ống 2 tầng 5x20m ấn tượng nhất. Dõi theo!
Hình ảnh kiến trúc nhà ống 2 tầng 5x20m đẹp
Không gian nổi bật với sự kết hợp màu sắc hài hòa tạo nên thiết kế nhà 2 tầng đẹp, ấn tượng. Các đường kẻ ngang dọc được bố trí trên mặt tiền tạo nên vẻ đẹp cá tính và mạnh mẽ cho không gian. Hệ thống cửa sổ và cửa chính lớn được bố trí hài hòa đảm bảo ánh sáng được lan tỏa khắp căn phòng.

Đặc biệt trong mẫu thiết kế nhà 2 tầng này được bố trí thêm nhiều cây xanh kết hợp với hệ thống đèn. Điều này mang đến một môi trường sống trong lành, gần gũi với thiên nhiên đồng thời tạo điểm nhấn cho ngôi nhà.

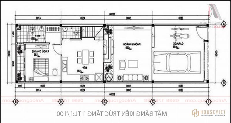
Bản vẽ mặt bằng nhà ống 2 tầng 5x20m
Mặt bằng kiến trúc tầng 1 của ngôi nhà được phân chia các khu vực cụ thể. Khu vực gara ô tô được bố trí sâu nhằm tiết kiệm diện tích cho phòng khách, phòng bếp và phòng ngủ. Phòng khách và phòng bếp được ngăn cách với nhau tạo nên một không gian sống ổn định và độc đáo. Các khu vực đều có không gian riêng nhưng khi kết hợp lại với nhau lại tạo nên một tổng thể hợp lý và ấn tượng.

Không gian tầng 2 được bố trí gồm 2 phòng ngủ, phòng thờ và khu sinh hoạt chung. Điểm nhấn của tầng 2 là khu vui chơi và sinh hoạt nằm giữa 2 phòng ngủ của các con. Điều này giúp trẻ có môi trường vui chơi lành mạnh mà vẫn đảm bảo an toàn cho trẻ. Khuôn viên phòng thờ được đặt trong khu vực phong thủy tạo không gian linh thiêng, trở thành quân tử.

Hình ảnh nội thất nhà ống 2 tầng 5x20m
+ Phòng khách và bếp
Phòng khách liền bếp đang là xu hướng thiết kế độc đáo của những ngôi nhà ống. 2 khu vực được ngăn cách bằng vách ngăn kết hợp với đường lên tầng 2 tạo nên nét sáng tạo và ấn tượng. Màu gỗ kết hợp với các tông màu trung tính mang đến vẻ đẹp tươi sáng, hiện đại. Bố trí khung cửa lớn ở phòng bếp vừa giúp không gian thông thoáng vừa hạn chế ám mùi thức ăn trong quá trình nấu nướng


Cách bố trí phòng khách liền kề bếp đồng nhất về màu nội thất mang đến hiệu ứng màu sắc dễ đọc. Ngôi nhà đồng nhất giữa nội thất và ngoại thất.

+ Phòng ngủ chính
Phòng master được bố trí nội thất đơn giản và có màu sắc đồng nhất với các khu vực khác trong nhà. Cửa sổ lớn giúp gia chủ tận dụng tối đa ánh sáng tự nhiên đồng thời mang đến không gian nghỉ ngơi ấn tượng.

Trang trí phòng ngủ bằng rèm cửa kết hợp với tranh mang lại hiệu quả thẩm mỹ độc đáo. Hệ thống đèn được bố trí hài hòa tạo nên một không gian yên bình và cuốn hút. Tủ quần áo và tivi được đóng theo phong cách tối giản, tiết kiệm diện tích căn phòng.

+ Phòng con gái
Màu hồng pastel và xanh nhạt là tông màu chủ đạo cho căn phòng của bé gái. Điều này tạo ra một không gian mở, nữ tính nhưng không gây cảm giác chói mắt, ức chế. Bố trí cửa sổ đón ánh sáng tự nhiên kết hợp hệ thống đèn chiếu sáng hài hòa. Các họa tiết trang trí và nội thất được bố trí hài hòa, đơn giản nhưng không kém phần tinh tế.


+ Phòng ngủ con trai
Lấy màu xanh lam làm chủ đạo kết hợp với những họa tiết trang trí đơn giản là khu vực phòng ngủ của cậu con trai. Thảm trải sàn, tủ quần áo và bàn học đều được bố trí màu xanh lam làm điểm nhấn. Điều này làm nổi bật những đồ nội thất quan trọng và hữu ích của phòng ngủ.

Ánh sáng tự nhiên qua cửa sổ lớn kết hợp với ánh sáng nhân tạo mang đến không gian thoáng đãng. Nội thất được bố trí hợp lý, cân đối không gian. Đồng thời, nội thất căn phòng được tối ưu phần lớn không gian theo hướng tích hợp nhiều công năng.

+ Phòng thờ
Khu vực phòng thờ được bố trí đơn giản nhưng toát lên vẻ đẹp tinh tế, trang nghiêm. Các họa tiết của long đình và bàn thờ được chạm khắc tinh xảo phù hợp với không gian phong thủy. Đặc biệt là màu sắc của tủ gỗ hài hòa với kiến trúc và nội thất của căn phòng.

Mẫu thiết kế nhà ống 2 tầng 5x20m tạo nên không gian sống ấn tượng và hiện đại. House Viet Tin rằng với những gợi ý trên bạn đã có những ý tưởng trong việc xây tổ ấm của mình. Bên cạnh đó, nếu bạn có nhu cầu tư vấn thiết kế kiến trúc, nội thất có thể liên hệ với chúng tôi qua Hotline 1800 6015. Đội ngũ kiến trúc sư giàu kinh nghiệm, chuyên môn vững vàng sẽ đưa ra những lời khuyên tốt nhất.
Một số bài viết để tham khảo:
- Thiết kế kiến trúc nhà ống 2 tầng 1 tum 4x20m - anh Hiếu
- Thiết kế nhà mặt phố 60m2 ở Mỹ Đức, Hà Nội
House Viet - Vững niềm tin