Mẫu Thiết Kế Nhà Ống 3 Tầng 4 × 15 Hiện Đại Đẹp Nhất Hiện Nay
Một ngôi nhà có kiến trúc đẹp, không gian sống tiện nghi luôn là mong muốn của nhiều gia đình. Thử tham khảo mẫu Thiết kế nhà 3 tầng 4 × 15 Dưới đây là của gia đình chị Hằng để lên ý tưởng cho kiến trúc ngôi nhà của mình nhé!
Yêu cầu của chủ đầu tư đối với mẫu thiết kế nhà 3 tầng 4 × 1. nhà ống
Cô Hằng: “Xin chào Kiến trúc sư. Gia đình tôi hiện có mảnh đất mặt tiền rộng 4m, dài 15m. Tôi muốn thiết kế nhà ống 3 tầng gồm 1 phòng khách, 1 bếp, 3 phòng ngủ (2 vợ chồng, 2 con, 1 trai, 1 gái) và phòng thờ. Phòng ngủ có vệ sinh khép kín để tiện sinh hoạt. Yêu cầu ban công rộng để gia đình có thể sinh hoạt và cho trẻ nhỏ chơi. Xin cảm ơn sự tư vấn của các kiến trúc sư. Đây là số điện thoại của tôi 03335xxxxx. Mong sớm nhận được phản hồi từ công ty ”
Phối cảnh mặt tiền mẫu thiết kế nhà ống 3 tầng 4 × 15
Mẫu nhà ống 3 tầng được thiết kế theo phong cách hiện đại, trẻ trung. Không cần nhiều chi tiết trang trí nhưng vẫn nổi bật và thu hút người nhìn. Ngôi nhà ống sử dụng 2 tông màu chủ đạo là trắng và xanh đen. Mang lại vẻ đẹp hài hòa cho mặt tiền và tạo cảm giác nhẹ nhàng, thanh thoát.
Ngôi nhà được thiết kế với nhiều ô cửa vuông vắn, đẹp mắt. Sử dụng kính cường lực chắc chắn mang đến vẻ đẹp hiện đại và giúp ngôi nhà sáng sủa hơn. Khu vực ban công tầng 2 và tầng 3 sử dụng hợp lý và vừa đủ diện tích. Lan can cũng được làm từ kính cường lực. Không quá đồ sộ tuy nhiên mẫu thiết kế nhà ống này sẽ mang đến cho gia chủ một không gian sống tuyệt vời.

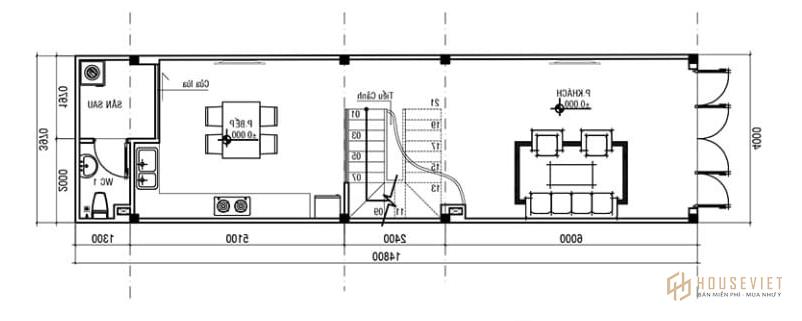
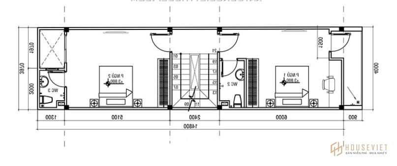
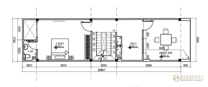
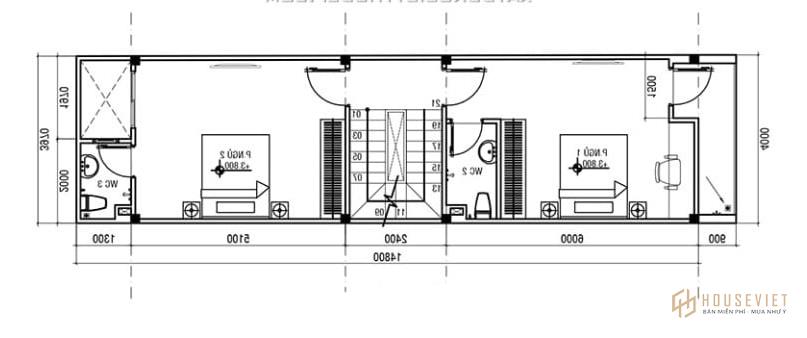
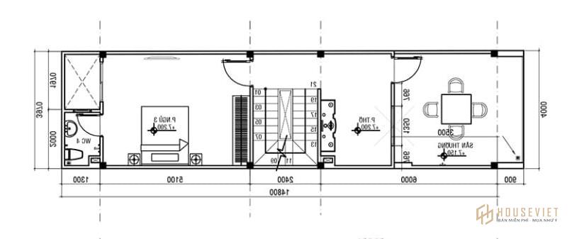
Bản vẽ thiết kế nhà ống 3 tầng 4 × 15
Mặt bằng tầng 1 tương đối đơn giản gồm phòng khách rộng rãi, bếp và bàn ăn. Bước vào ngôi nhà đầu tiên là không gian phòng khách. Tiếp đến là cầu thang được thiết kế ở góc tường bên trái để thuận tiện cho việc di chuyển. Mang đến không gian sống tiện nghi nhất cho gia đình.
Không gian liên thông với cầu thang là phòng bếp và phòng ăn. Cuối cùng là khu vệ sinh chung cho tầng 1.

Tầng 2 có 2 phòng ngủ. 1 phòng ngủ của vợ chồng chị Hằng và 1 phòng ngủ của cậu con trai út trong gia đình. Cả hai phòng ngủ đều được thiết kế với khu vệ sinh khép kín bên trong để thuận tiện hơn trong quá trình sử dụng.

Tầng 3 của mô hình tThiết kế nhà 3 tầng 4 × 15 Kiến trúc sư bố trí không gian thờ và 1 phòng ngủ cho chị gái lớn. Nhà vệ sinh cũng được thiết kế khép kín trong phòng. Phòng thờ được bố trí cạnh cầu thang và hướng ra sân thượng. Giữ không gian yên tĩnh.

Thiết kế nội thất mẫu nhà ống 3 tầng 4 × 15
Phòng khách sang trọng của nhà ống 3 tầng
Thiết kế phòng khách vô cùng sang trọng với nội thất và vật dụng trang trí. Bộ sofa nỉ cao cấp kê cạnh góc tường. Tối ưu hóa diện tích sử dụng cũng như mang đến sự hài hòa cho toàn bộ không gian.
Chỉ với chi tiết đèn trần pha lê, ngôi nhà trông sang trọng và lung linh hơn rất nhiều. Bức tường được ốp gạch tạo điểm nhấn và giúp không gian phòng khách thêm độc đáo, mới lạ.

Nhà bếp đầy đủ tiện nghi với phòng ăn
Căn bếp của gia đình chị Hằng sử dụng 2 tone màu chủ đạo là trắng và xanh. Hai màu này giúp căn bếp sáng bóng, sạch sẽ và rộng rãi. Với diện tích hẹp về chiều ngang như nhà ống thì tủ bếp chữ L là sự lựa chọn vô cùng hợp lý. Vẫn có thể bố trí đầy đủ tiện nghi mà không gian bếp vẫn rộng và thoáng.

Phòng ngủ vợ chồng của mẫu thiết kế nhà 3 tầng 4 × 15
Phòng ngủ của 2 vợ chồng được bố trí trên tầng 2 rộng rãi và ấm áp. Màu nâu trầm bao quanh toàn bộ căn phòng. Mang lại cảm giác nhẹ nhàng, thoải mái sau một ngày làm việc mệt mỏi. Nội thất trong phòng cũng rất đơn giản. Điểm nhấn đặc biệt của căn phòng là bức tranh treo đầu giường. Mang một vẻ đẹp tiềm ẩn như chính không gian này.

Phòng ngủ ngộ nghĩnh của cậu út
Đây là món quà mà Hằng muốn dành tặng con trai. Vốn dĩ là một người tinh nghịch và thích biển. Vì vậy, kiến trúc sư đã chọn màu xanh lam làm tông màu chủ đạo cho không gian của bé. Từ bàn học, tủ quần áo, giá sách cho đến chăn ga gối đệm đều khơi gợi sự thích thú của cậu bé.

Phòng ngủ của chị gái lớn trong gia đình
Là người không thích cầu kỳ hay rườm rà nên phòng ngủ của cô con gái lớn trong gia đình cũng được thiết kế rất đơn giản. Tông màu chủ đạo là trắng sáng nhẹ nhàng. Một chút điểm nhấn từ họa tiết kẻ caro của ga gối hay những bức tranh treo tường cũng đủ khiến phòng ngủ trở nên thu hút.

Một số mẫu thiết kế nhà ống 3 tầng 4 × 15 đẹp và ấn tượng
Thiết kế nhà ống có nhiều kiểu kiến trúc khác nhau như nhà ống phong cách hiện đại, nhà ống mái thái, nhà ống mái bằng… Dưới đây là một số mẫu nhà ống 3 tầng 4x15m mời các bạn tham khảo:






Đây là một mẫu Thiết kế nhà 3 tầng 4 × 15 do các kiến trúc sư của Nội Thất Đương Đại tư vấn. Nếu bạn cần tư vấn về thiết kế nhà ống Hãy liên hệ với chúng tôi để được hỗ trợ nhanh nhất!