Mẫu Thiết Kế Nhà Ống 50m2 3 Phòng Ngủ Đẹp Nhất Hiện Nay
Với diện tích đất vỏn vẹn 50m2, nhiều gia chủ phải đau đầu khi thiết kế nhà ống cho gia đình mình. Thiết kế nhà ống 50m2 Có 3 phòng ngủ không đơn giản như vậy. Nhưng những mẫu nhà ống dưới đây đã làm được điều đó. Trong bài viết hôm nay, Nội Thất Đương Đại sẽ cùng bạn tìm hiểu 5 mẫu nhà 50m2 sau đây.
Mẫu thiết kế nhà ống 2 tầng 50m2 nhỏ đẹp
Diện tích càng nhỏ thì mọi không gian càng cần được tận dụng để phục vụ sinh hoạt. Thay vì phải xây nhiều tầng để đảm bảo 3 phòng ngủ thì mẫu nhà này chỉ có 2 tầng. Thiết kế ngoại thất của nhà ống rất hiện đại với không gian mở. Tầng 1 được lắp cửa kính rộng rãi lấy sáng, tầng 2 có ban công rộng đón gió. Mẫu nhà ống này nhìn đơn giản nhưng rất tinh tế và trang nhã. Không gian bên trong ổn thiết kế nội thất theo phong cách hiện đại

Và để hiểu rõ hơn 50m2. thiết kế nhà ống đẹp thế này, chúng ta cùng xem qua bản vẽ mặt bằng của căn hộ. Căn hộ có diện tích gần 56m2, mặt tiền 4m, dài 14m. Gia chủ vẫn chừa 10m2 hiên trước làm gara để ô tô và trồng cây xanh. Sau đó ở lối vào sẽ là sảnh và phòng khách. Tầng 1 chỉ có phòng khách, phòng ăn, bếp và phòng tắm.
Lên tầng 2, bạn sẽ thấy được sự bố trí không gian tuyệt vời của 3 phòng ngủ. 2 phòng ngủ nằm liền kề nhau và gần phòng vệ sinh trong cùng, phòng ngủ Master nằm gần ban công. Giữa tầng 1 và tầng 2 là khoảng thông tầng và giếng trời để lấy ánh sáng vào nhà. Trong nhà, thi công nội thất theo phong cách hiện đại

Mẫu nhà ống 3 tầng hiện đại diện tích 50m2
Mẫu nhà ống 50m2 3 phòng ngủ tiếp theo có thiết kế rất gần gũi và trang nhã. Từ mặt tiền, chúng ta có thể thấy rõ sự tinh tế và sang trọng của lớp gạch trắng bao phủ. Ban công được thiết kế với những hoa văn nhẹ nhàng và phủ đầy dây leo mang đến cảm giác thoải mái và thư thái.

Nhìn qua mặt bằng, với diện tích mặt tiền 5m, chiều dài 10m, căn hộ thông thoáng. Tầng 1 được sử dụng làm khu sinh hoạt chung gồm phòng khách rộng rãi và phòng bếp tiện nghi. Tầng một cũng có một phòng tắm nhỏ để khách đến thăm nhà.
Trên bản vẽ mặt bằng tầng 2, 2 phòng ngủ Master được bố trí đối diện nhau, 1 phòng hướng ra ban công và 1 phòng hướng ra sân sau. Cả hai phòng ngủ đều có phòng tắm riêng rất tiện lợi. Mỗi phòng ngủ rộng khoảng 20 mét vuông.

Tầng 3 được thiết kế ban công rất rộng để trồng cây và đón gió. Tầng 3 chỉ có 1 phòng ngủ master có phòng tắm riêng, các diện tích nhỏ còn lại để máy giặt và sân phơi.

Mẫu thiết kế nhà ống 50m2 3 phòng ngủ siêu hiện đại
Bạn chắc chắn sẽ yêu thích mẫu nhà ống hiện đại và phong cách này. Được thiết kế bằng sức trẻ và óc sáng tạo, mẫu xe thể hiện sự mạnh mẽ với các góc cạnh vuông vắn, các lớp đan xen. Căn hộ 3 tầng có tổng diện tích hơn 50m2, mặt tiền rộng 3,5m, dài 14,3m.

Tầng 1 bố trí phòng khách rộng 20m2 gần cửa ra vào để tiếp khách. Phòng bếp được đặt cùng phòng với phòng ngủ nhỏ. Phòng ngủ này có diện tích khá nhỏ, dùng để người già nghỉ ngơi đảm bảo an toàn.
Quan sát mặt bằng tầng 2, bạn cũng sẽ thấy 2 phòng ngủ được đặt đối diện nhau và đều có phòng vệ sinh. Tuy nhiên, căn nhà chỉ có 1 phòng ngủ chính dành cho gia chủ, phòng ngủ còn lại khá nhỏ dành cho các con.

Trên bản vẽ mặt bằng tầng 3, bạn sẽ thấy phòng thờ của gia đình được bố trí gần ban công. Vị trí này rất tốt về mặt phong thủy, vừa trang nghiêm vừa yên tĩnh. Bên trong, chủ nhân xây thêm một phòng ngủ dành cho khách, hoặc dùng làm phòng đọc sách của gia đình.

Mẫu nhà ống 2 tầng 50m2 tiện nghi mặt tiền 3m2
Với diện tích vỏn vẹn 50m2 và 2 tầng nhưng các kiến trúc sư đã bố trí vô cùng khéo léo. Đầu tiên, thiết kế mặt tiền rất hiện đại và sáng tạo với 2 bức tường chồng lên nhau. Cửa sổ dài chạy dọc tầng 1 và tầng 2 có tác dụng bắt sáng rất tốt. Tầng 2 được thiết kế ban công rộng để đón gió và tạo điểm nhấn cho mặt tiền.

Xét về cách bố trí phòng, ở tầng 1 có một phòng ngủ nhỏ khoảng 10m2 sâu dưới cùng, ngay cạnh bếp. Tầng 1 có sân vườn tiểu cảnh dưới chân cầu thang giúp căn hộ trở nên xanh mát hơn. Giếng trời cũng được xây dựng ngay bên trên để lấy sáng cho tầng một.

Ở tầng 2, phòng ngủ 2 và 3 được bố trí hai bên cầu thang, ở giữa là phòng vệ sinh. Bên trong cùng căn hộ là phòng thờ rất rộng rãi, được đặt riêng ở đây để tăng thêm vẻ uy nghiêm và thanh tịnh.
Thiết kế nhà ống 50m2 đầy nghệ thuật theo phong cách hiện đại
Đây là thiết kế nhà ống sự kết hợp giữa phong cách hiện đại và văn hóa Á Đông. Nổi bật trong đó là sự đơn giản, vuông vắn của thiết kế hiện đại và hoa văn đặc trưng Á Đông. Ở mặt tiền, bức tường giả gỗ có cửa sổ khung sắt với nhiều hoa văn sang trọng. Khung cửa được kéo dài từ tầng 2 lên đến tầng thượng để lấy ánh sáng tự nhiên vào nhà.

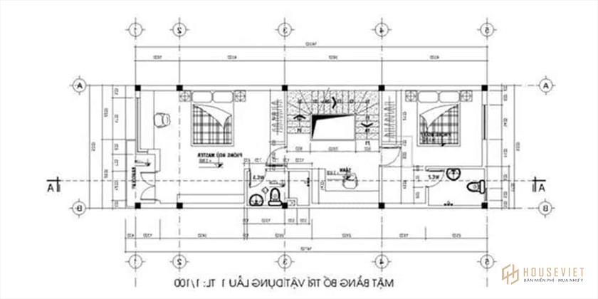
Mặt bằng tầng 1:
Với mặt tiền 3.5m, chủ nhà lấy 10m2 sân trước làm chỗ để ô tô. Qua cửa chính là phòng khách rồi đến phòng ngủ 1, bếp nằm trong cùng. Điều này rất tốt về mặt phong thủy cho gia chủ, phòng ngủ 1 có thể để gia chủ hoặc người lớn tuổi trong nhà sử dụng.
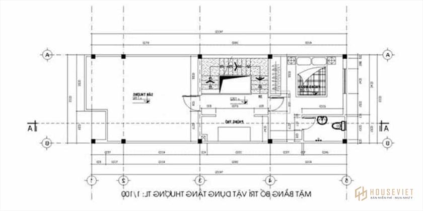
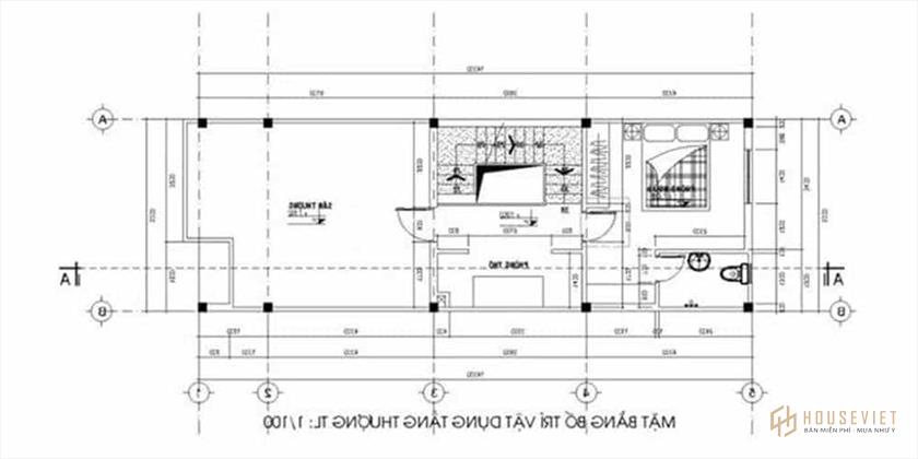
Mặt bằng tầng 2:

Phòng ngủ master 2 và 3 nằm trên tầng 2, nhà có phòng sinh hoạt chung. Với diện tích rộng, phòng sinh hoạt chung cũng như phòng khách này được bố trí một bộ sofa lớn để ngồi. Đây là khu vực cả gia đình cùng nhau vui chơi, xem phim. Ở tầng tum, đây là khu vực dành cho phòng thờ và sân phơi, nơi yên tĩnh và trang nghiêm. Gia chủ trồng nhiều cây xanh để tăng sinh khí và may mắn cho gia đình.

Nguồn ảnh: Không gian nhà đẹp 24h
5 mẫu 50m2. thiết kế nhà ống 3 phòng ngủ trên đây đều là những điều tuyệt vời dành cho gia đình. Đặc biệt với những diện tích hạn chế, bạn có thể bố trí phòng ngủ như trên. Nếu bạn đang băn khoăn về thiết kế nhà ống, hãy liên hệ với chúng tôi để được tư vấn. Nội Thất Đương Đại luôn sẵn sàng phục vụ bạn nhiệt tình.