Mẫu thiết kế nhà phố 2 tầng 5x11m NDNP2T27
Nếu nói về nhà phố 2 tầng thì có lẽ số lượng cũng không hề ít, cụ thể là mẫu thiết kế nhà phố 2 tầng 5x11m như mẫu mà chúng tôi sẽ giới thiệu đến các bạn. Và có rất nhiều mẫu nhà gần với kích thước của mẫu nhà này như nhà phố 2 tầng 4x11m hay nhà ống 6x11m. Tuy nhiên, mỗi ngôi nhà đều có những nét đẹp, ưu điểm và sự khác biệt riêng nên việc lựa chọn cho mình một mẫu nào đó là tùy thuộc vào mỗi người phải không nào? Căn nhà phố 2 tầng 5x11m này được chúng tôi thiết kế cho một người quen là bạn của một thành viên trong công ty nhà đẹp. Tuy nhiên, hiện tại tôi không biết dự án này có thể đưa vào xây dựng hay không, có lẽ sẽ mất nhiều thời gian. Vậy điểm đặc biệt của mẫu thiết kế nhà này là gì? Có lẽ bạn phải nhìn những hình ảnh của thiết kế này mới hiểu được.

Tôi không biết các bạn cảm nhận như thế nào về mẫu thiết kế nhà này, nhưng với cá nhân tôi thì có lẽ tôi thấy nó khá đơn giản, Điều tôi muốn là một mẫu đẹp hơn, hiện đại hơn và tinh tế hơn một chút. . Tuy nhiên, tại sao chúng tôi vẫn chia sẻ nó với bạn vì tôi chắc chắn rằng sẽ có người thích nó mặc dù tỷ lệ người thích nó có thể ít. Tôi cũng có nhiều năm kinh nghiệm trong nghề và cũng có nhiều kinh nghiệm và thấy thế giới này rộng lớn như thế nào. Đôi khi chúng ta cảm thấy có những thứ mình không thể thích nhưng người ta lại mê đắm. Cụ thể, bạn sẽ thường xuyên bắt gặp những người đàn ông mê đắm những cô gái không xinh đẹp chút nào. Nhưng tại sao mọi người vẫn thích nó và ngay cả bạn cũng không hiểu nó? Vì mỗi người có một hệ quy chiếu khác nhau, có thể bạn không thích nhưng chắc chắn sẽ có người mê mẩn mẫu thiết kế nhà phố 2 tầng 5x11m này. Xin hãy tin tôi.

Nhìn từ bên ngoài bạn sẽ thấy rất đơn giản, mặt phố vuông vức như một chiếc hộp và mặt tiền đường được kết hợp bởi những đường cong và những con đường. Nói đến đây, tôi có thể nghĩ ra thêm một vài lựa chọn mặt tiền cho ngôi nhà này từ những đường cong này. Đôi khi kiến trúc sư là những người kỳ lạ. Chắc hẳn các bạn cũng đã biết đến thiết kế của Võ Trọng Nghĩa, nhìn bên ngoài trông như một chiếc hộp như thế này nhưng lại đạt giải rất cao trong cuộc thi thiết kế của thế giới. Vậy đó, có những thứ chúng ta thưởng tưởng như chẳng là gì nhưng lại có giá trị rất lớn, đó là do cách đánh giá của mọi người. Vậy theo bạn, bạn sẽ nhận được những giá trị gì từ mẫu thiết kế nhà phố 2 tầng 5x11m này.
Có lẽ là không gian sử dụng mà tôi thấy giá trị nhất, có thể là các bạn thấy thứ gì đó có giá trị hơn. Có lẽ chúng ta có thể thử nó cùng nhau.

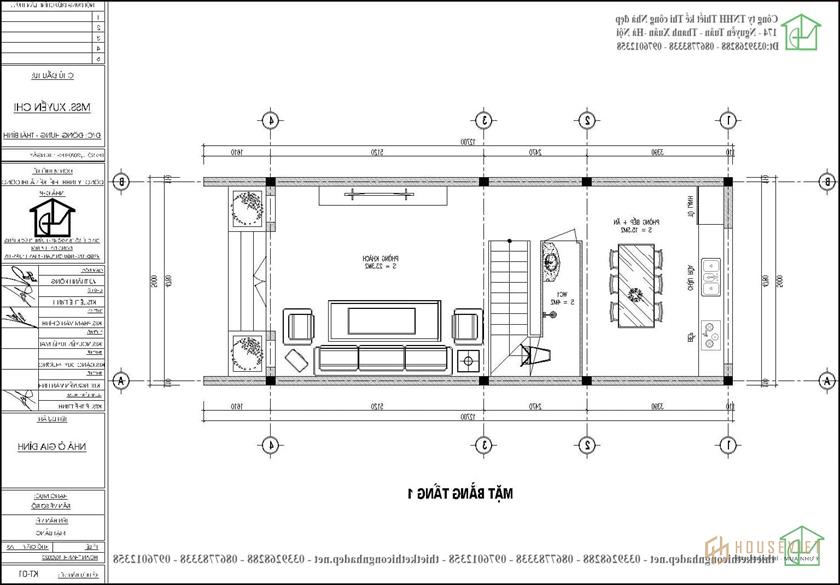
Có một điều đặc biệt ở ngôi nhà này, phía trước là phòng khách, sau đó là cầu thang và cuối cùng là bếp và phòng ăn. Tôi thấy cùng một dãy phố với hầu hết các ngôi nhà, nhưng chưa thấy điều gì đặc biệt trong thiết kế này. Hãy tiếp tục xem tầng 2 như thế nào nhé.

Tầng 2 thiết kế 2 phòng ngủ, 2 cầu thang và 1 phòng vệ sinh chung. Bạn có thấy hành lang được thiết kế trong phòng ngủ phía trước? Tại sao vậy? Tôi cũng không hiểu ý đồ của nhà thiết kế, hành lang vẫn rải sỏi, nhưng sau đó tôi đi ra phía trước ban công. Mình cũng như bạn, mình là người đánh giá khách quan về căn nhà này và không trực tiếp tiếp xúc với khách hàng nên không biết nguyên nhân do đâu? 2 phòng cần độc lập như vậy để tận hưởng mặt tiền của ngôi nhà thì chứng tỏ cần có sự riêng tư, vậy chẳng lẽ 2 phòng ngủ này không phải là quan hệ gia đình, không phải quan hệ cha mẹ với con cái nên mới cần độc lập như vậy? Theo bạn, điều đó có chính xác không?
Chi phí xây nhà 2 tầng này là bao nhiêu?
Nhưng quên mất một vấn đề là xây nhà này hết bao nhiêu tiền có thể bạn chưa biết đúng như tiêu đề mẫu nhà diện tích 5x11m tổng 2 tầng 110m2. Nếu bạn giỏi xây dựng thì có lẽ 400-500 triệu là đủ rồi đúng không? Đây cũng không phải là một con số quá sức tưởng tượng vì cách đây 2 năm tôi có thiết kế một căn nhà ở cạnh Hưng Yên với diện tích 4x13m và kinh phí hơn 300 triệu. Vậy thì việc xây nhà với giá 500 triệu này là hoàn toàn có thể thực hiện được đúng không?

Còn một bản vẽ mặt tiền của ngôi nhà này nữa chúng tôi sẽ chia sẻ đến các bạn. Tôi không biết nếu bạn có thể sử dụng nó. Vì đây mới chỉ là phương án thiết kế cho ngôi nhà này nên nó vẫn chưa được triển khai đầy đủ. Vì vậy, nếu chúng tôi có một số phần, chúng tôi sẽ chia sẻ chúng với bạn. Mời các bạn cùng tham khảo.
- Mẫu thiết kế nhà 2 tầng hiện đại 7x15m ở Thái Bình
- Mẫu thiết kế nhà phố 2 tầng 6x20m tại Ba Vì
- Mẫu thiết kế nhà phố 2 tầng mái thái 6x12m tại Sơn La
- Bản vẽ thiết kế nhà phố 2 tầng 5x18m tại Hòa Bình NDNP2T28