Mẫu thiết kế nhà phố 2 tầng hiện đại mặt tiền NDNP2T10
Có những ngôi nhà khi xây nhà cũng rất có điều kiện như mẫu thiết kế nhà phố 2 tầng hiện đại này. Khi chúng tôi thiết kế cho gia chủ thì gia chủ làm nhà cho mình và bên cạnh cũng xây nhà phố 2 tầng cho con. 2 căn nhà phố đơn lập, liền kề nhau. Chắc hẳn bạn vẫn chưa đoán ra được ngôi nhà này được xây dựng tiếp theo là ngôi nhà nào đúng không? Cùng địa điểm xây dựng Bờ Đậu - Thái Nguyên là mẫu nhà phố 2 tầng 8x12m của chị Quyên. Khu vực này có dự án đường đi qua nên chủ đầu tư mới tiến hành xây dựng và dọn vào ở. Dự kiến trong 1-2 năm tới con đường sẽ bắt đầu được mở rộng và được giải phóng theo chủ trương của tỉnh. Tôi cũng có một khách hàng đã xây nhà tại khu vực này và nhà nằm trong diện giải tỏa, khi xây chủ nhà rất ưng thiết kế nhưng không nghĩ là nhà lại giải tỏa nhanh như vậy. Vì vậy, khi nhà xây xong, sắp di dời cũng mất rất nhiều tiền.
Ngày nay, nhà phố ngày càng được phát triển đa dạng với nhiều phong cách khác nhau. Trong đó không thể không kể đến mẫu thiết kế nhà phố 2 tầng hiện đại. Đây là một trong những kiểu kiến trúc được ưa chuộng trong những năm gần đây nhờ ngoại thất đẹp và cách bố trí không gian khoa học.
Nhà phố 2 tầng hiện đại được yêu thích bởi sự phân bổ không gian hợp lý, dễ dàng đáp ứng nhu cầu sử dụng, giá thành tiết kiệm phù hợp với kinh tế gia đình. Ngoài ra, kiến trúc ấn tượng phù hợp với xu hướng chính là thế mạnh lớn nhất. Những tiêu chí trên hoàn toàn phù hợp với yêu cầu mà gia chủ đưa ra. Vì vậy, khi thống nhất được phương án thiết kế và quá trình hoàn thiện hồ sơ diễn ra rất nhanh chóng.
Thông tin mẫu thiết kế nhà phố 2 tầng hiện đại
- Chủ đầu tư: Chú Mạnh
- Địa điểm xây dựng: Thái Nguyên
- Tổng diện tích xây dựng: 214m2
- Diện tích: 8,5mx 12,5m
- Số lượng phòng: 5 phòng
- Phong cách hiện đại
- Tổng kinh phí xây dựng dự kiến: 1,1 tỷ đồng
Chi tiết mẫu thiết kế nhà phố 2 tầng hiện đại
Đây là một trong những thiết kế nhà phố 2 tầng hiện đại với những đường nét kiến trúc vô cùng đơn giản. Tuy nhiên, tổng thể bên ngoài không hề đơn điệu mà ngược lại. Các hình khối vuông vắn góc cạnh mang đến cái nhìn mới về thẩm mỹ mà kiến trúc sư muốn thể hiện.

Mặt tiền được thiết kế theo phong cách không gian mở, rất thông thoáng và rộng rãi. Đảm bảo sự thông thoáng và thoải mái cho người sử dụng bằng kính cường lực và cảnh quan cây xanh. Thay vì tận dụng hết diện tích để xây nhà, hành lang được bố trí một khoảng thông tầng giúp gia chủ tận hưởng bầu không khí trong lành. Không gian này khá rộng, bạn có thể kê một bộ bàn ghế hoặc đơn giản là một hai chiếc ghế trước sảnh.

Với phong cách thiết kế đậm nét hiện đại, vật liệu được chọn lọc kỹ lưỡng. Kính cường lực khung nhôm của cửa và kính cường lực tại lan can tầng 2 giúp không gian trở nên rộng và thoáng hơn. Ngoài ra, ánh sáng dễ dàng tràn vào bên trong ngôi nhà. Sơn tường màu trắng trang nhã kết hợp với gam màu trầm tạo nên sự tương phản màu sắc đặc biệt.
Gạch ốp tường được sử dụng ở mặt tiền, mặt bên và tầng 2 được kết hợp một cách tinh tế. Mặc dù không cùng một loại gạch hoặc màu sắc nhưng nó mang lại một cái nhìn độc đáo. Nhìn từ góc nghiêng có thể thấy công trình kiến trúc rất cách tân không theo lối mòn kiến trúc với hình khối độc đáo kéo dài từ tầng thượng đến chân tường.
>> Xem ngay: Nhà phố 2 tầng 4x10m tiện nghi
Công năng sử dụng nhà phố 2 tầng mái bằng hiện đại
Đối với một gia đình đông người như nhà chú Mạnh thì đây là mẫu thiết kế phù hợp nhất.

tầng 1: Được thiết kế với phòng khách rộng rãi và sang trọng. Đi sâu vào bên trong là phòng bếp kết hợp phòng ăn và được ngăn cách với phòng khách bằng vách ngăn lịch sự và kín đáo. Cạnh nhà vệ sinh là phòng vệ sinh chung tiện lợi. Tầng 1 chúng tôi bố trí 2 phòng ngủ gồm phòng ngủ master có vệ sinh khép kín, nhà kho được bố trí ở giữa 2 phòng ngủ và ngay dưới chân cầu thang.

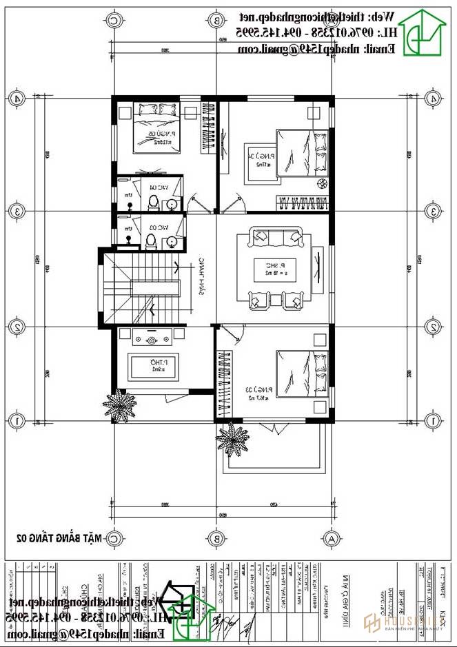
tầng 2: Gồm 3 phòng ngủ trong đó 1 phòng ngủ master có phòng vệ sinh riêng, 1 phòng vệ sinh cạnh cầu thang rất tiện lợi. Phòng sinh hoạt chung được thiết kế tiện nghi để gia đình có thể nghỉ ngơi, quây quần bên nhau rất riêng tư. Phòng thờ được bố trí cạnh lối ra hành lang, đây là yếu tố phong thủy theo yêu cầu của gia chủ.
Thiết kế nhà phố 2 tầng hiện đại ngày càng được ưa chuộng và hứa hẹn sẽ trở thành xu hướng thiết kế mạnh mẽ trong nhiều năm tới. Quý vị có nhu cầu tư vấn thiết kế nhà đẹp vui lòng đến trực tiếp văn phòng kiến trúc số 174 Nguyễn Tuân - Thanh Xuân - Hà Nội hoặc liên hệ trực tiếp tới số hotline của công ty để được hỗ trợ nhanh nhất. .
>> Xem ngay các mẫu nhà phố đẹp khác:
- Mẫu nhà phố 2 tầng 5x13m hiện đại
- Các mẫu nhà phố 2 tầng đơn giản chỉ từ 450 triệu đồng
- Nhà phố 2 tầng 4x10m tiện nghi tại Hà Nội
- Mẫu nhà phố 2 tầng 5x13m hiện đại tại Hạ Long
- Muốn xây nhà 2 tầng đẹp phải kết hợp màu sơn như thế nào?
- Thiết kế biệt thự 2 tầng
- Thiết kế biệt thự cổ điển