Mẫu thiết kế nhà phố 3 tầng 4,5x16m tại Bắc Ninh NDNP3T55
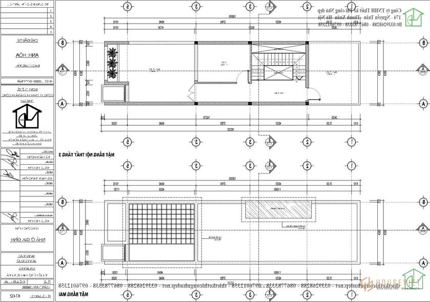
Nếu nói về Bắc Ninh thì có lẽ Nhà Đẹp cũng đã thiết kế rất nhiều mẫu nhà tại Bắc Ninh. Tuy nhiên, những mẫu thiết kế nhà phố 3 tầng 4,5x16m như thế này thì ít hơn, chủ yếu là các mẫu biệt thự 1 tầng, biệt thự 2 tầng và 3 tầng là nhiều. Diện tích 4,5x16m rất rộng rãi có thể bố trí và thiết kế. Theo yêu cầu của chủ nhà hiện tại chỉ cần 3 phòng ngủ và trên tầng 2 chúng tôi có thể thiết kế 3 phòng ngủ. Tuy nhiên ở tầng 3 tạm thời chưa nên làm phòng ngủ và nếu cần sau này có thể bố trí thiết kế. Một điều mà bạn sẽ không để ý, nếu nhìn vào sẽ thấy thiếu sót. Đó là bàn thờ, đối với những người theo đạo thì việc thờ cúng ở tầng 1 sẽ không ảnh hưởng nhiều. Khác với người bên, việc thờ cúng rất quan trọng và bàn thờ phải được đặt ở vị trí đẹp nhất, trang trọng nhất của một ngôi nhà. Không sao khi bạn có thể nhìn thấy bản vẽ mặt bằng tầng 3, bạn sẽ có rất nhiều lựa chọn. Tầng 3 hầu như không có phòng nào và bạn cũng có thể thêm phòng ngủ và phòng thờ ở tầng 3 này.
Đơn giá xây dựng dự kiến của mẫu nhà phố 3 tầng 4,5x16m
Chắc hẳn nhiều bạn sẽ thắc mắc chi phí xây dựng cho mẫu nhà phố 3 tầng này là bao nhiêu. Vậy mời các bạn cùng tham khảo cách tính đơn giá xây dựng nhà phố này của chúng tôi. Đơn giá xây dựng dự kiến cho mẫu nhà phố 3 tầng hiện đại là từ 5 triệu đến 6 triệu / 1m2.
- Chủ đầu tư: Anh Hòa
- Địa điểm: Bắc Ninh
- Diện tích nhà: 4,5x16m
- Diện tích xây dựng tầng 1: 72m2
- Diện tích xây dựng tầng 2: 81m2
- Diện tích xây dựng tầng 3: 36,1 m2
- Tổng diện tích xây dựng: 72 + 81 + 36,1 = 189,1 m2
- Giá xây dựng dự kiến 5 triệu / 1m2 ta có: 189,1 × 5.000.000 = 945,5 triệu đồng
- Giá xây dựng dự kiến 6 triệu / 1m2 ta có: 189,1 × 6.000.000 = 1.134.600.000 đồng
Như vậy, dự kiến để hoàn thiện căn nhà này bạn cần chuẩn bị khoảng 1-1,13 tỷ là có thể xây được. Đó là chưa kể bạn còn phải kê đồ đạc, nếu đất đủ rộng thì bạn cũng phải làm cổng, hàng rào.
Hình ảnh 3D ngoại thất mẫu nhà phố 3 tầng 4,5x16m
Đây là công năng sử dụng của tầng một và tầng hai. Tầng 1 được bố trí gara, phòng khách và khu bếp ăn phía sau nhà. Phía sau nhà còn khá rộng nên mở thêm 1 cửa sau đi ra ngoài, khu vực phía sau có thể làm sân vườn, sân gia công tùy theo yêu cầu của gia chủ.
Tầng 2 được bố trí 3 phòng ngủ, 1 phòng vệ sinh khá đơn giản, không cầu kì, phức tạp. Tuy nhiên đặt phòng ngủ giữa nhà thì hơi tối, nếu mảnh đất của bạn đủ rộng thì bạn cũng có thể mở giếng trời cho khu vệ sinh để lấy sáng cho phòng ngủ đó.

Tầng 3 được bố trí kho và sân chơi phía trước và sau nhà. Như đã nói ở trên diện tích thiết kế rất lớn và cần thiết sau này bạn cũng có thể bố trí thêm phòng ngủ và thêm phòng thờ trên tầng 3.
Thiết kế nội thất nhà phố 3 tầng 4,5x16m
Rất may là trong thiết kế này chúng tôi cũng thiết kế nội thất nên trong bài viết Nhà Đẹp sẽ chia sẻ một phần thiết kế nội thất để các bạn có thể hình dung rõ hơn về cách bố trí của ngôi nhà này. Làm hài lòng. Chất liệu chính trong mẫu thiết kế này là gỗ công nghiệp melamine An Cường hoặc bạn có thể sử dụng chất liệu melamine cốt MDF xanh Thái Lan chống ẩm.
Nội thất phòng khách và bếp ăn nhà phố
Vì thiết kế chia thành nhiều phòng nên chúng tôi sẽ chia nhỏ ra để các bạn hình dung rõ hơn.

Đây là vị trí mà khi bạn đứng ở cửa nhìn vào bạn sẽ thấy được toàn cảnh tổng thể của ngôi nhà này. Từ gara và phòng khách sẽ được ngăn bằng vách kính cường lực, cửa thủy lực. Hoặc bạn có thể sử dụng với cửa nhôm kính cũng không vấn đề gì.

Nhà phố được thiết kế theo phong cách hiện đại nên nội thất cũng phải được làm theo phong cách hiện đại để có sự đồng bộ. Sofa phòng khách được làm khá đơn giản, sofa đệm rời. Phía sau bộ sofa sẽ là vách gỗ kết hợp với tường giả đá.

Cầu thang chúng tôi sử dụng trong thiết kế này là cầu thang kính, bậc gỗ theo lối thiết kế hiện đại. Ngay phía sau cầu thang sẽ được bố trí một giếng trời khá rộng rãi để lấy sáng cho toàn bộ ngôi nhà từ trên xuống dưới.


Chất liệu sử dụng cho bếp là gỗ công nghiệp, tủ bếp là tủ bếp gỗ công nghiệp màu vân gỗ, đơn giản không nhiều chi tiết nhưng rất đầy đủ công năng sử dụng cho gia đình.
Nội thất phòng ngủ chính

Màu sắc chủ đạo trong thiết kế phòng ngủ này là màu trắng, kết hợp với tông màu vân gỗ giống với tầng một. Phía sau giường sẽ là bộ vách gỗ công nghiệp màu trắng kết hợp với màu nâu.
Nội thất phòng ngủ số 1

Nội thất phòng ngủ số 2
Như vậy là phần giới thiệu về mẫu nhà phố 3 tầng 4,5x16m này của Nhà Đẹp đã qua, có thể hơi dài nhưng nếu các bạn thích kiểu nhà phố này thì có thể từ từ nghiên cứu thêm nhé. Chúng tôi hy vọng bạn có thể cho chúng tôi biết suy nghĩ của bạn về thiết kế này. Cảm ơn bạn
- Thiết kế nhà phố 3 tầng 6x14m mái thái đẹp
- Mẫu nhà phố 3 tầng hiện đại 5,5x17m tại Hòa Bình
- Mẫu nhà đẹp 3 tầng 5x12m 3 phòng ngủ tại Quảng Ninh
- Mẫu nhà phố 3 tầng 4x12m cấp 4 3 phòng ngủ NDNP3T56