Mẫu thiết kế nhà phố 3 tầng có gác lửng 4,5x20m tại Phú Thọ NDNP3T69
Đây có lẽ là khách hàng đắt hàng nhất tại Phú Thọ mà công ty chúng tôi đã thiết kế. Có thể mảnh đất Phú Thọ kém duyên vì với những khách hàng bình dân hay mới xây nhà cấp 4, 1 trệt nên anh Điền đã lựa chọn thiết kế cho gia đình mình mẫu nhà phố 3 tầng có gác lửng 4,5. x20m. Anh không sinh ra ở mảnh đất Phú Thọ mà lập nghiệp tại đây. Vì vậy, bạn cũng cần xây cho mình một ngôi nhà để ở, để ở và quan trọng hơn là để kinh doanh cho công ty của mình. Vì vấn đề kinh doanh nên anh cần thiết kế thêm gác lửng để toàn bộ tầng 1 được sử dụng làm nơi kinh doanh của gia đình.
Xu hướng thiết kế nhà phố hiện đại 3 tầng có gác lửng diện tích 4,5x20m đang nở rộ, bùng nổ trong thời gian gần đây và chiếm được nhiều cảm tình của nhiều chủ đầu tư bởi sự đa dạng trên thị trường. Cách bố trí mặt bằng công năng và các hình khối kiến trúc vuông vắn, độc đáo mới lạ. Có thể nói, nhà phố 3 tầng hiện đại là kiểu kiến trúc cho phép các kiến trúc sư và chủ đầu tư thỏa sức sáng tạo, thổi hồn từ những tinh hoa mới của các phong cách kiến trúc trên thế giới. vào từng chi tiết và ngóc ngách của ngôi nhà. Hãy cùng giải mã vẻ đẹp cuốn hút và mới lạ của ngôi nhà phố 3 tầng hiện đại có gác lửng 4,5x20m này nhé!
Đơn giá xây dựng và thiết kế nhà phố 3 tầng 4,5x20m
Hiện đơn giá hoàn thiện cho căn nhà này khoảng 5 - 6 triệu / 1m2, giá vật liệu xây dựng ngày càng tăng nên có thể nhiều khu vực giá cũng sẽ tăng cao hơn. Tuy nhiên tại Phú Thọ đơn giá vẫn có thể không quá cao, mời bạn tham khảo đơn giá xây dựng hoàn thiện cho nhà phố 3 tầng này.
- Địa điểm xây dựng: Phú Thọ
- Chủ đầu tư: Anh Điền
- Kích thước nhà: 4,5x20m
- Diện tích sàn 1: 92,79 m2
- Diện tích tầng lửng: 55,07m2
- Diện tích tầng 2: 92,79m2
- Diện tích tầng 3: 92,79m2
- Tổng diện tích xây dựng: 92,79 + 55,07 + 92,79 + 92,79 = 333,44m2
- Tổng giá trị hoàn thiện nhà: 333,44 × 5.500.000 = 1.833.920.000 đồng
Phối cảnh 3D nhà phố 3 tầng có gác lửng 4,5x20m ấn tượng

Không gian ngoại thất của mẫu nhà phố 3 tầng có gác lửng 4,5x20m nổi bật bởi kiến trúc “vuông vắn, góc cạnh”, sự kết hợp hài hòa giữa màu sắc, tiểu cảnh, sân vườn, vật liệu. cho dù hiện đại cao cấp…
Màu sắc là yếu tố được cân nhắc và lựa chọn rất kỹ lưỡng để trang trí ngoại thất nhà phố 3 tầng có gác lửng. Theo yêu cầu và cá tính của chủ đầu tư, các kiến trúc sư của công ty chúng tôi không lựa chọn những gam màu sáng, lòe loẹt mà vẫn mang vẻ đẹp đầy cá tính, duyên dáng và bền vững với thời gian. thời gian cho dự án. Đó là những bức tường sơn trắng tinh làm chủ đạo kết hợp mảng tường lớn cách điệu với màu xám mộc mạc thời thượng của hệ gạch hay gam màu nâu giả gỗ của phào chỉ trang trí. Tất cả được hòa quyện hoàn hảo một cách hoàn mỹ, mang đến cho gia đình chủ đầu tư cảm giác thoải mái, thư thái mỗi khi đi làm về, đồng thời mang đến cho người qua đường cảm giác hài lòng và vui vẻ. mắt khi đi qua.

Mặt khác, phối cảnh mặt tiền của mẫu nhà phố 3 tầng có gác lửng 4,5x20m cũng được lược bỏ hết những chi tiết trang trí rườm rà, rối rắm của phong cách kiến trúc cổ điển và tân cổ điển, thay vào đó, sử dụng sự đơn giản và phẳng của các mảng tường làm điểm nhấn. . Sử dụng nhiều loại vật liệu mới: kính, nhôm - thép, bê tông, thanh, ... được kết hợp với nhau theo tỷ lệ chính xác, cân đối và bố trí theo các khu vực phù hợp và tiện lợi. khiến ngôi nhà trở nên hiện đại, sang trọng và độc đáo hơn bao giờ hết.
Được sử dụng xuyên suốt từ tầng 1 đến tầng 3 là những ô kính lớn của hệ thống cửa giúp ngôi nhà phố 3 tầng có gác lửng hiện đại nhẹ nhàng và mờ ảo hơn. Giảm sự nặng nề của những bức tường bê tông thô, tiết kiệm diện tích, giảm áp lực cho công trình. Ngoài ra, khi sử dụng chất liệu kính còn giúp mở rộng không gian và tầm nhìn, thể hiện được phần sang trọng của nội thất, mang lại hiệu quả cao về mặt thị giác và ánh sáng thu hút khách hàng. ngôi nhà và chủ nhân của nó.

Để tăng thêm sự sinh động và vẻ đẹp cho tổng thể mẫu nhà phố 3 tầng có gác lửng 4.5x20m, kiến trúc sư công ty nhà đẹp đã thiết kế thêm một khoảng sân vườn cũng như giúp tái tạo cảnh quan thiên nhiên cho ngôi nhà. Nhà phố 3 tầng hiện đại. Vì vậy, từ hệ thống ban công, hành lang, sân thượng, sân vườn… đều được bố trí các chậu cây, hoa, tiểu cảnh để mang không khí làng quê vào ngôi nhà và tạo sự gần gũi. hòa mình với thiên nhiên.
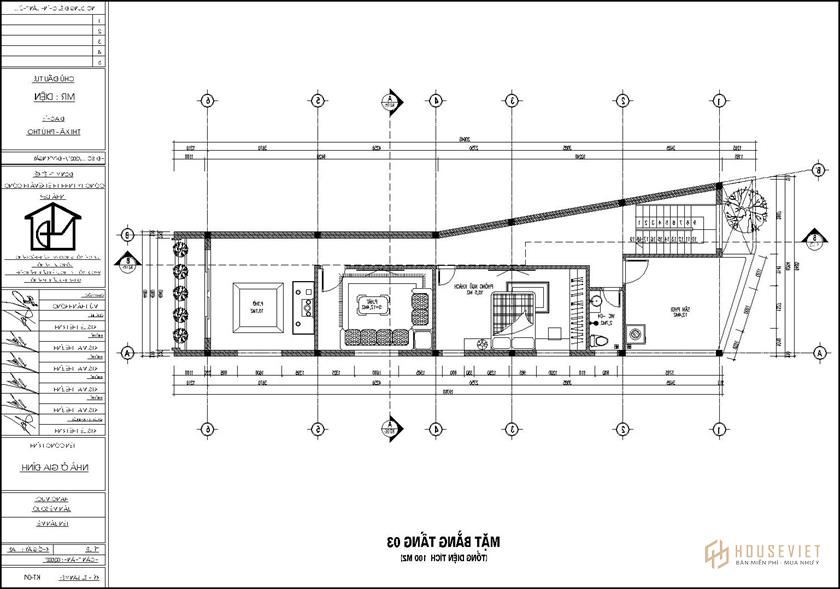
Mặt bằng công năng hợp lý của nhà phố 3 tầng có gác lửng 4,5x20m có 6 phòng ngủ

Theo yêu cầu của gia đình chủ đầu tư, mẫu nhà phố 3 tầng có gác lửng 4,5x20m, tầng 1 được bố trí công năng gồm khu kinh doanh tích hợp bếp ăn và phòng vệ sinh chung tiện nghi.

Tầng lửng gồm phòng khách rộng rãi - nơi tiếp khách, trò chuyện của gia đình chủ đầu tư. Tiếp đến là một phòng ngủ tương đối rộng rãi và một phòng vệ sinh chung với đầy đủ tiện nghi sạch sẽ.

Từ khu vực cầu thang lên tầng 2 là phòng sinh hoạt chung - nơi gia đình quây quần nói chuyện, 3 phòng ngủ sang trọng yên tĩnh - nơi ngủ nghỉ, thư giãn. Một phòng vệ sinh chung được bố trí bên cạnh phòng ngủ rất tiện nghi, đầy đủ các thiết bị vệ sinh cao cấp phục vụ nhu cầu sinh hoạt cá nhân của các thành viên.

Tầng 3 gồm phòng thờ trang nghiêm - nơi thắp hương cho tổ tiên vào các ngày rằm, mùng 1, lễ, giỗ. 1 phòng hát rộng rãi, thiết kế hiện đại và hệ thống cách âm cực tốt. 1 phòng ngủ cho khách đầy đủ nội thất cơ bản để nghỉ ngơi. Cuối cùng là khu vệ sinh chung tiện nghi và sân phơi thoáng mát - nơi phơi đồ của gia đình.
Trên đây là hồ sơ thiết kế nhà phố 3 tầng có gác lửng 4,5x20m. Với kiến trúc khá độc đáo và công năng sử dụng vô cùng tiện lợi. Nếu quý vị và các bạn quan tâm, hấp dẫn và có nhu cầu thiết kế xây nhà hãy liên hệ ngay với công ty chúng tôi để được tư vấn miễn phí.
- Mẫu thiết kế nhà ống 3 tầng 5x20m hiện đại NDNP3T68
- Mẫu thiết kế nhà ống 3 tầng 5x17m tại Thanh Oai Hà Nội NDNP3T67
- Nhà ống 3 tầng hiện đại 5,5x20m tại Bắc Giang NDNP3T66
- Mẫu thiết kế nhà ống 3 tầng 5x24m mái bằng tại Hưng Yên NDNP3T70