Mẫu thiết kế nhà phố 3 tầng có gác lửng 4x15m NDNP3T59
Mẫu nhà phố 3 tầng 4x15m có rất nhiều nhưng mẫu nhà phố 3 tầng 4x15m có gác lửng thì rất ít. Thông thường khi chúng ta xây nhà, rất ít người thích kiểu nhà có gác lửng. Hoặc trong trường hợp không dư dả, không rủng rỉnh tiền bạc thì bạn có thể nghĩ đến mẫu nhà gác lửng. Tuy nhiên, sẽ có những người không nằm trong trường hợp này mà lại thích kiểu nhà có gác lửng hơn. Có lẽ đó chỉ là sở thích cá nhân của chủ sở hữu. Công trình này do chủ đầu tư Nhà Đẹp thiết kế toàn bộ công năng, kiến trúc và phối cảnh 3D của công trình. Tuy nhiên, chủ nhà cũng là người am hiểu về xây dựng nên khi làm việc với chúng tôi thì công việc rất nhanh chóng. Ban đầu khi tôi làm việc với chủ nhà gồm có ông bà, 2 chủ nhà, 2 anh chị và 2 anh chị. Trong đó có khoảng 8 người để bàn bạc và thảo luận cụ thể. Tuy nhiên, sau khi lắng nghe ý kiến của mọi người, tôi đã phác thảo ý tưởng cụ thể và trình bày để mọi người cùng hiểu. Sau khi lập bản kế hoạch cơ bản ban đầu, các bước tiếp theo sẽ đơn giản hơn, vì chúng ta đã có bản kế hoạch ban đầu nên các chi tiết chỉnh sửa sẽ dễ nói và dễ hình dung hơn. Công trình này được Nhà Đẹp thiết kế cho gia chủ có vị trí tại Hà Nội nên cũng rất thuận tiện trong quá trình làm việc, thời gian thiết kế cũng rất nhanh chóng. Mời các bạn cùng tham khảo.
Đơn giá dự kiến xây nhà phố 3 tầng 4x15m có gác lửng
Tại Hà Nội, khi chúng tôi xây nhà thì ngôi nhà của bạn sẽ phụ thuộc vào rất nhiều thứ như vị trí xây dựng có thuận tiện đường phố không? Ô tô lớn có vào nhà được không? Vì đây là những vấn đề liên quan đến toàn bộ quá trình xây nhà, liên quan đến việc cung cấp nguyên vật liệu. Do đó, địa điểm xây dựng càng xa trục đường chính sẽ càng đắt. Hãy tưởng tượng nếu bạn mua một xe chở cát 10m3 và người ta chở đến công trường đổ vào đó thì sẽ rẻ hơn so với việc bạn mua một xe chở cát 10m3 nhưng lại đổ cách nhà khoảng 200m. Khi đó, khoảng cách 200 mét ngõ đó, bạn sẽ phải thuê một chiếc xe nhỏ hơn để chở vật liệu vào nên đơn giá mà chúng tôi đưa ra là 6 triệu tại Hà Nội chỉ là ước tính.
- Chủ đầu tư: Anh Hùng
- Địa điểm xây dựng: Lạc Long Quân - Hà Nội
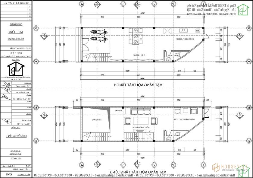
- Diện tích sàn 1: 60 m2
- Diện tích tầng lửng: 42 m2
- Diện tích sàn 2: 66m2
- Diện tích tầng 3: 66 m2
- Tổng diện tích xây dựng: 60 + 42 + 66 + 66 = 234 m2
- Tổng giá trị xây dựng dự kiến: 234 × 6.000.000 = 1.404.000.000 đồng
Vậy để hoàn thiện ngôi nhà phố 3 tầng có gác lửng 4x15m này bạn cần chuẩn bị 1,4 tỷ mới có thể hoàn thiện được.
Mẫu nhà phố 3 tầng có gác lửng 4x15m tại Lạc Long Quân - Hà Nội

Đây là phần mặt tiền của ngôi nhà phố 3 tầng, nếu mảnh đất của bạn rộng và mặt tiền đẹp thì tất nhiên chúng ta cần đầu tư cho phần mặt tiền của ngôi nhà của mình. Nếu nói về thiết kế nhà phố 3 tầng thì có lẽ chúng ta sẽ có rất nhiều cách thiết kế sao cho đẹp mắt.

Đây là mặt tiền chính, toàn bộ tầng 1 và tầng lửng tôi làm trong suốt và đều có cửa kính cố định để lấy sáng cũng như lấy view cho ngôi nhà. Tuy nhiên, bên ngoài, bạn cần sử dụng thêm cửa cuốn để đảm bảo an toàn cho ngôi nhà của mình. Cửa cuốn cũng sẽ có giá thành thi công cao, ở nông thôn chắc hẳn nhiều người sẽ không chấp nhận điều này và có thể làm cửa sắt để bảo vệ vì chi phí xây dựng cao. Tuy nhiên đổi lại thì cửa sắt sẽ không đẹp bằng cửa cuốn của chúng ta.

Nếu yêu thích mẫu thiết kế này, bạn có thể tham khảo thêm công năng bố trí nội thất xem có phù hợp với nhu cầu sử dụng của gia đình mình không nhé.

Tầng 1 sẽ làm khu để xe, bếp, phòng ăn chung của cả nhà. Ban đầu, gia chủ định chuyển bếp và phòng ăn lên gác lửng nhưng điều đó hơi bất tiện vì gác lửng hơi nhỏ để bố trí ăn uống. Và quan trọng hơn là khi bạn lên tầng lửng để ăn uống thì hầu như tầng 1 sẽ không được sử dụng. Nhiều người sẽ hỏi tại sao lại đặt bàn thờ trên tầng 2, vì nếu là người theo đạo thì người ta không kiêng kỵ lắm về vấn đề này.

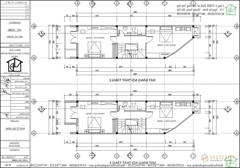
Tầng 3 và tầng 4 được thiết kế giống nhau gồm 2 phòng ngủ và 1 phòng vệ sinh chung. Tuy nhiên, mẫu nhà phố 3 tầng này có phần đất phía sau bị méo nên phòng ngủ ở phía sau sẽ không được đẹp cho lắm. Tuy nhiên, nó vẫn có thể đáp ứng được nhu cầu sử dụng của gia đình.
Bạn đã tham khảo mẫu nhà phố 3 tầng có gác lửng 4x15m này, bạn đánh giá thế nào về mẫu thiết kế này. Hãy cho chúng tôi biết ý kiến của bạn, nếu bạn cần tư vấn hay có nhu cầu thiết kế nhà phố có thể liên hệ với Nhà Đẹp để được tư vấn kỹ hơn.
- Mẫu thiết kế nhà lệch tầng 5 × 20 giá rẻ hiện đại
- Mẫu nhà phố 3 tầng 6x15m có 3 phòng ngủ
- Mẫu nhà phố 3 tầng 4x12m cấp 4 3 phòng ngủ
- Mẫu thiết kế nhà phố 3 tầng 5x11m tại Đông Anh Hà Nội NDNP3T60