Mẫu thiết kế nhà phố 4 tầng 5x20m hiện đại tại Hà Nội NDNP4T18
Thiết kế nhà phố 4 tầng để kinh doanh là một trong những mẫu nhà được nhiều chủ đầu tư tại Hà Nội sử dụng. Đặc biệt là với những lô đất có diện tích 5x20m như một ngôi nhà như thế này. Nếu bạn đang sở hữu mảnh đất 5x20m và muốn mẫu thiết kế nhà phố 4 tầng 5x20m để kinh doanh như ý của gia chủ mà chúng tôi đã thiết kế thì có thể tham khảo hình ảnh và công năng tham khảo. Điểm đặc biệt của mẫu nhà phố này là màu sắc của ngôi nhà được thiết kế chủ yếu là màu xanh lá cây, có thể gia chủ sẽ thích gam màu này nhưng cũng sẽ có ít người chê vì màu họ không thích. Thông thường khi thiết kế nhà, chúng ta thường thiết kế nhà theo những gam màu đơn sắc, ít lòe loẹt như mẫu thiết kế nhà phố 4 tầng này.
Vẫn là phong cách hiện đại quen thuộc, hôm nay công ty chúng tôi sẽ mang đến cho quý vị và các bạn một “món ăn” độc và lạ, đó chính là mẫu thiết kế nhà phố 4 tầng 5x20m sang trọng, ẩn chứa trong đó là sự cuốn hút và vẻ đẹp thời thượng. Mẫu nhà phố 4 tầng hiện đại này không chỉ mang đến cho gia đình chủ đầu tư sự đẳng cấp, tinh tế mà còn vô cùng đẹp mắt và cuốn hút. Ngay từ khi trình bày mặt bằng công năng và hình ảnh 3D, gia đình chủ đầu tư đã gật đầu đồng ý và chốt ngay phương án. Sau đây là toàn bộ thông tin chi tiết về mẫu thiết kế nhà phố 4 tầng 5x20m độc đáo này, mời quý vị và các bạn cùng theo dõi.
Thông tin về mẫu thiết kế nhà phố 4 tầng 5x20m
- Địa điểm xây dựng: Hà Nội
- Chủ đầu tư: Chị Tâm
- Diện tích nhà: 5x20m
- Diện tích sàn 1: 100m2
- Tổng diện tích xây dựng: 400m2
- Tổng giá trị hoàn thiện: 400 × 6.000.000 = 2.400.000.000 đồng
Phối cảnh 3D mẫu thiết kế nhà phố 4 tầng hiện đại

Mẫu nhà phố 4 tầng 5x20m với phong cách thiết kế mang hơi thở hiện đại với vẻ đẹp trẻ trung, năng động và vô cùng cuốn hút. Căn nhà phố cũng xuất hiện với gam màu xanh ngọc làm chủ đạo giúp không gian ngoại thất trở nên nổi bật và trở nên ấn tượng, khác biệt trong mắt mọi người nhìn. Màu xanh ngọc là gam màu tinh tế, không quá cầu kỳ, trần trụi nhưng vẫn toát lên vẻ đẹp rất riêng không trùng lặp với bất kỳ mẫu nhà phố xung quanh nào. Không quá nhàm chán với những gam màu cách điệu, kết hợp với những gam màu khác như trắng tạo thành một tổng thể hài hòa và cân đối.

Trong mẫu thiết kế nhà phố 4 tầng 5x20m hiện đại này, kiến trúc sư đã sử dụng gạch ốp toàn bộ mặt tiền tầng 1 với gam màu vàng nóng vô cùng nổi bật, mang đến sự đồng nhất về màu sắc cho toàn bộ không gian. ngoại thất. Gạch ốp tường được biết đến với độ bền cao, độ tương phản ánh sáng tốt, giúp ngôi nhà trở nên sáng bóng, lung linh và vô cùng đẳng cấp. Loại gạch này rất khó bám bẩn, rất dễ vệ sinh nên ngày nay được rất nhiều chủ đầu tư yêu thích và lựa chọn.

Trong mẫu thiết kế nhà phố 4 tầng 5x20m được lựa chọn và triển khai phương án mái bằng. Nhà mái bằng có kết cấu gồm một khối mái được đổ bê tông dày dặn trải trên một mặt phẳng với độ dốc gần như bằng không. Mái bằng rất bền và chắc chắn nên có khả năng chống cháy, chống chịu lực rất hiệu quả. , nén tối ưu khỏi tác động của các yếu tố thời tiết như gió bão. Do mái bằng có độ dốc rất nhỏ, khả năng thoát nước mưa kém nên khi thi công thường yêu cầu thiết kế hệ thống thoát nước tốt để tránh hiện tượng thấm, rêu mốc làm hỏng vẻ đẹp thẩm mỹ của công trình. nhà ở. Phương án mái bằng còn có những ưu điểm mà ít người để ý đến như chi phí xây dựng thấp, vật liệu dễ kiếm, thời gian thi công ngắn…

Đối với nhà phố chúng ta thường biết rằng nó có nhiều nhược điểm là diện tích mặt tiền không quá rộng, chiều sâu khá dài. Vì vậy, để đảm bảo các yếu tố như: ánh sáng tự nhiên đầy đủ, thông gió tốt và tránh bí bách, ngột ngạt, khó chịu thì không gian phía trước được bố trí hệ thống ban công. khá rộng rãi. Ban công thường có vai trò rất lớn trong việc giúp điều hòa không khí, là nơi các thành viên có thể đón nắng, đón gió tự nhiên dễ dàng và thư giãn. Nó cũng có thể dùng để trang trí với hệ thống cây xanh, giàn hoa để tăng thêm vẻ đẹp tươi mới, tràn đầy sức sống và màu sắc cho tổng thể ngôi nhà.
Hệ thống cửa của mẫu thiết kế nhà phố 4 tầng 5x20m được sử dụng hoàn toàn bằng nhôm kính xingfa cao cấp giúp lấy sáng, không khí trong lành, mang đến sự rộng rãi, thoáng mát và vô cùng mới mẻ. Cửa kính còn có những ưu điểm khá nổi bật như giúp mang đến không gian nội thất bên trong những nguồn ánh sáng có lợi từ thiên nhiên. Ngoài ra, mỗi khi các thành viên trong gia đình chủ đầu tư mở cửa, cả không gian bên trong sẽ tràn ngập không khí trong lành và những làn gió mát lành.
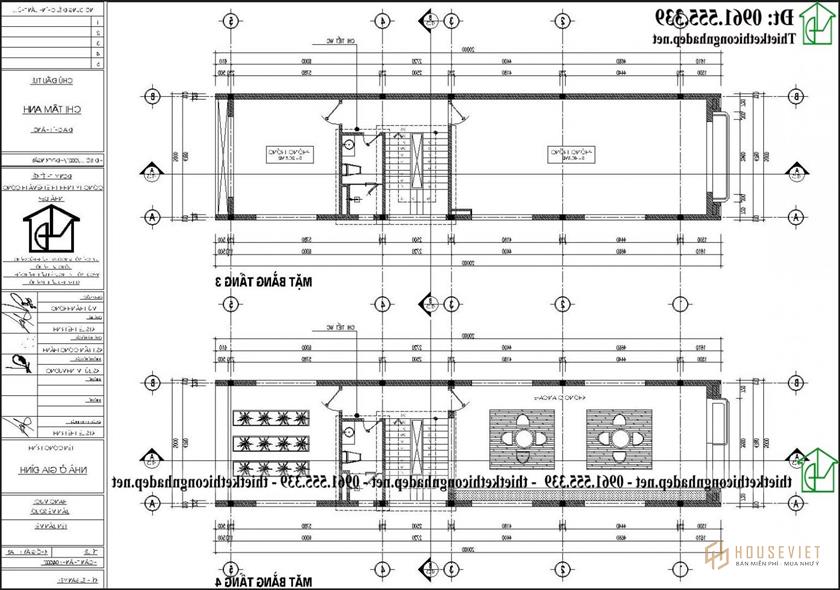
Mặt bằng công năng nhà phố 4 tầng 5x20m

Nhìn chung, mặt bằng công năng của mẫu thiết kế nhà phố 4 tầng 5x20m này được bố trí rất thông thoáng từ tầng 1 đến tầng 5 và được thiết kế rất hài hòa thuận tiện cho việc di chuyển và sử dụng.
Do gia đình chủ đầu tư xây dựng và thi công chia phòng đầy đủ với mục đích cho các công ty thuê và làm văn phòng nên các kiến trúc sư của công ty chúng tôi chưa thiết kế nội thất bên trong. . Để các công ty khi thuê mặt bằng có thể thoải mái thiết kế những view đẹp theo ý thích của mình.

Trên đây là toàn bộ thông tin về mẫu thiết kế nhà phố 4 tầng 5x20m được thiết kế theo phong cách kiến trúc hiện đại. Ngôi nhà này chứa đựng trong nó tất cả những gì độc đáo nhất, những gì tinh túy nhất từ nhiều năm kinh nghiệm quý báu của các kiến trúc sư công ty Nhà Đẹp chúng tôi. Nếu quý vị và các bạn cảm thấy ngôi nhà phố 4 tầng này đẹp và có nhu cầu thiết kế nhà hãy liên hệ với chúng tôi qua số Hotline để được giải đáp những thắc mắc một cách chi tiết nhất.
- Mẫu thiết kế nhà phố 4 tầng 4x8m tại Hà Nội đẹp giá rẻ NDNP4T17
- Mẫu thiết kế nhà phố 4 tầng 5x14m hiện đại tại Thái Bình NDNP4T16
- Nhà phố 4 tầng 2 mặt tiền 6x9m tại Hà Nội NDNP4T19