Mẫu thiết kế nhà phố 4 tầng 6,5x12m mái bằng tại Hưng Yên NDNP4T15
Cuộc sống vẫn trôi nhanh quá, chớp mắt một cái cũng không ngoảnh lại được. Qua một ngày, tưởng chừng như chỉ là trôi qua một ngày trong cuộc đời, nhưng so với một khoảng thời gian nhất định thì đó là một chặng đường rất dài. Một buổi chiều gần cuối năm 2020, chúng tôi gặp anh Hòa để bàn về việc thiết kế nhà phố 4 tầng đẹp ở quê. Đối với chúng tôi, đây không chỉ là một buổi ký kết hợp đồng thiết kế nhà phố 4 tầng 6,5x12m tại Hưng Yên. Nhưng đó cũng là một hành trình tràn đầy ý nghĩa. Một câu chuyện tương ứng với cuộc đời, những trải nghiệm và những triết lý sống sâu sắc của một người từng trải qua nhiều năm bôn ba, kiếm sống ở nước ngoài và quyết định từ bỏ mọi thứ để trở về Việt Nam sinh sống. quê hương yêu dấu của mình. Mẫu thiết kế nhà phố 4 tầng 6,5x12m đẹp hiện đại dưới đây chứa đựng rất nhiều tâm tư, nguyện vọng của gia đình chủ đầu tư. Hãy cùng ngồi lại đây với công ty của chúng tôi và lắng nghe tôi kể một câu chuyện của một khách hàng mà chúng tôi luôn trân trọng và sẽ không bao giờ quên!
Giới thiệu mẫu thiết kế nhà phố 4 tầng tại Hưng Yên
- Chủ đầu tư: Anh Hòa
- Địa điểm xây dựng: Kim Động - Hưng Yên
- Diện tích: 6,5x12m
- Tổng diện tích: 312m2
- Kinh phí dự kiến: 1,56 tỷ đồng
Phối cảnh 3D mẫu thiết kế nhà phố 6,5x12m 4 tầng đẹp tại Hưng Yên

Nhìn toàn cảnh mẫu thiết kế nhà phố hiện đại 6,5x12m 4 tầng có thể thấy các mảng tường bên ngoài được sơn màu kem cao cấp. Màu kem từ lâu đã trở thành gam màu trung tính phổ biến trong xây dựng, kiến trúc và có thể dễ dàng ứng dụng cho mọi phong cách thiết kế từ cổ điển đến tân cổ điển. Với kiến trúc hiện đại cũng vậy, màu kem có tác dụng tạo cảm giác không gian nhà phố 4 tầng như rộng rãi và thoáng mát hơn. Sự trong sáng, sáng bóng của gam màu kem còn thể hiện sự năng động, tươi mới cho toàn bộ ngoại thất, góp phần tạo nên vẻ trẻ trung, trong sáng và thuần khiết cho tổng thể không gian.
Ngoài gam màu kem tinh tế và đẹp mắt của sơn tường, kiến trúc sư còn sử dụng gạch nâu để ốp tường cho khu tiểu cảnh. Đá ốp tường không chỉ bảo vệ khối tường của ngôi nhà phố 4 tầng hiện đại khỏi ẩm mốc, rêu mốc, thấm dột mà còn tôn lên vẻ sang trọng, tinh tế và sang trọng cho không gian.

Hệ thống cửa kính khung nhôm cao cấp màu đen cũng được coi là giải pháp giúp nới rộng không gian nội thất. Độ trong suốt và độ bền rất cao của kính cường lực vừa giúp đảm bảo an toàn cho toàn bộ ngôi nhà vừa lấy ánh sáng tự nhiên vào bên trong tạo không gian mở, thoáng đãng, giúp xóa tan định kiến về sự cưỡng chế. sự gò bó, bí bách, khó chịu của nhà phố 4 tầng nói chung và của các mẫu thiết kế nhà phố cao tầng khác nói riêng.
Hệ mái bằng của mẫu thiết kế nhà phố hiện đại 6,5x12m 4 tầng có 4 thành phần cấu tạo: lớp chịu lực, lớp mái dốc, lớp chống thấm, lớp chống nóng và lớp cách nhiệt. Với ưu điểm là độ dốc rất nhỏ từ 5-8%, mái bằng có thể tránh và chịu rất ít áp lực gió, kết cấu mái bằng không chỉ bền vững, chắc chắn theo thời gian mà còn có khả năng chống cháy. , khả năng chống nóng rất cao, đặc biệt kiến trúc mái bằng là hình thức kiến trúc rất phù hợp với mỹ quan đô thị của các công trình nhà ở liền kề ở các tỉnh thành nước ta.

Nói đến nhà phố 4 tầng hiện đại người ta nghĩ ngay đến mẫu nhà này vào mùa hè rất nóng, rất bí, mang lại cảm giác rất khó chịu. Nhưng đừng lo lắng nhờ sự tài hoa của các kiến trúc sư nhiều năm kinh nghiệm đã giúp giải quyết rất tốt vấn đề này. Bằng cách thiết kế rất nhiều hệ thống cây xanh, tiểu cảnh ở ban công, cửa sổ, mặt tiền của ngôi nhà. Từ đó tạo không gian xanh cho mẫu thiết kế nhà phố 4 tầng trở nên thông thoáng, mát mẻ và trong lành hơn. Hệ thống cây xanh giúp tăng vẻ đẹp sang trọng và tinh tế cho ngôi nhà, không chỉ giúp điều hòa không khí mà còn giúp mang lại lợi ích về sức khỏe cho các thành viên trong gia đình chủ đầu tư sinh sống bên trong.
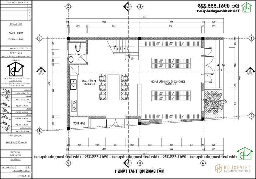
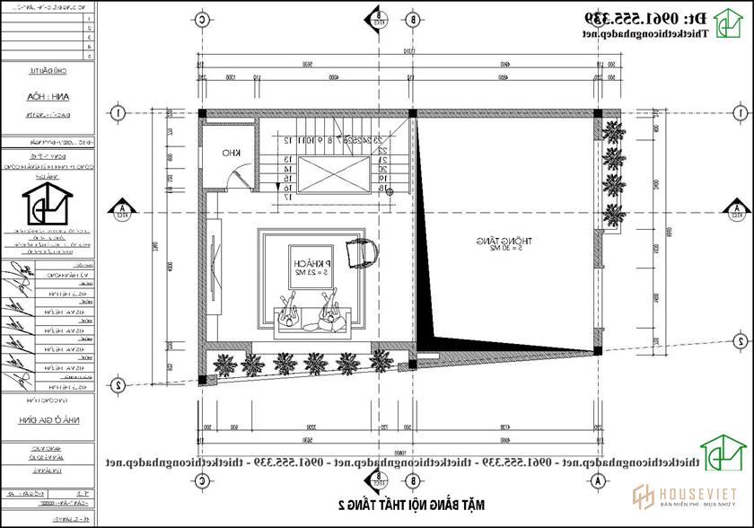
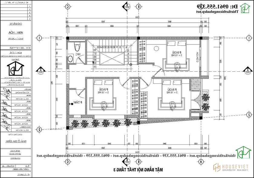
Mặt bằng công năng nhà phố 4 tầng hiện đại

Đến với công năng tầng 1 của mẫu thiết kế nhà phố 6,5x12m 4 tầng đầu tiên là không gian kinh doanh cửa hàng sách của gia chủ với hệ thống giá sách và thiết bị được bố trí khoa học. Tiếp đến là khu vực bếp với bàn ăn rộng rãi và các thiết bị hiện đại phục vụ cho việc nấu nướng và ăn uống của các thành viên. Một phòng vệ sinh chung được bố trí gần khu vực bếp để mang lại sự thuận tiện cho sinh hoạt cá nhân.

Lên đến tầng 2 gồm 1 phòng khách và 1 kho. Phòng khách được thiết kế với toàn bộ nội thất hiện đại, cao cấp - là nơi tiếp khách, quây quần trò chuyện, các thành viên bày tỏ tình cảm với nhau. 1 kho đối diện phòng khách được tận dụng để những đồ đạc, thiết bị không cần thiết của gia đình.

Từ cầu thang lên không gian tầng 3 là nơi nghỉ ngơi yên tĩnh gồm 3 phòng ngủ rộng rãi, thoáng mát với nhiều hệ thống cửa sổ và được thiết kế phù hợp với sở thích của từng thành viên trong gia đình. Cuối nhà là không gian gồm 1 phòng vệ sinh và 1 vệ sinh chung tạo sự thoải mái, dễ chịu cho các thành viên sinh hoạt riêng tư.

Tầng 4 là không gian giải trí và thờ cúng của gia đình chủ đầu tư với phòng thờ rộng rãi là nơi có thể mang lại những điều may mắn, tốt lành cho con cháu khi sinh sống tại nhà phố 4 tầng hiện đại này. Bên cạnh phòng thờ là không gian tầng thượng, nơi các thành viên trong gia đình thả hồn vào khung cảnh thiên nhiên để thư giãn, quên đi những mệt mỏi, căng thẳng sau một ngày dài làm việc. Cuối cùng, tầng 4 của mẫu thiết kế nhà phố 6,5x12m 4 tầng là khu vực phơi đồ mở, đây là khu vực phơi quần áo và các vật dụng trong gia đình.
Mọi thông tin về mẫu thiết kế nhà phố 4 tầng 6,5x12m chúng tôi đã trình bày khá đầy đủ trong bài viết này. Nếu bạn có thắc mắc và nhu cầu thiết kế, hãy liên hệ với kiến trúc sư của công ty chúng tôi để nhận được sự tư vấn và giải đáp thắc mắc một cách nhiệt tình.
- Mẫu thiết kế nhà ống 4 tầng 4x15m tại Hải Dương NDNP4T14
- Mẫu thiết kế nhà phố 3 tầng 1 tum 4x14m tại Hà Nội NDNP4T13
- Mẫu thiết kế nhà ống 4 tầng 5x14m hiện đại tại Thái Bình NDNP4T16