Mẫu thiết kế nhà phố 5 tầng 3x12m tại Hà Nội NDNP5T7
Đây là một trong những mẫu thiết kế nhà phố khung thép 5 tầng 3x12m do công ty Nhà Đẹp thiết kế cho anh Ngọc ở Quận Đống Đa - Hà Nội. Anh đã đến văn phòng công ty nhà đẹp để bàn bạc về thiết kế cho ngôi nhà của mình. Với tiêu chí của anh là thiết kế thi công nhà nhanh nhất, khoa học nhất để tiết kiệm chi phí và tiết kiệm thời gian thi công. Bởi thời gian xây nhà càng lâu càng gây nhiều bất tiện trong cuộc sống và sinh hoạt. Hiện tại anh và gia đình đang ở tại căn nhà cũ, tuy nhiên điều kiện hiện tại chưa thể đáp ứng hết nhu cầu của gia đình nên giải pháp đưa ra là xây nhà mới, xây nhà mới. nhanh nhất có thể.
Xem thêm: Mẫu thiết kế nhà ống 5 tầng 4x15m hiện đại tại Hà Nội NDNP5T6
Thông tin về mẫu thiết kế nhà phố 5 tầng 3x12m
Hiện đơn giá sắt thép xây dựng khá cao, cao gần gấp đôi so với thời điểm cuối năm 2021 nên sử dụng giải pháp nhà khung thép hiện nay không phải là giải pháp hay. Do giá sắt thép tăng cao nên khi xây nhà, giá xây nhà phố 5 tầng, giá hoàn thiện nhà phố cũng sẽ tăng theo.
- Địa điểm xây dựng: Đống Đa - Hà Nội
- Chủ đầu tư: Anh Tuấn Ngọc
- Diện tích nhà: 3x12m
- Tổng giá trị hoàn thiện: 1 tỷ đồng
Phối cảnh 3D mẫu thiết kế nhà phố khung thép 5 tầng 3x12m
Ngôi nhà phố khung thép 5 tầng 3x12m đẹp mang hơi thở của phong cách hiện đại, hiện lên với vẻ trẻ trung và vô cùng năng động. Để không gian nhà ống thêm nổi bật và thu hút, kiến trúc sư đã khéo léo sử dụng gam màu trắng trang nhã làm nổi bật những đường nét trang trí cuốn hút. Không quá nhàm chán, màu sắc ở không gian ngoại thất cũng được cách điệu, tránh sự lặp lại, ở tầng 1 đến tầng 5, viền tường hai bên được ốp bằng đá hoa cương độc đáo, có độ bền cao. , tạo thành một thể thống nhất vô cùng cân xứng.
Xem thêm: Mẫu thiết kế nhà ống 5 tầng 8x18m tại Hà Nội NDNP5T5
Điều kiện để tạo nên sự thành công vượt bậc cho mẫu thiết kế nhà khung thép 5 tầng 3x12m đẹp này khiến nó trở nên bùng nổ và được ưa chuộng, gắn liền với cái mác đỉnh cao của thiết kế thì không thể không kể đến việc sử dụng những vật liệu cao cấp để thi công.
Tại tầng tum của mẫu thiết kế nhà phố khung thép 5 tầng 3x12m đẹp được bố trí ban công rộng rãi nhằm mục đích mang đến những khoảng thư giãn, không gian xanh cho gia đình chủ đầu tư. Không chỉ vậy, nó còn tạo ra một không gian trong lành, có thể được sử dụng với nhiều lợi ích độc đáo và chức năng khác nhau.
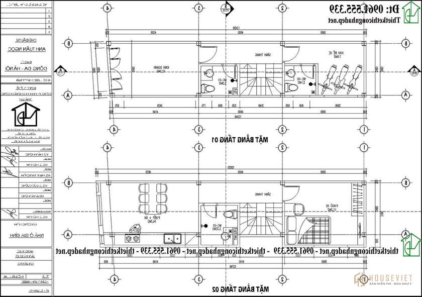
Mặt bằng công năng mẫu thiết kế nhà khung thép tiền chế

Bước vào tầng 1 của mẫu thiết kế nhà phố khung thép 5 tầng 3x12m gồm 1 phòng kinh doanh mặt tiền và khu vực để xe gia đình. 2 phòng vệ sinh chung được bố trí ở bên trái và bên phải cầu thang rất thuận tiện cho việc sử dụng và sinh hoạt cá nhân của các thành viên.
Tầng 2: 1 phòng vệ sinh chung tiện nghi, 1 phòng bếp + ăn được bố trí 1 bàn bếp rộng rãi và được trang bị đầy đủ các thiết bị hiện đại tiên tiến nhất rất tiện lợi cho việc nấu nướng trong gia đình. 1 phòng ngủ cuối nhà rất yên tĩnh - thích hợp để nghỉ ngơi, thư giãn.

Tầng 3 có hai phòng ngủ và một phòng vệ sinh chung, được trang bị đầy đủ nội thất trang trí theo sở thích của từng thành viên tạo sự thoải mái nhất, có giấc ngủ ngon, nạp lại năng lượng sau một ngày làm việc. và học tập mệt mỏi.
Tầng 4: 1 phòng ngủ thoáng mát, 1 phòng thờ trang trọng và 1 phòng vệ sinh chung.

Trên cùng là tầng tum được bố trí phòng giặt hiện đại và 2 khoảng sân thượng rộng rãi nhất được sử dụng làm khu trồng cây xanh kết hợp sân phơi quần áo. Ở tầng này, gia đình chủ đầu tư có thể thoải mái trồng cây xanh, rau sạch vì đã có mái che phía trên, hoàn toàn không phải lo lắng về nắng mưa của thời tiết.
Xem thêm: Thiết kế nội thất nhà phố, thiết kế nội thất nhà phố 5 tầng 4x6m NDNP5T4