Mẫu Thiết Kế Nhà Sàn 4x15m Thu Hút Mọi Ánh Nhìn
Mẫu thiết kế nhà ống lệch tầng 4x15m Dưới đây mà Nội Thất Đương Đại muốn giới thiệu đến bạn đọc là một trong những mẫu nhà được rất nhiều người yêu thích. Đặc biệt, thiết kế này được coi là giải pháp kiến trúc đón nắng gió mà vẫn đảm bảo không gian sống của gia đình. Cùng nhau tham quan nhé!
Yêu cầu của chủ đầu tư đối với mẫu thiết kế nhà 4x15m. nhà ống lệch tầng
Anh Sơn: “Gia đình tôi đang có ý định xây nhà trong thời gian sắp tới. Diện tích khu đất là 4x15m. Do mặt tiền hẹp và chiều sâu dài nên gia đình tôi lựa chọn mẫu nhà ống lệch tầng. Kiến trúc thiết kế đơn giản nhưng vẫn phải tinh tế, ngoại thất tươi sáng. Nhà 3 tầng với công năng sử dụng gồm 1 phòng ngủ cho vợ chồng tôi, 1 phòng ngủ cho con gái, 1 phòng sinh hoạt chung, 1 phòng làm việc và phòng khách, bếp. Thiết kế không gian của các phòng phải liên kết với nhau để thuận tiện cho việc di chuyển. Đây là số điện thoại của tôi 09638xxxxx. Mong công ty tư vấn giúp gia đình tôi ”.
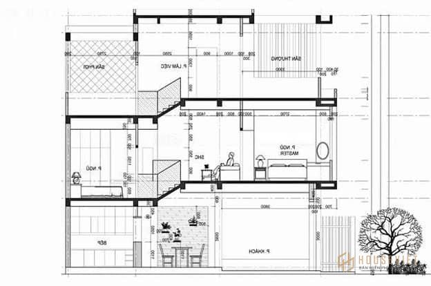
Mặt bằng công năng sử dụng 4x15m. nhà ống lệch tầng
Sau khi nhận được yêu cầu của chủ đầu tư, kiến trúc sư đã lên ý tưởng thiết kế mặt bằng như sau:
Nhà có các tầng khác nhau thì cầu thang cũng được thiết kế khác nhau nên không gian sống cũng sẽ khác nhau. Tầng 1 thiết kế sân trước để xe của gia đình. Phòng khách tiếp giáp với cửa ra vào và thông với phòng ăn. Bên trong là phòng bếp được thiết kế gần sân sau giúp không gian luôn thoáng mát.
Tầng 2 của Mẫu thiết kế nhà ống lệch tầng 4x15m 1 phòng ngủ chính hướng ban công phía trước. Phòng ngủ của con được thiết kế lệch tầng với phòng ngủ chính. Khoảng thông tầng ở giữa được tận dụng làm không gian sinh hoạt chung của cả gia đình.
Sảnh cầu thang tầng 3 được bố trí làm phòng làm việc của vợ chồng anh Sơn. Cạnh đó là phòng giặt là. Phần không gian còn lại là sân thượng với nhiều tiểu cảnh. Tạo không gian xanh cho ngôi nhà.

Cùng chiêm ngưỡng phối cảnh ngoại thất và nội thất của ngôi nhà 4x15m. thiết kế nhà ống lệch tầng
Phối cảnh bên ngoài
Mặt tiền thiết kế nhà ống khá thoáng, kiến trúc hiện đại và thiết kế bố cục tự do không tuân theo nguyên tắc nào. Hình khối vuông vắn, thể hiện sự bề thế, vững chãi cho ngôi nhà ống.
Tầng 1 được thiết kế cổng sắt trắng sáng cùng tông với màu chủ đạo của ngôi nhà. Nổi bật trên gam màu trắng là hàng rào bao quanh màu xám đầy nghệ thuật. Tất cả các kệ đều phù hợp với hình khối của ngôi nhà tạo hiệu ứng thẩm mỹ cao.
Ban công tầng 2 được thiết kế với các thanh nhôm trắng chạy thẳng lên tầng 3, thông tầng mái với sự đan xen ngang dọc của các thanh nhôm màu nâu. Mang đến cho ngôi nhà ống vẻ đẹp tinh tế, hiện đại và cuốn hút. Tiểu cảnh nhỏ ở ban công, sân thượng vừa tạo điểm nhấn cho ngôi nhà vừa giúp không gian luôn trong lành, mát mẻ.
Phối cảnh nội thất
Bước vào nhà là một không gian vô cùng thoáng đãng, xanh mát. Phòng khách được thiết kế đơn giản, gọn gàng. Sự phối hợp màu sắc giữa các chi tiết mang đến sự tinh tế và sang trọng cho không gian. Bộ sofa đẹp và ấn tượng được kê sát tường nhằm tiết kiệm tối đa diện tích sử dụng. Đèn chùm trang trí giúp không gian nổi bật, tạo cảm giác mới lạ, ấm cúng.
Tầng 2 của Mẫu thiết kế nhà ống lệch tầng 4x15m Là không gian sinh hoạt riêng tư của các thành viên trong gia đình. Phòng ngủ chính tràn ngập ánh sáng với cửa kính lớn. Rèm cửa màu be giúp cản nắng để gia chủ có giấc ngủ ngon hơn. Nội thất gọn gàng, ngăn nắp. Tủ quần áo được thiết kế vừa sang trọng vừa tiết kiệm diện tích.

Đối diện là phòng ngủ của con gái. Không gian vô cùng ngọt ngào với tông hồng bao trùm. Căn phòng được trang bị đầy đủ tiện nghi để thuận tiện cho việc sinh hoạt của bé. Các kết cấu và trang trí đều rất đáng yêu. Chiếc đèn trần hình bông hoa vừa giúp không gian gần gũi hơn vừa giúp bé có giấc ngủ ngon hơn.
Phòng gia đình được trang bị đầy đủ nội thất. Đây vừa là phòng đọc sách vừa là phòng xem phim của cả gia đình. Không gian này có lẽ là nơi lý tưởng để mọi người quây quần bên nhau sau một tuần làm việc và học tập mệt mỏi.
Một số mẫu thiết kế nhà ống lệch tầng 4x15m đẹp, hiện đại
Thiết kế nhà ống lệch tầng đang là xu hướng thiết kế được nhiều gia đình lựa chọn. Để đáp ứng nhu cầu của khách hàng, Nội Thất Đương Đại luôn cập nhật những mẫu mã mới nhất. Hãy xem một số mẫu nhà dưới đây.

Trên đây là Mẫu thiết kế nhà ống lệch tầng 4x15m chi tiết của anh Sơn. Nếu bạn đang cần tư vấn chính xác về các mẫu nhà đẹp hãy liên hệ với chúng tôi để được hỗ trợ nhanh nhất.