Mẫu thiết kế nhà tân cổ điển 4 tầng mặt tiền 5m tại Hải Phòng - SH NOP 0182
Theo dữ liệu chúng tôi thu thập được, thiết kế nhà ống là giải pháp xây dựng được áp dụng rộng rãi tại các khu đô thị hiện nay. Cũng do quỹ đất xây dựng hạn hẹp nên thông thường, nhà phố chỉ có diện tích đất mặt tiền khá thấp.
Gia đình anh Duẩn (quận Hồng Bàng, Hải Phòng) sở hữu mảnh đất xây dựng nhỏ với kích thước 5 × 16,5m đã tìm đến Công ty Cổ phần Tư vấn Xây dựng Sơn Hà (SHAC, Sơn Hà Architecture) để được tư vấn. câu hỏi thiết kế nhà ống tân cổ điển. Đặc biệt hơn, đây là mẫu nhà phố 4 tầng mặt tiền 5m rộng rãi. Chúng tôi cũng đã lên phương án thiết kế và triển khai hồ sơ kỹ thuật thi công cho gia đình anh Duẩn. Dự kiến, ngôi nhà sẽ hoàn thành và đưa vào sử dụng vào cuối năm nay.
Với sự hiện diện của ngôi nhà này, lĩnh vực thiết kế nhà phố tại hải phòng bởi SHAC mang đến một mảng màu mới vô cùng sống động và ấn tượng. Mời các bạn cùng đến với hồ sơ chi tiết mẫu nhà ống 4 tầng tân cổ điển mặt tiền 5m tại Hải Phòng.
- Tầng 1: Phòng khách; bếp và phòng ăn; phòng vệ sinh
- Tầng 2 + 3 + 4: Mỗi tầng 2 phòng ngủ có vệ sinh khép kín.
- Tầng 4: Sân chơi; sân phơi; bàn thờ; Kho
NỘI DUNG CHÍNH
- Đầu tiên ĐẶC ĐIỂM CỦA CÁC MÔ HÌNH CÔNG BỐ
- 2 MẶT TIỀN 5M THIẾT KẾ ĐẸP NHẤT NHÀ ỐNG CỔ ĐIỂN TÂN CỔ ĐIỂN TẠI HẢI PHÒNG
- 3 HÌNH ẢNH THỰC TẾ THI CÔNG Nhà ống 4 tầng:
- 4 BẢN VẼ MẶT BẰNG CÔNG NĂNG CỦA NHÀ phố 4 tầng TÂN CỔ ĐIỂN tại Hải Phòng
ĐẶC ĐIỂM CỦA CÁC MÔ HÌNH CÔNG BỐ
Đối với một giải pháp thiết kế nhà ống tân cổ điển Trong chừng mực có thể, chúng ta phải hiểu rõ đặc điểm của loại hình nhà ở này.

Dưới đây là một số đặc điểm của nhà phố:
Các căn nhà phố thường nằm san sát nhau và không có diện tích sân vườn (sử dụng toàn bộ diện tích khu đất để xây nhà, không có diện tích thừa cho sân vườn xung quanh). Cũng chính vì nhược điểm này mà khi thiết kế ngoại thất hay nội thất nhà phố, các kiến trúc sư thường đưa những khoảng xanh vào thiết kế, dù nhỏ nhưng cũng khiến ngôi nhà trở nên tự tin và được nhiều người yêu thích. Bao nhiêu cảm hứng.
Cấu trúc của mẫu nhà ống thường sâu, chiều ngang hẹp, khó thiết kế, đặc biệt tập trung miêu tả kiến trúc mặt tiền, làm đẹp mặt tiền trong khi 3 mặt còn lại không thể làm đẹp nên cần rất nổi bật trong thiết kế kiến trúc. nhà mặt tiền.
Do diện tích nhỏ nên thiết kế nhà phố nhiều tầng đáp ứng được nhu cầu về không gian sống của mọi người. Thông thường, phổ biến nhất là nhà phố từ 3 đến 5 tầng. Tuy nhiên, nhiều gia đình muốn sử dụng nhà phố để kinh doanh hoặc cho thuê thường làm số tầng cao hơn từ 6 đến 7 tầng. Tuy nhiên, nếu chỉ phục vụ nhu cầu ở và sinh hoạt thì với những gia đình vừa và nhỏ hiện nay ở nước ta, những mẫu thiết kế nhà phố 4 - 5 tầng đang được ưa chuộng và sử dụng phổ biến hơn cả.
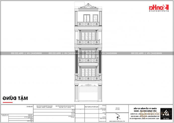
MẶT TIỀN 5M THIẾT KẾ ĐẸP NHẤT NHÀ ỐNG CỔ ĐIỂN TÂN CỔ ĐIỂN TẠI HẢI PHÒNG
Nếu phong cách kiến trúc hiện đại tối giản và lược bỏ những chi tiết trang trí cầu kỳ, rườm rà thì phong cách kiến trúc tân cổ điển vẫn giữ được những đường nét kiến trúc tinh tế. Bên cạnh đó, một chút hoài cổ thể hiện ở các chi tiết cột, tường, ban công các tầng vẫn mang đến cảm giác bề thế sang trọng mà chủ đầu tư mong muốn có được.
Khi vận dụng vật liệu vào các chi tiết thiết kế, các kiến trúc sư SHAC đã sử dụng khá thành thạo và thực sự phát huy được vai trò của vật liệu đó. Cụ thể, mặc dù xuất hiện nhẹ nhàng ở các chi tiết cột và tường với những đường thẳng đứng nghiêm ngặt nhưng hệ thống cột giả cùng với thiết kế ban công đối lập lại góp phần tạo nên sự mặt tiền nhà ống tân cổ điển sức hút sâu sắc.

Cũng xin chia sẻ với các bạn rằng phong cách kiến trúc tân cổ điển thiên về trang trí các đường nét, màu sắc được phối hợp một cách tinh tế và hài hòa nên kiến trúc sư đã sử dụng toàn bộ gam màu trắng trong kiến trúc. kiến trúc để thể hiện sự chân thành và thiện cảm với mắt.
Ý nghĩa của màu này là mát mẻ, hy vọng, tươi sáng, sạch sẽ và đơn giản. Việc gam màu trắng được sử dụng cho toàn bộ mặt tiền của mẫu thiết kế nhà phố 4 tầng mang đến không gian tối ưu nhất cho người sử dụng. Với những ý nghĩa đó, chủ đầu tư, anh Duẩn và các thành viên trong gia đình rất hài lòng với gam màu trắng ngoại thất mà KTS SHAC đã sử dụng cho ngôi nhà của mình.

HÌNH ẢNH THỰC TẾ THI CÔNG Nhà ống 4 tầng:
BẢN VẼ MẶT BẰNG CÔNG NĂNG CỦA NHÀ phố 4 tầng TÂN CỔ ĐIỂN tại Hải Phòng
Để đánh giá công năng sử dụng của từng phương án thiết kế nhà ở, chúng ta cần đặt ra những hoàn cảnh và nhu cầu thực tế khác nhau của mỗi gia đình. Mặt bằng công năng của mẫu nhà phố tân cổ điển 4 tầng của gia đình anh Duẩn chỉ đơn giản là dành cho sinh hoạt của gia đình (không kết hợp kinh doanh và không bố trí các phòng có chức năng giải trí như phòng khách). karaoke, gym, Jacuzzi, ...)
Mời các bạn xem các mặt bằng công năng của nhà phố tại đây:




Trên đây là hồ sơ thiết kế nhà ống mặt tiền 5m tân cổ điển được SHAC tại Hải Phòng bàn giao cho gia đình anh Duẩn. Trong bài viết dưới đây, chúng tôi sẽ tiếp tục giới thiệu đến các bạn những hình ảnh thể hiện phương án thiết kế nội thất của công trình. Xin cảm ơn quý khách hàng đã theo dõi bài viết.
Quý vị cũng có thể xem thêm bộ sưu tập thiết kế nhà đẹp của SHAC tại đây:
- Mẫu thiết kế biệt thự cao cấp 3 tầng tiện nghi nhất
- 25+ Mẫu phòng ngủ hiện đại dễ hạ gục các cặp đôi mới cưới
- Hướng dẫn cách tính bước chính xác nhất cho nhà dân dụng
- Xu hướng thiết kế biệt thự đẹp 2016
- 100+ mẫu biệt thự kiểu pháp đẹp nhất Hà Nội
- Mặt tiền 8m có nên xây nhà ống?
- Cách bố trí phòng thờ trong nhà ống chuẩn và hợp phong thủy
- [Xem ngay] 15 mẫu thiết kế nội thất phòng khách hiện đại mang lại tài lộc
- Hài lòng với những mẫu biệt thự 1 trệt 1 lầu đơn giản mà đẹp
- Thiết kế biệt thự hiện đại từ 2 tầng đến 4 tầng đơn giản nhưng đẹp và sang trọng
Để biết thêm chi tiết vui lòng liên hệ:CÔNG TY CỔ PHẦN TƯ VẤN XÂY DỰNG SƠN HÀ (SHAC)Trụ sở chính: Số 318 - 319 HK3 Phố Bùi Viện, Lê Chân, Hải Phòng
- Điện thoại: 0225 2222 555
- Hotline: 0906 222 555
- Email: sonha@shac.vn
Văn phòng đại diện
- Tại hà nội: Số 4/172, Ngọc Hồi, Huyện Thanh Trì, TP. Hà nội
- Ở quảng ninh: Số 289, Phường Giếng Đáy, TP. Hạ Long, Tỉnh. Quang ninh
- Tại đà nẵng: Số 51m Đường Nguyễn Chí Thanh, Phường Thạch Thang. Q. Hải Châu, Tp. Đà Nẵng
- Ở sài gòn: Số 45 Đường 17, Khu B, An Phú, Quận 2, TP. Hồ Chí Minh
- Xưởng nội thất: Số 45 Thông Trực, Nam Sơn. Kiến An, Tp. Hải phòng