Mẫu thiết kế thi công lâu đài dinh thự anh Tuấn Linh Thanh Hóa
Mẫu thiết kế lâu đài 4 tầng có diện tích xây gần 300m2 mỗi sàn. Thiết kế giai đoạn cuối năm ngoái. Sau 2 năm khởi công từ khâu kiến trúc đến nội thất hoàn thiện. Ở phần cuối bài công ty mình cập nhật hình ảnh thực tế dưới để quý vị tham khảo
- Cách trang trí nội thất nhà ở nhiều ánh sáng tông màu nhẹ nhàng
- Bản vẽ thiết kế nhà mái bằng 2 tầng hiện đại thiết kế khác biệt
Hình ảnh thiết kế dinh thự cổ điển 4 tầng phong cách lâu đài châu âu
Mẫu thiết kế dinh thự cổ điển 4 tầng đẹp có tổng diện tích sàn xây dựng 1.200m2. Tọa lạc trong khu vườn rộng hơn 1000m2 tại thị trấn Bút Sơn huyện Hoằng Hóa. Nằm cách thành phố Thành phố Thanh Hóa khoảng 7 cây số đi từ hướng Đông Bắc.

Nếu anh chị cần tham khảo các mẫu biệt thự lâu đài châu âu 2 3 tầng khoảng 5 tỷ đến 10 tỷ. Vui lòng truy cập xem thêm thông tin công ty và 50 mẫu thiết kế biệt thự cổ điển 2 3 4 tầng hàng đầu Việt Nam chọn lọc. Của công ty thiết kế xây dựng Nhà Đẹp Mới chúng tôi vừa cập nhật
Thông tin thiết kế lâu đài 4 tầng 1200m2 tại Thanh Hóa
Công trình dinh thự 4 tầng kiểu cổ điển châu âu hiện đã thi công xong phần xây dựng thô. Bao gồm 1 tầng hầm rượu và 4 sàn + mái. Các hạng mục ốp lát dán đá và trang trí nội thất đang dần hoàn thiện. Dự kiến vào ngày ngày giỗ tổ 10 tháng 3 âm lịch 2021 sẽ đưa vào sử dụng. Trong phạm vi bài viết này Team công ty chúng tôi gửi đến quý anh chị hình ảnh thiết kế lâu đài 4 tầng mỗi sàn 300m2 và hình ảnh thi công xây dựng + địa chỉ cụ thể để tin cậy hơn khi tham khảo các mẫu lâu đài dinh thự đẹp qua mạng
Thông tin thiết kế dinh dự 3 tầng 1 áp mái = 4 tầng
- Dự án thiết kế lâu đài dinh thự 4 tầng đẹp tại quê hương của Mẹ Tơm
- Chủ đầu tư: Hàn Thành Tuấn
- Địa chỉ Thanh Hóa
- Diện tích lô đất vườn rộng hơn 1000m2
- Mỗi diện tích sàn trung bình thiết kế gần 300m2
- Tổng chi phí đầu tư trên dưới 15 tỷ hoàn thiện
- Năm thiết kế thi công xây dựng năm ngoái
- Phụ trách hồ sơ: Kiến trúc sư Lê Văn Đức cùng ê kíp
- Chịu trách nhiệm giám sát: Văn phòng Công ty cổ phần kiến trúc xây dựng Hà Nội
- Phong cách kiến trúc lâu đài phong kiến châu âu cổ điển

Hình ảnh lâu đài cổ điển 4 tầng đẹp sau 2 năm thi công
Cung cấp thêm hình ảnh thực tế mẫu lâu đài 4 tầng đẹp đã thi công xong. Sau hai năm hoàn chỉnh từ các công đoạn dinh thự 1200m2 của Tuấn Linh hoàn thành như sau

Gọi là 4 tầng không sai là bởi vì quy mô thiết kế gồm 1 tầng hầm. 1 trệt 2 lầu và 1 tầng tum áp mái sân thượng phía trên. Tổng diện tích sử dụng 1200m2 chưa kể móng mái chóp nhọn. Anh chị xem thêm một số hình ảnh thi công thực tế tại video của công ty thêm
Thông tin thêm về mẫu thiết kế lâu đài 4 tầng kiến trúc cổ châu âu
Mẫu thiết kế lâu đài 4 tầng đẹp có tên là lâu đài Tuấn Linh mà có lẽ người dân xứ Thanh nơi có điệu hò sông Mã nức tiếng Việt Nam hay các lễ hội văn hóa Đền Sòng cầu Ngư mang đậm bản sắc dân tộc Mường – Pồồn Pôông đậm chất dân gian mà có lẽ mỗi người con Thanh Hóa mỗi khi đi xa đều cũng phải khắc khoải nhớ về.

Mẫu thiết kế kiến trúc lâu đài cổ châu của đại gia đình ông Hán Thành Tuấn – Một doanh nhân thành đạt trẻ mới sinh năm 1973 Qúy Sửu thôi. Anh là một đại gia khá tiếng tăm trong ngành xây dựng đã có hơn vài chục mẫu nhà đẹp được anh xây dựng ở thị xã Bỉm Sơn, Thọ Xuân hay thành phố Thành Phố. Anh cũng là một người quen thân của anh em kiến trúc sư công ty thiết kế xây dựng chúng tôi.
Hình ảnh thi công lâu đài dinh thự đẹp 4 tầng của Tuấn Linh
Mẫu lâu đài Tuấn Linh ở Thanh Hóa công ty kiến trúc xây dựng chúng tôi chỉ thiết kế và giám sát theo từng giai đoạn và tiến độ cam kết trong hợp đồng thiết kế dinh thự khi ký. Bởi do anh là công ty xây dựng và có hơn 70 nhân công nên chỉ cần bản vẽ thiết kế lâu đài chi tiết và giám sát giúp thôi.

Hình ảnh thi công lâu đài dinh thự 4 tầng do kiến trúc sư Lê Văn Đức đi giám sát chụp qua Iphone gửi về công ty chuyên thiết kế lâu đài đài Pháp cổ gần Hà Nội và một số tỉnh lân cận chúng tôi cập nhật thêm để anh chị khỏi lo lắng băn khoăn

Bản vẽ thiết kế lâu đài 300m2 4 tầng anh Hán Thành Tuấn
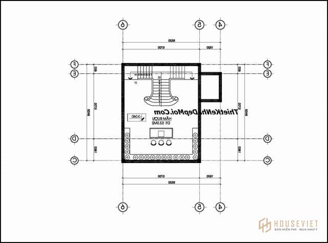
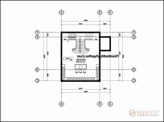
Mẫu thiết kế lâu đài dinh thự 4 tầng đẹp thiết kế theo hướng Đông Sinh Khí hơi ghé Nam. Hợp với phong thủy Đông Tứ Trạch – Tang thạch Mộc của chủ đầu tư anh Hán Thành Tuấn. Đây là mẫu lâu đài 4 tầng đẹp có hầm rượu thiết kế diện tích 53m2 ở dưới. Kích thước các không gian mẫu thiết kế dinh thự lâu đài 300m2 Tuấn Linh Thanh Hóa chúng tôi mô tả sơ bộ như sau

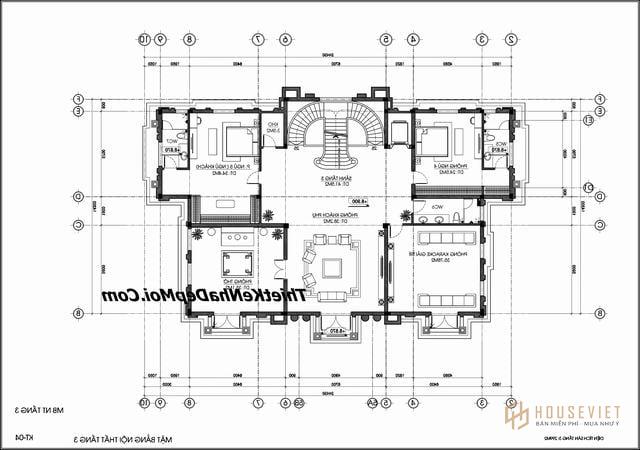
Mặt bằng tầng 1 mẫu dinh thự đẹp 4 tầng Tuấn Linh Thanh Hóa
Tổng diện tích sàn tầng 1 mẫu thiết kế dinh thự 4 tầng cho lâu đài Tuấn Linh Thanh Hóa. Diện tích lên đến 357m2 Trong đó diện tích ti công sảnh chính và phụ đã là 65m2 bên ngoài rồi. Trong đó bao gồm 1 sảnh chính rộng nhất Việt Nam 33m2 và 3 sảnh phụ tọa ra các hướng lối đi vào không gian dinh thự cổ điển châu âu. Bản vẽ thiết kế dinh thự đẹp 4 tầng anh Hán Thành Tuấn ở Hoằng Hóa xứ Thanh

Bản vẽ không gian tầng 3 + 4 biệt thự lâu đài cổ điển 4 tầng 300m2
Mẫu biệt thự lâu đài cổ điển 4 tầng tại quê hương Quang Trung Lê Lợi. Xứ Thanh có diện tích sàn xây dựng tầng 2 là 374m2. Trong đó diện tích không gian nội thất bên trong 299m2 + ban công ngoài 2 bên 75m2. Còn tầng 3 có diện tích sàn xây dựng 299m2. Bản vẽ thiết kế lâu đài Tuấn Linh tầng 2 như sau

Mô tả về không gian nội thất lâu đài 4 tầng anh Tuấn Thanh Hóa
Không gian tầng 2 nội thất lâu đài cổ điển châu âu có 1 phòng sinh hoạt chung. Bố trí thiết kế ở gian chính giữa trung tâm rộng gần 50m2 phía trước có khoảng thông tầng. Khu vực còn lại thiết kế phòng ngủ master rộng 55m2 kết hợp với phòng thay đồ Vip. Còn lại là kho và 2 phòng ngủ + thang máy + ban công. Hai phòng 2 phòng vệ sinh bên trong 2 phòng ngủ còn lại. Bản vẽ mặt bằng thiết kế lâu đài tầng 4 có 300m2. Xây dựng thiết kế có phòng thờ hơn 35m2 1 phòng khách phụ 38.2m2. Hai 2 phòng ngủ 25m2 + 35m2 đều có vệ sinh khép kín riêng tư + sảnh tầng 41.5m2 trung tâm

Bản vẽ kích thước các tầng còn lại mẫu thiết kế dinh thự đẹp 4 tầng cổ điển Tuấn Linh
Khu vực tầng 4 hay còn gọi là tầng tum áp mái thiết kế dành cho giải trí xông hơi thể thao. View ngắm cảnh và phòng thư viện đọc sách. Kích thước các phòng bố trí như thế này anh chị tham khảo xem có hợp lý chưa?

Kích thước bản vẽ lâu đài 4 tầng kiến trúc dinh thự phong kiến châu âu 300m2. Còn có sân phơi phòng giặt bên tay phải góc sau cùng. Kích thước các phòng tầng 4 như sau
- Sân phơi 17m2
- Diện tích phòng thư viện 17.9m2
- Thiết kế 2 sân thượng 2 bên trên 30m2
- Phòng xong hơi Massage góc trái sau cùng 22.8m
Bản vẽ tầng áp mái và mái biệt thự cổ điển châu âu 4 tầng kiểu lâu đài
Các bản vẽ thiết kế lâu đài cổ điển châu âu trường phái Baroque kết hợp với Gothic hình tháp nón. Còn lại của tầng tum áp mái chúng tôi cung cấp thêm 2 mái Mansard kiến trúc Pháp kiểu chư hầu như bản vẽ


Phong cách kiến trúc lâu đài đẹp nhất Việt Nam 2021 4 tầng
Không quá chua ngoa khi cho rằng dinh thự 4 tầng cổ điển Tuấn Linh Thanh Hóa. Là một trong những mẫu lâu đài đẹp nhất Việt Nam hiện nay với quy mô đầu tư trên dưới khoảng 15 tỷ. Tổng diện tích sàn xây dựng trên 1.200m2.

Mẫu thiết kế lâu đài pháp cổ gần Hà Nội hơn 100 km có hình khối bố cục 3 gian gọn gàng. Đường nét kiến trúc uốn lượn với các đường cong tuyệt mỹ. Tư dinh biệt thự lâu đài châu âu 4 tầng khoác trên mình tấm áo trắng sữa. Ý tưởng điểm xuyết một chút màu vàng của đá Marble. Hệ mái Mansard kiến trúc Pháp cổ màu xanh. Rất hợp với phong thủy Tang đố mộc thân chủ lâu đài Tuấn Linh. Cần xem biệt thự 3 tầng kiểu pháp chi phí ít hơn thì xem ở đây nhớ bấm vào
Lưu ý khi chọn công ty chuyên thiết kế thi công lâu đài dinh thự tại Việt Nam
Thi công lâu đài dinh thự chuyên nghiệp theo chúng tôi được biết cả Việt Nam chúng ta. Có khoảng 6 đội thợ phân bổ tại các thành phố lớn như Hà Nội hay Huế và Sài Gòn. Nhưng nhiều nhất là khu vực phía Bắc quanh các làng nghề. Nhưng trình độ đội thợ điêu khắc được đào tạo bài bản Đứng đầu chỉ đếm đầu ngón tay thôi. Còn phần lớn là ăn theo hay chập chững thô sơ căn bản thôi.

Để thi công lâu đài cổ điển Pháp như dinh thự 4 tầng. Diện tích tổng sàn 1.200m2 như của dinh thự cổ điển Tuấn Linh Thanh Hóa. Cần khoảng 2 thợ cả tích cực làm việc trong vòng khoảng 3 tháng cho ngoại thất bao quanh. Đương nhiên giá nhân công cao gấp đôi so với các tay thợ bình thường. Là một công ty xây dựng chuyên nghiệp hàng đầu Việt Nam hiện nay. Công ty kiến trúc xây dựng chúng tôi có đội ngũ KTS. Và ê kíp kỹ sư có thâm niên trên 10 năm về lĩnh vực biệt thự cổ điển. Cùng một số trường phái khác như Romanesque, Rococo, Victorian, Gothic Hy Lạp..

Kiến trúc sư thiết kế lâu đài dinh thự này là ai?
Cuối cùng là thông tin về người Kiến trúc sư trẻ tài hoa kiến tạo. Phụ trách hồ sơ kiến trúc lâu đài cổ châu âu 4 tầng Tuấn Linh Thanh Hóa này là ai ? Nếu trong ngành kiến trúc Hà Nội thì chắc sẽ không lạ lùng gì nhưng các nơi khác thì chưa chắc đã biết. Vì anh là người sống ẩn mình suốt ngày khép góc trong văn phòng làm việc. Bạn tìm kiếm trên mạng không có. Anh chính là Lê Văn Đức quê gốc Hạ Long Quảng Ninh. Trước đây là chủ trì các mẫu thiết kế biệt thự lâu đài của 3 công ty kiến trúc lớn tại Hà Nội. Nhưng nay tách ra riêng khởi nghiệp cùng với 3 – 4 anh em. Kiến trúc đồng nghiệp mở công ty cổ phần kiến trúc xây dựng tại Hà Nội
Cái duyên đưa anh đến với công ty kiến trúc xây dựng chúng tôi
Tôi quen anh trong một ngày đầu xuân trong một chiều mưa lập Đông. Qua một người em cùng kiến trúc sư đồng nghiệp giới thiệu tên Trọng. KTS Đức năm nay 32 tuổi sinh 1988 – Đại Lâm Mộc. Có 10 năm kinh nghiệm khi đã kinh qua nhiều công ty kiến trúc. Thế mạnh của Đức là các phong cách biệt thự tân cổ điển và cổ điển. Nhất là các phong cách kiến trúc nhà lâu đài 3 4 tầng kiểu Pháp phong cách Baroque. Anh có gia đình vợ con. Bà xã anh làm ý sĩ bán thuốc Tây ở quận Hà Đông Hà Nội

=>> Tham khảo thêm 360 mẫu biệt thự đẹp 1 2 3 4 tầng các phong cách kiến trúc châu âu diện tích lớn nhỏ có mặt trên 61/63 tỉnh thành cả nước Việt Nam do ê kíp công ty cổ phần thực hiện từ 2011 đến 2021
Tâm sự của người kiến trúc sư thiết kế lâu đài dinh thự xa quê
Chia sẻ với tôi bên tách cà fe tại hồ Hoàn Kiếm Hà Nội với cái giọng khá ôm đồm ấm cúng: Tuy em quê Quảng Ninh nhưng hơn 10 năm ra hành nghề kiến trúc sư. Chỉ kiến tạo vẽ đẹp phục vụ hơn 300 công trình quanh Hà Nội và toàn quốc. Nhưng chưa có căn biệt thự lâu đài cổ điển nào ở Quảng Ninh quê em cả. Ngẫm nghĩ cũng có gì đó rất hổ thẹn với quê hương..

Qua bài viết này nếu có duyên thì quý vị hãy kết nối nhất là những người con đồng hương. Hay bản địa Quảng Ninh hãy cho người kiến trúc sư trẻ Lê Văn Đức một cơ hội. Để anh ấy có dịp đi lui về tới nơi mảnh đất biển đảo nổi tiếng Việt Nam chôn nhau cắt rốn.. Hay thậm chí là các vùng đất quanh Hà Nội.
Kết nối để báo giá thiết kế xây dựng lâu đài dinh thự 3 4 tầng chuyên nghiệp
Hi vọng mẫu biệt thự lâu đài cổ điển gồm 1 hầm rượu 3 tầng. Có 1 tum áp mái của hồ sơ thiết kế lâu đài 4 tầng Tuấn Linh. Gọi là dinh thự đẹp 4 tầng nổi tiếng vùng đất xứ Thanh. Với điệu hò sông Mã gầm khúc độc hành. Như trong thi ca mà bài thơ Tây Tiến của thi sĩ Quang Dũng. Đã từng đưa vào sách giáo khoa Văn cấp 3 một thời.!

Một số hình ảnh thiết kế nội thất biệt thự cổ điển lâu đài anh Tuấn Thanh Hóa. chúng tôi sẽ cập nhật thêm trong bài viết sớm nhất. Anh chị đừng bỏ qua hơn 88 mẫu biệt thự cổ điển khoảng 120m2 đến 150m2. của kiến trúc sư chúng tôi và 18 mẫu thiết kế thi công lâu đài dinh thự đẹp kiểu châu âu. Do ê kíp công ty xây dựng chúng tôi thực hiện trong thời gian qua.
Cập nhật hình ảnh thi công lâu đài dinh thự 3 tầng 1 áp mái cổ điển
Các hình ảnh thực tế lâu đài dinh thự cổ điển dưới đây do KTS Đức đến nghiệp thu. Ảnh chụp qua điện thoại nên chưa được nét lắm. Hơn nữa nếu anh chị có thời gian qua thị trấn Bút Sơn. Nhớ ghé công ty xây dựng anh Tuấn Thanh Hóa để khám phá. Anh cũng là giám đốc doanh nhân thành đạt nhờ KTS công ty mình thiết kế.


Trân trọng cám ơn anh Tuấn đã tạo điều kiện để 4 anh em chúng tôi có cơ hội ” mở mang bờ cõi” tại vùng đất hứa dể ” Về lại xứ Thanh ” như bài thơ đầy nỗi niềm của Phan Quế. Mà anh em chúng tôi đã từng ngân nga xướng vui vài câu.