Ngất ngây với mẫu thiết kế nhà 40m2 2 tầng đẹp với bản vẽ chi tiết
Mẫu thiết kế nhà đẹp 2 tầng 40m2 với kiến trúc ấn tượng nhằm phát huy công năng và tính thẩm mỹ trong quá trình sử dụng. Chính vì vậy, các mẫu nhà 40m2 có gác lửng, nhà 40m2 2 tầng 3 phòng ngủ, nhà ống 2 tầng 40m2,… là kiểu nhà được nhiều gia đình lựa chọn. Bài viết dưới đây House Viet muốn tư vấn chi phí xây nhà 2 tầng 40m2 kết hợp với mẫu nhà đẹp đang làm mưa làm gió trên thị trường.
Mẫu thiết kế nhà đẹp 40m2 2 tầng 3 phòng ngủ
Mẫu nhà 2 tầng 3 phòng ngủ dưới đây có kiến trúc mặt tiền lạ mắt và cuốn hút. Kiến trúc nhà 2 tầng 3 phòng ngủ hiện đại với sự kết hợp của các tông màu nhẹ nhàng, tươi sáng tạo ra năng lượng tích cực cho gia chủ. Các đường kẻ dọc và ngang áp dụng cho tầng 1 và tầng 2 tạo nên một tổng thể liền mạch và thẩm mỹ.



Bản vẽ thiết kế nhà 40m2 2 tầng với cách bố trí các phòng chức năng khoa học và hiệu quả. Khu vực tầng 1 bao gồm khu vực phòng khách, bếp ăn, khu sinh hoạt chung tiện nghi. Bể bơi ngoài trời kết hợp với không gian thư giãn tạo cho mẫu nhà 2 tầng đẹp có sức hút nổi bật. Thiết kế nhà nhỏ 40m2 với bể bơi ngoài trời như resort 5 sao.



Mẫu thiết kế nhà 40m2 2 tầng có gác lửng
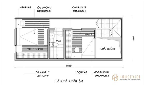
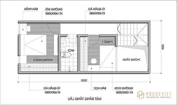
Thiết kế nhà nhỏ 40m2 Bố trí thêm tầng lửng để tạo tổ ấm khoa học và tiện nghi. Phần gác lửng có thể bố trí giữa hai tầng hoặc bố trí ở tầng hai. Mẫu nhà ống 40m2 mặt tiền được sử dụng cửa sổ lớn kết hợp với lan can kính hiện đại tạo không gian thoáng đãng.



HÀNG TRIỆUthiết kế nhà 40m2 2 tầng Bên dưới được bố trí tầng lửng nằm giữa khu vực tầng 1 và tầng 2. Tầng lửng được bố trí các ô cửa kính tiện lợi để gia chủ có thể quan sát khung cảnh bên ngoài. Mặt tiền mẫu nhà 2 tầng kết hợp giữa tông màu trầm và trung tính tạo nên vẻ đẹp sang trọng và cuốn hút.


Mẫu thiết kế nhà ống 2 tầng 40m2 hiện đại
Vật mẫu thiết kế nhà đẹp 40m2 2 tầng Mẫu nhà ống thu hút nhờ cách phối cảnh và công năng sử dụng kiến trúc ấn tượng. Nền tường tầng 1 là gam màu be nhạt nhã nhặn, lịch sự còn tầng 2 có sự pha trộn giữa nâu đậm - nâu vân gỗ. Mái xéo giúp thoát nước dễ dàng mà còn đảm bảo yếu tố thẩm mỹ.



Thiết kế nhà 40m2 2 tầng 3 phòng ngủ Nó có sự kết hợp hiệu quả giữa các chức năng. Khu vực phòng khách, bếp, phòng ngủ và phòng sinh hoạt chung phân chia khu vực sử dụng hiệu quả. Kiểu nhà có chiều ngang hẹp nên các khu đều được bố trí tiểu cảnh xanh và cửa sổ để đảm bảo không gian thoáng mát.



House Viet hy vọng sẽ mang đến cho quý khách hàng mẫu thiết kế nhà 40m2 2 tầng đẹp. Mọi dự án thiết kế và xây dựng House Viet được thực hiện dựa trên xu hướng nhà ở trên thị trường. Chúng tôi sẵn sàng hỗ trợ khách hàng tạo ra những tác phẩm chất lượng qua Hotline 1800 6015. Chắc chắn đội ngũ kiến trúc sư giàu kinh nghiệm của House Viet sẽ đưa ra những lời khuyên tốt nhất cho bạn.
Các bài viết khác:
- 15 Mẫu thiết kế nhà 2 tầng mặt tiền 6m hiện đại nhất năm
- Tư vấn thiết kế mẫu nhà 2 tầng 70m2 đẹp và hiện đại năm 2021
- Mẫu thiết kế nhà 2 tầng 50m2 3 phòng ngủ hiện đại với bản vẽ chi tiết
House Viet - Vững niềm tin