Nhà 1 lầu 3 phòng ngủ 1 phòng thờ 14x11m tại Hải Phòng NDBT1T120
Nhu cầu về các mẫu nhà 1 tầng 3 phòng ngủ 1 phòng thờ 14x11m chiếm phần lớn. Lý do là với 3 phòng ngủ rất phù hợp với quy mô của gia đình bạn hoặc đại gia đình. Ngôi nhà không chỉ là không gian sống, sinh hoạt mà còn là nơi hiện thực hóa và gửi gắm ước mơ về một không gian sống hạnh phúc, bình yên và giản dị cho tất cả mọi người, không ngoại lệ. Đó không chỉ là tài sản vô giá, tâm huyết mà còn là nơi lưu giữ những kỷ niệm đẹp, là nơi chia sẻ những vui buồn trong cuộc sống đời thường. Hiểu được những ý nghĩa sâu xa đó, công ty nhà đẹp chúng tôi - những kiến trúc sư ngày đêm không ngừng tư duy sáng tạo để cho ra đời những mẫu thiết kế nhà đẹp, độc đáo đáp ứng nhu cầu của gia chủ. riêng. Dù một ngôi nhà có thể lớn hay nhỏ, một tầng hay cao tầng, phong cách kiến trúc hiện đại hay cổ điển thì điều quan trọng nhất vẫn là một không gian sống hạnh phúc, mang lại cảm giác ấm cúng và bình yên. Mẫu nhà cấp 4 mái thái của gia đình anh Mục ở Hải Phòng là một trong số đó. Đây là mẫu thiết kế nhà 1 tầng 3 phòng ngủ 1 phòng thờ 14x11m được các kiến trúc sư công ty Nhà Đẹp thiết kế và thi công vào cuối năm 2020. Mời các bạn cùng chúng tôi khám phá mặt tiền và công năng của mẫu nhé. Ngôi nhà cấp 4 mái thái này!
Thông tin mẫu nhà 1 lầu 3 phòng ngủ 1 phòng thờ 14x11m
Tại Hải Phòng có những khu vực có đơn giá xây dựng rất cao như thành phố Hải Phòng hay Thủy Nguyên hay quận Dương Kinh. Nguyên nhân chính là do những khu vực này tập trung nhiều khu công nghiệp nên giá trị tăng cao, nhu cầu xây dựng và đền bù đất đai cao. Vì vậy, mọi thứ đều tăng theo. Với đơn giá dự kiến khoảng 5 triệu là bạn có thể hoàn thiện được các căn nhà.
- Chủ đầu tư: Anh Như
- Địa điểm xây dựng: Hải Phòng
- Kích thước nhà: 14x11m
- DTXD: 130m2
- Số phòng ngủ: 3 PN, 1 phòng thờ.
- Diện tích vành mái: 130 × 0,4 = 52m2
- Tổng diện tích xây dựng: 130 + 52 = 182m2
- Chi phí xây dựng: 182 × 5.000.000 = 91.000.000 đồng
- Diện tích mái ngói: 182 × 1,5 = 273m2
- Chi phí xây dựng mái ngói: 273 × 700.000 = 191.100.000 đồng
- Tổng giá trị xây dựng dự kiến: 91.000.000 + 191.100.000 = 1.101.100.000 đồng
Phối cảnh 3D nhà 1 tầng 3 phòng ngủ 1 phòng thờ 14x11m
Chúng ta thường thấy Mặt tiền quyết định 80% giá trị thẩm mỹ của một công trình kiến trúc. Đặc biệt đối với những ngôi nhà, biệt thự,… thì mặt tiền đóng vai trò vô cùng quan trọng. Không phải ngẫu nhiên mà kiến trúc sư dành nhiều tâm huyết để có thể hoàn thiện một không gian mặt tiền nổi bật, hiện đại, mang tính thẩm mỹ cao. Mặt tiền đẹp còn tạo được ấn tượng, thu hút mọi người khi ngắm nhìn tổng thể ngôi nhà. Mặt tiền là vẻ đẹp đầu tiên và cũng là ấn tượng đầu tiên đối với bất kỳ ai khi tiếp xúc với một công trình hiện đại.

Khi nhìn vào hình ảnh 3D, ấn tượng đầu tiên của mẫu nhà 1 tầng 3 phòng ngủ 1 phòng thờ 14x11m là 2 cột trụ đối xứng ở sảnh chính. Cột trụ hình chữ nhật tạo điểm nhấn bằng cách tạo đường chỉ ngoài kết hợp với màu sơn trắng nổi bật trên nền sơn màu vàng nhạt. Cột hình trụ vuông tượng trưng cho sự chắc chắn, trường tồn theo thời gian. Đây cũng là một đặc điểm của những mẫu nhà cấp 4 mái thái hiện đại. Với kiến trúc hiện đại, sự đơn giản hóa được tận dụng và thể hiện sự độc đáo, tinh tế qua những hình khối vuông vắn, sắc nét.
Điểm nhấn tiếp theo của mẫu nhà cấp 4 mái thái mang đến vẻ đẹp sang trọng và tinh tế không kém phần tinh tế cho ngôi nhà mà ai cũng chú ý đến đó chính là lớp phào chân tường. Gạch ốp tường màu nâu xám khiến công trình trở nên sang trọng và cuốn hút hơn bao giờ hết. Ngoài ra, nó còn có tác dụng chống ẩm, mốc, nhất là trong những ngày mưa gió. Với khí hậu khắc nghiệt như ở nước ta, việc sử dụng gạch ngoại thất sẽ giúp dễ dàng vệ sinh hơn, không bị ngấm nước vào bên trong và hạn chế sự phát triển của vi sinh vật nấm mốc.

Hệ thống cửa chính và cửa sổ của mẫu nhà 1 tầng 3 phòng ngủ sử dụng cửa kính khung nhôm. Chất liệu kính cường lực kết hợp khung nhôm xingfa cao cấp được biết đến là chất liệu hiện đại, bền đẹp, dễ lau chùi giúp gia đình chủ đầu tư có thể dễ dàng ngắm nhìn khung cảnh bên ngoài. Chất liệu kính cũng sẽ giúp chủ đầu tư tiết kiệm chi phí hơn so với việc sử dụng toàn bộ gỗ cho hệ thống cửa.
Phần mái của mẫu nhà cấp 4 mái thái có màu xám ghi thể hiện sự sang trọng, quý phái và khác hẳn với những mẫu nhà cấp 4 mái ngói đỏ ở nông thôn. Mái Thái hiện nay được rất nhiều hộ gia đình ưa chuộng bởi khả năng chống nóng, chống ẩm và giá trị thẩm mỹ tương đối lớn. Đây là tông màu trầm kết hợp với màu vàng nhạt chủ đạo của ngôi nhà tạo hiệu ứng cân bằng, không quá chói nhưng vẫn rất thu hút người nhìn.
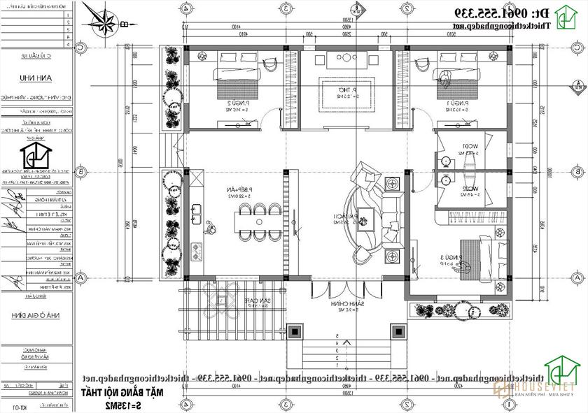
Công năng nhà 1 lầu 3 phòng ngủ 1 phòng thờ 14x11m

Từ ngũ cấp của mẫu nhà 1 tầng 3 phòng ngủ 1 phòng thờ 14x11m đi vào sảnh chính, qua cửa tứ quan là không gian phòng khách đầy đủ tiện nghi. Tiếp theo đi vào bên trong là không gian thờ cúng của gia đình được bố trí một bàn thờ lớn, trang nghiêm. Phòng thờ và phòng khách được ngăn cách bởi tấm rèm trang trí hiện đại. Hai phòng ngủ được thiết kế bên trái và bên phải phòng thờ với không gian nội thất được bố trí phù hợp với sở thích của từng thành viên. Tiếp đến là phòng master nằm bên trái phòng khách có vệ sinh khép kín thuận tiện cho việc sinh hoạt riêng tư. Bên cạnh phòng ngủ master được bố trí thêm 1 phòng vệ sinh chung tạo sự thuận tiện cho sinh hoạt của các thành viên. Bên phải phòng khách là phòng bếp + ăn với không gian rộng thoáng thuận tiện cho việc nấu nướng. Bên cạnh bếp là cửa phụ đi ra bên ngoài, mang lại sự di chuyển dễ dàng cho gia đình gia chủ.
Trên đây là mẫu thiết kế nhà cấp 4 mái thái tại Hải Phòng do kiến trúc sư công ty nhà đẹp thiết kế. Nếu bạn có nhu cầu hãy liên hệ với công ty để được tư vấn thiết kế kiến trúc.
- Nhà 1 lầu 3 phòng ngủ 1 phòng thờ 13x11m ở Phú Xuyên NDBT1T119
- Mẫu nhà 1 tầng hình chữ L 14x14m đẹp ở Nam Định NDBT1T118
- Mẫu thiết kế nhà 1 tầng 3 phòng ngủ 120m2 11x16m NDBT1T117