Nhà 1 Lầu 3 Phòng Ngủ 100m2 Tư Vấn Kiến Trúc Và Nội Thất
Nhiều gia đình có quỹ đất rộng nhưng không biết tận dụng để thiết kế nhà ở. Đó là lý do khiến nhiều gia chủ bỏ ra số tiền lớn nhưng vẫn chưa hài lòng với căn hộ của mình. Trong bài viết này, Nội Thất Đương Đại sẽ giới thiệu đến bạn đọc mẫu nhà siêu đẹp này. Đây là mẫu nhà 1 lầu 3 phòng ngủ 100m2 của một chủ nhà nhờ kiến trúc sư tư vấn. Mẫu xe này được thiết kế rất tiện nghi và đặc biệt là chi phí rất hợp lý.
Yêu cầu đối với thiết kế nhà 1 tầng 3 phòng ngủ 100m2
Chủ nhân của ngôi nhà mẫu có quỹ đất hơn 200m2. Vì vậy, mục đích của gia chủ là xây nhà 1 tầng 100m2, xung quanh là sân vườn trồng cây cảnh. Diện tích căn hộ khoảng 100m2, có gara ô tô ngoài trời. Căn nhà được thiết kế theo phong cách hiện đại, view sân vườn rất đẹp. Về công năng, căn hộ cần có phòng khách, bếp, phòng ăn, 3 phòng ngủ và WC. Gia chủ mong muốn mỗi phòng đều có không gian mở, thoáng và rộng rãi.
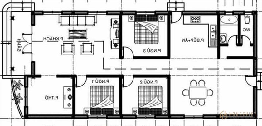
Kiến trúc sư tư vấn mặt bằng công năng mẫu nhà 1 tầng 3 phòng ngủ 100m2
Theo yêu cầu của gia chủ, kiến trúc sư sẽ thiết kế nhà 1 lầu 3 phòng ngủ 100m2. Chiều ngang nhà 6m, chiều dài 16m. Trong đó, căn 3 phòng ngủ có diện tích khoảng 15m2. Gara nằm ngoài sân vườn, có mái che để tiết kiệm diện tích. Xe ô tô có mái che như vậy sẽ không sợ mưa nắng không tỏa mùi xăng vào nhà.

Theo nhu cầu của gia chủ, phòng khách sẽ là nơi có tầm nhìn đẹp nhất với hệ thống cửa kính và cửa sổ hướng ra sân vườn. Phòng khách có diện tích hơn 20m2 rộng rãi và rất thoáng mát. Đối diện phòng khách là phòng thờ riêng, phòng thờ hướng ra sân vườn rất tốt cho phong thủy. Phòng thờ riêng tư, yên tĩnh sẽ giúp gia chủ đón được nhiều tài lộc.
Tiếp đến là phòng ngủ của gia chủ và 2 con. Các phòng ngủ được bố trí về 2 phía của ngôi nhà và có cửa sổ lớn nhìn ra ngoài. Thiết kế nhà Tất cả các phòng ngủ đều có không gian mở nên rất gần gũi với thiên nhiên. Phòng bếp và phòng ăn sẽ được đặt sâu nhất trong nhà để phù hợp với phong thủy. Phòng bếp cũng có cửa thông ra vườn để thông thoáng.
Phối cảnh mặt tiền và nội thất nhà 100m2. thiết kế nhà một tầng
Phối cảnh mặt tiền
Thiết kế nhà 1 lầu 3 phòng ngủ 100m2 theo phong cách hiện đại và sang trọng. Mái che là kiểu mái che độc đáo, có phần mái kéo dài ra để che ô tô. Do đó, nhìn kiến trúc căn hộ trở nên độc đáo và sang trọng hơn. Cửa chính của ngôi nhà có sảnh nhỏ và cửa hai lớp rất hiện đại. Toàn bộ phòng khách được bao bọc bởi một vách kính lớn nên có tầm nhìn ra bên ngoài rất đẹp. Mặt tiền sơn màu vàng nhạt, mái lợp ngói xám đen tạo nên sự tương phản lớn. Sự tương phản này khiến thiết kế trở nên thanh lịch, xa hoa và đẳng cấp hơn.

Phối cảnh nội thất
Phòng khách rộng rãi nên kiến trúc sư đã chọn bộ sofa chữ L. Đối diện là bàn trà và ghế đẩu nhỏ. Phòng khách thiết kế đơn giản nhưng rất tinh tế với gam màu trung tính nhẹ nhàng.

Thiết kế phòng ngủ chính của căn hộ hiện đại nhưng rất trang nhã. Phòng ngủ được bao phủ bởi màu trắng ngà trang nhã và gam màu trung tính nhẹ nhàng nên rất dễ chịu.

Đối với phòng ngủ của bé trai, kiến trúc sư lựa chọn gam màu xanh mà bé yêu thích làm gam màu chủ đạo khi thiết kế nội thất. Không gian phòng ngủ tươi trẻ và hấp dẫn bé với nhiều hình ảnh đáng yêu. Không chỉ vậy, căn phòng còn rất tiện nghi với góc học tập và khu vui chơi cho bé.

Phòng ngủ của con gái vô cùng tươi mới với gam màu vàng và xanh khi thi công nội thất. Thiết kế của tường và nội thất đều là những con vật đáng yêu, kích thích trí tưởng tượng của bé. Phòng ngủ của bé tuy không rộng nhưng rất thoáng mát với cửa sổ nhìn ra vườn.

15 mẫu nhà 1 tầng 3 phòng ngủ 100m2 siêu đẹp và sang trọng
Sau đây Nội Thất Đương Đại xin giới thiệu đến các bạn 15 mẫu nhà 1 lầu 3 phòng ngủ 100m2 đẹp nhất. Các mẫu nhà có kiến trúc độc đáo, đa dạng và rất sang trọng.














Hi vọng qua bài viết này bạn đã có thêm nhiều ý tưởng cho căn hộ của mình. Nếu bạn bối rối khi thiết kế nhà 1 lầu 3 phòng ngủ 100m2, xin vui lòng liên hệ với chúng tôi. Đội ngũ kiến trúc sư dày dặn kinh nghiệm và không ngừng sáng tạo. Nội Thất Đương Đại sẽ đưa ra những lời khuyên hữu ích và báo giá thi công nội thấtkiến trúc mới nhất dành cho bạn.