Nhà 2 tầng hình chữ L 10x11m ở Quốc Oai NDBT2T120
Mẫu nhà 2 tầng hình chữ L 10x11m này là một ví dụ rất điển hình cho những gia đình không có nhiều diện tích đất, diện tích đất hẹp và không có hướng. Nhưng với vị trí xây dựng ở nông thôn nên khi xây nhà chúng tôi thường đua mái và trổ cửa sổ sang nhà hàng xóm nên cũng không ảnh hưởng gì nhiều. Trong mẫu thiết kế nhà hình chữ L này của anh Thành cũng là một trong những trường hợp đất hẹp, hướng nhà không hợp với tuổi của gia chủ. Do đó, hướng mở cửa, vị trí của phòng khách và phòng bếp được thay đổi cùng nhau để phù hợp với tuổi của gia chủ. Bạn sẽ thấy điều đó trong bài viết chia sẻ về mẫu nhà 2 tầng hình chữ L 10x11m của chúng tôi.
Được định hình là phong cách thiết kế mang vẻ đẹp sang trọng và đẳng cấp nhất, các công trình kiến trúc hiện đại thực sự trở thành một phương án thiết kế được ưu chuộng và thể hiện đỉnh cao của một nền kiến trúc hiện đại. Kiến trúc phát triển mạnh mẽ trong thời đại hiện nay. Những mẫu thiết kế nhà 2 tầng mái Thái không chỉ thể hiện sự tinh tế, bề thế trong không gian ngoại thất mà còn thể hiện được giá trị sống hài hòa, bắt mắt. Mẫu nhà 2 tầng mái thái 10x11m hình chữ L dưới đây được chúng tôi thiết kế cho chủ đầu tư là anh Thành ở Quốc Oai - Hà Nội. Công trình vừa có giá trị thẩm mỹ độc đáo, vừa giúp mang đến cho ngôi nhà vẻ đẹp tinh tế, cuốn hút và công năng sử dụng tiện lợi, hợp lý nhất.
Thông tin xây dựng nhà 2 tầng hình chữ L
- Địa điểm xây dựng: Quốc Oai
- Chủ đầu tư: Anh Thành
- Tổng diện tích xây dựng: 200m2
- Kích thước nhà: 10x11m
- Tổng giá trị hoàn thiện: 1,2 tỷ đồng
Phối cảnh 3D mẫu nhà 2 tầng mái thái chữ L 10x11m

Phong cách kiến trúc được áp dụng trong mẫu thiết kế nhà 2 tầng chữ L 10x11m không thể không kể đến sự xuất hiện của các hệ thống cột trụ được sử dụng. Hệ thống cột được sử dụng trong toàn bộ công trình này là cột vuông. Cột được thiết kế với kích thước vừa phải đảm bảo tính thu hút và tỷ lệ rất cân đối qua từng chi tiết của công trình. Mặt khác, cột còn được trang trí bằng các chi tiết gờ phào chỉ cách tân đẹp mắt càng làm tăng sức cuốn hút cho không gian ngoại thất của ngôi biệt thự 2 tầng mái Thái này.

Mẫu thiết kế nhà 2 tầng 10x11m mái thái chữ L với gam màu được lựa chọn khắt khe và kỹ lưỡng là yếu tố quan trọng tạo nên nét độc đáo cho công trình hiện đại này. Mẫu thiết kế nhà 2 tầng mái thái được ưu tiên sử dụng những gam màu tự nhiên như trắng kem, xanh đen,… những gam màu thể hiện sự trong sáng, sang trọng, cuốn hút và tỉ mỉ. Tông màu trắng kem kết hợp với tông màu xanh đen của hệ mái thái mang đến cái nhìn mới lạ và ấn tượng cho toàn bộ không gian kiến trúc ngoại thất, cũng như nội thất công trình.

Chất liệu cửa của mẫu thiết kế nhà 2 tầng chữ L 10x11m mái thái được sử dụng là cửa kính kết hợp khung nhôm. Đây là loại vật liệu được sử dụng phổ biến nhất trong các công trình kiến trúc hiện đại ngày nay. Bởi loại cửa này mang đến nhiều công dụng hữu ích cho mọi ngôi nhà. Kính giúp thu hút ánh nắng, gió tự nhiên tốt, giúp không gian bên trong ngôi nhà luôn thông thoáng, trong lành và rất có lợi cho sức khỏe của mỗi người sống bên trong.
Phần mái trong mẫu thiết kế nhà 2 tầng 10x11m hình chữ L được thiết kế mái ngói thái tinh tế, đảm bảo tính thẩm mỹ sang trọng và đẳng cấp cho công trình. Chi phí xây dựng mái thái vừa phải với túi tiền của nhiều chủ đầu tư, từ đó giúp mang đến cho ngôi nhà một diện mạo mới, kiên cố và vô cùng tinh tế.

Đến với không gian tầng 1 của mẫu nhà 2 tầng 10x11m mái thái chữ L đầu tiên là không gian phòng khách rộng rãi, thoáng mát - nơi dùng để tiếp khách của gia đình khách hàng. Tiếp đến là 1 phòng ngủ với nhiều hệ thống cửa sổ giúp mang đến không gian thoáng mát, yên bình và thư thái. 1 phòng vệ sinh chung tiện nghi sang trọng, Cuối cùng là khu bếp + ăn với đầy đủ trang thiết bị hiện đại dễ dàng nấu nướng và nội trợ.

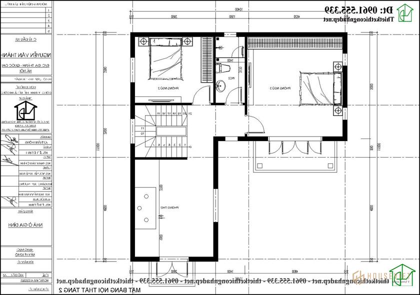
Từ cầu thang đi lên là khu vực lầu 2 yên tĩnh dùng để nghỉ ngơi của gia đình chủ đầu tư gồm 2 phòng ngủ được thiết kế theo nhu cầu và sở thích của từng thành viên trong gia đình. Phòng thờ trang nghiêm - nơi con cháu thắp hương báo hiếu, tỏ lòng thành kính với tổ tiên. Cuối cùng là khu vệ sinh chung được thiết kế giữa 21 phòng ngủ để thuận tiện cho quá trình sinh hoạt cá nhân được dễ dàng.
Trên đây là hồ sơ thiết kế biệt thự 2 tầng mái thái 10x11m hình chữ L của gia đình anh Thành ở Quốc Oai. Với kiến trúc khá độc đáo và công năng sử dụng tiện lợi. Nếu quý vị và các bạn thấy hấp dẫn và có nhu cầu thiết kế xây nhà hãy liên hệ với công ty chúng tôi để được tư vấn miễn phí.
- Mẫu thiết kế biệt thự 2 tầng 10x12m mái thái ở Thái Bình NDBT2T119
- Mẫu thiết kế biệt thự 2 tầng 9x9m mái thái tại Thanh Oai Hà Nội NDBT2T118
- Mẫu thiết kế nhà ở nông thôn 2 tầng 500 triệu 8x8m tại Thái Bình NDBT2T117
- Thiết kế mẫu nhà ống 2 tầng 4x20m giá rẻ tại Sơn La NDNP2T32
- Biệt thự 2 tầng hình chữ L mái thái 10x8m tại Hà Nội NDBT2T121
- Mẫu nhà thờ tổ hợp nhà 1 tầng ở Nam Định NDNTH23