Nhà cấp 4 3 phòng ngủ 10x11m mái thái NDNC4113
Đi khắp đất nước bạn sẽ nhận ra mẫu nhà ống cấp 4 xuất hiện ở rất nhiều nơi. Là những người trực tiếp tham gia vào quá trình thiết kế và thi công, Nhà Đẹp hiểu hơn ai hết tại sao mẫu nhà này lại được ưa chuộng đến vậy. Nguyên nhân chính là do mẫu mã đa dạng, đảm bảo công năng sử dụng và phù hợp túi tiền của nhiều hộ gia đình. Vật mẫu Nhà cấp 4 3 phòng ngủ 10x11m Ngôi nhà xinh giới thiệu đến các bạn hôm nay là một trong những mẫu như vậy.
Thông tin chi tiết về mẫu nhà cấp 4 mái thái 10x11m
- Chủ đầu tư: Anh Giang
- Địa điểm xây dựng: Phú Thọ
- Diện tích nhà: 10x11m
- Diện tích sử dụng: 110m2
- Chi phí dự kiến: 700-800 triệu đồng
Chắc hẳn nhiều bạn không hiểu tại sao giá xây nhà cấp 4 này lại 700-800 triệu, lý do là nếu xây nhà mái thái thì phần vành mái sẽ chiếm khoảng 40% diện tích sàn sử dụng. Do đó, khi tính toán chúng ta cần tính diện tích của vành mái ra 4 xung quanh. Tổng diện tích áp mái khoảng 154m2, đơn giá xây dựng từ 5 - 6 triệu / 1m2. Vậy chi phí xây mới là 700-800 triệu.
Phối cảnh 3D nhà cấp 4 3 phòng ngủ 10x11m
Liên hệ với Công ty Ngôi nhà xinh từ trước Tết và qua nhiều lần bàn bạc, đến nay anh Giang đã có đầy đủ hồ sơ. Ngôi nhà dự kiến sẽ được khởi công xây dựng vào năm 2020. Thật tiếc vì Nhà Đẹp không phải là đơn vị trực tiếp xây dựng ngôi nhà, nhưng chúng tôi tin rằng, với bản vẽ thiết kế ngôi nhà của gia chủ sẽ là một mẫu nhà ở nông thôn nổi bật nhất. Nhà cấp 4 3 phòng ngủ đẹp ấn tượng. ấn tượng và hấp dẫn nhất.

Nhìn vào phối cảnh 3D của mẫu nhà cấp 4 3 phòng ngủ 10x11m cũng có thể thấy ngôi nhà có sự hoàn hảo cả về màu sắc và kiến trúc. Màu sơn vàng kết hợp với màu trắng nhẹ nhàng tạo cho người nhìn cảm giác gần gũi, ấm áp và liên tưởng đến một cuộc sống yên bình, trong lành. Nếu để ý kỹ, bạn sẽ thấy đội ngũ kiến trúc sư đã sử dụng phương pháp đối xứng trong thiết kế. Tập trung vào cửa chính, hai bên nhà đối xứng từ cột, cửa sổ cho đến cây xanh trước nhà. Phương pháp đối xứng có tác dụng rất lớn trong kiến trúc, nó mang đến cho ngôi nhà của bạn một sự cân đối hoàn hảo. Dù ngoại thất có đẹp đến đâu thì một khi đã ngắm nhìn ngôi nhà, người xem sẽ không thể rời mắt.

Ưu điểm thứ hai trong mô hình Nhà cấp 4 3 phòng ngủ 10x11m nằm ở hệ thống mái thái ấn tượng. Màu mái xanh tôn lên vẻ đẹp trang nhã, hiện đại cho ngôi nhà. Nếu như trước đây những mẫu nhà cấp 4 mái thái màu đỏ được nhiều người ưa chuộng bởi màu đỏ mang lại nhiều tiền tài, tài lộc thì hiện nay mẫu nhà mái thái xanh đang dần chiếm ưu thế. Ngoài ra, màu sắc mái còn phụ thuộc vào tính cách của gia chủ nên dù chọn màu mái nào thì ngôi nhà của bạn vẫn đảm bảo được các tính năng như: chống nóng, tản nhiệt tốt, chống ồn, chống thấm và bền đẹp theo thời gian.

Phối cảnh từ trên cao giúp bạn có cái nhìn tổng thể về toàn bộ kiến trúc và khuôn viên xung quanh ngôi nhà. Sân vườn được lát gạch sạch sẽ để gia chủ dùng làm nơi để xe và giúp gia chủ có không gian sinh hoạt ngoài trời rộng rãi.
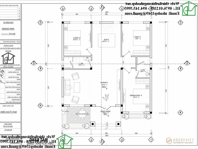
Cách bố trí nội thất nhà cấp 4 3 phòng ngủ 10x11m mái thái

Mặt bằng bố trí nội thất của mẫu nhà cấp 4 3 phòng ngủ 10x11m là bản vẽ thể hiện rõ nhất kiến trúc bên trong của ngôi nhà. Trên diện tích 110m2, đội ngũ thiết kế của Nhà Đẹp phân bổ cho mẫu nhà cấp 4 đẹp bao gồm 3 phòng ngủ, 1 phòng khách và 1 phòng thờ. Ngoài vệ sinh của phòng ngủ master, cả gia đình có vệ sinh chung bên ngoài, thuận tiện trong sinh hoạt.

Đây là sơ đồ mặt bằng của toàn bộ ngôi nhà. Phòng bếp được thiết kế ở một khu riêng biệt nên không gian chính của ngôi nhà rộng hơn rất nhiều so với những mẫu nhà cấp 4 khác.
Trên đây chúng tôi đã giới thiệu đến các bạn những thông tin chi tiết nhất về dòng máy Nhà cấp 4 3 phòng ngủ 10x11m của gia đình anh Giang ở Phú Thọ. Nếu bạn cảm thấy ưng ý với mẫu nhà này hoặc đang có nhu cầu tìm hiểu về các mẫu nhà cấp 4 giá rẻ thì hãy liên hệ ngay với Nhà Đẹp bằng cách để lại bình luận dưới bài viết hoặc gọi điện đến Hotline của chúng tôi. .
Tham khảo thêm các mẫu nhà đẹp, cấp 4 mái thái:
- Nhà cấp 4 mái thái có 3 phòng ngủ dành cho hộ gia đình có thu nhập trung bình.
- Mẫu nhà cấp 4 hiện đại, nhà mái thái đẹp tại Hà Nam NDNC4118
- https://thietkethicongnhadep.net/mau-nha-dep/biet-thu-2-tang/
- https://thietkethicongnhadep.net/mau-nha-dep/biet-thu-co-dien/
- https://thietkethicongnhadep.net/mau-nha-pho/nha-pho-2-tang/