Nhà cấp 4 4 phòng ngủ 16x12m ở Thái Bình NDNC4161
Nếu nói về cấp 4 thì có lẽ chúng ta đã viết quá nhiều rồi các bạn ạ. Tuy nhiên, nhà cấp 4 có 4 phòng thì hơi ít, đơn giản vì thông thường chúng ta làm nhà cấp 4 có 3 phòng ngủ là nhiều còn có tới 4 phòng ngủ thì có lẽ là ít. Có thể do nhu cầu của một gia đình quá nhiều nên mới cần đến nó. Chúng ta hãy thử làm một phép tính sơ bộ xem với 4 phòng ngủ như thế nào nhé. Nếu bạn sống với ông bà, họ có thể cần một phòng, bạn và vợ / chồng của bạn cần một phòng, và con cái của bạn có thể cần 1 hoặc 2 phòng ngủ. Nếu bạn có thêm anh chị em ở xa thỉnh thoảng mới về thì cũng cần có thêm 1 phòng ngủ để dự phòng. Mỗi khi về, anh có thể cho các con ở chung phòng, không sao cả. Như vậy, với mẫu nhà cấp 4 4 phòng ngủ có thể đáp ứng được nhu cầu sử dụng của 4 gia đình 3 thế hệ thì không phải là không có. Chỉ có điều là nếu bạn thấy mẫu nhà cấp 4 5 phòng ngủ thì có lẽ hơi nhỏ, nếu có thì quy mô và bề thế của công trình này cũng rất lớn. Và có thể lúc đó bạn sẽ chuyển sang mẫu nhà 2 tầng có lẽ sẽ hợp lý hơn mẫu nhà cấp 4 có 5 phòng ngủ.
Công trình nhà cấp 4 4 phòng ngủ này được Nhà Đẹp thiết kế cho anh Quân có địa chỉ tại Thái Thụy Thái Bình. Địa chỉ cụ thể chúng tôi xin không được công khai vì có nhiều việc sẽ không tiện. Hiện anh đang sinh sống và làm việc tại Hà Nội và sở hữu một mảnh đất ở quê được thừa kế từ ông bà nội. Mảnh đất có diện tích rất rộng để có thể làm được một ngôi nhà cấp 4 mái thái khang trang, chưa kể phần sân vườn có lẽ còn rất nhiều. Nếu sau này khi xây nhà cấp 4 có điều kiện thì bạn hãy đầu tư thêm một chút sân vườn để ngôi nhà của mình trở nên sang trọng hơn. Cô chủ sinh năm 1992 là một trong những người trẻ thành đạt sớm. Với mệnh Kim Mùi Kiếm, chúng tôi luôn bám sát mệnh của gia chủ để có thể thiết kế. Chính vì vậy màu chủ đạo trong thiết kế là màu vàng, với thiết kế như vậy rất dễ được gia chủ chấp nhận ngay từ những lựa chọn đầu tiên. Đó cũng là kinh nghiệm thiết kế của tôi trong những năm qua đã được đúc kết lại.
Đơn giá xây nhà cấp 4 tại Thái Bình là bao nhiêu?
Thái Bình là một vùng đất khá đặc biệt, nếu nói về thợ xây, thợ hồ thì có lẽ 80-90% dân số ở đây làm nghề xây dựng. Nơi đây là cái nôi của những người thợ nề và thợ nề, một nghề rất vất vả. Cũng giống như các làng nghề ở các vùng miền khác nhau. Do đó, giá vật tư và nhân công xây dựng ở đây cũng rất rẻ, đôi khi bạn sẽ cảm thấy rất bất ngờ. Giá xây hoàn thiện với điều kiện gia chủ tự lo vật tư và nhân công, giá hoàn thiện nhà bằng vật liệu rẻ khoảng 4 triệu / 1m2 xây dựng bao gồm cả nhân công.
Đơn giá xây nhà cấp 4 4 phòng ngủ ở Thái Bình là bao nhiêu?
Hãy cùng áp dụng đơn giá trên cho ngôi nhà này để xem chi phí xây dựng là bao nhiêu nhé. Mời bạn tham khảo cách tính giá xây nhà cấp 4 của chúng tôi.
- Chủ đầu tư: Quân Mr.
- Địa điểm xây dựng: Thái Thụy - Thái Bình
- Diện tích nhà: 16x12m
- Diện tích xây dựng: 149,4 m2
- Diện tích mái sảnh phụ: 10,3 m2
- Diện tích mái sảnh chính: 16,2 m2
- Diện tích vành mái bê tông: 149,4 × 0,4 = 59,76 m2
- Tổng diện tích mái bê tông: 149,4 + 10,3 + 16,2 + 59,76 = 235,66 m2
- Diện tích mái ngói: 149,4 x1,5 = 224,1 m2
- Tổng giá trị xây dựng mái ngói: 224,1 × 750.000 = 167.075.000 đồng
- Tổng giá trị xây nhà theo m2 mái bê tông dự kiến: 235,66 × 5.000.000 = 1.178.300.000đ
- Tổng giá trị hoàn thiện nhà: 1.178.300.000 + 167.075.000 = 1.345.375.000 đồng
Như vậy để xây được căn nhà này dự kiến cần gần 1 tỷ mới hoàn thiện được, so với các khu vực khác thì mình thấy đơn giá xây dựng căn nhà này quá rẻ phải không các bạn?
Hình ảnh mẫu nhà cấp 4 4 phòng ngủ 16x12m

Đây là phối cảnh từ trên cao nhìn xuống có thể nhìn thấy toàn cảnh ngôi nhà cùng với sân vườn của mẫu thiết kế nhà này.

Đây là mặt bên của ngôi nhà có phần thân được sơn màu vàng, đến mép cửa sẽ có vết gãy, mốc chạy xung quanh nhà và từ đó bạn sẽ sơn lại màu trắng. Chúng ta không nên sơn nhà với gam màu như vậy sẽ tạo cảm giác bức bối. Nếu bạn không tin tôi, chỉ cần thử màu sơn và bạn sẽ biết, trừ khi nó có màu trắng, bạn sẽ cảm thấy ít bị kích thích hơn. Và màu vàng này không dễ sơn, đối với người ít kinh nghiệm sơn sẽ không thể sơn được.

Phần đầu hồi sẽ được chúng tôi thiết kế bằng dầm bê tông đúc sẵn và sơn giả gỗ, với cách làm này không quá phức tạp nhiều địa phương đã có sẵn các hạng mục. Bạn chỉ cần đưa kích thước người ta sẽ làm cho bạn rất đơn giản và chắc chắn.

Đây là mặt tiền chính với mặt tiền này chúng ta sẽ được ngắm nhìn tổng thể ngôi nhà, có thể đánh giá được vẻ đẹp của chúng đúng không nào? Để tiết kiệm chi phí xây dựng và giúp ngôi nhà trông hiện đại hơn, toàn bộ cửa sẽ được sử dụng là cửa nhôm kính Việt Pháp màu cafe. Nếu thay cửa chính bằng cửa gỗ 4 cánh thì không vấn đề gì, nhưng nếu thay toàn bộ cửa thì lại là một vấn đề lớn.

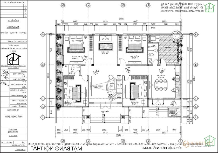
Đây là phần công năng, đi từ cửa chính vào sẽ là phòng ngủ, bên trong là phòng thờ. Ở phía bên tay phải bạn sẽ có 2 phòng ngủ và một phòng tắm riêng biệt. Bên tay phải cũng có 2 phòng ngủ và 1 phòng vệ sinh chung. Giữa 2 phòng ngủ sẽ có hành lang dẫn vào bếp. Từ phòng bếp chúng ta có thể mở thêm một cửa phụ ra sân và một cửa phụ ra sân sau. Sân sau được thiết kế với mục đích làm sân sơ chế khi gia đình có việc có thể mổ gà vịt cho tiện. Và ở đây cũng được làm mái kính để phơi quần áo không lo mưa, khu giặt phơi cũng được đưa vào đây.
Nếu để đánh giá công năng của ngôi nhà này, tôi muốn phòng khách rộng hơn bằng cách loại bỏ phòng ngủ sau bộ sofa và chuyển nó thành phòng khách, như vậy sinh hoạt sẽ thuận tiện hơn và công năng cũng hoàn hảo hơn rất nhiều. Nếu bạn thấy chúng tôi thiết kế mẫu nhà rất phù hợp với phong cách của bạn thì có thể liên hệ với Nhà Đẹp để được tư vấn kỹ hơn.
- Mẫu nhà cấp 4 9x18m có 4 phòng ngủ tại Hải Phòng NDNC4162
- Mẫu thiết kế nhà cấp 4 9x14m tại Thanh Hóa NDNC4165