Nhà cấp 4 gác lửng 3 phòng ngủ 1 phòng thờ 9x11m ở Quảng Bình NDNC4181
Đây là mẫu nhà cấp 4 gác lửng rất quen thuộc được chúng tôi thiết kế khá nhiều. Không hiểu sao lại có nhiều khách hàng thích mẫu thiết kế này mà mỗi căn nhà lại có kích thước khác nhau. Nhà cấp 4 gác lửng 3 phòng ngủ 1 phòng thờ 9x11m do công ty nhà đẹp thiết kế cho khách hàng có địa chỉ tại Quảng Bình. Nhà đẹp xin giới thiệu đến các bạn cùng tham khảo những hình ảnh cùng với thông tin chi tiết về mẫu nhà này.
Mẫu thiết kế nhà cấp 4 có gác lửng 3 phòng ngủ 1 phòng thờ 9x11m đang là xu hướng phổ biến ở các vùng nông thôn, thị trấn, huyện, xã hiện nay, đặc biệt là những mẫu nhà có 3 phòng ngủ và 1 phòng thờ. Đây là mẫu thiết kế kiến trúc phù hợp với những gia chủ có mảnh đất khá rộng, mong muốn sở hữu cho gia đình mình một không gian sống yên bình, hạnh phúc và gần gũi với thiên nhiên. Hiểu được những điều đó, công ty nhà đẹp chúng tôi có đội ngũ tư vấn thiết kế rất chuyên nghiệp, đã và đang mang đến bộ sưu tập các mẫu nhà cấp 4 đẹp trên khắp cả nước. Mời các bạn cùng chiêm ngưỡng mẫu nhà cấp 4 có gác lửng 3 phòng ngủ 1 phòng thờ 9x11m hiện đại trong bộ sưu tập đó của công ty chúng tôi qua bài viết chi tiết dưới đây nhé!
Đơn giá thiết kế và thi công nhà cấp 4 có gác lửng 3 phòng ngủ
Xin mời các bạn cùng nhà đẹp tham khảo đơn giá của mẫu nhà cấp 4 có gác lửng 3 phòng ngủ này nhé. Tại Quảng Bình, chi phí xây dựng có thể rẻ hơn một chút so với các khu vực thành phố khác.
- Địa điểm xây dựng: Quảng Bình
- Chủ đầu tư: Anh Du
- Diện tích sàn 1: 81m2
- Diện tích tầng lửng: 35,58 m2
- Diện tích vành mái: 81 × 0,4 = 32,4m2
- Tổng diện tích nhà: 81 + 35,58 + 32,4 = 148,98m2
- Tổng giá trị xây dựng: 148,98 × 5.000.000 = 744.900.000 đồng
- Diện tích nhà: 9x11m
Phối cảnh 3D tổng thể mẫu nhà cấp 4 có gác lửng 3 phòng ngủ 9x11m đẹp

Mặt tiền của mẫu nhà cấp 4 có gác lửng 3 phòng ngủ 1 phòng thờ 9x11m được chú trọng và nổi bật bởi các chi tiết, đường nét trang trí tinh tế. Ngoại thất được thiết kế hài hòa và khá ấn tượng, bắt mắt với tông màu chủ đạo là trắng sáng điểm xuyết các chi tiết màu đen ở các khung cửa. 2 gam màu trắng - đen là 2 gam màu đối lập nhưng khi kết hợp với nhau rất hài hòa, hỗ trợ nhau tạo nên vẻ đẹp hoàn thiện nhất cho tổng thể ngoại thất của mẫu nhà cấp 4 có gác lửng hiện đại. Phần chân tường được ốp gạch men cao cấp không chỉ tạo nên vẻ đẹp độc đáo cho ngoại thất công trình mà còn giúp gia chủ có thể vệ sinh nhà cửa một cách thuận tiện nhất.

Đặc trưng của những mẫu nhà cấp 4 hiện đại có gác lửng 3 phòng ngủ 1 phòng thờ 9x11m ở nông thôn là không gian mở thoáng mát, tiếp xúc gần gũi với cảnh quan thiên nhiên nhờ sử dụng hệ thống cửa dày. cụ thể là cho ngoại thất của ngôi nhà. Cửa chính và cửa sổ phụ của mẫu nhà cấp 4 được làm bằng chất liệu kính khung nhôm cao cấp giúp không gian ngôi nhà thu hút được nhiều ánh nắng và gió tự nhiên vào không gian bên trong. vẻ đẹp mát mẻ, thoáng đãng, vô cùng thư thái và có lợi cho sức khỏe của các thành viên sinh sống bên trong.

Với khí hậu ngày càng khắc nghiệt như hiện nay, xu hướng sống được nhiều chủ đầu tư ưu tiên lựa chọn nhất là không gian sống gần gũi với thiên nhiên. Vì vậy, mẫu nhà cấp 4 có gác lửng với diện tích sử dụng rộng rãi không thể thiếu thiết kế sân vườn và tường rào bao quanh. Đây cũng là mong muốn của rất nhiều gia đình chủ đầu tư khi gặp gỡ kiến trúc sư của công ty chúng tôi. Vì vậy, việc thiết kế không gian sân vườn xanh mát với nhiều loại cây cảnh, hoa lá được bố trí khoa học xung quanh ngôi nhà cấp 4 là tiêu chí hàng đầu trong phối cảnh 3D tổng thể ngôi nhà của kiến trúc sư. .

Mẫu nhà cấp 4 gác lửng 3 phòng ngủ 1 phòng thờ 9x11m ấn tượng luôn phù hợp với cuộc sống ngày càng hiện đại hóa ngày nay. Về mặt cấu tạo, mái dốc tương tự như xây nhà mái bằng, tuy nhiên sự chênh lệch và độ dốc của hai bên mái hoàn toàn khác nhau do đó mang lại hiệu ứng rất độc đáo, mới lạ và cuốn hút. hướng dẫn người xem. Mái lệch còn được thực hiện bằng cách đổ bê tông đặc nguyên khối lên mái, sau đó tùy theo lựa chọn của chủ đầu tư mà dán ngói hoặc tôn lên trên. Phần mái xéo trong mẫu nhà cấp 4 có gác lửng này vô cùng mới lạ, sang trọng góp phần mang đến sự hiện đại, đẳng cấp và tạo điểm nhấn khác biệt cho tổng thể không gian kiến trúc.
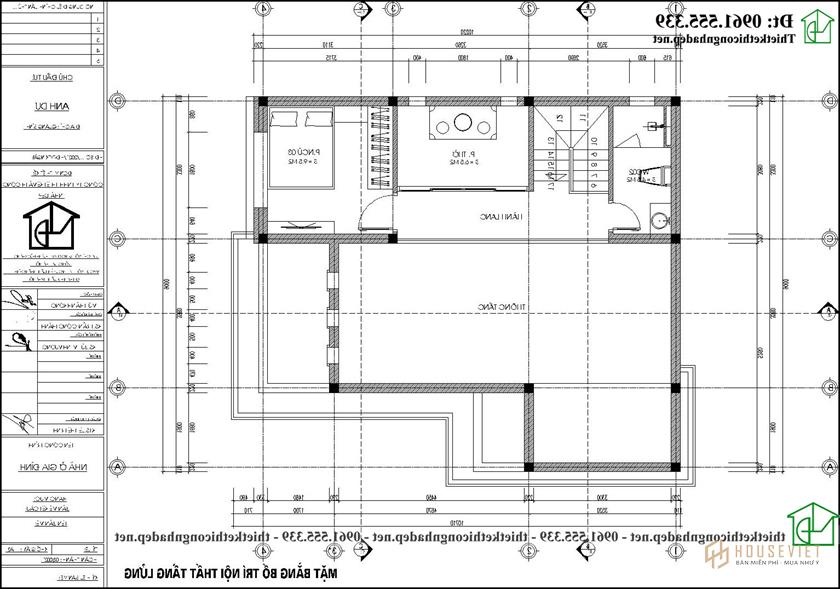
Mặt bằng công năng hợp lý của mẫu nhà cấp 4 gác lửng 3 phòng ngủ 1 phòng thờ

Công năng tầng 1 của mẫu nhà cấp 4 gác lửng 3 phòng ngủ 1 phòng thờ 9x11m được bố trí rất khoa học đảm bảo nhu cầu sinh hoạt của các thành viên trong gia đình gồm: 1 phòng khách rộng. rộng rãi, 1 phòng ăn và khu bếp sang trọng, 2 phòng ngủ vệ sinh chung thoáng mát, tiện nghi.

Từ cầu thang đi lên tầng 2 là phòng ngủ khá rộng - nơi nghỉ ngơi, thư giãn của các thành viên. 1 phòng thờ trang nghiêm - nơi con cháu thờ cúng tổ tiên. Cuối cùng là khu vệ sinh chung tiện nghi cạnh cầu thang giúp việc đi lại và sinh hoạt cá nhân của gia đình chủ đầu tư được thuận tiện.
Mẫu thiết kế sân vườn nhà cấp 4 gác lửng 3 phòng ngủ 1 phòng thờ 9x11m
Trong mẫu nhà cấp 4 có gác lửng này có thiết kế sân vườn nên Nhà Đẹp chia sẻ đến các bạn những hình ảnh và cách lên phương án thiết kế sân vườn của mẫu nhà này. Quý khách vui lòng kiểm tra xem có phù hợp với nhu cầu sử dụng của gia đình mình không nhé. Những hình ảnh này được chia sẻ để bạn sử dụng và áp dụng cho ngôi nhà của mình. Nếu bạn cần hỗ trợ hãy liên hệ với Nhà Đẹp để đội ngũ kiến trúc sư của chúng tôi hỗ trợ bạn.










Nếu quý vị và các bạn yêu thích mẫu nhà cấp 4 gác lửng 3 phòng ngủ 9x11m này hãy liên hệ với công ty nhà đẹp chúng tôi để nhận được sự tư vấn tốt nhất và báo giá chính xác nhất của công ty. chương trình nhà ở của gia đình bạn.
- Mẫu nhà cấp 4 gác lửng 8x13m độc đáo tại Đồng Nai NDNC4196