Nhà cấp 4 gác lửng, mẫu nhà cấp 4 mái xéo ở Nam Định NDNC4114
Vật mẫu Nhà cấp 4 mái xéo. - Tên nghe mới lạ nhưng thực tế bạn đã thấy mẫu xe này ở nhiều nơi. Xuất phát từ mẫu nhà cấp 4 đẹp truyền thống, nhà mái xéo ra đời khi nhu cầu của con người ngày càng tăng cao trong khi diện tích đất có hạn. Với việc cơi nới thêm tầng lửng, gia chủ có thêm không gian mới cho ngôi nhà cũng như có thêm cơ hội trang trí mặt tiền độc đáo, ấn tượng.
Mẫu nhà cấp 4 nông thôn hôm nay Nhà đẹp gửi tới các bạn là mẫu nhà của gia đình chị Hà ở Nam Định. Sở hữu mảnh đất có chiều ngang 7,6x12m, chị vô cùng phân vân không biết nên chọn nhà tầng hay nhà cấp 4 gác lửng vì chi phí không quá nhiều nhưng phải có ít nhất 3 phòng ngủ cho gia đình sinh sống. Đây không chỉ là khó khăn của riêng chị Hà mà nhiều hộ gia đình khác cũng rất đắn đo trong việc lựa chọn mẫu nhà. Nếu bạn đã xác định mình có kinh phí thấp nhưng nhu cầu sử dụng lại cao thì Nhà Đẹp khuyên bạn nên chọn mẫu nhà cấp 4 gác lửng vì nếu chọn nhà tầng thì bạn sẽ phải gánh một gánh nặng kinh tế rất lớn mà hãy lựa chọn nhà cấp 4 khang trang. Thông thường không gian cực kỳ chật hẹp.
Thông tin mẫu nhà cấp 4 mái xéo tại Nam Định
- Chủ đầu tư: Chị Hà
- Địa điểm xây dựng: Nam Định
- Kích thước nhà: 7.6x12m
- Diện tích sàn 1: 95m2
- Diện tích tầng lửng: 70m2
- Tổng diện tích xây dựng: 165m2
- Kinh phí dự kiến: 700 triệu đồng
- KTS: Nguyễn Văn Tuấn
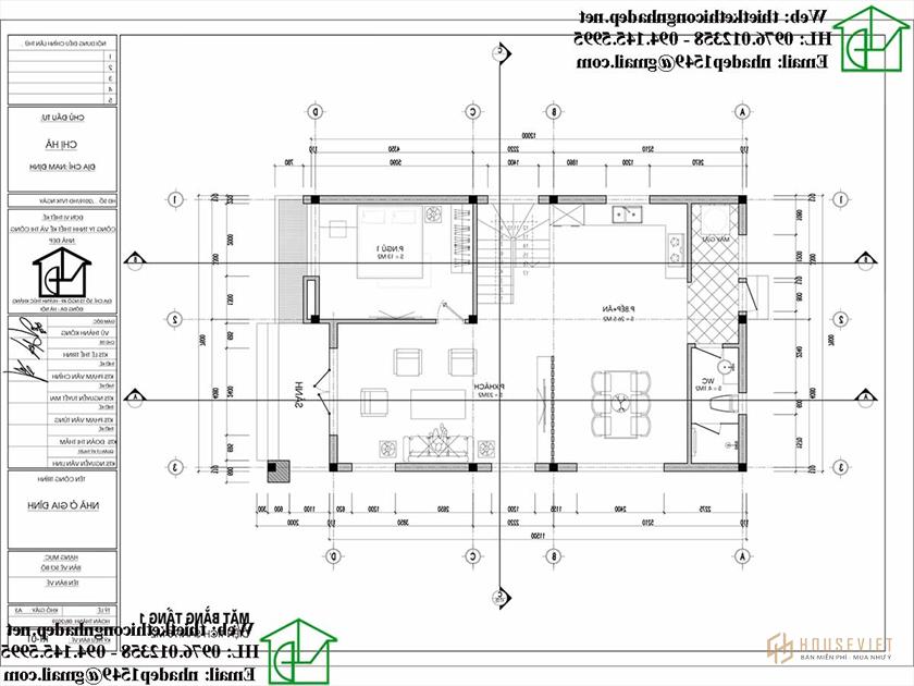
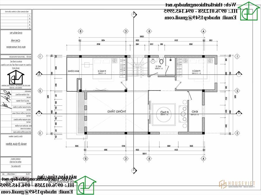
Cách bố trí nội thất của ngôi nhà gác xép

Nhìn vào mặt bằng nội thất bạn sẽ hình dung được những ưu điểm khi lựa chọn mẫu nhà cấp 4 gác lửng. Bạn nên hiểu rằng xây nhà quan trọng là không gian sống thoải mái, dù mặt tiền có rộng rãi đến đâu mà nội thất không được bố trí hợp lý. Hiểu được nhu cầu của gia đình chị Hà qua nhiều lần trao đổi, Nhà Đẹp đưa ra phương án bố trí công năng như sau:
- Tầng 1: 1 phòng khách, 1 phòng ngủ, 1 phòng bếp-ăn, 1 vệ sinh và khu giặt phơi. Phòng ngủ ở tầng 1 dành cho bố mẹ hoặc ông bà sinh hoạt để tiện cho việc sinh hoạt.
- Tầng lửng: 1 phòng thờ, 1 kho, 2 phòng ngủ và 1 vệ sinh chung.

Chúng tôi tin rằng với cách bố trí công năng và phân chia không gian này, gia đình chị Hà sẽ có một cuộc sống sinh hoạt vô cùng tiện nghi và thoải mái.
Phối cảnh 3D mẫu nhà cấp 4 gác lửng hiện đại tại Nam Định

Thêm một tầng lửng không chỉ có tác dụng nới rộng không gian sống mà còn có tác dụng thẩm mỹ. Nhìn vào mặt tiền, bạn sẽ thấy ngôi nhà trở nên cao ráo và sáng sủa hơn. Ngoài ra, việc lựa chọn phong cách thiết kế hiện đại giúp ngôi nhà trở nên sang trọng và bề thế hơn.
Tông màu chủ đạo là xanh trắng tạo cho người nhìn cảm giác nhẹ nhàng, gần gũi. Để tăng tính thẩm mỹ cho mặt tiền, Nhà Đẹp sử dụng gạch thẻ làm điểm nhấn cho bức tường giữa. Những viên gạch thô, nghệ thuật làm giảm đi sự vững chãi, kiên cố và có phần thô sơ trong nhiều mẫu kiến trúc hiện đại.

Kiến trúc mái của mô hình Nhà cấp 4 mái xéo. phân chia rõ ràng thành hai loại. Phần mái gác lửng chúng ta có thể đổ bê tông bồn nước hoặc cũng có thể lợp tôn. Còn đối với mái chéo, bạn có thể lợp ngói bằng khung sắt và làm trần thạch cao theo mái. Với những ngôi nhà có gác lửng thì việc thiết kế mái rất quan trọng, gác lửng có chiều cao thấp rất dễ bị nóng nên bạn cần có những biện pháp chống nóng hiệu quả cho ngôi nhà.
Trên đây chúng tôi đã giới thiệu đến các bạn thông tin sơ bộ về mẫu nhà cấp 4 mái lệch ở Nam Định. Dự kiến năm 2020 mẫu nhà sẽ hoàn thành và chúng tôi sẽ gửi đến quý khách hàng những hình ảnh chân thực nhất. Hãy theo dõi những thông tin cập nhật mới nhất của chúng tôi để có thêm nhiều ý tưởng mới cho ngôi nhà của bạn!
Trên đây chúng tôi đã giới thiệu đến các bạn thông tin sơ bộ về mẫu nhà cấp 4 mái lệch ở Nam Định. Dự kiến năm 2020 mẫu nhà sẽ hoàn thành và chúng tôi sẽ gửi đến quý khách hàng những hình ảnh chân thực nhất. Hãy theo dõi những thông tin cập nhật mới nhất của chúng tôi để có thêm nhiều ý tưởng mới cho ngôi nhà của bạn!
Hình ảnh thực tế mẫu nhà cấp 4 mái xéo tại Nam Định
Có lẽ cũng lâu lắm rồi, gần một năm rồi tôi mới đến thăm công trình này và chụp ảnh lại công trình để các bạn tham khảo. Đây là công trình đầu tiên ngoài Phúc Thắng - Nghĩa Hưng - Nam Định mà chúng tôi thiết kế. Sau dự án này, chúng tôi được chủ đầu tư giới thiệu thêm nhiều dự án nữa và đến nay đã thực hiện được tới 6 dự án tại khu vực này. Đây là một điều rất đáng mừng và hôm nay công ty Nhà Đẹp xin chia sẻ đến các bạn những hình ảnh về công trình này, mời các bạn cùng tham khảo. Những hình ảnh này đều là thực tế và không có diễn xuất trong đó nên nó mộc mạc và phản ánh thực tế của những gì đang diễn ra. Xin hãy chờ đợi nó.










Trên đây là những hình ảnh mà chúng tôi đã chụp lại và chia sẻ đến các bạn, nếu các bạn có nhu cầu tư vấn thiết kế thi công nhà cấp 4 gác xép vui lòng liên hệ với công ty Nhà Đẹp để được tư vấn. thêm lời khuyên. Cảm ơn mọi người!
- Xây nhà cấp 4 dưới 300 triệu, các mẫu nhà cấp 4 nông thôn giá rẻ
- Phương án thiết kế nhà cấp 4 3 phòng ngủ 5 × 20 thẩm mỹ và tiện nghi
- Nhà cấp 4 mái thái có 3 phòng ngủ dành cho hộ gia đình có thu nhập trung bình.
- Thi công trọn gói biệt thự 2 tầng 7x9m giá 750 triệu RMBCTG1
- Các mẫu nhà cấp 4 gác lửng đẹp năm 2021
- Thiết kế biệt thự 2 tầng đẹp
- Thiết kế biệt thự cổ điển đẹp
- Mẫu nhà cấp 4 3 phòng ngủ