Nhà cấp 4 hình chữ U có sân vườn rộng rãi theo phong thủy 2022
Mẫu nhà cấp 4 hình chữ U dưới đây là mẫu thiết kế kiến trúc biệt thự vườn kiểu homestay. Không gian riêng tư lịch sự được xây dựng trên khu đất rộng nhiều cây cối ở vùng nông thôn. Ngành kiến trúc Nhà hình chữ U 3 phòng ngủ 1 tầng . Thiết kế có sảnh lớn ở giữa là nơi bạn có thể để xe ô tô. Hay một cảnh thác nước bàn trà thu nhỏ xung quanh
- Nhà đẹp hiện đại mái ngói sân vườn khác biệt cấp 4
 - Hồ sơ thiết kế nhà vườn hình chữ U đẹp nhà chú Hồng Hưng Yên
 
Phối cảnh mặt tiền mẫu nhà cấp 4 hình chữ U anh Hoàng
Mời các bạn xem mẫu nhà trệt mái ngói 3 phòng ngủ đẹp mình sẽ cập nhật sau. Là một trong những mô hình Nhà cấp 4 ở U đẹp nhất hiện nay. Nhưng thiết kế nhà hình chữ U mái thái Nhật Bản với những giải pháp tiết kiệm nhất có thể. Để quý vị và các bạn tham khảo xây nhà hình chữ U mái ngói kiểu Nhật theo phong thủy.

Phương án thiết kế nhà cấp 4 hình chữ U theo phong thủy.
Nhà phong thủy hình chữ u Thiết kế đẹp bởi Cao Architects công ty thiết kế nhà đẹp mới chi nhánh Hà Nội. Chúng tôi thiết kế cho gia đình anh Hoàng ở Ba Vì Hà Nội. Ngôi nhà được thiết kế theo kiểu biệt thự vườn 1 tầng hình chữ U. Kiến trúc nhà song lập đơn giản, mái đổ, lợp ngói tươi. Theo phong thủy, nhà hướng Nam hơi nghiêng về phía Đông 7 độ. Điểm nổi bật của mẫu biệt thự nhà vườn hình chữ U là vào buổi chiều rất mát mẻ. Nhờ có khoảng sân rộng ở giữa nên rất thoáng mát.
Phong thủy nhà mái thái hình chữ U 1 tầng sân vườn 150m2
Có nhiều chủ sở hữu rất bối rối về phong thủy Nhà hình chữ u nó có thực sự tốt không? Sau đó, chúng tôi mạnh dạn trả lời như mọi khi. Điều quan trọng là nhà bếp và phòng tắm được bố trí không vi phạm. Hướng ban thờ nằm ở tĩnh trùng với hướng của cửa chính Ngọ Môn là hướng đẹp và đặc biệt hợp với tuổi của gia chủ.

View 3 căn nhà hình chữ U hướng Nam và Đông
Nếm thử nhà cấp 4 đẹp Hình chữ U 3 phòng ngủ 1 phòng thờ. Phong thủy thiết kế theo phong thủy nhà ở tuổi mậu ngọ 1978. Nhà anh Hoàng của gia chủ trên mảnh đất sân vườn rộng, có 3 mặt tiền. Nhưng sau khi nghiên cứu mẫu thiết kế nhà vườn cấp 4 3 gian mái ngói đẹp năm 2022. Kiến trúc sư tôi tư vấn chọn hướng nam tốt nhất cho gia chủ. Vừa hướng ra sân vườn vừa trồng cây trước mặt tiền của mẫu nhà cấp 4 đẹp hình chữ U 150m2 này.

Chọn màu sơn nhà cấp 4 hình chữ U theo phong thủy.
Cách chọn màu sơn tường cho mẫu biệt thự vườn cấp 4 hình chữ U đẹp được thiết kế theo tông màu tối. Nhân sinh hành Hỏa của - Tôn Mộc - Thiên Thượng Hỏa Đồng Tử Trạch. Xung quanh mép của mái nhà Nhà hình chữ u 1 tầng. Rộng 19m, sâu 12m phía sau, thiết kế theo kiểu mái đua. Xung quanh mép mái có vách ngăn thu nước để chống ẩm. Và các giải pháp thiết kế nhà cấp 4 mái thái nghiêng, giải pháp thoát nước và bịt kín hoàn thiện cho trần nhà.
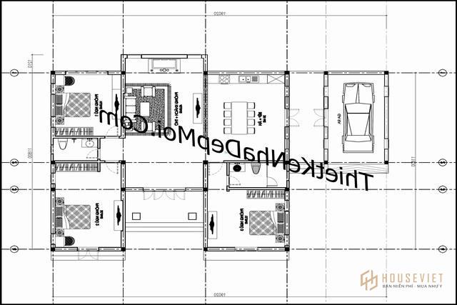
Bản vẽ mặt bằng nhà cấp 4 mái thái 3 phòng ngủ hình chữ U 1 phòng thờ
Phong thủy nhà hình chữ U hướng Đông Nam. Được thiết kế theo kiến trúc nhà cấp 4 3 phòng ngủ hiện đại ở nông thôn của anh Hoàng. Có lối đi xung quanh thông thoáng, sân trước rộng rãi. Bản vẽ nhà hình chữ U đẹp ở nông thôn Bên ngoài mặt tiền có 2 sảnh chính đi vào nhà. Bên phải phòng ngủ thứ 2 và sảnh chính rộng đi thẳng vào nội thất phòng khách ở trung tâm. Không gian phía sau là không gian thờ cúng chuẩn phong thủy hướng chính Đông cung Thịnh vượng.
Nghiên cứu bản vẽ nhà chữ U 150m2 3 phòng ngủ
Mặt tiền Nhà hình chữ u 1 tầng chân tường được ốp đá hoa cương, phần móng của mẫu nhà cấp 4 đẹp cao 45 cm tương đương với 3 bậc tam cấp của ngôi nhà. Gian bên trái thiết kế phòng ngủ rộng 12,8 m2 có vệ sinh độc lập, bên ngoài có cửa sổ thoáng mát. Kích thước các phòng của mẫu nhà vườn đẹp cấp 4 hình chữ U như sau:
- Phòng khách nội thất rộng: 40m2
 - Phòng ngủ 1 thiết kế rộng 15m2
 - Phòng rộng 20,6m2
 - Phòng bếp và phòng ăn rộng 26m2
 - Phòng ngủ 3 rộng 12,8 m2
 - 1 phòng vệ sinh chung 6m2
 

Mô tả thêm cho mẫu thiết kế nhà trệt hình chữ U mái ngói
Ngoài bản vẽ nhà cấp 4 đẹp hình chữ U, anh Hoàng còn thiết kế một gara ô tô ngoài trời riêng biệt nằm bên trái lối vào rộng rãi sử dụng cửa cuốn tự động Autodoor. Bàn ăn mở có cửa phụ bên hông lối vào sảnh. View nhìn ra sân vườn phía sau.
Sơ lược mẫu thiết kế nhà cấp 4 đẹp hình chữ U mái ngói
Mẫu thiết kế nhà cấp 4 chữ U 150m2 hiện đại được thiết kế theo lối kiến trúc nhà vườn kiểu mỹ. Nhưng toàn bộ hệ thống cửa chính và cửa sổ. Các phòng bên trong đều được làm bằng cửa gỗ gõ đỏ sang trọng. Trung tâm thoáng mát nhất của mẫu nhà cấp 4 đẹp chính là tiền sảnh lớn ở giữa phía trên có thiết kế vì kèo khung gỗ phía trên có mái kính cường lực che mưa mà vẫn đảm bảo ánh sáng thoáng mát.
Không gian nhà vườn hình chữ U ở nông thôn
Ở sảnh chính, trung tâm của mẫu nhà cấp 4 đẹp hình chữ U rộng 14,6 m2. Có thể tổ chức một bàn trà thật tuyệt trong khi thưởng thức trà đạo và đọc tin tức buổi sáng. Các thành viên có thể vừa ngắm những chậu lan đung đưa trong nắng mai. Hoặc đôi khi bất chợt cảm nhận được những âm thanh trong trẻo của cảnh vật. Hay tiếng côn trùng kêu gần đó thậm chí có thể chơi chim cảnh. Như Họa Mi hay Tiếng hát Chích Chòe đầy ấn tượng qua các mùa ..!

Chi phí xây nhà 1 tầng hình chữ U ở nông thôn 2022
Mẫu nhà 3 phòng ngủ trên đây có diện tích xây dựng là 150 m2 với kinh phí khoảng 900 triệu mái ngói thông thoáng sử dụng nội thất gỗ. Phong thủy thiết kế nhà hình chữ U rất hợp với những gia chủ có mệnh thiên về Đông và Nam. Nhà này nếu xây về hướng Đông và Đông Nam thì chỉ có thể tránh hướng Tây mà thôi. Nếu có mảnh đất rộng, bạn có thể xây nhà vườn 1 tầng hình chữ U 3 phòng ngủ. Kiến trúc biệt thự trệt đẹp biệt lập xung quanh có hàng rào an ninh tốt nhất hiện nay
3 mẫu nhà chữ U đẹp khác từ kiến trúc biệt thự của công ty
Các Mẫu nhà hình chữ u Nhà đẹp 1 tầng nhìn chung lát gạch màu nâu hoặc đỏ là đẹp nhất. Vì nó mang nét đặc trưng của vườn truyền thống. Tùy theo ô sân vườn rộng hay hẹp mà có cảnh quan và màu sơn. Nhân đây chúng tôi giới thiệu thêm các mẫu nhà 1 tầng hình chữ U. dưới đây của chị Hồng ở Hưng Yên có diện tích hơn 180m2 như sau



- Ngắm 8 mẫu thiết kế biệt thự vườn 3 - 4 phòng ngủ hiện đại năm 2022 chữ U sẽ được cập nhật thêm
 
Mẫu nhà 1 tầng hình chữ U diện tích từ 100m2 đến 110m2
Ngôi nhà hình chữ U thứ 2 1 tầng cấp 4 diện tích 100m2 nếu tính cả sảnh là 110m2. Năm 2022, kinh phí xây dựng khoảng 850 triệu nhưng do Bác Đạt Vĩnh Phúc thực hiện hoành tráng. Ngôi nhà song lập mái ngói đẹp được xây dựng trên mảnh đất rộng 14m. Diện tích ngang của bản vẽ nhà cấp 4 hình chữ U 12m sâu 10m có 3 phòng ngủ như sau


Mẫu biệt thự hình chữ u 1 tầng cấp 4 diện tích 250m2 đến 300m2
Đây là kiểu biệt thự vườn cấp 4 hình chữ U của anh Ngọc Đại Lải. Thiết kế có 2 phòng khách rộng rãi lên đến 50m2. Điều chính cần nói đến của biệt thự vườn 1 tầng kiểu Nhật 250 m2. Có một đài phun nước độc đáo của resort trước mặt bạn


Ngắm mẫu thiết kế nhà biệt thự vườn có bể bơi hình chữ U nhà anh Thành
Với phong cách mẫu thiết kế nhà cấp 4 hình chữ u đẹp Có 3 phòng ngủ 1 phòng thờ. Diện tích xây dựng 150m2 có thiết kế gara ô tô riêng biệt. Đặc trưng với mẫu nhà cấp 4 nông thôn độc đáo cá tính theo phong cách Châu Âu. Bộ áo liền quần kiểu Mỹ hiện đại. Chắc chắn là một trong những mẫu nhà vườn 1 tầng hình chữ U đẹp nhất hiện nay. Xứng đáng để bạn thoát khỏi những khuôn mẫu về kiểu nhà cấp 4 mái thái. Kiến trúc sân vườn hình chữ U truyền thống cũng như tính cách của bạn. Anh chị em xem thêm

Click để tìm hiểu thêm về thiết kế nhà 1 tầng kiểu mỹ hiện đại có bể bơi. Và ý tưởng xây nhà 1 bên có gara ở nông thôn. Mục tiêu nghỉ dưỡng của anh Thành là một ngôi nhà hình chữ U. Kiểu biệt thự TẠI ĐÂY để lựa chọn và học hỏi thêm về chuyên môn kiến trúc của anh. Mọi chi tiết vui lòng liên hệ 1800 6015 Phó giám đốc Mr. Để biết thêm chi tiết xây dựng và nhiều mẹo hơn.