Nhà cấp 4 mái thái 2 phòng ngủ 8x13m ở Sóc Sơn Hà Nội NDNC4185
Mẫu nhà cấp 4 2 phòng ngủ 8x13m được công ty Ngôi Nhà Đẹp thiết kế cho anh Phương, hiện gia đình anh đang ở Cầu Giấy, Hà Nội nhưng muốn xây một căn nhà cấp 4 ở quê để thỉnh thoảng hai vợ chồng về quê ngoại. một nơi để sống. . Nếu hai vợ chồng không về thì ông bà có thể dùng tạm để ở. Vì vậy, nhu cầu của gia chủ không nhiều, chỉ cần có 2 phòng ngủ và phòng khách là có thể thờ được. Trong đó ông bà sử dụng 1 phòng ngủ, còn lại 2 vợ chồng sẽ sử dụng, tuy có thêm con nhưng không ảnh hưởng nhiều đến công năng sử dụng. Vì lâu lâu mình mới về và chỉ về tầm 1-2 ngày nên hơi chật chội cũng không sao.
Mẫu nhà cấp 4 mái thái 2 phòng ngủ 8x13m kiểu Nhật là mẫu nhà cấp 4 độc đáo và thường được các gia đình có điều kiện kinh tế trung bình lựa chọn để xây dựng. Nhưng hiện nay, với xu thế hội nhập và mong muốn sở hữu một không gian sống xanh, rộng rãi, thoáng mát thì mẫu nhà cấp 4 đang dần trở nên phổ biến hơn kể cả ở những gia đình khá giả. Dưới đây là mẫu nhà cấp 4 2 phòng ngủ 8x13m đẹp phong cách hiện đại mà công ty chúng tôi thiết kế cho gia đình anh Phương ở Sóc Sơn - Hà Nội. Mời mọi người cùng xem qua.
Thông tin mẫu nhà cấp 4 mái thái 2 phòng ngủ 8x13m kiểu nhật
Ở mẫu thiết kế nhà cấp 4 này chúng tôi đã lên bản dự toán thiết kế nên các bạn muốn tham khảo có thể xem phần tổng hợp dự toán. Phần dự toán này gia chủ sẽ tự xây dựng nên sẽ loại bỏ các chi phí bên ngoài, các phần ria trong dự toán như chi phí quản lý, chi phí chuẩn bị… Vật liệu cũng được áp dụng vật liệu rẻ. trên thị trường chứ không phải những vật liệu cao cấp khác mà chúng tôi đang sử dụng để thi công cho khách hàng. Mời các bạn cùng tham khảo.
- Địa điểm xây dựng: Sóc Sơn - Hà Nội
- Chủ đầu tư: Anh Phương
- Kích thước nhà: 8x13m
- DTXD: 100m2
- Tổng giá trị hoàn thiện: 600 triệu đồng

Phối cảnh 3D mẫu nhà cấp 4 mái thái 2 phòng ngủ

Hòa mình vào không gian xanh mát của thiên nhiên xung quanh, giữa sân vườn rộng rãi được lát gạch chống trơn tối màu với nhiều cây xanh bao quanh. Mẫu nhà cấp 4 2 phòng ngủ 8x13m hiện lên một cách âm thầm, thân thuộc nhưng luôn làm say đắm bao ánh mắt của người qua đường. Ngôi nhà cấp 4 này xét về mặt hình thức thì rất giản dị, chân chất nhưng vẫn mang lại cảm giác vô cùng độc đáo và ấn tượng cho gia đình chủ đầu tư. Vẻ đẹp lung linh của ngôi nhà nổi bật trên sự kết hợp hài hòa giữa các gam màu. Chính gam màu trắng sữa tinh khôi kết hợp với màu xanh lam nhã nhặn của hệ mái đã tạo cho mẫu nhà cấp 4 2 phòng ngủ 8x13m trông rất nhẹ nhàng, thông thoáng và mát mẻ, rất phù hợp với điều kiện khí quyển. ở nước ta hiện nay.

Mẫu nhà cấp 4 mái thái 2 phòng ngủ 8x13m kiểu Nhật được kiến trúc sư thiết kế 2 hướng cửa. Cửa chính đặt ở sảnh và có hệ thống mái che chắn, hệ thống cột vuông cao vút. Cửa phụ nằm bên trái ngôi nhà. Trong những ngôi nhà cấp 4 hiện nay, việc thiết kế thêm một cánh cửa là điều vô cùng thiết thực. Nó không chỉ thuận tiện cho việc đi lại mà còn giúp ngôi nhà đón được nhiều hướng gió tự nhiên đồng thời tạo thêm sự thoáng mát và trong lành cho không gian bên trong.
Hệ thống cửa đi và cửa sổ được sử dụng đồng thời là cửa khung nhôm kính cao cấp và được tính toán bố trí tỉ mỉ để tận dụng mọi mặt thoáng của mẫu nhà cấp 4 mái thái 2 phòng ngủ. 8x13m cho hợp lý nhất. Đồng thời, kính còn mang đến sự lung linh, mờ ảo đầy thú vị, khơi dậy trí tò mò khám phá cảnh quan, không gian nội thất của mỗi vị khách khi đi ngang qua hoặc đến thăm nhà.

Hệ thống mái thái trong mẫu nhà cấp 4 mái thái 2 phòng ngủ 8x13m kiểu Nhật nổi bật trên nền trắng trung tính chủ đạo góp phần tạo nên sự nhẹ nhàng thanh thoát, sang trọng và đẳng cấp. Hệ thống mái thái Nhật Bản có kết cấu vô cùng vững chãi, kiên cố và sở hữu độ dốc vừa phải góp phần tạo nên một không gian vô cùng cân đối và hài hòa. Mái tôn Nhật Bản còn có nhiều ưu điểm vượt trội như thoát nước nhanh, chống ẩm, chống thấm hiệu quả, khả năng tản nhiệt tốt và đặc biệt là rất phù hợp với điều kiện thời tiết khắc nghiệt như nắng nhiều, mưa nhiều của đất nước. ta.
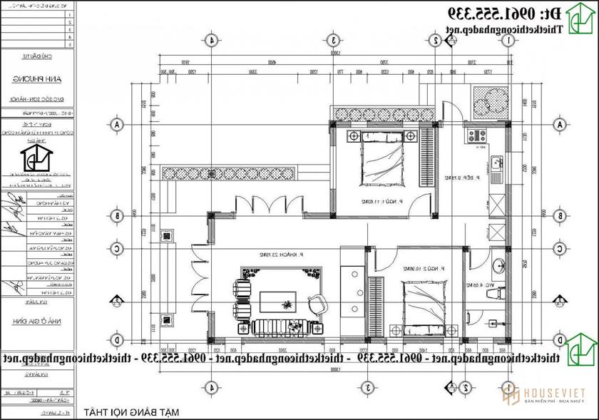
Mặt bằng công năng mẫu nhà cấp 4 mái thái 2 phòng ngủ 8x13m

Không gian nội thất của mẫu nhà cấp 4 2 phòng ngủ 8x13m được bố trí công năng được phân chia rõ ràng tiện nghi bao gồm 2 phòng ngủ, 1 phòng khách + phòng thờ và 1 phòng bếp ăn, phòng vệ sinh chung. Từ sảnh chính bước vào đầu tiên là phòng khách + phòng thờ với hệ thống 2 cửa chính rộng rãi, thoáng mát. Bên trong là 2 phòng ngủ yên tĩnh, thoáng mát được trang bị đầy đủ nội thất cần thiết. 1 phòng bếp hiện đại có cửa phụ thông ra sân, giúp tạo không gian thoáng đãng, thoát mùi tốt khi nấu nướng. 1 phòng vệ sinh chung đầy đủ tiện nghi ở cuối nhà.
Trên đây là sơ lược mẫu nhà cấp 4 mái thái 2 phòng ngủ 8x13m được thiết kế theo phong cách hiện đại. Với không gian sống đầy đủ tiện nghi, công năng rất phù hợp với nhu cầu sử dụng của gia đình chủ đầu tư. Nếu quý vị và các bạn có nhu cầu thiết kế nhà ở, biệt thự, lâu đài hãy liên hệ ngay với công ty chúng tôi qua số Hotline để được tư vấn cụ thể nhất.
- Mẫu thiết kế nhà cấp 4 mái bằng 2 phòng ngủ 7x10m tại Hải Dương NDNC4186
- https://thietkethicongnhadep.net/mau-nha-dep/nha-cap-4-3-phong-ngu/
- https://thietkethicongnhadep.net/mau-nha-dep/mau-nha-san-dep/
- https://thietkethicongnhadep.net/mau-nha-dep/mau-nha-2-tang/
- https://thietkethicongnhadep.net/mau-nha-dep/biet-thu-co-dien/
- https://thietkethicongnhadep.net/mau-nha-dep/biet-thu-2-tang/