Nhà cấp 4 mái thái 4 phòng ngủ 1 phòng thờ 17x10m ấn tượng tại Lai Châu NDNC4195
Hiện nay, mẫu thiết kế nhà cấp 4 mái thái 4 phòng ngủ 1 phòng thờ 17x10m sang trọng theo phong cách hiện đại được rất nhiều chủ đầu tư lựa chọn xây dựng làm mái ấm cho gia đình mình. Ngôi nhà mang đến sự tiện nghi và đẳng cấp, đồng thời đáp ứng đầy đủ mọi nhu cầu sử dụng, công năng tiện nghi cho tất cả các thành viên về một không gian sống thoáng đãng, mát mẻ và hợp với xu thế hội nhập hiện nay. Các bạn có thể tham khảo công trình nhà cấp 4 đẹp của gia đình Anh Trâm ở bài viết dưới đây do Nhà đẹp biên soạn để có thêm nhiều ý tưởng mới cho ngôi nhà thân yêu của gia đình mình nhé!
Thông tin về mẫu nhà cấp 4 mái thái 4 phòng ngủ 1 phòng thờ 17x10m đẹp
- Địa điểm xây dựng: Lai Châu
- Chủ đầu tư: Anh Trâm
- Kích thước nhà: 17x10m
- Diện tích nhà: 170m2
- Diện tích sảnh chính: 14.5m2
- Diện tích sảnh phụ: 13.2m2
- Diện tích diềm mái: 68m2
- Tổng diện tích mái bê tông: 170+14.5+13.2+68=266.7m2
- Tổng giá trị nhà thi công theo m2 mái bê tông: 266.7×5.500.000=1.466.850.000vnđ
- Diện tích mái ngói: 170×1.6=272m2
- Giá trị thi công phần mái ngói: 272×750.000=204.000.000 vnđ
- Tổng giá trị hoàn thiện: 1.466.850.000+204.000.000=1.670.850.000 vnđ
Hình ảnh 3D của mẫu nhà cấp 4 mái thái kiến trúc hiện đại
Mẫu thiết kế nhà cấp 4 4 phòng ngủ 1 phòng thờ 17x10m sở hữu hình khối cao ráo, thoáng đãng, kết cấu vững chãi và khỏe khoắn. Trụ cột vuông vắn trước sảnh chính đẹp mắt, trang trí độc đáo được ốp đá ở phần chân cột giúp tôn lên sự trang nhã, bền bỉ. Bậc tam cấp ốp đá màu đen, phần chân móng ốp gạch màu tối, có tác dụng hạn chế tối đa việc ngấm nước mưa, đảm bảo tính thẩm mỹ bền lâu cho không gian ngoại thất.

Ngôi nhà cấp 4 mái thái 4 phòng ngủ 1 phòng thờ 17x10m mang trong mình phong cách kiến trúc hiện đại nhưng không hề đơn điệu, vẫn toát lên vẻ đẹp tươi mới và sang trọng. Ấn tượng với gam màu trắng chủ đạo thể hiện cái nhìn nhẹ nhàng, trang nhã tạo cảm giác dễ chịu và vô cùng thư thái. Không những vậy còn tạo điều kiện thuận lợi trong việc phối kết hợp với các tông màu đi kèm đó là màu xanh than của hệ thống mái, màu xám của gạch chân tường, màu xanh của hệ thống cây cối, tiểu cảnh, giúp cho không gian ngoại thất của ngôi nhà cấp 4 đẹp trở lên lộng lẫy, bắt mắt, cuốn hút người nhìn hơn bao giờ hết.

Ngoài cửa chính phía mặt tiền, các kiến trúc sư còn bố trí với một lối cửa phụ để tránh việc phải quá phụ thuộc ở một lối ra, vào duy nhất. Đồng thời cửa chính sử dụng chất liệu gỗ tự nhiên kết hợp với các huỳnh kính bền đẹp vừa có tác dụng làm giảm thiểu tiếng ồn, cách âm tốt mà lại vẫn có thể thu hút ánh sáng mặt trời hiệu quả vào bên trong không gian nội thất dễ dàng.
Không chỉ vậy, hệ thống cửa phụ, cửa sổ của nhà cấp 4 mái thái 4 phòng ngủ 1 phòng thờ 17x10m được làm hoàn toàn bằng nhôm kính xingfa cao cấp, có khả năng nổi trội trong việc đón nhận ánh sáng mặt trời tốt, chống nóng, cách nhiệt tốt mang đến giá trị sử dụng cao, giúp cho không gian nội thất bên trong luôn luôn nổi bật và tràn ngập sức sống.

Điểm nhấn của mẫu nhà cấp 4 mái thái 4 phòng ngủ 1 phòng thờ 17x10m này chính là hệ mái đồ sộ giật cấp, nổi bật. Mái thái có rất nhiều ưu điểm vượt trội trong quá trình tản nhiệt, thích ứng với điều kiện thời tiết tốt. Không những vậy, với kết cấu mái thái sở hữu độ dốc khá lớn còn giúp cho việc thoát nước tốt, hạn chế tình trạng thấm dột, giảm thiểu quá trình sinh ra rêu, mốc, nấm bẩn làm tổn hại đến tuổi thọ cũng như mỹ quan chung của không gian nội – ngoại thất.
Không gian sân vườn được bố trí rộng rãi, hài hòa. Thay vì sử dụng toàn bộ là diện tích còn lại làm sân thì kiến trúc sư đã thiết kế thêm một khu vườn xanh mát với đầy đủ các loại cây cối, tiểu cảnh, các thành viên có ngồi trong nhà và ngắm những cảnh vật thiên nhiên xung quanh qua những ô cửa kính trong suốt mà quên đi những lo toan vất vả do cuộc sống xô bồ mang lại.
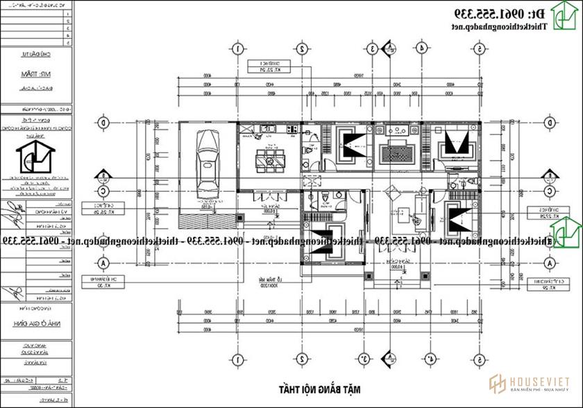
Mặt bằng công năng của mẫu nhà cấp 4 đẹp 4 phòng ngủ

Mặt bằng nhà cấp 4 mái thái 4 phòng ngủ 1 phòng thờ 17x10m được thiết kế vô cùng tiện nghi, đầu tiên là phòng khách rộng rãi, thoáng mát liên thông với không gian phòng thờ trang nghiêm và được ngăn cách bởi bức vách trang trí. 1 gara hiện đại có mái che, rất thích hợp cho việc cất giữ các phương tiện đi lại. Tiếp theo là không gian nghỉ ngơi của gia đình chủ đầu tư gồm 4 phòng ngủ. Trong đó có 1 phòng ngủ dành master và 3 phòng ngủ thường vô cùng yên tĩnh, các phòng ngủ đều có cửa sổ nhìn ra sân vườn tươi xanh. Phòng bếp kết hợp phòng ăn bố trí cạnh khu vực gara – đây là nơi ấm cúng, hạnh phúc nhất của ngôi nhà. 2 phòng vệ sinh chung được bố trí hài hòa, khoa học ở gần các phòng ngủ rất thích hợp cho việc đi lại và sinh hoạt của các thành viên.
Hình ảnh 3D thiết kế nội thất nhà cấp 4 mái thái 4 phòng ngủ
Nội thất phòng khách
Đây là không gian phòng khách của ngôi nhà cấp 4 mái thái 4 phòng ngủ 1 phòng thờ 17x10m khi nhìn từ ngoài vào. Tông màu chủ đạo là màu trắng tinh tế kết hợp cùng màu nâu trầm của gỗ tự nhiên vừa mang đến sự hiện đại, sang trọng vừa đem lại sự ấm áp, tươi mới.

Bộ ghế sofa màu nâu và đen được đặt sát tường kết hợp cùng bàn trà gỗ kiểu dáng hiện đại. Tivi được đặt trên mặt kệ bằng chất liệu gỗ và kê sát tường. Tô thêm vào điểm nhấn cho không gian phòng khách chính là những bức tranh treo tường, những chậu hoa, cây cảnh xanh mát mang đến cảm giác dễ chịu và trong lành. Đặc biệt, không gian phòng khách được thiết kế mở, liên thông với khu vực phòng thờ tạo nên sự thông thoáng, rộng rãi.

Hệ thống đèn âm tường kết hợp với quạt đèn trang trí với kiểu dáng bắt mắt, tạo nên những nét thanh thoát, đơn giản nhưng vô cùng tinh tế và có sức cuốn hút mạnh mẽ cho không gian phòng khách hiện đại.

Toàn bộ sàn và 1 phần tường phòng khách được ốp bằng gạch men màu trắng vân mây và màu nâu trầm để đem lại sự sang trọng và gần gũi, giúp không gian phòng khách luôn có cảm giác tươi mới, sạch sẽ…
Nội thất phòng bếp
Tiếp đến là khu vực phòng bếp, chủ đầu tư là một người yêu thích nấu ăn nên không gian này được thiết kế khá chú trọng về mặt hình thức, phong thủy và sự tiện dụng, dễ dàng, thuận tiện cho việc sử dụng.

Căn bếp được bài trí khoa học, gọn gàng, nội thất bếp sử dụng gỗ phun sơn phủ bóng cao cấp, thiết kế tủ kệ bằng gỗ cao ráo bền đẹp. Mặt bếp ốp đá tự nhiên và tường bếp ốp gạch được trang trí hoạ tiết đẹp mắt, đi cùng tiểu cảnh xanh kế bên, tạo nên sự hài hoà, cân bằng cho không gian tổng thể. Hệ thống ánh sáng cũng được các kiến trúc sư phân bổ hợp lý, khoa học.

Bàn ăn gỗ mặt phẳng hình chữ nhật với màu trắng thuần khiết, kết hợp với bộ ghế bọc nệm chân trụ sắt phun sơn tĩnh điện màu đen, kiểu dáng thanh thoát, đi cùng mảng tường ốp đá thước lớn, vừa giúp tô điểm không gian bếp + ăn thêm phần sang trọng, vừa tạo cảm giác rộng rãi, thoáng đãng.
Nội thất phòng ngủ
Tương tự như cách thiết kế nội thất phòng bếp, phòng khách thì phòng ngủ cũng được thiết kế khá tối giản, tiết chế . Nội thất cơ bản có giường ngủ, tủ quần áo, kệ tivi, bàn làm việc… Phong cách thiết kế chủ yếu linh động theo sở thích của các thành viên. Các phòng ngủ được bố trí liền kề với nhau tạo sự thống nhất liền mạch cho không gian nội thất ngôi nhà. Đồng thời góp phần giúp các thành viên trong gia đình gắn kết với nhau.

Phòng ngủ 1 được bố trí khá ấm cúng và theo tông màu trắng phối trí thêm màu nâu gỗ của những món đồ nội thất chủ đạo, điểm xuyết thêm chút màu đen trang trí càng làm cho không gian phòng ngủ này trở lên nổi bật.

Toàn bộ mảng tường phía sau giường được kiến trúc sư sử dụng gỗ tường màu nâu, tab 2 bên đầu giường bố trí tủ kệ gỗ, kiểu dáng tinh tế và đèn ngủ có thể điều chỉnh ánh sáng. Thiết kế đơn giản nhưng với sự bố trí khoa học, tông màu trang nhã tạo sự ấm cúng và thoải mái cho nhu cầu sinh hoạt.

Hệ tủ quần áo âm trần được thiết kế khéo léo, có sự kết hợp khéo léo giữa chất liệu gỗ tự nhiên và các vật liệu hiện đại. Gạch lát sàn sáng bóng cùng tấm thảm màu xám đã giúp nhấn mạnh không gian phòng ngủ dường như trở nên sang trọng và hiện đại hơn.

Bàn trang điểm bố trí bên góc phòng, với kiểu bàn nhỏ, gương treo tường hình chữ nhật, phối cùng kệ tủ tivi, giá sách và để đồ trang trí lưu niệm phía trên – đây là một sự bứt phá cho ý tưởng thông minh, giúp tăng không gian lưu trữ đồ đạc nhưng vẫn đảm bảo không gian thoải mái, tiện nghi không quá rối rắm, chật trội

Phòng ngủ thứ 2 được bài trí khá xinh xắn. Tông màu có sự chuyển đổi thích hợp với sở thích và tư duy thẩm mỹ. Mảng tường màu trắng, đồ nội thất màu nâu phối cùng màu hồng của tấm chăn, nệm giúp kích thích thị giác, tạo cảm giác trẻ trung, tươi sáng.

Mẫu giường gỗ vừa phải thông minh tích hợp tab gỗ, đèn ngủ đầu giường, nhấn thêm hệ thủ âm trần cao ráo và một hệ cửa sổ bằng kính rộng có rèm che phía đối diện, đảm bảo ánh sáng cũng như sự lưu thông khí. Căn phòng ngủ này tương đối rộng rãi, thoáng mát, đáp ứng mọi được nhu cầu sử dụng và tính thẩm mỹ cho chủ nhân của căn phòng.

Phòng ngủ 3 c được thiết kế với tông màu trắng là chủ đạo. Vì căn phòng có diện tích không quá rộng, việc lựa chọn sắc trắng tươi sáng đi kèm với màu nâu của vật liệu gỗ sẽ tạo cảm giác rộng rãi và gần gũi hơn rất nhiều cho không gian. Căn phòng được thiết kế khá đơn giản, không quá cầu kỳ với những món đồ nội thất cơ bản như giường, tủ quần áo, bàn trang điểm,… đáp ứng đầy đủ công năng sinh hoạt một cách tiện nghi.

Tủ quần áo được thiết kế sát tường và cao sát trần để tăng không gian lưu trữ, cũng như giúp không gian được rộng thoáng hơn. Đi cùng với sử dụng hệ thống cửa kính khung nhôm màu đen, rèm cửa 2 lớp, giúp gia chủ có thể chủ động trong việc lấy sáng và gió tự nhiên từ bên ngoài vào. Đơn giản, nhẹ nhàng và tinh tế là những từ ngữ dùng để miêu tả hoàn hảo về không gian nội thất phòng ngủ này.

Phòng ngủ 4 này mang đậm nét sự trẻ trung và tươi sáng, tạo cảm giác ấm áp, lãng mạn nên thơ vô cùng. Thiết kế tông màu màu trắng và nâu chủ đạo, kết hợp thêm bức tranh treo tường làm điểm nhấn cùng hệ thống cửa kính lớn có rèm che mang ánh sáng và gió mát cho tổng thể không gian thêm phần ấm cúng.

Từ góc nhìn này của phòng ngủ, các bạn có thể thấy góc đối diện giường bố trí tủ quần áo thông minh, cùng các ô trống làm nhấn để các món đồ lưu niệm, sách, tạo nên hiệu ứng thẩm mỹ vô cùng cao cho không gian phòng ngủ nổi bật và tăng công năng sử dụng tiện nghi. Thêm vào đó sàn nhà lát gạch men màu trắng, chiếc giường bằng gỗ có nệm êm ái giúp phòng ngủ trở lên thoáng mát, tiện nghi và đầy đủ hơn.

Nội thất phòng thờ
Phong tục thờ cúng tổ tiên ở Việt Nam là tục lập bàn thờ người thân đã chết ở nhà và cúng bái hàng ngày hoặc trong những dịp sóc vọng, giỗ, Tết…

Chính vì thế không gian phòng thờ được bố trí vô cùng tỉ mỉ, cẩn trọng từng chút một, gồm có 1 bàn thờ bằng chắc khỏe và cặp lục bình, hoàng phi bằng gỗ tự nhiên bền đẹp, cặp chân đèn, lư hương bằng đồng – đây là những vật dụng thường thấy của mọi gia đình Việt Nam. Bên cạnh đó còn có 2 ô cửa sổ bằng kính thoáng mát có tác dụng giúp cho không gian phòng thờ không bị tăm tối hay bị ám mùi do khói nhang hay đèn dầu tỏa ra.
Nếu các bạn yêu thích mẫu thiết kế nhà cấp 4 mái thái 4 phòng ngủ 1 phòng thờ 17x10m hiện đại này thì hãy liên hệ với Nhà đẹp qua số hotline hoặc để lại tin nhắn tại website để được tư vấn tận tình và chi tiết nhất nhé!
- Nhà cấp 4 mái Thái 16x9m 4 phòng ngủ tại Thái Nguyên NDNC4199
- Mẫu nhà cấp 4 2 phòng ngủ mái Thái 7x8m tại Nam Định NDNC4198