Nhà cấp 4 mái thái đẹp 12x10m ở Đông Hưng Thái Bình NDNC4175
Sau nhiều năm thiết kế và tạo dựng được uy tín, có lẽ Nhà Đẹp cũng đã tạo dựng được nhiều uy tín với khách hàng. Đặc biệt tại khu vực Đông Hưng này đã có rất nhiều khách hàng đặt thiết kế nhà cấp 4 mái thái 12x10m đẹp. Công ty Nhà Đẹp rất hân hạnh được thiết kế và thực hiện cho gia chủ những ước mơ hoài bão trong đời. Đây là mẫu nhà cấp 4 mái thái được chúng tôi thiết kế cho người quen. Xin giới thiệu để toàn thể quý vị và các bạn cùng tham khảo.
Sinh ra và lớn lên ở một vùng quê nhiều đất đai, cò bay cánh cò bay trên vùng quê lúa 2 năm trời đó là Tỉnh Thái Bình. Gia đình Bác Tôn may mắn sở hữu một mảnh đất thổ cư rất rộng và vuông vắn. Là người thuộc thế hệ trước, anh mong muốn sở hữu một ngôi nhà mang nét đẹp truyền thống cổ kính. Vì vậy khi đến với công ty nhà đẹp chúng tôi đã nói rõ quan điểm về mong muốn của mình. Sau gần 2 giờ trao đổi và giới thiệu đến chị em rất nhiều mẫu nhà. Bác quyết định lựa chọn mẫu nhà cấp 4 mái thái đẹp 12x10m để xây dựng tổ ấm hạnh phúc cho gia đình mình.
Dưới đây là hình ảnh phối cảnh 3D và mặt bằng công năng sử dụng của mẫu nhà cấp 4 mái thái đẹp, mời các bạn cùng theo dõi và đưa ra ý kiến của mình về mẫu nhà độc đáo này nhé.
Thông tin xây nhà cấp 4 mái thái
- Địa điểm xây dựng: Thái Bình
- Chủ đầu tư: Bác Tôn
- Diện tích nhà: 150m2
- Kích thước nhà: 12x10m
- Tổng giá trị hoàn thiện: 1 tỷ đồng
Phối cảnh 3D mẫu thiết kế nhà cấp 4 mái thái 12x10m

Màu sắc của toàn bộ ngoại thất của mẫu nhà cấp 4 mái thái được sử dụng tông màu trắng là chủ yếu. Đây là gam màu đại diện cho sự tươi mới, tinh tế và thuần khiết. Màu trắng là màu trung tính được sử dụng phổ biến nhất trên thị trường quốc tế hiện nay. Gam màu trắng rất phù hợp với phong cách thiết kế hiện đại, gam màu trắng tinh tế này rất dễ phối hợp với các gam màu khác và tạo nên điểm nhấn rất đẳng cấp và sang trọng cho toàn bộ không gian kiến trúc. của mẫu nhà cấp 4 mái thái hiện đại.

Hệ thống cửa được sử dụng trong mẫu thiết kế nhà cấp 4 mái thái đẹp 12x10m là cửa gỗ kết hợp kính. Lựa chọn loại vật liệu này mang đến sự hoàn thiện nhất định cho không gian kiến trúc ngoại thất, thể hiện sự mới mẻ và chắc chắn cho tổng thể công trình. Chất liệu gỗ truyền thống kết hợp với những ô kính mang đến sự tinh tế trọn vẹn cho không gian ngoại thất. Đây cũng là cách kết hợp vật liệu cao cấp tinh tế, phổ biến nhất hiện nay và được nhiều gia đình chủ đầu tư áp dụng trong ngôi nhà của mình. Loại chất liệu gỗ kết hợp với này khiến cho ngoại thất của mẫu nhà cấp 4 mái thái trở nên khác biệt và mới lạ hơn rất nhiều.

Phần mái của mẫu nhà cấp 4 diện tích 12x10m này được thiết kế theo kiểu mái lệch sang trọng. Mái thái mang lại rất nhiều công dụng hữu ích cho vẻ đẹp của ngôi nhà như giúp thoát nước mưa tương đối nhanh, chống thấm, dột, chống nóng tốt mà giá thành xây dựng lại hợp lý. Qua đó, mang đến vẻ đẹp chắc chắn, bền vững theo thời gian và thu hút ánh nhìn của mọi người xung quanh cho tổng thể không gian sang trọng của công trình.

Bạn có quan tâm: Nhà cấp 4 3 phòng ngủ
Bên ngoài mẫu nhà cấp 4 mái thái đẹp 12x10m là hệ thống sân vườn rộng rãi được quy hoạch gọn gàng tiết kiệm diện tích đất hơn rất nhiều. Một ngôi nhà đẹp phải được thiết kế theo quy hoạch tổng thể hài hòa với cảnh quan thiên nhiên, sân vườn đến cổng, tường rào. Bao quanh ngôi nhà cấp 4 này là hệ thống cổng, tường rào, hiên nhà được xây dựng kiên cố và sơn màu trắng sáng tinh tế. Một góc sân vườn được thiết kế độc đáo, nền nhà lát gạch đỏ nổi bật và xung quanh là những chậu cây cảnh xanh mướt tinh tế. Tạo điều kiện kết nối không gian ngoại thất với nội thất hài hòa với cảnh quan xanh xung quanh, tạo nên vẻ đẹp mới lạ, độc đáo cho bộ mặt tổng thể của công trình.
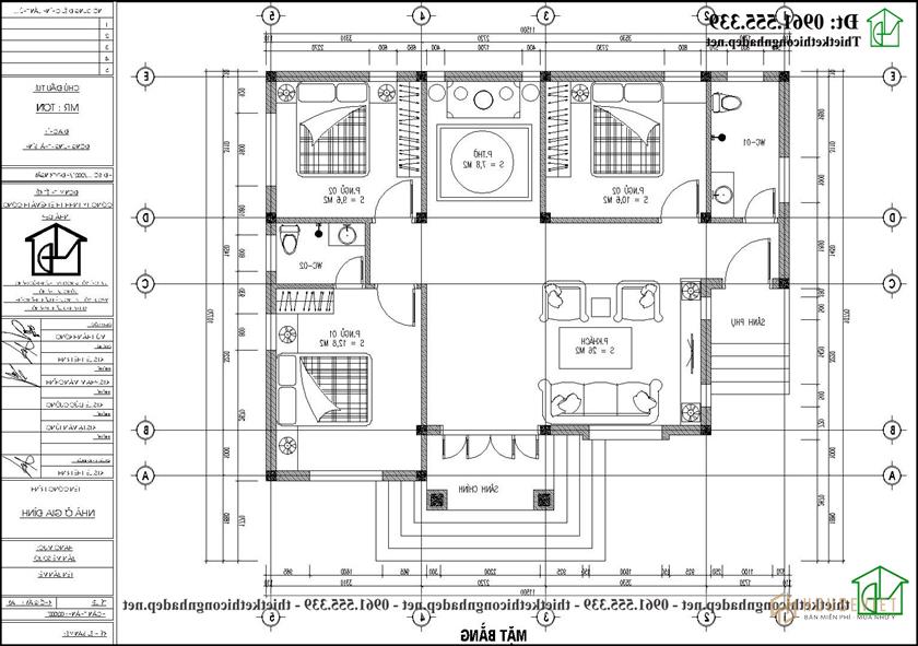
Mặt bằng công năng mẫu thiết kế nhà cấp 4 12x10m 3 phòng ngủ 1 phòng thờ

Từ sảnh chính của mẫu nhà cấp 4 mái thái đẹp 12x10m đi vào là phòng khách rộng rãi. Đi vào bên trong là không gian phòng thờ trang nghiêm - nơi hội tụ những điều may mắn của cả gia đình. 3 phòng ngủ được bố trí hợp lý xung quanh nhà tạo không gian yên tĩnh cho việc nghỉ ngơi. Gồm 1 phòng ngủ chính có phòng tắm riêng. Cuối cùng, một phòng vệ sinh chung được thiết kế gần khu vực phụ để tiện cho việc sinh hoạt cá nhân.
Do cần yếu tố phong thủy nên khu vực bếp được thiết kế riêng bên ngoài. Nhìn chung, mẫu nhà cấp 4 này được kiến trúc sư thiết kế vô cùng tiện nghi và đáp ứng đầy đủ yêu cầu của gia đình chủ đầu tư.
Với không gian nội thất, cách bố trí nội ngoại thất như trên, mẫu nhà cấp 4 mái thái đẹp 12x10m thực sự trở thành sự lựa chọn vô cùng hợp lý của nhiều gia đình ở nước ta hiện nay. Mọi yêu cầu tư vấn thiết kế về phong cách kiến trúc quý khách hàng vui lòng liên hệ trực tiếp với kiến trúc sư của công ty nhà đẹp chúng tôi để được tư vấn miễn phí!
- Mẫu thiết kế nhà cấp 4 3 phòng ngủ 1 phòng thờ 9x18m tại Nam Định NDNC4178