Nhà Ống 2 Tầng 3 Phòng Ngủ 1 Phòng Thờ Tiện Nghi Và Hiện Đại
Hiện nay những mẫu thiết kế nhà ống 3 phòng ngủ rất được các gia đình trẻ ưa chuộng. Từ đó, rất nhiều gia chủ tìm kiếm bản vẽ thiết kế nhà này. Mẫu Nhà ống 2 tầng 3 phòng ngủ 1 phòng thờ sẽ được giới thiệu trong bài viết này. Hãy cùng Nội Thất Đương Đại điểm qua 5 mẫu nhà đẹp nhất dưới đây.
Nhà 2 lầu, 3 phòng ngủ, 1 phòng thờ, diện tích 80m2
Mẫu thiết kế nhà ống có mặt tiền 5m dài 16m. Do muốn tiết kiệm chi phí nên gia chủ chỉ xây mái bằng cho căn hộ. Mặt tiền được thiết kế đơn giản với cửa sổ dài từ tầng 1 lên tầng 2 để đón nắng. Tầng 2 có ban công nhỏ để trồng cây và phơi quần áo.

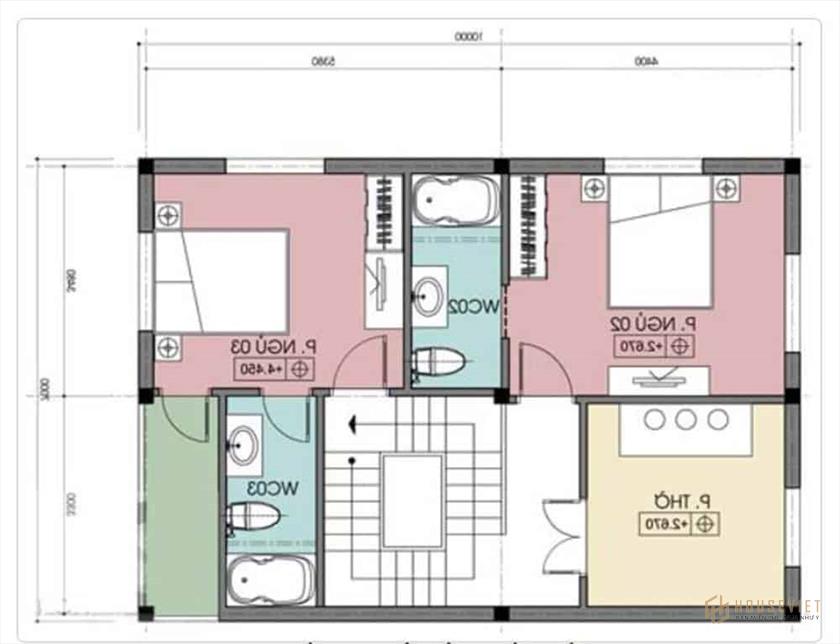
Nhà được thiết kế chỉ 2 tầng để di chuyển dễ dàng. Chủ nhà yêu cầu một phòng ngủ ở tầng 1 dành cho người lớn tuổi. Tầng 2 sẽ bao gồm phòng ngủ Master gần ban công của gia chủ. Vào sâu trong tầng 2 sẽ là phòng ngủ của các con và phòng thờ. Phòng thờ có diện tích khá rộng khoảng 20m2 là nơi thờ cúng yên tĩnh, trang nghiêm.

Mẫu thiết kế nhà ống 2 tầng 3 phòng ngủ có gara ô tô.
Với diện tích hơn 100m2, căn hộ được thiết kế rộng rãi và rất tiện nghi. Mặt tiền được bố trí làm gara ô tô rộng 25m2. Thiết kế nhà mái bằng theo phong cách hiện đại với nhiều cửa sổ đón gió. Ban công và cửa sổ tầng 2 được làm bằng kính để gia chủ có thể ngắm cảnh.

Diện tích tầng 1 khá rộng rãi với 70m2 dành cho phòng khách, bếp và phòng ngủ chính. Phòng khách liên thông với bếp bằng ba bậc tam cấp, trên bậc thang trồng cây xanh và tạo tiểu cảnh. Điều này làm cho phòng khách rất đẹp và xanh. Phòng ngủ master có WC và view ra sân sau. Chủ nhà dành 3m2 sân sau trồng cây nên view cực đẹp.

Tầng 2 thiết kế 2 phòng ngủ cho con với diện tích 15m2 có WC riêng. Phòng thờ được bố trí gần ban công, có tầm nhìn đẹp, vị trí phong thủy tốt. Diện tích còn lại được gia chủ tận dụng làm phòng đọc sách. Có kệ sách lớn và bộ sofa để gia đình có không gian đọc sách lý tưởng.

Mẫu thiết kế nhà ống 2 tầng 3 phòng ngủ 1 phòng thờ nhỏ tại tum
Bạn sẽ thích nó thiết kế nhà ống Rộng rãi và thoải mái này. Mặt tiền ngôi nhà được thiết kế theo phong cách hiện đại 2 tầng 1 tum. Màu sơn tường trắng và vàng tạo nên vẻ trang nhã và tinh tế cho căn hộ. Mỗi tầng đều có ban công và cửa sổ lớn đón nắng vào nhà.

Tổng diện tích khoảng 88m2, mặt tiền 4m, dài 22m. Do mặt tiền hẹp nên kiến trúc sư đã đặt 1 phòng ngủ và 1 phòng thờ ở tầng tum. Do đó, không gian của các phòng rộng hơn rất nhiều. Tầng 1 sẽ là khu sinh hoạt chung, có 1 WC.

Ở tầng 2, gia chủ bố trí phòng ngủ master rộng 30m2 và phòng ngủ cho con. Mỗi phòng ngủ đều có phòng tắm riêng. Tầng tum được gia chủ bố trí thêm 1 phòng ngủ và 1 phòng thờ hướng ra sân thượng. Do ánh nắng vào nhà khó nên giếng trời được xây ở cầu thang để đón nắng.

Nhà ống 2 tầng 3 phòng ngủ 1 phòng thờ 84m2
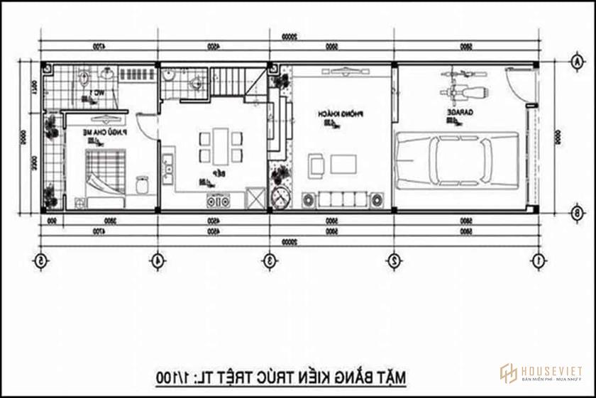
Vật mẫu Nhà ống 2 tầng 3 phòng ngủ 1 phòng thờ Căn hộ này có diện tích 84m2. Mặt tiền 7m, dài 12m. Khoảng sân trước nhà khá rộng khoảng 30m2 để trồng cây và làm sân hóng mát. Tầng 1 còn có gara ô tô rộng khoảng 25m2 nên diện tích tầng 1 hơi hẹp. Tuy nhiên, kiến trúc sư vẫn bố trí được phòng ngủ ở tầng 1, phòng khách và bếp ăn.

Tầng 2 diện tích 84m2 được chia thành 2 phòng ngủ và 1 phòng thờ. Chủ nhà cũng muốn có khoảng sân rộng để trồng cây, phơi quần áo và làm nơi vui chơi cho các bé. Mỗi phòng có diện tích hơn 15m2 nhìn ra ban công nên rất thoáng mát.

Mẫu thiết kế nhà ống 2 tầng 3 phòng ngủ tân cổ điển
- Phối cảnh mặt tiền theo phong cách tân cổ điển
Thiết kế căn hộ vô cùng sang trọng và đẳng cấp theo phong cách tân cổ điển. Căn hộ có gara rộng gần 15m2. Lối vào nhà được ngăn cách bằng bậc tam cấp dẫn ra cửa chính. Mặt tiền ngôi nhà được thiết kế tỉ mỉ với nhiều họa tiết mang phong cách tân Châu Âu. Phần mái Thái của căn hộ có nhiều lớp chồng lên nhau tạo thêm nét nghệ thuật cổ điển.

- Bản vẽ mặt bằng nhà 2 tầng 3 phòng ngủ 1 phòng thờ tiện nghi.
Với diện tích 70m2, tầng 1 được bố trí phòng khách, bếp và phòng ngủ. Diện tích mỗi phòng 20m2, phần còn lại để cầu thang nên rất rộng rãi và thoáng mát. Phòng khách có bộ sofa chữ L cao cấp để gia chủ tiếp khách. Phòng ngủ master rộng 15m2 có hướng nhìn ra sân vườn sau nhà rất đẹp.


Trên tầng 2, 2 phòng ngủ cũng được thiết kế theo phong cách Châu Âu. Phòng thờ có diện tích nhỏ hơn và nằm sâu bên trong nhà. Đây là nơi thờ tự nên cần đảm bảo sự yên tĩnh, uy nghiêm.

Để không gian luôn xanh mát, gia chủ tận dụng sân thượng để trồng cây xanh. Sân thượng có một góc nhỏ làm sân phơi, phần còn lại là khu vườn nhỏ xanh mát.

Hy vọng bài viết trên sẽ giúp bạn có nhiều ý tưởng để thiết kế nội thất nhà ống. Mẫu Nhà ống 2 tầng 3 phòng ngủ 1 phòng thờ cũng rất đa dạng. Hãy liên hệ với Nội Thất Đương Đại để xem thêm nhiều mẫu nhà đẹp.
 
  
  
 ![[CẬT NHẬT!!!] 400+ Mẫu nhà vuông 3 tầng vượng khí với dòng chảy tuần hoàn (P2)](https://cdn.houseviet.vn/images/news/19042022/132948532019224198-m.png) 
 