Nhà ống 2 tầng 4,5x10m mái bằng giá rẻ 500 triệu NP2T009
Mẫu thiết kế nhà 2 tầng 4,5x10m mái bằng giá rẻ 500 triệu là kiểu nhà khá khó thiết kế vì có nhiều yếu tố tiêu cực, đặc trưng nhất là diện tích khuôn không đẹp. Thời gian giới hạn. Chính vì điều này, đòi hỏi kiến trúc sư phải có sự khéo léo và chu đáo hơn rất nhiều. Tại đây, công ty chúng tôi sẽ gửi cho bạn một Mẫu nhà ống 2 tầng vô cùng hoàn hảo và khiến nhiều người phải ngỡ ngàng, mê mẩn trước vẻ đẹp của nó. Mời các bạn cùng tìm hiểu!
Danh mục nội dung
Thông tin mẫu nhà ống 2 tầng 4,5x10m. mái bằng
- Chủ đầu tư: Anh Quang
- Diện tích nhà: 4,5x10m
- DTXD: 90m2
- Tổng giá trị xây dựng: 450-500 triệu đồng
- Địa điểm xây dựng: Hà Nội
Phối cảnh 3D mẫu thiết kế nhà ống 2 tầng 4,5x10m Mái bằng phẳng Rẻ

Có thể thấy rõ kiến trúc sư của công ty chúng tôi đã rất tỉ mỉ và chú trọng khi thiết kế mặt tiền cho mẫu nhà 2 tầng 4,5x10m mái bằng giá rẻ 500 triệu. Vì là nhà mặt phố nên những chi tiết rườm rà, trang trí công phu ở mặt tiền đã được lược bỏ để mang đến sự thông thoáng hoàn hảo. Ngôi nhà ống 2 tầng này hiện lên với bố cục hình khối đơn giản và nhẹ nhàng. Màu trắng chủ đạo kết hợp với lớp đen huyền bí. Cùng với đó là lớp gạch giả gỗ màu nâu được ốp toàn bộ mặt tiền tầng 1 tạo nên điểm nhấn rất riêng và ấn tượng cho toàn bộ không gian ngoại thất của ngôi nhà mà không quá rườm rà, rối rắm.

Toàn bộ mẫu nhà 2 tầng 4,5x10m mái bằng giá rẻ 500 triệu sử dụng cửa kính khung nhôm màu đen cao cấp dễ dàng đón ánh sáng tự nhiên từ bên ngoài vào. Điều này mang lại lợi ích to lớn cho sức khỏe của các thành viên, ngoài ra còn giúp tiết kiệm rất nhiều năng lượng cho chủ đầu tư. Với nhiều ưu điểm vượt trội như vậy, gia chủ không thể từ chối sử dụng loại này bởi nó có kết cấu khung nhôm rất chắc chắn, có độ trong suốt, chịu nhiệt, an toàn và cách âm rất tốt. đầy đủ và hiệu quả.

Chúng ta hãy chuyển sang phần mặt tiền của mẫu nhà ống 2 tầng 4,5x10m mái bằng giá rẻ 500 triệu với hệ thống cây xanh và tiểu cảnh dày đặc mang đến không khí trong lành và mát mẻ. vững chãi với thiên nhiên, đồng thời tạo nên một không gian tươi mới, độc đáo và ấn tượng cho các thành viên sinh hoạt bên trong. Hãy thử tưởng tượng vào mỗi buổi sáng sớm hay sau mỗi buổi làm việc mệt mỏi và căng thẳng, chúng ta ngồi nhâm nhi tách trà, ly cà phê ngắm nhìn cây cối tươi mát xung quanh và tận hưởng cuộc sống. Không có gì tốt hơn là sống.
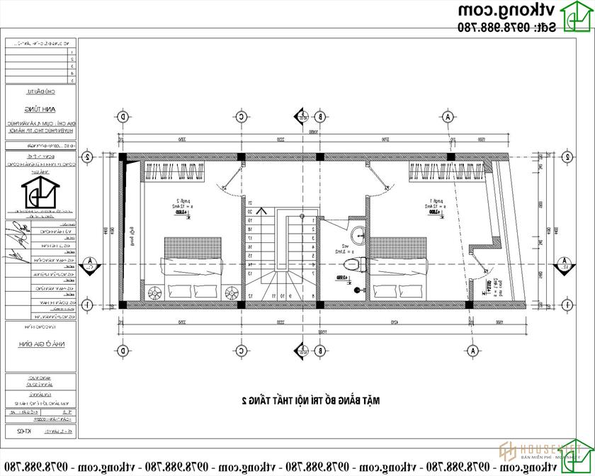
Mặt bằng công năng nhà ống 2 tầng 4,5x10m Mái bằng phẳng Rẻ

Bước vào tầng 1 của mẫu thiết kế nhà 2 tầng 4,5x10m mái bằng 500 triệu giá rẻ đầu tiên là không gian phòng khách khá rộng rãi được thiết kế theo phong cách hiện đại, sang trọng. Tiếp đến là khu vực bếp với hệ thống bàn bếp và bàn ăn hiện đại. Đây là nơi các thành viên trong gia đình nấu nướng và thưởng thức những món ăn ngon. Phòng tắm chung nằm giữa nhà bếp và phòng khách.

Tầng 2 là không gian nghỉ ngơi gồm 2 phòng ngủ được thiết kế nội thất giống nhau và phù hợp với sở thích của từng thành viên trong gia đình. Bên cạnh đó là khu vệ sinh chung tiện nghi, sạch sẽ được bố trí hài hòa giữa không gian 2 phòng ngủ rất thuận tiện cho việc đi lại và sinh hoạt.
Trên đây là mẫu thiết kế nhà ống 2 tầng 4,5x10m Mái bằng phẳng giá rẻ 500 triệu đồng được nhiều nhà đầu tư quan tâm. Để biết thêm thông tin chi tiết về dòng máy này, hãy gọi ngay cho công ty chúng tôi để được tư vấn cụ thể!
Mẫu nhà ống 2 tầng mái bằng 5x11m NP2T008
Mẫu nhà ống 2 tầng 7x11m đẹp hiện đại NP2T007
Mẫu thiết kế nhà phố 2 tầng đẹp hiện đại tại Thái Nguyên NP2T6