Nhà Ống 2 Tầng Có Giếng Trời | 10+ Mẫu Thiết Kế Đẹp Nhất
Vật mẫu Nhà ống 2 tầng có giếng trời hiện đang là giải pháp kiến trúc hiệu quả được áp dụng rộng rãi. Đối với những ngôi nhà ống, nhà phố có diện tích nhỏ hoặc khiêm tốn. Ưu điểm của giếng trời chính là mang lại sự thông thoáng và tràn đầy sức sống cho không gian trong nhà. Với những mẫu nhà ống 2 tầng có giếng trời mà chúng tôi giới thiệu, bạn sẽ tìm được ý tưởng cho ngôi nhà của mình!
Nhà ống 2 tầng có giếng trời lệch tầng.

Xây nhà ống lệch tầng cũng là một giải pháp cho những không gian nhỏ hẹp. Việc chia tầng giúp tạo tầm nhìn đa dạng, phong phú với nhiều góc độ khác nhau. Đứng ở cầu thang bạn cũng có thể cảm nhận được ngôi nhà với những không gian mới ấn tượng. Ngoài ra, thiết kế nhà ống Giếng trời còn giúp nhà ống đón được nhiều nắng và gió kết hợp với lan can cây xanh thỏa mãn sở thích của nhiều gia chủ.
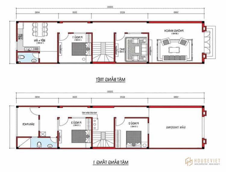
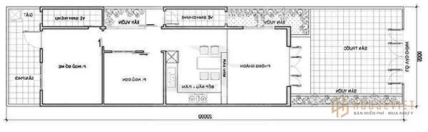
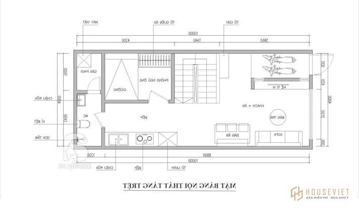
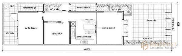
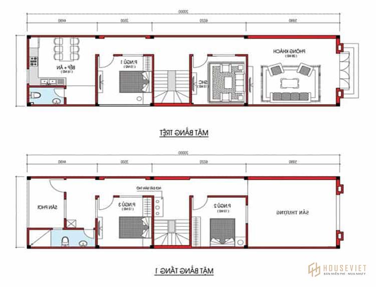
Mẫu nhà ống 2 tầng 4,8x16m có giếng trời

Gia chủ có yêu cầu thiết kế hiện đại, có giếng trời. Diện tích 4,8x16m có giếng trời giúp thông gió và lấy sáng vào nhà. Ngoài ra sân trước có sân sau thông thoáng. Chúng tôi đã lên phương án thiết kế với kinh phí khoảng 600 triệu cho gia chủ, bạn có thể tham khảo mẫu dưới đây. Bên trong căn hộ thiết kế nội thất theo phong cách hiện đại
Nhà ống 2 tầng mái thái có giếng trời


Giải quyết vấn đề nhà chật nhưng bí bách thì sử dụng giếng trời là vô cùng thích hợp. Bằng cách sắp xếp thông minh bên trong ngôi nhà luôn thông thoáng, sạch sẽ và tràn đầy năng lượng. Bên ngoài ấn tượng phù hợp với chất lượng sống cao bên trong.
Nhà mái bằng 2 tầng có giếng trời và gác lửng
Không gian 2 tầng được kết hợp thêm 1 tum làm không gian xanh mát. Nếu gia đình có nhiều thành viên thì sử dụng gác lửng cũng là một giải pháp rất tốt để tăng thêm công năng sử dụng. Nhưng nhược điểm của nhà ống là sự bừa bộn và chật chội. Giếng trời là giải pháp kỹ thuật cung cấp ánh sáng tự nhiên bằng cách chiếu sáng từ mái xuống phía dưới giếng trời để ánh sáng lan tỏa khắp không gian bên trong.
Nhà ống 2 tầng có giếng trời 40m2
Không ai tin rằng không gian chỉ vỏn vẹn 40m2 này. Việc sử dụng giếng trời là giải pháp thông minh giúp không gian bên trong luôn sáng, thoáng và không bí bách như nhiều người vẫn nghĩ. Tận dụng ánh sáng là cách bố trí không gian nội thất đơn giản và rất khoa học. Ý tưởng thiết kế nhà ống có giếng trời này rất công năng.
Nhà 2 tầng 1 tum có giếng trời kết hợp ban công xanh mát.
Tăng sinh khí cho ngôi nhà bằng cách tận dụng ánh sáng và cây xanh. Đó là sở thích được nhiều gia chủ trẻ ngày nay áp dụng. Giảm bớt sự bừa bộn và chật chội từ những ngôi nhà ống san sát. Hay tạo không gian trong lành, tươi mát với ban công trồng cây xanh, rau xanh… đây cũng là không gian giải trí lý tưởng cho gia đình khi rảnh rỗi. Bên trong căn hộ là thi công nội thất theo phong cách hiện đại.
Nhà 2 tầng mái bằng có giếng trời công năng.

Với kết cấu đơn giản, không quá cầu kỳ nhưng ngôi nhà vẫn nhận được sự yêu thích của gia chủ. Vì không gian bên trong thỏa mãn được sở thích cũng như yêu cầu. Kỹ thuật thiết kế giếng trời không hề đơn giản, đòi hỏi kiến trúc sư phải có nhiều kinh nghiệm và am hiểu về cấu trúc của ngôi nhà. Nếu bạn đang tìm giải pháp cho ngôi nhà ống 2 tầng chật chội. Bạn có thể tham khảo ý tưởng này!
Nhà ống 2 tầng có giếng trời kết hợp không gian xanh

Một ngôi nhà mà nhiều người mơ ước bởi nó không chỉ đáp ứng đủ tiêu chuẩn sống. Ngoài ra còn có một không gian xanh mát trong lành thơ mộng giữa lòng thành phố. Kết hợp sử dụng giếng trời với các vật liệu hiện đại càng tôn lên sự sang trọng và giá trị của ngôi nhà.
Nhà ống 5x18m bố trí giếng trời thông minh

Ngôi nhà ống được thiết kế 2 tầng kết hợp 1 tum được bố trí giếng trời thông minh. Giúp ngôi nhà thông thoáng, ấn tượng và mang đến cho gia chủ một không gian như mong muốn. Giếng trời còn có tác dụng thông gió tự nhiên và điều hòa không khí.
Mẫu thiết kế nhà ống 2 tầng 1 tum trẻ trung thoáng mát.

Căn nhà vừa đủ cho một gia đình trẻ sinh sống. Chỉ với diện tích 35m2 nhưng kỹ thuật giếng trời đã đáp ứng được ánh sáng, độ thoáng cũng như thẩm mỹ bên trong. Khi ngôi nhà tràn ngập ánh sáng thì việc tôn lên vẻ đẹp của không gian nội thất sẽ dễ dàng hơn.
Nhà ống 2 tầng rộng rãi thoáng mát có giếng trời 48m2.


Ngoài việc tận dụng các vật liệu lấy sáng tốt như kính cường lực. Thì việc sử dụng giếng trời là một kỹ thuật rất cần thiết trong ngôi nhà ống 2 tầng này.
Hy vọng vớing vật mẫu Nhà ống 2 tầng có giếng trời ở trên. Bạn sẽ nghĩ ra nhiều phương án thiết kế phù hợp với sở thích và tài chính của gia đình mình. Đừng quên liên hệ với chúng tôi để được hỗ trợ và tư vấn chi tiết!