Nhà Ống 3 Tầng 60m2 Tư Vấn Thiết Kế Nội Ngoại Thất Trọn Gói
Nhiều gia đình có Nhà ống 3 tầng 60m2 đã quay sang Nội thất đương đại để được tư vấn. Chúng tôi đã giúp họ có được không gian sống tốt nhất với gói nội ngoại thất đầy đủ. Chúng tôi hiểu rằng có rất nhiều gia chủ đang gặp khó khăn khi thiết kế nhà ống 60m2. Vì vậy trong bài viết này, Nội Thất Đương Đại sẽ giới thiệu những mẫu nhà ống 60m2 đẹp nhất.
Mẫu thiết kế nhà ống 3 tầng 60m2 nhỏ đẹp phong cách hiện đại
Phối cảnh mặt tiền
Để giảm chi phí cho gia chủ, kiến trúc sư đã lựa chọn phong cách thiết kế hiện đại, đơn giản. Kiểu mái bằng với kiến trúc khỏe khoắn sẽ khiến ngôi nhà ống tràn đầy sức sống. Với tổng kinh phí hơn 500 triệu, ngôi nhà ống này thoáng mát với tầm nhìn rộng và đẹp. Cửa chính làm bằng cửa kính 4 cánh nên đón gió cực tốt và tạo view đẹp ra phố. Ở tầng 2 và tầng 3 không thể thiếu ban công kính để đón ánh sáng. Một nửa mặt tiền được lát bằng gạch giả đá màu trầm tạo nên sự quyến rũ và sang trọng.

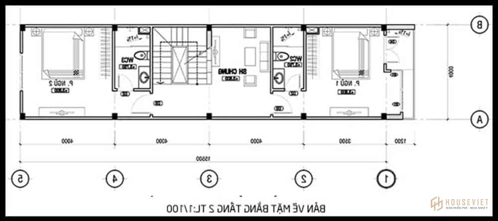
Mặt bằng chức năng
Bản vẽ mặt bằng tầng 1 cho chúng ta thấy diện tích phòng khách khoảng 12m2. Phòng bếp và phòng ăn rộng hơn khoảng 15 mét vuông. Giữa phòng khách và phòng bếp là cầu thang dẫn lên các tầng, ở đây kiến trúc sư bố trí một tiểu cảnh. Khu tiểu cảnh được trồng cây xanh đẹp mắt ngay dưới chân cầu thang, đón ánh sáng từ giếng trời.

Lên đến tầng 2 là không gian nghỉ ngơi của gia chủ. Tầng 2 gồm 2 phòng ngủ có phòng vệ sinh riêng. Phòng ngủ Master được bố trí gần ban công có tầm nhìn rất đẹp. Không chỉ vậy, phòng ngủ Master có diện tích hơn 15m2 rộng rãi và được bài trí xa hoa. Các kiến trúc sư đã bố trí phòng ngủ là nơi làm việc và thư giãn của gia chủ.

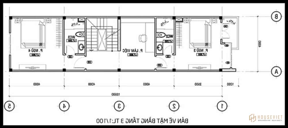
Đối diện với phòng ngủ chính là phòng ngủ cho con gái nhỏ. Trên tầng 3, một phòng ngủ nhỏ dành cho con trai cũng như con gái. Hai căn phòng có thiết kế trẻ trung, diện tích nhỏ hơn nhưng đầy đủ góc học tập và nội thất cần thiết. Tầng 3 còn có một phòng thờ nhỏ hướng ra ban công làm nơi thờ cúng tổ tiên.

Mẫu thiết kế nhà ống 3 tầng 60m2 kết hợp kinh doanh
Phối cảnh mặt tiền
Mẫu thiết kế nhà ống 60m2 này mang vẻ đẹp hiện đại, thanh lịch và vô cùng sang trọng. Mặt tiền ngôi nhà được lát bằng đá hoa cương đen vân mây trắng tinh tế, huyền bí. Cùng với đó là những ô cửa kính sáng trong làm nổi bật vẻ hiện đại. Tất cả hòa quyện trong một thiết kế Nhà ống 3 tầng 60m2 Thực sự hoàn hảo. Các tầng trên của ngôi nhà cũng có cửa kính và có tầm nhìn đẹp. Trên cùng là sân thượng trồng nhiều cây xanh để đón gió.

Mặt bằng chức năng
Đây là mẫu nhà ống kết hợp kinh doanh nên tầng 1 được tận dụng làm nơi bán hàng. Tầng 1 lắp cửa kính 4 cánh nên view cực thoáng, thích hợp làm cửa hàng thời trang, showroom. Thực tế, diện tích phòng kinh doanh hơn 30m2 rất rộng rãi và lịch sự. Vào sâu bên trong ngôi nhà là khu vực bếp và WC của gia đình.

Ở tầng 2, phòng sinh hoạt chung hay còn gọi là phòng sinh hoạt chung được đặt ở trung tâm. Hai phòng ngủ đẹp được đặt ở hai bên phòng khách. Trong đó, phòng ngủ Master được đặt trong cùng. Tầng 3 cũng là 2 phòng ngủ lớn và phòng làm việc được đặt ở giữa. Văn phòng này được đặt gần phòng ngủ của chủ nhân để họ làm việc vào ban đêm.

Để che cầu thang lên tầng thượng, gia chủ đã xây thêm một tum nhỏ. Phần tum nhỏ này sẽ có cả phòng thờ và phòng giặt, nhằm ngăn cách tạo sự yên tĩnh cho việc thờ cúng.


Mẫu thiết kế nhà ống 3 tầng 60m2 có gara ô tô trong nhà
Phối cảnh mặt tiền
Với mặt tiền hơn 4m, thiết kế nhà ống rất hiện đại với ban công rộng. Mỗi tầng đều có cửa kính 4 cánh và ban công rộng để đón gió và ánh sáng. Vì vậy, dù phòng khách hay phòng ngủ đều tràn ngập ánh sáng. Mặt tiền của ngôi nhà được lát bằng gạch màu xanh nước biển êm đềm và tinh tế. Những viên gạch nằm ngang giúp chiều ngang của ngôi nhà rộng hơn.

Mặt bằng chức năng
Tầng 1 là gara ô tô rộng diện tích 20m2. Tuy nhiên, gara này sẽ không kết nối với bếp ở tầng một. Được ngăn bằng cửa kính để ngăn mùi xăng vào bếp. Cầu thang lên các tầng được xây dựng tiểu cảnh xanh để gần gũi với thiên nhiên hơn. Lên đến tầng 2, phòng khách của gia đình được bố trí gần ban công với diện tích khá rộng.


Tầng 3 dùng để bố trí 2 phòng ngủ cho 2 con. Phòng rộng rãi, view đẹp, có WC trong phòng. Tầng trên cùng làm phòng giặt và phơi.

Mẫu Nhà ống 3 tầng 60m2 Tất cả đều được thiết kế rất tiện nghi và sang trọng. Nếu bạn đang có nhu cầu thiết kế nhà ống, hãy liên hệ ngay với Nội Thất Đương Đại. Chúng tôi thiết kế kiến trúc và nội thất trọn gói với chất lượng tốt nhất.