Nhà phố 3 tầng 300m2 phong cách hiện đại - SH BTD 0086
Mặc dù các loại hình thiết kế nhà chung cư, biệt thự không ngừng phát triển nhưng thiết kế nhà phố vẫn được nhiều gia chủ lựa chọn bởi tính thiết thực, đơn giản và chi phí vừa phải. Trong đó, nhà phố hiện đại luôn là loại hình xây dựng được ưa chuộng và áp dụng nhiều nhất. Hãy cùng tiếp tục bộ sưu tập nhà phố của Tập đoàn Sơn Hà với mẫu thiết kế nhà phố 3 tầng hiện đại tại Khu đô thị Cửu Viên, Hải Phòng nhé!
>>>> XEM NGAY: Mẫu biệt thự 3 tầng

Căn biệt thự được xây dựng trên mảnh đất 300m2 (mặt tiền 15m dài 20m). Kích thước móng nhà có diện tích 150m2 (mặt tiền 11m, dài 13m). Như vậy ngôi nhà có sân vườn khá rộng tạo không gian thoáng đãng cho ngôi nhà.
Thông tin dự án
Mẫu thiết kế nhà phố 3 tầng diện tích 300m2
Sau khi trao đổi với gia chủ về sở thích, mong muốn và nhu cầu sử dụng, Sơn Hà Group và gia chủ đã thống nhất về kiến trúc của công trình. Cụ thể, phong cách thiết kế được lựa chọn là phong cách biệt thự hiện đại, với những đường nét tối giản, tinh tế cùng tỷ lệ, hình khối thông minh.
Thiết kế này không chỉ phù hợp với thẩm mỹ hiện đại mà còn có tính ứng dụng cao trong tương lai. Đặc biệt hơn, phong cách hiện đại tối giản khiến ngôi nhà phố trở nên đặc biệt giữa những công trình xung quanh khác nhưng không xa rời cảnh quan chung của toàn khu đô thị.
Mặt tiền 15m ấn tượng với 02 phương án thiết kế
Mặt tiền là hình ảnh đầu tiên mà ai nhìn thấy của một ngôi nhà. Vì vậy, Tập đoàn Sơn Hà và chủ đầu tư đã mất rất nhiều thời gian để tìm hiểu và lựa chọn mẫu thiết kế phù hợp nhất, đáp ứng đầy đủ các yêu cầu: hiện đại, ấn tượng và tinh tế. Sau nhiều ngày lên kế hoạch, kết quả cuối cùng được chọn ra đã khiến gia chủ thực sự yêu thích và hài lòng.

Trong dự án thiết kế nhà phố hiện đại này, chúng tôi muốn nhấn mạnh đến yếu tố hiện đại và tối giản. Điều này được thể hiện qua cách bố trí các hình khối theo tỷ lệ khoa học vô cùng ấn tượng. Các hình khối có tỷ lệ khác nhau nhưng khi ghép lại với nhau lại tạo nên sự hài hòa và ăn khớp ấn tượng. Được bố trí bất đối xứng, những đường nét tối giản này tăng thêm nét hiện đại và cá tính cho cả kiến trúc mặt tiền.
Ngoài cách sắp xếp các đường nét thiết kế, yếu tố thứ hai làm nên sức hút cho mặt tiền của ngôi nhà này chính là sự phối hợp giữa màu sắc và chất liệu. Chỉ với một vài sự pha trộn giữa vật liệu và màu sắc, ngôi nhà trở nên sinh động, độc đáo và “đáng nhớ” hơn rất nhiều. Ở đây chúng tôi sử dụng những gam màu trung tính dễ kết hợp như: trắng, xám, nâu nhạt, v.v.

Theo đó, ngôi nhà cũng phong phú về chất liệu như gạch, kim loại, gỗ, .. và đặc biệt là kính cường lực. Việc ứng dụng kính cường lực trong suốt các ô cửa sổ, hành lang, lan can, ... mang đến hiệu ứng thị giác như mở rộng diện tích, giúp ngôi nhà trở nên rộng rãi hơn, đón được nhiều ánh sáng hơn vào ban ngày, từ đó góp phần tiết kiệm nhiên liệu điện.
Mặt bằng công năng bên trong ngôi nhà 150m2
Ngoài việc chăm chút mặt tiền thì việc bố trí công năng bên trong ngôi nhà cũng được gia chủ rất quan tâm. Một ngôi nhà hoàn hảo phải là một ngôi nhà không chỉ có thiết kế ấn tượng, hào nhoáng bên ngoài mà còn phải có công năng sử dụng phù hợp với sở thích và thói quen của gia chủ.

Hơn ai hết, Sơn Hà Group hiểu rõ nhu cầu này của tất cả các gia chủ hiện đại. Tại dự án này, với diện tích sàn lên tới 150m2, Tập đoàn Sơn Hà đã có những phương án thiết kế công năng được chủ đầu tư đánh giá là phù hợp và tiện ích. Hãy cùng tìm hiểu công năng của từng tầng:
- Tầng 1: Phòng khách; Phòng ăn; Phòng bếp; Phòng ngủ + WC; WC cho khách
- Tầng 2: Phòng ngủ + WC; Phòng ngủ chính với phòng thay đồ và WC chính
- Tầng 3: sảnh sinh hoạt chung; 2 phòng ngủ + WC; Sân chơi / Sân phơi
Bản vẽ mặt bằng công năng tầng 1
Tầng 1 được sử dụng làm không gian sinh hoạt chung của cả gia đình. Gồm phòng khách rộng, phòng ăn và bếp được ngăn cách bằng quầy bar và cuối cùng là phòng ngủ. Cách bố trí này mang đến sự thoải mái và tiện nghi trong sinh hoạt cho cả gia đình, tạo sự gắn kết giữa các thành viên trong bất kỳ không gian nào.

Phòng ăn liên thông với bếp được ngăn cách bởi quầy bar mang đến sự sang trọng và đẳng cấp nhất định cho toàn bộ không gian bếp. Đồng thời, thiết kế phòng ngủ có WC khép kín trong phòng đặc biệt phù hợp với những gia đình có người già, tránh việc phải sử dụng cầu thang nhiều.
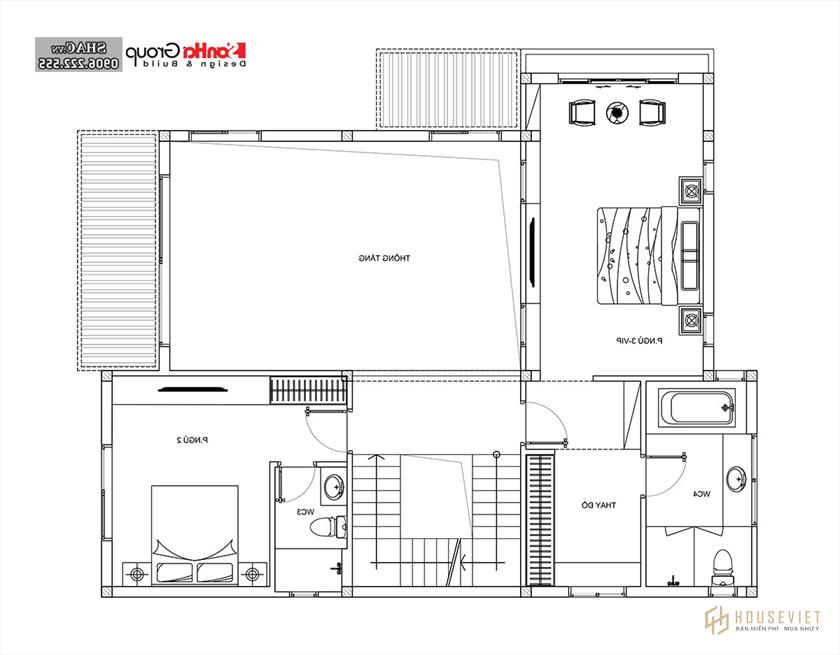
Chi tiết công năng tầng 2 nhà phố
Điểm đặc biệt tạo nên nét độc đáo cho công trình này chính là thiết kế giếng trời trên tầng 2 của ngôi nhà. Chủ nhà đã hy sinh diện tích sàn để làm thông tầng giúp không gian trở nên hiện đại và thông thoáng hơn, tạo nên nét độc đáo chỉ có ở ngôi nhà này.

Về mặt bằng công năng, tầng 2 được chia thành hai phòng ngủ khác nhau, một phòng có WC khép kín và một phòng ngủ master có phòng thay đồ và WC chính sang trọng. Có thể nói với phần diện tích còn lại các kiến trúc sư đã rất thông minh khi xử lý không gian hợp lý và tiện dụng này.
Thiết kế mặt bằng tầng 3

Tầng 3 - tầng thượng của ngôi nhà là sự kết hợp của cả không gian chung và riêng. Tầng này bao gồm 2 phòng ngủ khác nhau. Mỗi phòng ngủ đều có WC riêng biệt. Đồng thời, tại trung tâm tầng 3 là phòng sinh hoạt chung, nơi các thành viên trong gia đình có thể giao lưu, gắn kết với nhau. Phần còn lại là sân phơi và sân chơi ngoài trời, phục vụ cho việc trồng cây xanh, tổ chức tiệc nướng, v.v.
Thông tin về khu đô thị Cù Viên
Khu đô thị Cửu Viên tọa lạc tại Cửu Viên, Bắc Sơn, Kiến An, Hải Phòng. Bắt đầu hoạt động từ năm 2013 với thiết kế quy hoạch dành cho 10.000 cư dân. Hiện nay, khu đô thị Cửu Viên là một trong những khu đô thị hiện đại và văn minh nhất tại quận Kiến An nói riêng và Hải Phòng nói chung.

Với tổng diện tích lên đến 32 ha, cư dân tại khu đô thị Cửu Viên được hưởng lợi rất nhiều từ cảnh quan thiên nhiên, môi trường sống trong lành và các tiện ích nội khu và ngoại khu khác.
Trong dự án thiết kế nhà phố hiện đại tại khu đô thị Cửu Viên này, Sơn Hà Group đã lấy rất nhiều cảm hứng từ cảnh quan, môi trường và lối sống xung quanh để đưa ra phương án thiết kế và thi công phù hợp nhất cho gia chủ.
Kết luận
Trên đây là toàn bộ phương án thiết kế nhà phố 3 tầng diện tích 150m2 phong cách hiện đại tại khu đô thị Cửu Viên, thành phố Hải Phòng. Với những thông tin trên, Sơn Hà Group hy vọng đã mang đến cho bạn đọc những gợi ý tuyệt vời trong quá trình hoàn thiện ngôi nhà mơ ước. Xin cảm ơn và hẹn gặp lại các bạn trong những bài viết tiếp theo!