Nhà phố 3 tầng 4x18m 3 phòng ngủ tại Thái Bình NDNP3T45
Nhà phố 3 tầng hiện đại là kiểu kiến trúc quen thuộc ngày nay, hầu hết các con phố ở các tỉnh đều có kiểu kiến trúc này. Tuy nhiên, không phải mẫu nhà nào cũng nổi bật và ấn tượng, nhiều gia chủ chỉ xây mà không chú ý đến kiến trúc của ngôi nhà. Hôm nay nhà đẹp xin gửi tới quý khách hàng mẫu thiết kế Nhà mặt phố 3 tầng 4x18m với 3 phòng ngủ hiện đại và tiện nghi. Nếu nói về hình thức thì đây sẽ là một trong những mẫu nhà phố 3 tầng phong cách hiện đại. Rất đẹp và rất sang trọng xứng đáng là một trong những kiệt tác thời bấy giờ. Tuy nhiên, việc lựa chọn cho gia đình mình một mẫu nhà phố phù hợp không phải là điều dễ dàng. Bí quyết chính là bạn chỉ cần chọn cho gia đình mình một mẫu nhà phố 3 tầng phù hợp, sau đó bố trí lại công năng sử dụng là xong. Những công việc chuyên môn như thế này, tôi nghĩ bạn không nên làm gì cả, chưa chắc kết quả đã tốt. Lý do có thể bạn cũng có thể bố trí nội thất nhưng để bố trí khoa học và tiết kiệm nhất thì có lẽ chỉ có kiến trúc sư mới làm tốt được. Với nhiều năm kinh nghiệm và đã từng thiết kế hàng nghìn mẫu nhà, bạn có thể hoàn toàn yên tâm về đội ngũ kiến trúc sư của Nhà Đẹp.
Cũng như những ngôi nhà khác, ngôi nhà phố 3 tầng đẹp này đáp ứng được các yêu cầu về công năng, kiến trúc, thông thoáng và hiện đại. Tuy mặt tiền chỉ 4m nhưng chiều sâu của ngôi nhà lên tới 18m đã giúp các kiến trúc sư của chúng tôi dễ dàng bố trí công năng cũng như tạo không gian rộng rãi để sinh hoạt và tận hưởng.
Thông tin mẫu nhà phố 3 tầng 4x18m
- Chủ đầu tư: Anh Hiền
- Vị trí: Thái Bình
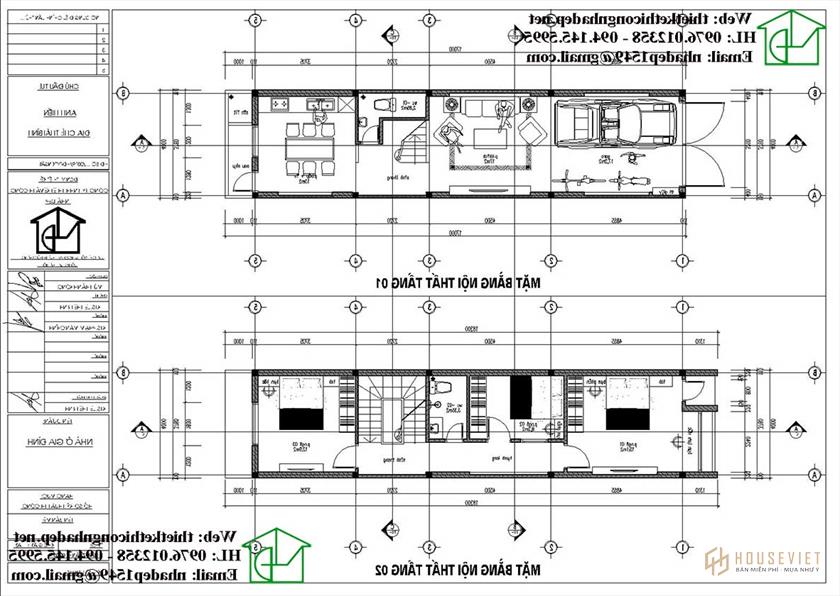
- Diện tích sàn 1: 68m2
- Diện tích tầng 2: 73m2
- Diện tích tầng 3: 70m2
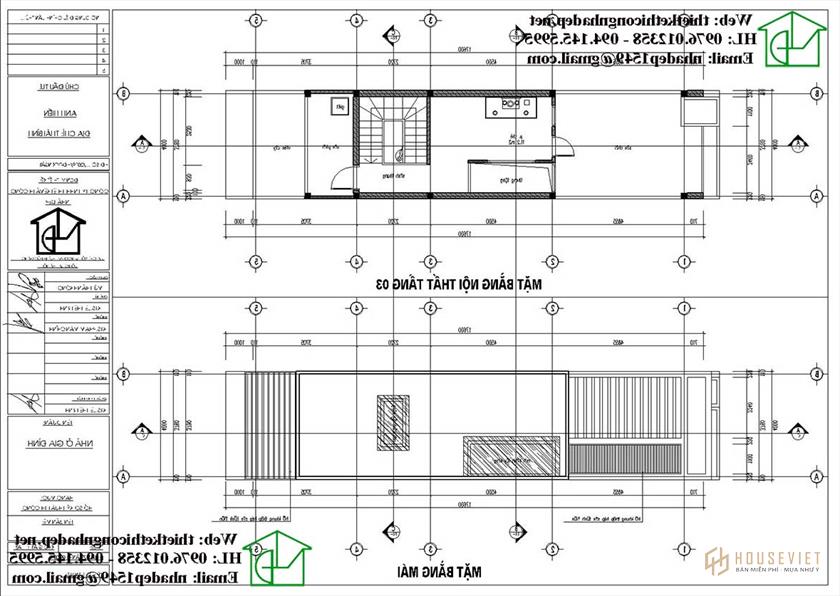
- Tổng diện tích xây dựng: 211m2
- Tổng kinh phí dự kiến: 1,1 tỷ đồng
Chi tiết mẫu nhà mặt phố 3 tầng 4x18m

Mẫu nhà phố 3 tầng được thiết kế theo phong cách hiện đại lược bớt những hoa mỹ cầu kỳ và sử dụng những khối kiến trúc vuông vắn, độc đáo cho mặt tiền. Tông màu trắng trung tính dễ phối hợp với các chi tiết như đá ốp mặt tiền sẫm, cửa kính cường lực khung nhôm đen và gạch giả gỗ, giúp nhấn nhá và làm nổi bật các chi tiết trang trí đó, đảm bảo sự hài hòa trong tổng thể bố cục.

Ánh sáng tự nhiên được coi là nguồn sáng tốt nhất giúp ngôi nhà của bạn luôn tràn đầy năng lượng. Đối với mẫu nhà phố đẹp này, chúng tôi sử dụng toàn bộ hệ thống cửa và lan can bằng kính cường lực cao cấp. Một mặt đảm bảo an toàn trong sinh hoạt, mặt khác tận dụng được ánh sáng tự nhiên vào không gian bên trong làm tăng tính hiện đại và thẩm mỹ cho ngôi nhà.

Công ty nhà đẹp cũng chú trọng đến việc đưa không gian xanh vào nhà. Tại vị trí ban công mỗi tầng chúng tôi chừa ra một khoảng không gian nhất định để trồng các loại cây như cây leo, cây cảnh… Ở tầng 3 mái bằng thiết kế thêm các thanh lam chắn sáng. Ánh sáng luôn tràn vào tầng thượng tạo không gian thoáng đãng.
Công năng sử dụng của mẫu nhà phố 3 tầng hiện đại

tầng 1: gồm phòng khách sang trọng, phía trước là khu để xe rất rộng rãi, đủ 1 ô tô và 2-3 xe máy. Phòng bếp kết hợp phòng ăn tiện nghi và có thêm cửa thông ra sân sau. Phòng vệ sinh chung nằm dưới chân cầu thang lên tầng trên.
tầng 2: Được thiết kế 3 phòng ngủ, 1 phòng vệ sinh chung cạnh cầu thang lên tầng. Trong đó có 1 phòng ngủ master dành cho bố mẹ được đặt ngay phía trước ban công tầng 2, đây là căn phòng có tầm nhìn đẹp nhất ngôi nhà.

Tầng 3: Tầng này phần lớn là để phục vụ các nhu cầu khác trong gia đình. Bố trí 1 phòng thờ, 1 phòng giặt, phía sau là sân vườn nhỏ của gia chủ. Phía trước là khoảng sân kết hợp sân chơi, khu vực trồng hoa hoặc phơi đồ cho gia đình.
Là một trong những mẫu thiết kế nhà phố đẹp, mẫu Nhà mặt phố 3 tầng 4x18m Điều này phù hợp với mọi gia đình có số lượng thành viên từ 2 đến 5 người. Mọi thắc mắc về mẫu mã vui lòng để lại comment để chúng tôi hân hạnh giải đáp tận tình cho bạn. Ngoài ra nếu bạn có nhu cầu thiết kế, xây nhà trọn gói hãy liên hệ ngay với chúng tôi để được hỗ trợ nhanh chóng.
- Mẫu nhà ống 3 tầng 5x17m tiện nghi tại Hải Phòng
- Mẫu nhà phố 3 tầng 5x13m mái bằng tại Quảng Ninh
- Mẫu nhà phố 3 tầng 4,5x18m kiến trúc hiện đại
- Những lý do nên thiết kế nhà phố 2 mặt tiền 3 tầng