Nhà phố 3 tầng 5x18m mái bằng sang trọng tại Phú Thọ NDNP3T72
Không đồ sộ như những ngôi nhà phố cao lớn khác nhưng mẫu thiết kế nhà phố 3 tầng mái bằng 5x18m vẫn đủ sức hút và chinh phục trái tim của nhiều chủ đầu tư. Sở hữu diện tích đất hẹp về chiều rộng, chiều sâu nhưng mẫu nhà phố đẹp này vẫn đảm bảo được tính thẩm mỹ và nhu cầu sử dụng khi có ưu điểm là tăng diện tích sử dụng theo chiều cao.
Nếu quý vị và các bạn thực sự quan tâm đến kiểu nhà này thì dưới đây là những hình ảnh phối cảnh 3D và phương án bố trí công năng chi tiết do các kiến trúc sư tài năng của Nhà Đẹp thiết kế. cho gia đình anh Dần ở Phú Thọ. Xin mời quý vị và các bạn cùng chiêm ngưỡng và để lại bình luận nhé!
Thông tin mẫu nhà phố 3 tầng hiện đại mái bằng 5x18m
- Chủ đầu tư: Anh Đan
- Địa chỉ: Phú Thọ
- Diện tích nhà: 5x18m
- Mặt bằng xây dựng tầng 1: 90m2
- Mặt bằng xây dựng tầng 2: 90m2
- Mặt bằng xây dựng tầng 3: 50m2
- Tổng diện tích xây dựng: 90 + 90 + 50 = 230m2
- Tổng giá trị hoàn thiện: 230 × 5.500.000 = 1.265.000.000 đồng
Phối cảnh 3D mẫu nhà phố 3 tầng 3 phòng ngủ siêu đẹp

Mẫu thiết kế nhà phố 3 tầng mái bằng 5x18m theo lối kiến trúc hiện đại nhưng vô cùng độc đáo, hài hòa với các khối vuông vắn, khỏe khoắn giúp ngôi nhà trở nên mềm mại và uyển chuyển hơn. Không gian ngoại thất được trau chuốt một cách tỉ mỉ và khéo léo, kết hợp những mảng màu tương phản, tạo thành những mảng tường đẹp và ấn tượng.

Mẫu thiết kế nhà phố 3 tầng mái bằng 5x18m sở hữu tone màu trắng tinh khôi chủ đạo, kết hợp hài hòa với màu nâu trầm ấm sang trọng của gỗ được sử dụng ở cửa chính và một số đồ trang trí đi kèm. Bên cạnh đó, nó còn được điểm xuyết một chút màu đen huyền bí từ hệ thống cửa kính vô cùng ấn tượng. Với sự kết hợp hài hòa giữa các tông màu tương phản, dường như ngôi nhà phố đã phô bày hết vẻ đẹp trang nhã, tinh tế của mình ra bên ngoài để người xem dễ dàng chiêm ngưỡng.
Đặc biệt, để tạo thêm điểm nhấn cho nhà phố, ban công các tầng đều được trang trí bằng hệ thống ban công có thể thu vào linh hoạt, tạo nên sự khác biệt và mới mẻ.

Điểm nhấn đắt giá trong ngôi nhà phố 3 tầng mái bằng 5x18m nằm ở mặt tiền tầng 1 được ốp đá hoa cương giả mây trắng đen vô cùng sáng bóng tạo nên sự khác biệt, đồng thời giúp tiết kiệm không gian ngoại thất. Nội thất tốt hơn, tránh được sự xâm hại của các yếu tố tự nhiên, thời tiết như nấm, bẩn, mưa gió…

Để ngôi nhà phố 3 tầng mái bằng 5x18m phô diễn được hết vẻ đẹp vốn có của mình, các kiến trúc sư đã khéo léo lắp đặt thêm những chiếc đèn âm tường để làm nhiệm vụ quan trọng là lấy sáng cho ngôi nhà phố. luôn phô diễn trọn vẹn vẻ đẹp thẩm mỹ ấn tượng ra bên ngoài…

Toàn bộ hệ thống cửa sổ được sử dụng là hệ nhôm kính Xingfa cao cấp. Loại cửa này có những công dụng tuyệt vời như: hấp thụ nhiều ánh sáng, gió tự nhiên, cách âm, cách nhiệt tốt, ngoài ra còn có khả năng chống bám bụi, chống ăn mòn, chống oxi hóa và giữ màu lâu. thời gian và đặc biệt là không bị ảnh hưởng bởi tác động xấu, trực tiếp của thời tiết, môi trường xung quanh.

Ngoài ra, mẫu nhà phố đẹp 3 tầng 5x18m mái thái còn được bố trí nhiều mảng xanh tươi mát - đây cũng là xu hướng nổi bật nhất trong thiết kế hiện nay, bởi không gian xanh sẽ giúp công trình giảm được chi phí xây dựng. Nhục thung dung, bổ góc và giúp tăng cường sinh lực. Bên cạnh đó, lan can kính cường lực trong suốt còn giúp không gian nội - ngoại thất thêm thanh thoát, nhẹ nhàng.

Mới nhìn vào mẫu nhà phố đẹp 3 tầng 5x18m mái bằng chúng ta đã ấn tượng với phần mái bằng kết hợp với mái tôn tạo điểm nhấn đẹp mắt. Về cấu tạo, mái bằng có kết cấu chắc chắn, độ dốc rất nhỏ gần như bằng không, có lớp chống thấm, lớp chống cháy và lớp chịu lực, đảm bảo che chắn, bảo vệ tốt. Còn lại, phần mái tôn được làm từ chất liệu cao cấp vô cùng chắc chắn và cứng cáp, giúp che mưa nắng. Chính sự kết hợp độc đáo này đã giúp ngôi nhà phố 3 tầng trở nên thanh thoát, uyển chuyển và không có cảm giác nặng nề.
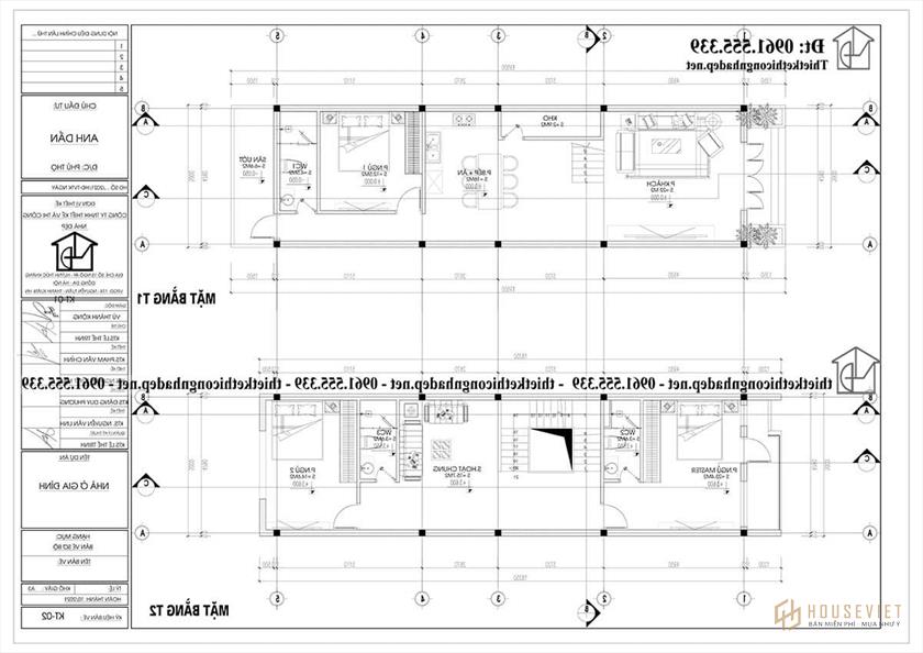
Mặt bằng công năng nhà phố 3 tầng hiện đại

Tại tầng 1 của mẫu nhà phố 3 tầng mái thái đẹp 5x18m phía trước là khoảng sân nhỏ được gia đình chủ đầu tư sử dụng để xe cộ. Bước qua cửa chính là không gian phòng khách thoáng mát, đi vào bên trong là khu vực cầu thang, dưới chân là kho chứa đồ khá kín đáo. Cạnh cầu thang là phòng bếp + ăn hiện đại sạch sẽ. Bên trong là phòng ngủ yên tĩnh và phòng vệ sinh chung tiện nghi rất tiện lợi cho các thành viên khi sử dụng.
Mặt bằng tầng 2 gồm 1 phòng sinh hoạt chung sang trọng, 1 phòng ngủ master, 1 phòng ngủ thường thoáng và mát, tất cả đều có cửa sổ với những ô kính lớn. Cuối cùng là phòng vệ sinh chung tiện nghi được bố trí ở trung tâm tầng, cạnh phòng sinh hoạt chung tạo sự thuận tiện cho việc đi lại và sinh hoạt của gia đình chủ đầu tư.

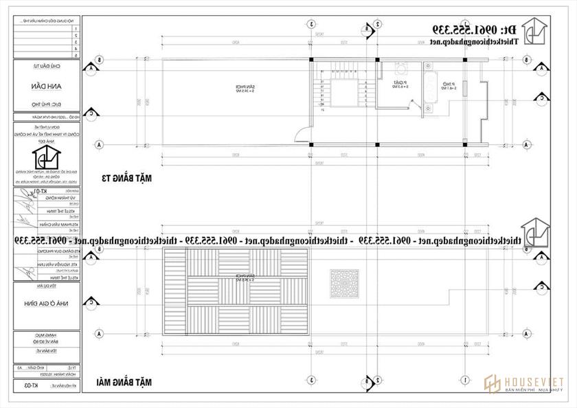
Mặt bằng tầng 3 bố trí gồm 1 phòng thờ trang nghiêm, 1 phòng thu hoạch hiện đại và 1 sân phơi rộng rãi, gia đình chủ đầu tư có thể sử dụng sân phơi làm sân chơi cho các thành viên trong gia đình vui chơi, thư giãn. thư giãn.
Với phương án thiết kế nhà phố 3 tầng mái bằng 5x18m mà Nhà Đẹp vừa giới thiệu, hy vọng quý vị và các bạn sẽ có thêm nhiều ý tưởng mới cho tổ ấm tương lai của gia đình mình. Nếu bạn cần tư vấn hay có bất kỳ thắc mắc nào về các mẫu nhà phố đẹp hãy liên hệ ngay với chúng tôi theo số hotline nhé!
- Nhà phố 3 tầng tân cổ điển 5x13m tại Nam Định NDNP3T71
- Mẫu thiết kế nhà ống 3 tầng 5x24m mái bằng tại Hưng Yên NDNP3T70
- Mẫu thiết kế nhà phố 3 tầng có gác lửng 4,5x20m tại Phú Thọ NDNP3T69
- Bản vẽ thiết kế nhà ống 3 tầng 5x18m đẹp