Nhà phố 3 tầng tân cổ điển 5x13m tại Nam Định NDNP3T71
Nếu nói về mảnh đất Nghĩa Hưng Nam Định này thì công ty chúng tôi cũng có rất nhiều kỷ niệm. Trước hết, công trình nhà Hà ở Nam Định là công trình đầu tiên chúng tôi thiết kế tại Phú Bình và sau công trình này có lẽ là công trình thứ 6 mà công ty thiết kế. Công trình nhà phố tân cổ điển 3 tầng 5x13m là công trình mà khách hàng đã sử dụng dịch vụ thiết kế nhà đẹp hoặc dịch vụ thi công trọn gói.
Sau khi thiết kế và thi công xong, gia chủ tiếp tục giới thiệu thêm bạn bè, người thân thuê công ty Ngôi nhà xinh. Đây cũng là niềm vui của chúng tôi khi khách hàng đã tin tưởng và lựa chọn dịch vụ của chúng tôi. Và hôm nay, Nhà Đẹp xin chia sẻ đến các bạn những hình ảnh thiết kế nhà phố 3 tầng tân cổ điển này.
Những mẫu nhà phố tân cổ điển 3 tầng 5x13m mang vẻ đẹp quyến rũ, lung linh đã góp phần tô điểm cho bộ mặt của những khu phố, khu đô thị sầm uất thêm phần duyên dáng, sống động và hào hoa. Mẫu thiết kế nhà phố 3 tầng tân cổ điển tại Nam Định của công ty Nhà Đẹp là một trong những công trình đánh dấu thành công sự phát triển đỉnh cao song hành cùng nhịp sống năng động tại các tỉnh thành phố lớn. .
Đằng sau những công trình đẹp mắt cuốn hút đó là đội ngũ kiến trúc sư tài năng, giàu kinh nghiệm phải tập trung làm việc 100% để tạo ra những thiết kế và sản phẩm hoàn hảo nhất cho khách hàng. cho tất cả các khách hàng. Mời các bạn cùng theo dõi bài viết dưới đây để biết thêm thông tin chi tiết nhé!
Thông tin nhà phố tân cổ điển 3 tầng 5x13m
Mời các bạn xem qua đơn giá thi công nhà phố 3 tầng tân cổ điển tại Nghĩa Hưng Nam Định này.
- Địa điểm xây dựng: Phú Bình - Nghĩa Hưng - Nam Định
- Chủ đầu tư: Chị Thủy
- Diện tích nhà: 5x13m
- Diện tích sàn 1: 65,3m2
- Diện tích tầng 2: 57,5m2
- Diện tích tầng 3: 57,5m2
- Diện tích mái: 14m2
- Tổng diện tích xây dựng: 65,3 + 57,5 + 57,5 + 14 = 194,3m2
- Tổng giá trị xây dựng trên m2 mái bê tông: 194,3 × 5.500.000 = 1.068.650.000 đồng
Phối cảnh 3D nhà phố 3 tầng tân cổ điển 5x13m tại Nghĩa Hưng Nam Định

Mẫu nhà đẹp 3 tầng tân cổ điển 5x13m khoác lên mình gam màu trắng tinh khôi chủ đạo, dường như ngôi nhà được nâng lên một tầm cao mới dưới những tia nắng long lanh và sang trọng. Màu trắng chủ đạo trên tường và cột nhà đã tạo nên một lớp nền hoàn hảo để đẩy các chi tiết và màu sắc trang trí trở nên rực rỡ, sắc nét, đậm nét hơn.
Tầng 1 được thiết kế với 2 cột vuông giả sát tường tạo nên một tổng thể vô cùng vững chãi, khỏe khoắn như hai lực sĩ to lớn hiên ngang bảo vệ ngôi nhà. Ngoài ra, toàn bộ mảng tường ở mặt tiền tầng 1 được ốp đá granite màu vàng vân mây góp phần tạo hiệu ứng màu sắc tốt mang đến cho người nhìn cảm giác sang trọng và đẳng cấp khó rời mắt. bất cứ lúc nào.
Việc ốp đá toàn bộ mặt tiền tầng 1 ngoài mục đích làm cho ngôi nhà phố 3 tầng tân cổ điển không chỉ đẹp về giá trị thẩm mỹ mà còn bảo vệ mặt tiền tầng 1 khỏi những tác hại. các hoạt động có hại như bụi bẩn, các tác động tiêu cực khác từ môi trường và thiên nhiên. Và một điều vô cùng quan trọng là các thành viên trong gia đình chủ đầu tư có thể dễ dàng lau chùi, vệ sinh thường xuyên.

Nếu như ngoại thất tầng 1 của mẫu nhà phố 3 tầng tân cổ điển đẹp 5x13m được thiết kế khá đơn giản, nhẹ nhàng thì tầng 2 và tầng 3 lại được bài trí hoàn toàn theo lối kiến trúc tân cổ điển Pháp sang trọng và cuốn hút. Hệ thống trụ tròn mềm mại đối lập hoàn toàn với hệ trụ vuông ở tầng 1 chạy thẳng từ sảnh tầng 2 lên trên mái đã khiến cho ngôi nhà phố 3 tầng mái thái trở nên bề thế, đẳng cấp và sinh động hơn. .
Các đường gờ, phào chỉ trang trí được kiến trúc sư tính toán tỉ mỉ, bố trí rất hài hòa và đẹp mắt. Lan can sử dụng cho tầng 2 và tầng 3 được làm từ sắt mỹ thuật màu đen với hoa văn uyển chuyển, đẹp mắt. Từ đó có thể thấy được sự độc đáo ẩn chứa bên trong không gian ngoại thất của mẫu nhà phố 3 tầng tân cổ điển đẹp 5x13m mà chúng ta cần phải dành thời gian nghiên cứu mới có thể hiểu hết được.

Hệ mái của mẫu nhà phố 3 tầng tân cổ điển 5x13m đẹp này được thiết kế với hệ thống mái thái giật cấp độc đáo giúp tô điểm cho không gian ngoại thất thêm sang trọng và bề thế. Nó không chỉ đáp ứng nhu cầu sử dụng che nắng che mưa đơn thuần mà còn giúp điều hòa không khí trong lành, làm mát không gian bên trong một cách tối ưu và trọn vẹn nhất.

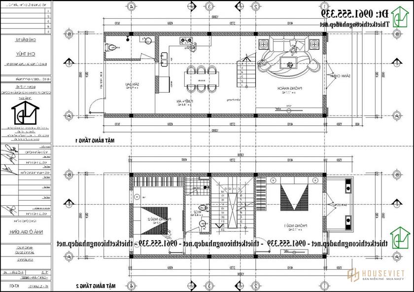
Tầng 1 của mẫu nhà phố 3 tầng tân cổ điển đẹp 5x13m được bố trí công năng phù hợp với nhu cầu sử dụng của gia đình chủ đầu tư. Bước từ ngoài vào trong đầu tiên là khu vực phòng khách rộng rãi, thoáng mát được trang bị đầy đủ nội thất cần thiết.
Tiếp theo là vị trí của cầu thang lên xuống tầng áp mái. Tiếp giáp với cầu thang là phòng bếp + ăn sạch sẽ, thoáng mát với bàn bếp hình chữ L hiện đại, bộ bàn ghế ăn sang trọng, chắc chắn và cuối cùng là khu vực bàn ăn. 1 phòng vệ sinh chung tiện nghi cuối nhà cạnh không gian sân sau. Nhìn chung, không gian tầng 1 được quy hoạch độc đáo và vô cùng khoa học.
Tầng 2 ngược lại là không gian yêu chủ yếu dùng để nghỉ ngơi được bố trí 2 phòng ngủ với diện tích khá rộng và thoải mái. Ở khu vực giữa 2 phòng ngủ chính là phòng vệ sinh chung tiện nghi - rất phù hợp cho việc đi lại và sinh hoạt cá nhân của các thành viên.

Tầng 3 được bố trí phòng thờ trang trọng ngoài cùng, bên cạnh phòng thờ là khu vực giếng trời cầu thang. Tiếp đến là phòng vệ sinh chung khá đầy đủ thiết bị cao cấp. Cuối cùng là phòng ngủ yên tĩnh - nơi đây được trang bị rất nhiều đồ nội thất bằng gỗ tự nhiên như giường, tủ… Tất cả đều phục vụ cho việc nghỉ ngơi, thư giãn của các thành viên sau. Một ngày làm việc và học tập đầy mệt mỏi và căng thẳng.
Trong suốt nhiều năm thiết kế trong lĩnh vực xây dựng nhà, chúng tôi đã có rất nhiều mẫu nhà phố hiện đại và tân cổ điển đẹp. Vì vậy nếu bạn cần tham khảo hãy truy cập vào website thietkethicongnhadep.net của công ty Nhà Đẹp để tham khảo cho gia đình mẫu nhà ưng ý nhất. Trên đây là mẫu thiết kế nhà phố tân cổ điển 3 tầng 5x13m đẹp và hài hòa.
Nếu quý khách hàng yêu thích mẫu thiết kế này của công ty nhà đẹp chúng tôi. Hãy nhấc máy và liên hệ ngay với chúng tôi qua số hotline để được các kiến trúc sư tư vấn chi tiết và kỹ lưỡng. Xin chân thành cảm ơn quý khách hàng đã quan tâm và theo dõi các mẫu thiết kế của Công Ty TNHH Thiết Kế Xây Dựng Nhà Đẹp.
- Mẫu thiết kế nhà ống 3 tầng 5x24m mái bằng tại Hưng Yên NDNP3T70
- Mẫu thiết kế nhà phố 3 tầng có gác lửng 4,5x20m tại Phú Thọ NDNP3T69
- Mẫu thiết kế nhà ống 3 tầng 5x20m hiện đại NDNP3T68
- Nhà phố 3 tầng 5x18m mái bằng sang trọng tại Phú Thọ NDNP3T72