Nhà phố 4 tầng 6x8m đẹp tại Từ Liêm Hà Nội NDNP4T20
Căn nhà phố 4 tầng 6x8m đẹp này được chúng tôi thiết kế cho chị Thu có địa chỉ tại Từ Liêm, hiện chị ở ngay cạnh bến xe Mỹ Đình nhưng muốn xây nhà tại khu vực Từ Liêm để sử dụng. Dự án này mang tính chất từ thiện nhiều hơn vì khi chúng tôi liên hệ với chủ sở hữu, chúng tôi được biết chủ sở hữu đã nhận nuôi rất nhiều trẻ em. Có lẽ nếu nói sâu hơn về ngôi nhà sẽ đụng chạm nhiều đến những gì chúng ta nhìn thấy và cảm nhận có thể vẫn chưa chính xác. Tuy nhiên, chủ sở hữu là phụ nữ nên không hiểu việc xây dựng công trình. Nhà đẹp thiết kế xây dựng dự kiến xây dựng trong năm nay. Tuy nhiên, khi hoàn tất hồ sơ thì dự án bị chậm 1 năm do căn nhà cũ hiện đang cho người khác mượn để ở, chưa dọn đi. Thêm nữa, Hà Nội hiện đang có dịch nên hầu như mọi việc đều bị đình trệ. Trong mẫu nhà phố 4 tầng 6x8m đẹp có cả thiết kế ngoại thất và nội thất nhà phố, vì vậy Nhà Đẹp sẽ chia sẻ tất cả cho các bạn cùng tham khảo những hình ảnh của công trình này.
Chắc hẳn các bạn đều biết khá rõ về các mẫu nhà phố 4 tầng 6x8m - không còn quá xa lạ với chúng ta hiện nay, nhất là ở những khu vực có mật độ dân cư đông đúc, nơi có diện tích đất rộng. Nếu bạn bị hạn chế thì nhà phố hiện đại luôn là sự lựa chọn tốt nhất. Công ty Ngôi nhà xinh sở hữu những giải pháp xây dựng hoàn hảo cho chủ đầu tư. Để quý vị có cái nhìn rõ ràng và cụ thể hơn về những mẫu nhà phố 4 tầng hiện đại này, chúng tôi xin gửi tới quý vị và các bạn bài viết chi tiết dưới đây. Mọi người được mời tham gia.
Đơn giá xây nhà phố 4 tầng 6x8m đẹp tại Hà Nội
Căn nhà này chúng tôi đã lên dự toán toàn bộ xin chia sẻ để các bạn cùng tham khảo. Đây là dự toán hoàn thiện tại Hà Nội với mức vật liệu hoàn thiện khá trở lên. Nếu bạn muốn rẻ hơn, nó cũng có thể rẻ hơn.
- Địa điểm xây dựng: Từ Liêm - Hà Nội
- Chủ đầu tư: Cô Thu
- Diện tích nhà: 6x8m
- Tổng giá trị hoàn thiện: 1,573 tỷ đồng
Mẫu du lịch GXD
| STT | MỤC MỞ RỘNG | PHÉP TÍNH | GIÁ TRỊ | BIỂU TƯỢNG |
| Đầu tiên | Công tác chuẩn bị xây dựng | Ước tính chi tiết | 1.000.000 won | Một |
| 2 | Chi phí nguyên vật liệu xây dựng | Ước tính chi tiết | 441.204.565 | CŨ |
| 3 | Giá nhân công xây dựng | 1.350.000 đ / m2 sàn | 314.222.727 | DỄ DÀNG |
| 4 | Chi phí xây dựng phần hoàn thiện | Ước tính chi tiết | 575.199.432 | E |
| 5 | Chi phí điện, nước và vật liệu điều hòa không khí | Ước tính chi tiết | 204.370.411 | F |
| 6 | Chi phí nhân công, điện nước + điện nhẹ + Chống sét | 160,000 VND / m2 sàn | 37.241.212 | GỖ |
| TOÀN BỘ | 1.573.000.000 won |
Phối cảnh 3D kiến trúc ngoại thất mẫu thiết kế nhà phố 4 tầng 6x8m đẹp tại Hà Nội

Mang đến vẻ trang nhã, sang trọng cho ngôi nhà phố 4 tầng đẹp mê hồn, kiến trúc sư đã khéo léo sử dụng gam màu trắng sứ làm chủ đạo tạo nên diện mạo vô cùng nổi bật cho không gian ngoại thất. Ưu điểm nổi bật mà gam màu trắng mang lại thường rất lớn như: tạo điều kiện cho các chi tiết phối đồ đi kèm trở nên nổi bật và thời thượng hơn, bởi gam màu này đã trở thành một phương pháp hữu hiệu. được sử dụng rất nhiều, thịnh hành trong các công trình kiến trúc của nước ta hiện nay mà không sợ bị lỗi thời.
Cùng với đó, để loại bỏ sự đơn điệu của mặt tiền tầng 1, nó còn được ốp bằng đá hoa cương màu sáng để tạo nên sự khác biệt, đồng thời giúp bảo vệ bề mặt luôn sáng bóng, tốt hơn, tránh bị xâm thực bởi các yếu tố tự nhiên. chẳng hạn như nấm, bụi bẩn, v.v.

Nhược điểm của những mẫu nhà phố đẹp 4 tầng 6x8m thường bị hạn chế bởi diện tích mặt tiền và chiều sâu như nhau nên việc thi công không khéo léo sẽ dẫn đến tình trạng bí bách, thiếu lưu thông không khí. Để giải quyết điều đó, các kiến trúc sư đã bố trí sảnh ban công rất rộng rãi từ tầng 2 đến tầng 4 tạo không gian thông thoáng, mát mẻ để các thành viên tiếp nhận năng lượng. Chủ động từ thiên nhiên một cách thư thái, cùng với hệ thống lan can sử dụng chất liệu kính cường lực trong suốt có độ bền cao đảm bảo an toàn không cản tầm nhìn. Từ đó, không gian ngoại thất của ngôi nhà phố 4 tầng vẫn có thể khéo léo khoe được vẻ đẹp toàn diện và bề thế.
Ngoài việc tạo thêm điểm nhấn cho ngôi nhà, đồng thời cũng nhằm mục đích mang đến màu sắc tươi mới, hài hòa giữa hai không gian nội và ngoại thất, kiến trúc sư đã tính toán và trau chuốt một cách tỉ mỉ bằng cách sử dụng hệ thống cây xanh điểm xuyết trong khu vực ban công, khu vực mặt tiền góp phần giảm bớt sự thô cứng, nhàm chán từ các vật liệu được sử dụng như bê tông - cốt thép.

Điều kiện làm nên sự thành công của mẫu nhà phố 4 tầng 6x8m đẹp này không thể không kể đến vật liệu xây dựng được sử dụng tại đây, với những vật liệu cao cấp được chọn lọc kỹ lưỡng nhằm mang lại những giá trị mục tiêu. hiện thực, bổ sung cho quá trình hoàn thiện ngôi nhà trong mơ độc nhất vô nhị của gia đình chủ đầu tư. Hệ thống cửa được sử dụng nhôm kính xingfa cao cấp với ưu điểm vượt trội trong việc thu hút và lấy ánh sáng tự nhiên hiệu quả cho không gian bên trong, không những vậy kính còn dễ dàng vệ sinh. Bền bỉ, sáng bóng theo thời gian, từ đó giúp mang lại cảm giác thông thoáng, mát mẻ, xóa tan sự bí bách, ngột ngạt, có hại cho sức khỏe con người.
Để ngôi nhà phố 4 tầng sang trọng và lộng lẫy có thể phô bày được hết vẻ đẹp mà các kiến trúc sư đã tâm huyết tạo nên. Ở vị trí mép mái, các mảng tường được lắp đặt hệ thống đèn led âm trần độc đáo làm nhiệm vụ quan trọng là thắp sáng mọi lúc không gian ngoại thất của ngôi nhà, khéo léo khoe trọn vẻ đẹp của ngôi nhà. Đẹp ấn tượng về mặt thẩm mỹ bên ngoài cho người nhìn xung quanh cảm nhận.
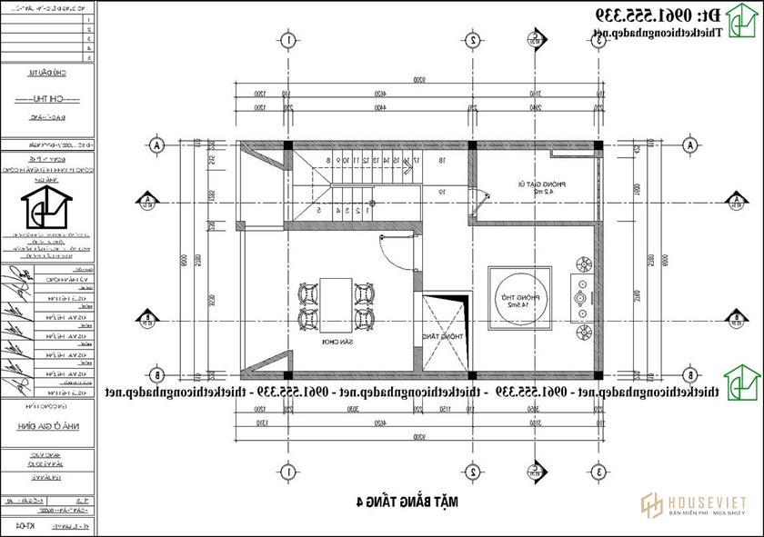
Mặt bằng công năng nhà phố 4 tầng 6x8m đẹp hiện đại

Đến với công năng sử dụng tầng 1 của mẫu nhà phố đẹp 4 tầng 6x8m đầu tiên là phòng khách rộng rãi - nơi gia đình chủ đầu tư có thể thoải mái tụ tập vui chơi, giải trí. Tiếp giáp với không gian phòng khách là khu bếp + ăn thoáng mát có cửa phụ thông ra sân - rất thuận tiện cho việc đi lại và làm việc nhà của các thành viên. Cuối cùng, một không gian không thể thiếu đó là phòng vệ sinh chung. Phòng vệ sinh nằm cuối nhà, rất gần phòng khách và bếp, thuận tiện cho việc sinh hoạt của gia đình và khách đến chơi nhà.

Tầng 2 gồm 2 phòng ngủ vuông vắn, rộng rãi và 1 phòng vệ sinh chung sạch sẽ, tiện nghi được bố trí gần nhau, mục đích cơ bản là tạo sự thuận tiện cho việc sinh hoạt và đi lại của các thành viên. đầy đủ và dễ dàng nhất có thể.

Không gian tầng 3 được bố trí giống như tầng 2 gồm 2 phòng ngủ và 1 phòng vệ sinh chung được bố trí gần nhau.

Trên tầng 4 của ngôi nhà phố hiện đại, kiến trúc sư đã tính toán bố trí công năng rất hài hòa, trong đó có phòng thờ lớn cùng hướng với ngôi nhà. Tiếp đến là phòng giặt nhỏ dùng làm nơi giặt giũ, phơi đồ của các thành viên. Cuối cùng, một không gian không thể thiếu đó chính là sân chơi thoáng mát với không khí trong lành sẽ giúp các thành viên trong gia đình thư thái, hòa mình vào cảnh sắc thiên nhiên quên đi những mệt mỏi. căng thẳng sau mooyj ngày làm việc.
Thiết kế nội thất phòng bếp, phòng khách tầng 1 nhà phố 4 tầng đẹp 6x8m






Thiết kế nội thất tầng 2 - nhà phố 6x8m 4 tầng đẹp
Các bạn có thể xem trong mặt bằng bố trí nội thất tầng 2 được bố trí 2 phòng ngủ, chúng tôi sẽ chia sẻ với các bạn nội thất từng phòng một để các bạn tiện theo dõi.







Mẫu thiết kế nội thất tầng 3 đẹp - nhà phố 6x8m 4 tầng đẹp
Tầng 3 là toàn bộ phòng ngủ cho con, hiện tại chủ nhà đang nhận nuôi rất nhiều bé nên các giường phải kê chung, các bạn có thể thấy 1 giường được ghép từ 3 giường khác. và tận dụng hết tủ dưới gầm giường, khoảng trống trong nhà để đựng đồ. Tầng 3 được chia thành 2 phòng ngủ, 1 phòng ngủ dành cho con trai và phòng còn lại dành cho con gái.






Để có thể sở hữu một ngôi nhà phố 4 tầng 6x8m đẹp với đầy đủ công năng và hài hòa cả yếu tố nội ngoại thất, mỗi gia đình chủ đầu tư nên tìm đến các đơn vị kiến trúc chuyên nghiệp để được tư vấn và thiết kế. Công ty nhà đẹp chúng tôi với gần 10 năm kinh nghiệm trong ngành thiết kế, chúng tôi tự hào là một trong những gương mặt sáng giá nhất. Mọi thông tin chi tiết, nhu cầu thiết kế và thi công, vui lòng liên hệ theo số hotline để được tư vấn tận tình, miễn phí.
- Nhà phố 4 tầng 2 mặt tiền 6x9m tại Hà Nội NDNP4T19
- Mẫu thiết kế nhà phố 4 tầng 5x20m hiện đại tại Hà Nội NDNP4T18
- Mẫu thiết kế nhà phố tân cổ điển 4 tầng 5x12m NDNP4T21