Nhà phố 4 tầng mặt tiền 4m sang trọng tại Hà Nội NDNP4T10
Nhà phố hiện đang là loại hình kiến trúc phổ biến ở các thành phố, đặc biệt là các thành phố lớn như Hà Nội, Hồ Chí Minh, Đà Nẵng, Hạ Long… Với hình khối kiến trúc độc đáo, ấn tượng, cùng với những tiện ích sử dụng mà nhà phố đang dần lên ngôi. trong nhiều năm tới. Hôm nay chúng tôi xin giới thiệu mẫu Nhà phố 4 tầng mặt tiền 4m | Luxury được thiết kế cho gia chủ tại Hà Nội dễ dàng tham khảo.
Thông thường nhà phố sẽ rơi vào các loại nhà phố 2 tầng, nhà phố 3 tầng nhưng gia chủ của chúng ta muốn xây 4 tầng để có không gian sống thoải mái. Do nhà chị khá chật, muốn từng không gian sống thoải mái, rộng rãi nên chị quyết định xây 4 tầng. Chúng tôi xin đưa ra một số thông tin để bạn tham khảo về mẫu thiết kế nhà này.
Thông tin mẫu nhà phố 4 tầng mặt tiền 4m. mặt tiền
- Chủ đầu tư: Bà Lịch
- Vị trí: Cầu Giấy - Hà Nội
- Diện tích nhà: 3,9mx 12,2m
- Tổng diện tích xây dựng: 170m2
- Tổng kinh phí dự kiến: 1 tỷ (do thi công tại Hà Nội nên chi phí sẽ đắt hơn các tỉnh thành khác)
Chi tiết mẫu nhà phố 4 tầng mặt tiền 4m

Ấn tượng đầu tiên khi nhìn vào mẫu thiết kế nhà phố 4 tầng này phải kể đến sự kết hợp nhuần nhuyễn giữa các khối hình học vuông vắn tạo nên sức hút cho ngôi nhà. Mẫu biệt thự mang phong cách hiện đại với thiết kế và vật liệu hiện đại. Thiết kế này là sự kết hợp giữa tiện ích và không gian sống xanh, hòa quyện với thiên nhiên rất có lợi cho mọi người trong gia đình.
Tại ban công các tầng đều thiết kế các loại cây xanh để tăng tính thẩm mỹ cho toàn bộ kiến trúc Mẫu nhà phố 4 tầng mặt tiền 4m. Hệ thống cửa chính và cửa sổ được làm bằng kính cường lực khung nhôm. Đây là đặc điểm của phong cách hiện đại, kính còn giúp ánh sáng tự nhiên tràn vào không gian nội thất, gia chủ hoàn toàn có thể điều chỉnh ánh sáng theo ý muốn của mình.

Tầng 1 được ốp đá đen mang đến sự vững chãi, tầng 2 và tầng 3 được lát gạch trang nhã mang đến vẻ đẹp đương đại cho toàn bộ ngoại thất. Tầng 1 chúng tôi cũng bố trí thiết kế cổng ra vào hiện đại với khung sắt và gỗ chắc chắn. Màu trắng trang nhã kết hợp hoàn hảo với màu nâu của vật liệu giúp không gian vừa rộng rãi vừa hiện đại. , đây cũng là gam màu được ưa chuộng hiện nay và hứa hẹn sẽ được yêu thích trong nhiều năm tới.
Lich rất muốn chúng tôi thiết kế sao cho ánh sáng và gió vào đều giúp ngôi nhà Nhà phố 4 tầng Cô ấy cởi mở hơn. Kiến trúc nhà đẹp quyết định đưa giếng trời vào trong mẫu nhà này. Đầu tiên có thể thông gió, thứ hai có thể mang lại ánh sáng tự nhiên cho toàn bộ ngôi nhà. Với thiết kế này, ngôi nhà của chị sẽ có một không gian sống luôn thông thoáng, tạo cảm giác thư thái, dễ chịu cho mọi thành viên trong gia đình.
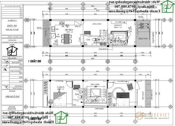
Công năng sử dụng của nhà phố 4 tầng mặt tiền 4m

tầng 1: Thiết kế phòng khách rộng rãi ngay phía trước sảnh chính, đi sâu vào bên trong là khu vệ sinh chung nằm dưới gầm cầu thang lên tầng trên. Bên trong là phòng ăn kết hợp bếp vô cùng tiện nghi cho cả gia đình.
tầng 2: Gồm 2 phòng ngủ, trong đó có 1 phòng ngủ master dành cho bố mẹ được thiết kế cạnh ban công có cây xanh và thiết kế bằng kính hiện đại. Nhà vệ sinh chung nằm giữa phòng ngủ 2 và hành lang trên lầu

Tầng 3: Được thiết kế 1 phòng ngủ, 1 phòng thờ rộng rãi, do gia chủ rất chú trọng đến việc thờ cúng nên phòng thờ được thiết kế rất rộng, cạnh ban công thoáng mát và ánh sáng luôn tràn ngập. Phòng vệ sinh chung được đặt cạnh phòng ngủ để thuận tiện cho việc sinh hoạt.
Tầng 4: Tầng này chủ yếu để gia đình làm nơi phục vụ sinh hoạt chung. Gồm sân chơi kết hợp sân vườn, sân phơi được thiết kế máy giặt tiện lợi. Ngoài ra còn có một kho nhỏ cạnh sân phơi cho gia đình.
Vật mẫu Nhà phố 4 tầng mặt tiền 4m | Điều này đã đáp ứng được mong muốn và nhu cầu của gia chủ. Khi nhận được bản vẽ chúng tôi gửi, chị Lịch ưng ý ngay mà không cần chỉnh sửa gì thêm. Quý khách có nhu cầu thiết kế xây nhà trọn gói đừng quên liên hệ ngay với Nhà đẹp để được tư vấn và hỗ trợ nhanh chóng.
- Mặt tiền mẫu nhà phố 4 tầng đơn giản
- Ý tưởng cho mặt tiền nhà phố 4 tầng trang trọng và hiện đại
- Tiết lộ kinh nghiệm thiết kế nhà phố 4 tầng hiện đại sang trọng
- Mẫu nhà phố 4 tầng đẹp tại Bắc Ninh NDNP4T11
- Cách thay đổi kích thước hàng loạt hình ảnh trong photoshop