Nhà phố mặt tiền 15m sâu 20m rộng 300m2 - SH BTD 0087
Với xu hướng bất động sản những năm gần đây, nhà đất, biệt thự tại các thành phố lớn ngày càng khó sở hữu. Chính vì vậy, chủ nhân của những ngôi biệt thự ngày nay không chỉ quan tâm đến công năng sử dụng mà còn đặc biệt chú trọng đến thiết kế. Hiểu được mong muốn của khách hàng, Tập đoàn Sơn Hà đưa ra mẫu thiết kế nhà phố mới mang phong cách hiện đại, mang âm hưởng tương lai mạnh mẽ!
Thông tin dự án
Phong cách hiện đại trong thiết kế kiến trúc
Phong cách hiện đại là một phạm trù khá rộng trong thiết kế kiến trúc. Nhìn chung, phong cách hiện đại thường thấy ở những công trình tối giản, có hình khối, tổ chức không gian và xây dựng sáng tạo, không theo một quy chuẩn nào mà thường không đối xứng.
Điểm đặc biệt ở các công trình này là ứng dụng nhiều loại vật liệu xây dựng. Bao gồm: bê tông, sắt thép, kính, ... và các vật liệu khác luôn được cập nhật liên tục. Có thể nói, phong cách tối giản hiện đại như một làn gió mới, mang đến nguồn cảm hứng và tạo nên một chuẩn mực cái đẹp mới trong kiến trúc những năm gần đây.
15 m. mặt tiền
Ngay từ cái nhìn đầu tiên, bất cứ ai cũng sẽ bị ấn tượng bởi thiết kế mặt tiền vô cùng đặc biệt của ngôi biệt thự này. Sử dụng ngôn ngữ thiết kế phi đối xứng, với những mảng hình khối mới lạ, độc đáo, đa dạng nhưng điểm độc đáo của ngôi biệt thự không dừng lại ở đó.
Một trong những điều làm nên thành công trong kiến trúc chính là màu sắc. Việc sử dụng các sắc thái màu khác nhau trong thiết kế sẽ mang lại những sắc thái và hiệu ứng khác nhau cho tác phẩm. Trong ngôi biệt thự 3 tầng này, gam màu xám được áp dụng một cách hoàn hảo. Các mảng sáng tối xen kẽ tạo chiều sâu và sự tinh tế, mạnh mẽ, thể hiện cá tính của gia chủ.
Ứng dụng vật liệu hiện đại trong thiết kế và xây dựng biệt thự
Nếu đường nét thiết kế tạo ấn tượng ban đầu thì vật liệu kể những câu chuyện đằng sau khiến người xem khó quên. Việc lựa chọn vật liệu, vật liệu xây dựng trong một công trình không hề đơn giản khi phải cân đối cả hai yếu tố: thẩm mỹ và công năng.
Trong công trình này, để tạo điểm nhấn cho thiết kế ngoại thất, nhiều vật liệu đã được đưa vào quá trình thiết kế, bao gồm: gạch khổ lớn, đá tự nhiên, kính cường lực, khung nhôm sơn tĩnh điện, sơn phủ laminate,… Mỗi loại vật liệu khác nhau mang lại cảm hứng sáng tạo, công năng sử dụng hoàn hảo và những ấn tượng thẩm mỹ sâu sắc.
Ngoài ra, những ô cửa kính màu của biệt thự còn giúp ánh sáng có thể chiếu vào khắp ngôi nhà, vừa mang lại lợi ích về mặt sức khỏe vừa mang lại phong thủy cho cả gia đình.
Công năng sử dụng trong biệt thự 300m2
Sở hữu khu đất vuông vắn lên đến 300m2 nên việc bố trí công năng sử dụng trong ngôi nhà không phải là thách thức quá lớn đối với Tập đoàn Sơn Hà. Khác với những thiết kế biệt thự truyền thống, tầng 1 của biệt thự được sử dụng làm không gian chung, tầng 2 là phòng ngủ và tầng 3 là sân chơi. Tầng 1 đến 3 phù hợp với thói quen sinh hoạt của từng thành viên trong gia đình. Đặc biệt:
- Tầng 1: Phòng khách; Phòng ăn; Phòng bếp; Phòng ngủ + WC; WC cho khách
- Tầng 2: Phòng ngủ + WC; Phòng ngủ chính với phòng thay đồ và WC chính
- Tầng 3: sảnh sinh hoạt chung; 2 phòng ngủ + WC; Sân chơi / Sân phơi
Sử dụng tầng 1

Phòng khách của biệt thự là không gian rộng nhất của tầng 1, với không gian này gia chủ có thể dễ dàng và thoải mái đón tiếp những vị khách quý đến thăm nhà. Bên cạnh đó là không gian dành cho phòng ăn và phòng bếp. Được bố trí tinh tế để thuận tiện nhất cho sinh hoạt của cả gia đình. Đặc biệt tầng 1 còn có phòng ngủ khép kín. Chi tiết tinh tế này phù hợp với sinh hoạt hàng ngày của những người lớn tuổi trong gia đình
Mặt bằng tầng 2

Tầng 2 được thiết kế mặt bằng ấn tượng với chi tiết giếng trời thông thoáng mang đến nét độc đáo cho cả không gian. Tầng 2 chỉ có hai phòng ngủ khép kín. Trong đó 1 phòng ngủ master có phòng thay đồ riêng và WC khép kín vô cùng tiện nghi.
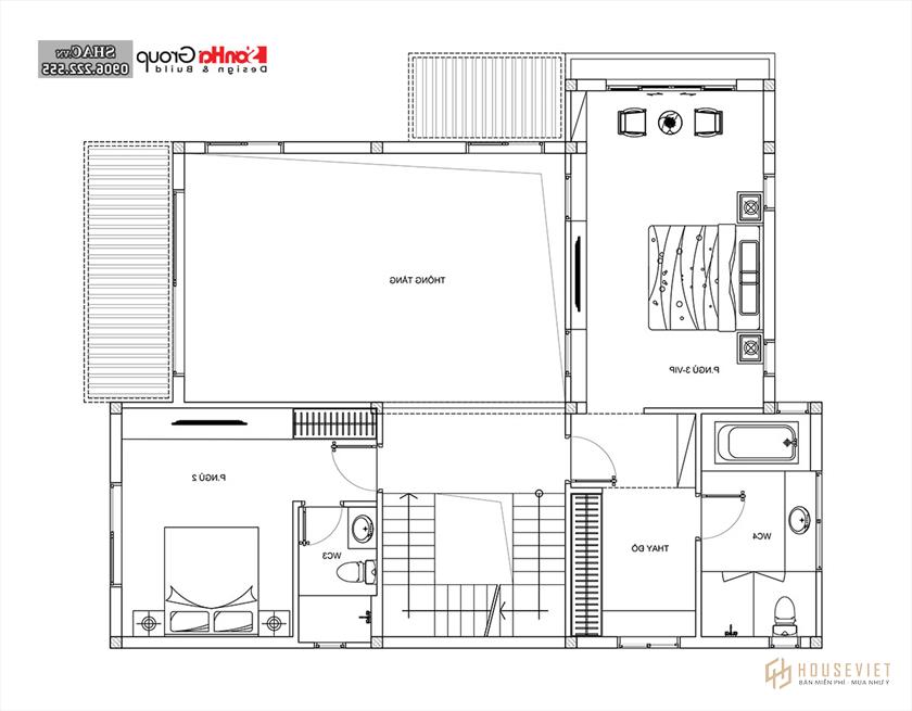
Mặt bằng công năng 3
Tiết kiệm tối đa diện tích mặt bằng tầng 3 cũng được chia thành hai phòng ngủ, phòng sinh hoạt chung có sân chơi và sân phơi. Thiết kế này giúp tận dụng tối đa diện tích mặt sàn, đồng thời tạo sự liên kết giữa các không gian.

Mặt bằng công năng tầng 3 của ngôi biệt thự cũng là chi tiết cuối cùng Sơn Hà Group muốn giới thiệu đến bạn đọc trong bài viết thiết kế biệt thự hiện đại này. Hi vọng những thông tin trên đã giúp bạn đọc có hình dung rõ nét về phong cách và cách bố trí công năng trong ngôi biệt thự này. Xin cảm ơn và hẹn gặp lại các bạn trong những bài viết tiếp theo!