Nhà vườn 1 tầng mái nhật 15x9m tại Trà Vinh NDBT1T130
Trong vài năm gần đây những nhà mẫu vườn 1 tầng mái nhật 15x9m được nhiều người ưa chuộng hơn rất nhiều với những nhà kiểu mái thái. Nhà cập nhật không chỉ mang trên mình phong cách hiện đại mà ưu tiên vượt trội hơn cả so với những nhà kiểu thoải mái. Theo kinh nghiệm của chúng tôi, nhà mái nhật thường rẻ hơn 10-15% so với những nhà mẫu 1 tầng mái có cùng diện tích. Đây là nhà mẫu 1 tầng mái nhật được công ty Nhà đẹp thiết kế cho anh Tâm có địa chỉ tại Trả Vinh. Nhà đẹp xin chia sẻ với các bạn những thông tin của công trình tới các bạn cùng tham khảo nhé.
Những nhà vườn 1 tầng mái nhật bản 15x9m hiện đại thường gây ấn tượng bởi phong cách thiết kế độc đáo, sang trọng cùng với đó là việc tọa lạc trên những mảnh đất đẹp, rộng rãi thoáng mát. Hơn thế nữa công việc thi công những mẫu nhà vườn 1 tầng mái thái khá nhanh, chi phí bỏ bớt đầu tư thì phải tối ưu, rất phù hợp với điều kiện kinh tế của đa số dân ở nước ta. Show nay, những ngôi nhà vườn 1 tầng mái nhật 15x9m được thi công và xây dựng khá phổ biến ở các vùng ngoại ô, nông thôn. Để biết tại sao những mẫu nhà này được ưa chuộng như vậy, mời các bạn cùng công ty làm đẹp chúng tôi theo dõi bài viết dưới đây nhé.
Thông tin về nhà vườn 1 tầng mái nhật 15x9m
Xin giới thiệu tới các bạn đơn giá xây dựng mẫu nhà vườn 1 tầng này nhé, đây là đơn giá hiện hành, các bạn cũng có thể tham khảo và áp dụng vào hiện tại được.
- Xây dựng địa điểm: Trà Vinh
- Chủ đầu tư: Anh Tâm
- Diện tích nhà: 15x9m
- Diện tích xây dựng nhà: 130m2
- Diện tích riềm mái: 130 × 0,4 = 52m2
- Tổng diện tích bê tông: 130 + 52 = 182m2
- Tổng giá trị thi công theo m2 mái bê tông: 182 × 5.500.000 = 1.001.000.000 vnđ
- Diện tích mái lợp: 130 × 1.6 = 208m2
- Tổng giá trị thi công mái tôn: 208 × 750.000 = 156.000.000 vnđ
- Tổng giá trị hoàn thiện: 1.001.000.000 + 156.000.000 = 1.157.000.000 vnđ
Phối cảnh 3D nhà vườn 1 tầng mái hiên đại
Trong bài viết này, chúng tôi có 2 thiết kế phương án và có một chút màu sắc khác nhau, chúng tôi sẽ chia sẻ với các bạn cả 2 để các bạn cùng tham khảo nhé. Các bạn hãy xem mẫu nhà nào phù hợp với nhu cầu sử dụng của gia đình mình nhé.

Mẫu nhà vườn 1 tầng mái nhật 15x9m gặp khó khăn trên mình màu áo trắng tinh khôi của chủ đạo kết hợp với những mảng màu và xám trang trí để tạo điểm nhấn và mang lại nét đẹp độc đáo, hài hòa cho không gian ngoại thất. Với sự kết hợp màu sắc chuyển động, hòa hợp, hài hòa như thế này cũng góp phần tạo thêm cho người nhìn những cảm xúc cuốn hút, lôi cuốn, bất chấp ai nhìn thấy cũng có thể nhìn thấy hình dáng ngôi nhà dù Chỉ một lần sẽ mãi mãi, không bao giờ có thể quên được.

Việc dán gạch tối màu ở phần chân tường cũng như ốp đá hoa cương ở tam cấp, hiển thị với màu đen huyền bí, trong khi đó những bức tranh treo tường được trang trí bằng những đường phào chỉ kẻ ngang chạy quanh. nhà mang đến cho nhà mẫu 1 tầng mái nhật 15x9m hiện đại đẹp những hiệu ứng thẩm mỹ khá bắt mắt. Thu hút được rất nhiều ánh nhìn của người đối diện khi đi ngang qua nó. Chính vì vậy, thật khó để các chủ đầu tư có thể bỏ qua một nhà vườn mẫu 1 tầng mái nhật bản 15x9m hiện đại, tràn đầy sức sống, lung linh như thế này.
Tham khảo thêm: Nhà mái nhật 1 tầng 4 phòng ngủ 11x10m tại Hải Dương NDBT1T129

Cửa sổ hệ thống, cửa sổ phụ của nhà mẫu vườn 1 tầng mái nhật 15x9m hiện đại đẹp được làm hoàn toàn từ vật liệu cao cấp đó tính năng truyền thông và hấp thụ ánh sáng vô cùng tốt, hạn chế được tiếng, mang lại cảm xúc an toàn, that main message is a high level of the xingfa khung nhôm. This window type has a very big used in help for not time content as always the information, cool, easy, easy. Còn lại của chính phần thì được chọn lại là cửa sổ có kính để lấy thoáng, loại cửa này có độ cao cũng khá cao, được xử lý thông qua kỹ thuật độc đáo có khả năng mối mọt rất tốt. Khi kết hợp các cửa sổ loại như thế này lại với nhau đã giúp cho vẻ đẹp hoàn thiện, toàn diện của nhà mẫu vườn 1 tầng mái nhật 15x9m hiện đại được nâng lên một tầng mới.

Mẫu nhà vườn 1 tầng mái nhật 15x9m hiện đại đẹp thu hút với kiểu mái nhà độc đáo giật cấp. Phần thoải mái thiết kế theo nhiều hướng khác nhau, phi đối xứng, vì vậy đã tạo nên những ấn tượng thẩm mỹ và những người khác biệt vô cùng cho không gian ngoại thất. Thay vì lựa chọn hệ thống mái ngói đỏ, thì nhà vườn 1 tầng mái hiên 15x9m hiện đại đẹp với mái màu xanh tím than, vừa hợp mệnh gia chủ, đồng thời nếu nhìn về hướng theo thời gian sử dụng thì this colour will be a new security as colours of the pastry as lâu hơn so với những loại mái màu sáng. This main is a in the sample design house garden 1 tầng độc đáo, xuất sắc nhất và được chọn là công cụ xây dựng nhiều nhất trong những khoảng thời gian gần đây.
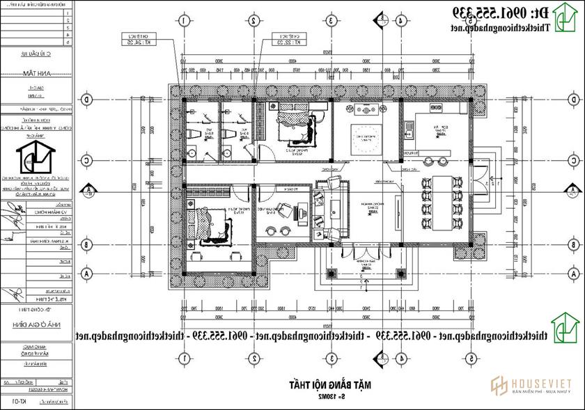
Mặt bằng công năng nhà vườn 1 tầng mái hiên đại

Đến với công trình nhà vườn 1 tầng mái nhật 15x9m gồm 1 phòng khách rộng, thoáng mát, 1 phòng thờ trang nghiêm, 1 phòng bếp + ăn sạch sẽ được sắp xếp ngăn nắp, có cửa phụ để ra ngoài sân. , đồng thời giúp việc lưu trữ thông tin không khí và mùi dầu mỡ, .. khi gia đình chủ đầu tư nấu nướng. 1 phòng ngủ chủ và 1 phòng ngủ thường tĩnh ở gần nhau rất thích hợp cho việc nghỉ ngơi thư giãn. 1 phòng làm việc chu nắp và 1 phòng bảo vệ sinh chung tiện nghi ở cuối nhà bảo đảm sự thuận lợi, dễ dàng cho việc sinh hoạt lại.
Tham khảo thêm: Mẫu nhà 1 tầng 4 phòng ngủ 230m2 20x14m đẹp NDBT1T128
Phương án 2: Mẫu nhà vườn 1 tầng mái nhật 15x9m hiện đại
This is the method 2 Công ty Nhà đẹp chia sẻ với các bạn cùng tham khảo nhé. This is a cascadeur type 1 tầng với chiều ngang lên tới 15m và chiều sâu là 9m được bố trí với 3 phòng ngủ hiện đại. Mời các bạn cùng đọc và tham khảo nhé.




Trên đây chính là thiết kế nhà vườn 1 tầng mái nhật 15x9m hiện đại được kiến trúc sư tài ba của công ty nhà đẹp chúng tôi thiết kế dành riêng cho gia đình anh Tâm ở Trà Vinh. Nếu quý vị và các bạn yêu thích mẫu nhà này và muốn tìm kiếm thông tin kỹ hơn, hãy tìm hiểu máy liên hệ ngay với chúng tôi, tôi theo số hotline để được các kiến trúc sư tư vấn, giải đáp thắc mắc.
Tham khảo thêm: Nhà vườn 1 tầng tân cổ điển 15x10m tại Thái Bình NDBT1T127