Nhà vườn 2 tầng 6x12m kết hợp nhà thờ ở Hoài Đức Hà Nội NDBT2T112
Mẫu nhà vườn 2 tầng 6x12m kết hợp thờ hiện đang được rất nhiều khách hàng quan tâm và lựa chọn. Tùy vào quỹ đất của mỗi gia đình lớn hay nhỏ mà chúng ta sẽ có phương án thiết kế sao cho phù hợp nhất. Sự đơn giản trong thiết kế là con dao hai lưỡi trong kiến trúc, nhiều công trình hiện đại tuy đơn giản nhưng khá nhàm chán và bị cho là thiếu thẩm mỹ, nhưng có những công trình hiện đại đơn giản vẫn tỏa sáng. và thể hiện được khí chất, tạo ấn tượng mạnh ngay từ cái nhìn đầu tiên. Ở những mẫu biệt thự nhà vườn 2 tầng, chúng ta thường bắt gặp một ngôi nhà bình dị và gần gũi, chan hòa thiên nhiên, phù hợp với cảnh quan không gian ở tỉnh hay ngoại thành nhưng vẫn thể hiện được cá tính. Sự đơn giản ấy được thể hiện qua bàn tay khéo léo của kiến trúc sư công ty Nhà Đẹp càng trở nên kiêu sa, tinh tế và độc đáo. Dù không trang trí cầu kỳ, không xa hoa, sặc sỡ nhưng vẫn khiến người ta không thể rời mắt. Vì vậy mẫu nhà hôm nay chúng tôi muốn giới thiệu đến các bạn là mẫu nhà vườn 2 tầng 6x12m kết hợp nhà thờ họ do chú Vương ở Hoài Đức - Hà Nội vừa hoàn thiện thiết kế vào đầu năm 2021. Mời quý vị và các bạn cùng theo dõi Mẫu nhà 2 tầng.
Thông tin mẫu nhà vườn 2 tầng 6x12m
Dự án này là một trong những công trình của một khách hàng quen thuộc của Nhà Đẹp, người chủ trì thực hiện dự án này là anh Khoa, hiện đang là giảng viên trường Đại học Xây dựng. Anh chuyên nhận thiết kế và thi công cho người quen. Ban đầu khi làm việc với anh cũng gặp khá nhiều khó khăn vì với thầy, mọi thứ phải chính xác, tỉ mỉ. Tuy nhiên, sau khi làm việc cùng nhau lần đầu tiên, lần thứ hai sẽ dễ dàng hơn nhiều.
- Chủ đầu tư: Chú Vương
- Địa điểm xây dựng: Hà Nội
- Diện tích nhà: 6mx12m
- Diện tích sử dụng: 72m2
- Tổng diện tích: 160m2
- Kinh phí dự kiến: 1 tỷ đồng
Phối cảnh 3D mẫu nhà vườn 6x12m 2 tầng kết hợp nhà thờ
Trong bài viết này, chúng tôi muốn chia sẻ với bạn hai tùy chọn, trong đó tùy chọn đầu tiên được trình bày trong mẫu thiết kế này là tùy chọn chốt. Và đây cũng là một trong những mẫu biệt thự 2 tầng khá đặc biệt với diện tích thiết kế khá nhỏ chỉ 6x12m. Và một điều đặc biệt nữa là sự kết hợp giữa nhà ở và nhà thờ họ là phổ biến nhất.
Phương án thiết kế nhà vườn 6x12m mái thái

Khi chúng ta nhìn vào hình ảnh 3D của hai tùy chọn, chúng ta có thể thấy rằng không có nhiều sự khác biệt giữa chúng. Chỉ có sự khác biệt giữa màu ngói xanh sang màu ngói đỏ và từ màu sơn trắng chủ đạo sang màu hồng phấn, phần mái của nhà thờ cũng từ màu ngói xám sang màu ngói đỏ, ở phương án 2, các chi tiết được được kiểm duyệt. khôn ngoan hơn. Nhìn chung, cả hai phương án đều có vẻ đẹp độc đáo và hiện đại riêng. Việc lựa chọn phương án tùy thuộc vào sở thích của các thành viên trong gia đình chủ đầu tư.



Đây là phương án cuối cùng và bạn có thể so sánh với phương án đầu tiên để chúng ta so sánh và đánh giá dễ dàng hơn.
Phương án thiết kế nhà vườn 6x12m mái thái

Sự đơn giản trong kiến trúc hiện đại không có nghĩa là mẫu vườn trên mái là xoàng xĩnh, bình dân. Ý tưởng về hình khối và xử lý ngoại thất là do kts sáng tạo nên đây là mẫu nhà đặc biệt không bị trùng lặp. Hình khối khỏe khoắn, chắc chắn tập trung vào các đường thẳng vuông vắn tạo cho ngôi nhà sự sang trọng và phù hợp với xu hướng thiết kế nhà ở, biệt thự hiện nay. Không gian mẫu biệt thự 2 tầng mái Thái với lối kiến trúc hiện đại chú trọng các họa tiết lớn, chi tiết nổi bật và không quá cầu kỳ mang lại hiệu quả thẩm mỹ cao nhất.
Điểm đáng chú ý trong mẫu nhà vườn 6x12m 2 tầng kết hợp nhà thờ họ của gia đình chú Vương chính là lan can ban công. Nếu như trước đây chúng ta thường thấy những mẫu nhà được trang trí ban công bằng lan can bê tông hay tường kín thì hiện nay những mẫu nhà hiện đại được sử dụng chủ yếu chất liệu kính cường lực cao cấp. Vì nó an toàn và bền bỉ, không bị ảnh hưởng bởi các yếu tố thời tiết như mưa bão, ẩm ướt dẫn đến ẩm mốc, bám bẩn. Ngoài ra khi sử dụng kính cường lực trong suốt người nhìn sẽ không bị hạn chế tầm nhìn, tạo không gian rộng hơn so với thực tế.

Sự phối hợp màu sắc hợp lý tạo hiệu ứng tốt tạo nên một tác phẩm đẹp hoàn hảo. Hướng tới lối thiết kế hiện đại, tinh tế nhưng không kém phần trang nhã, các kiến trúc sư của Công ty Nhà Đẹp sử dụng gam màu trắng làm chủ đạo cho mẫu biệt thự nhà vườn 1 tầng hiện đại tại Hà Nội. Màu trắng được coi là gam màu kinh điển, bởi khả năng dễ dàng kết hợp với các tông màu khác để tạo nên sự nổi bật và tinh tế. Màu trắng thể hiện sự mới mẻ, sự khởi đầu mới, đồng thời làm tăng vẻ đẹp hiện đại cho toàn bộ ngôi nhà.
Toàn bộ hệ thống tường phẳng được sơn màu trắng - màu trường tồn theo thời gian. Kết hợp với mảng lõm tường và đầu hồi cách điệu màu nâu vô cùng bắt mắt và sang trọng. Ngoài ra, toàn bộ hệ thống tường tầng 1 được ốp hoàn toàn bằng đá granit màu nâu đất - một màu sạch sẽ và nổi bật. Đá ốp tường có khả năng chịu nhiệt, chống thấm, chống ẩm mốc tốt nên không bị ảnh hưởng bởi các yếu tố thời tiết khắc nghiệt của Việt Nam. Đặc biệt vào những ngày mưa hay thời tiết nồm ẩm rất dễ bị ẩm mốc nên khi ốp lát bằng đá hoa cương bạn sẽ không lo ảnh hưởng đến vẻ đẹp thẩm mỹ của toàn bộ ngôi nhà vườn 2 tầng 6x12m.

Nổi bật nhất trong cách chơi màu trong mẫu biệt thự nhà vườn 2 tầng chính là hệ thống mái thái màu xanh dương vô cùng ấn tượng và sang trọng. Hệ thống mái thái giúp ngôi nhà luôn mát mẻ vào mùa hè và ấm cúng vào mùa đông nên rất phù hợp với điều kiện thời tiết ở nước ta. Sở hữu độ dốc tương đối lớn nên tốc độ thoát nước mưa tương đối nhanh, không lo bị dột, thấm xuống các tầng bên trong cũng như ẩm mốc ảnh hưởng đến chất lượng và thẩm mỹ của ngôi nhà. Mái thái tương đối nhẹ, không gây áp lực lên toàn bộ ngôi nhà nên phù hợp với khả năng chịu lực kết cấu của hầu hết mọi công trình. Với việc sử dụng màu sắc linh hoạt tạo nên ngôi nhà vườn 2 tầng 6x12m hài hòa, tránh sự nhàm chán và cân bằng tầm nhìn của mọi người rất tốt.
Nhìn vào bản vẽ ta thấy mẫu nhà vườn 2 tầng hiện đại được xây dựng chung với nhà thờ họ, do chú Vương là con trai trưởng trong gia đình. Anh quyết định xây nhà thờ họ bên cạnh để thắp hương và thờ cúng tổ tiên. Nhà thờ được thiết kế đơn giản với mái ngói kết hợp nhiều hoa văn tinh xảo, thể hiện nét truyền thống, cổ kính và trang nghiêm cho không gian nhà thờ. Ngoài ra, kiến trúc sư còn đưa ra thêm một phương án 2 giúp gia đình anh có thêm nhiều lựa chọn và tiết kiệm chi phí xây dựng:

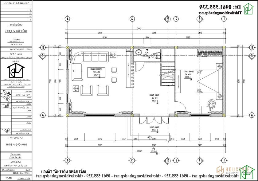
Mặt bằng công năng sử dụng của mẫu nhà vườn 2 tầng 6x12m kết hợp nhà thờ họ.

Mặt bằng công năng tổng thể của toàn bộ ngôi nhà vườn 2 tầng 6x12m kết hợp nhà thờ được xây dựng trên lô đất khá rộng rãi. Vì vậy, các kiến trúc sư của công ty nhà đẹp chúng tôi được thỏa sức sáng tạo và lên ý tưởng.

Từ sảnh chính là không gian cầu thang và khu vệ sinh chung tiện nghi ngay dưới cầu thang tạo sự thuận tiện trong sinh hoạt của các thành viên trong gia đình. Bên phải cửa chính là phòng khách rộng với bộ sofa lớn cùng kệ tivi, tủ trang trí .. Bên trái phải là phòng ngủ tiện nghi với nhiều hệ thống cửa sổ, căn phòng trở nên thông thoáng, dễ chịu.

Từ cầu thang lên tầng 2 là không gian nghỉ ngơi của gia đình chủ nhà. Không gian khá đầy đủ tiện nghi với 2 phòng ngủ được trang bị toàn bộ nội thất hiện đại và sang trọng. Trong đó có một phòng ngủ master có vệ sinh khép kín hiện đại đảm bảo cho việc sinh hoạt cá nhân của các thành viên trong gia đình.
Trên đây là toàn bộ thông tin về mẫu biệt thự nhà vườn 2 tầng 6x12m kết hợp nhà thờ họ của gia đình chú Vương tại Hà Nội. Nếu bạn có nhu cầu thiết kế và xây nhà hãy liên hệ ngay với công ty chúng tôi để được các kiến trúc sư tư vấn miễn phí.
- Biệt thự 2 tầng 4 phòng ngủ 13x10m tại Phúc Thọ Hà Nội NDBT2T111
- Biệt thự mái thái 2 tầng 7,5x15m ở Thái Bình NDBT2T110
- Mẫu thiết kế nhà 2 tầng chữ L hiện đại 15x12m NDBT2T109
- Biệt thự 2 tầng 3 phòng ngủ 13x11m mái thái ở Nam Định NDBT2T113