Những mẫu biệt thự đẹp 2 3 tầng cho đất bề ngang mặt tiền rộng 10m
Nhăc đến mẫu biệt thự mặt tiền 10m 2 đến 3 tầng 1 tum như các hồ sơ dưới đây. Công ty cổ phần tư vấn THIẾT KẾ NHÀ ĐẸP MỚI có không dưới 76 bản vẽ. Tùy theo tài chính và phong thủy cũng như hướng nhà và phong cách. Qúy vị tham khảo thêm mà chọn cho xu hướng 2023
Thông tin mẫu biệt thự mặt tiền 10m 3 tầng kiểu lâu đài
Đây là mẫu biệt thự 3 tầng kiến trúc lâu đài mini. Kích thước bản vẽ xây 160m2 ngang 10m sâu 16m chừa sân trước sân sau trên đất rộng hơn 200m2. Anh chị xem thêm công năng mặt bằng của mẫu lâu đài mini mặt phố rộng 10m. Quy mô xây dựng 1 trệt 2 lầu 1 sân thượng áp mái này

Mặt bằng thiết kế biệt thự ngang 10m mặt tiền phố 200m2
Gửi anh chị kiến trúc biệt thự cổ điển 3 tầng mặt tiền 10m sâu 20m này. Tuy nhiên diện tích xây khoảng 1 sàn 160m2 nghĩa là kích thước xây dựng 10x16m. Lưu ý theo sơ đồ mặt bằng thiết kế biệt thự ngang 10m 1 trệt 2 lầu kiểu Pháp này hợp với phong thủy tây tứ trạch hơn.

Hình ảnh thiết kế biệt thự cổ điển Pháp 3 tầng mặt bằng 2
Lưu ý mẫu biệt thự mặt tiền 10m 3 tầng hay còn gọi là biệt thự 1 trệt 2 lầu cổ điển. Trang trí theo phong cách biệt thự phố kiểu lâu đài Pháp có mái chóp kiểu Gothic châu âu. Xây trên đất ngang 10m mặt tiền bề sâu 20m. Còn chừa lại sân trước sân sau cho thoáng vừa tiết kiệm. Đây là mặt bằng lầu 1

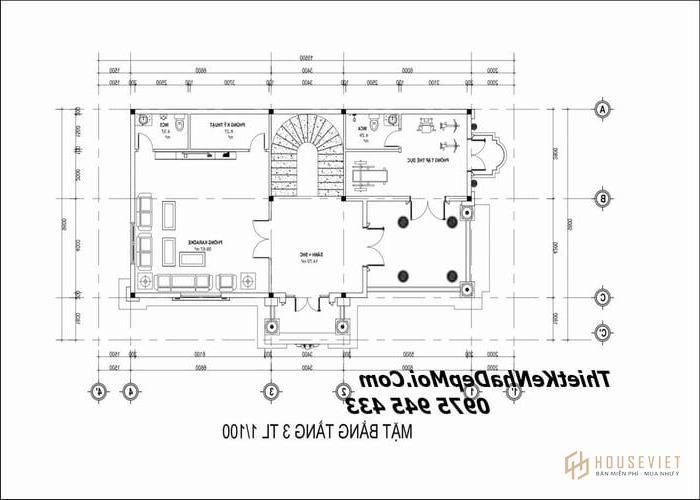
Mặt bằng tầng 3 mẫu nhà đẹp 2022 biệt thự phố rộng 10m
Đây là công năng tầng 3 cho biệt thự 3 tầng diện tích 160m2 này. Công năng thiết kế theo yêu cầu đưa ra có phòng Gym thể thao và phòng giải trí. Tuy nhiên anh với mặt bằng biệt thự có cầu thang xoắn ốc 3 tầng mặt tiền 10m ở tầng 3 này nếu anh chị cần 1 đến 2 phòng ngủ vẫn bố trí được. Mỗi cây mỗi hoa mỗi nhà mỗi cảnh tùy theo mục đích sinh hoạt nhé.

Đơn giá thiết kế thi công biệt thự phố mặt tiền 10m 3 tầng cổ điển
Tình hình quý 2 năm 2022 tất cả các nội thất trang trí và vật liệu xây dựng đều tăng cao. Tuy nhiên NHÀ ĐẸP MỚI vẫn nhận thiết kế thi công trọn gói phần thô 3.8 triệu/m2. Chi phí xây hoàn thiện 7 triệu/m2 áp dụng cho lâu đài cổ điển mini kiến trúc Pháp như hình. Còn các kiểu biệt thự mặt tiền 10m 3 tầng tân cổ điển thì giá sẽ rẻ hơn. Lý do đã lược bỏ chi tiết cầu kỳ đắp hoa văn nhé.

Xem thêm các mẫu mặt tiền biệt thự 2 tầng chi phí khoảng 1.5 tỷ đến 2 tỷ
Nếu muốn xây nhà đẹp 2 tầng mặt tiền 10m đơn giản hơn mà tài chính khoảng 1.5 đến 2 tỷ. Vẫn bố trí được cho các bạn có 3 đến 4 phòng ngủ 1 phòng thờ hoàn chỉnh. Đơn giá thiết kế biệt thự trọn gói cả nội thất và kết cấu đầy đủ là 250 nghìn/m2. Công ty nào cũng vậy thôi các bạn xem các mẫu biệt thự mini 1 trệt 1 lầu mái thái và mái Nhật này
- Mẫu nhà 2 tầng chữ l đơn giản đẹp mặt tiền 10m mái thái
- Mẫu nhà biệt thự ngang 10m 2 tầng có tầng âm kiểu bán hầm anh Trọng
- Ngắm mẫu biệt thự hiện đại đẹp 3 tầng 10×16 có hình thi công anh Dũng
Hình ảnh mẫu biệt thự mặt tiền 10m có gara mái thái
Bên cạnh những mẫu nhà vườn đẹp và thoáng mát ở nông thôn. Hay ngoại thành thì những mẫu biệt thự phố 3 tầng mặt tiền 10m đẹp đả xây năm ngoái. Được KTS đầu tư tối ưu tốt và thiết kế kỹ lưỡng. Cũng mang 1 vẻ đẹp không hề kém cạnh. Thậm chí còn nguy nga bề thế hơn nhờ được thiết kế với quy mô nhiều tầng. Những mẫu biệt thự vườn thường chỉ thiết kế 1 tầng vì quỹ đất còn nhiều nên diện tích thiết kế rộng. Mẫu biệt thự 1 trệt 2 lầu đẹp thiết kế theo phong thủy mệnh Tốn Mộc. Bích thượng thổ tông màu nâu gỗ kết hợp. Với trắng xám rất hợp với tuổi Canh Tý 1960 của anh Văn.

Bản vẽ biệt thự 10m 1 trệt 2 lầu mái thái tân cổ điển anh Thao
Nếu thích màu tường tone trắng. Cũng 1 trệt 2 lầu xây trên đất mặt tiền 10m thì kiểu nhà anh Thao hình dưới đây. Cũng là 1 trong các phong cách đẹp cho nhà biệt thự rộng 10m 1 trệt 2 lầu có sân thượng tân cổ điển. Phương án xây rộng 8m x 20m 1 bên đất còn chừa hành lang. Nếu anh chị cần xây biệt thự phố ngang 10m có sân vườn màu sơn trắng thì alo gửi thêm


Thông điệp thiết kế nhà biệt thự phố đẹp 3 tầng rộng 10m ngang
Trở lại với mẫu anh Văn có kiến trúc thiết kế biệt thự phố 1 trệt 2 lầu rộng 10m. Thường có mặt bằng xây dựng không rộng vì còn sân vườn. Nên thường phải mở rộng không gian lên tới 5 phòng ngủ và gara. Phía trên tạo ra những mẫu nhà uy nghi hùng vĩ. Hôm nay chúng tôi xin giới thiệu đến bà con 1 công trình kiến trúc rất hoành tráng. Vô cùng diễm lệ của anh Văn theo màu sơn cổ kính sẫm màu theo thời gian

Thông tin bản vẽ nhà mặt tiền 10m mái thái có gara anh Văn
Mẫu nhà 3 tầng mái thái mặt tiền 10m 3 tầng có gara. Được thiết kế biệt thự theo phong cách tân cổ điển kiểu châu âu cách điệu. Kết hợp với mái thái chữ A lợp ngói đỏ giật cấp. Mang âm hưởng của kiến trúc các dân tộc phương Đông Châu Á. Diện tích xây dựng thực tế của mẫu nhà đẹp mái thái 3 tầng có gara là 115m2. Mỗi sàn nên cho công năng sử dụng rất cao. Sau đây xin mời bà con cùng tham khảo. Nếu có những nhận xét góp ý để sản phẩm kiến trúc này được hoàn thiện hơn.
Xem thêm các mẫu biệt thự 1 trệt 2 lầu mái Nhật rộng 10m
Mẫu nhà biệt thự 3 tầng mái thái của anh Văn xây rồi. Được thiết kế theo phong cách châu âu với những đường nét hoa văn. Đặc trưng được thiết kế 1 cách tỉ mỉ. Làm toát lên vẻ đẹp hoa mỹ sang trọng. Ngôn ngữ thiết kế biệt thự mới mẻ. Được kết hợp giữa phong cách tân cổ điển pháp. Và trào lưu thiết kế biệt thự hiện đại châu âu mang đến 1 vẻ đẹp pha trộn tuyệt mỹ. Mặt tiền chính của nhà mái thái 3 tầng mặt phố rộng 10m. Được hoàn thiện 1 cách tinh tế với nhiều chi tiết được cân chỉnh theo đúng chuẩn mực. Có tỉ lệ vàng đem đến 1 bố cục đẹp mượt mà tráng lệ. Bấm ở đây mà tham khảo thêm nếu anh chị cần xây biệt thự phố mặt tiền mái thái 10m 1 trệt 2 lầu sân thượng anh Trung hình như sau

Các mẫu biệt thự mini 2 tầng mặt tiền 10m 1 trệt 1 lầu
Chi phí xây những công trình nhà mặt tiền 10m đẹp 2 tầng phần thô khoảng 3.5 triệu/m2. Phần hoàn thiện khoảng 6 triệu/m2 tức là thấp hơn so với thi công biệt thự cổ điển kiểu lâu đài mặt tiền 10m kiến trúc Pháp hoa văn đắp chỉ nhiều

- => Xem thêm: Chọn lọc + 170 mẫu biệt thự đẹp thiết kế đa phong cách năm 2022
Góc nhìn biệt thự phố 3 tầng mặt tiền 10m anh Văn 2
Mẫu thiết kế biệt thự kiểu pháp tối ưu theo hướng Đông cung Phước Đức. Mang vẻ đẹp biệt thự tân cổ điển đến từ những trụ đăng đối. Phía ngoài nhà mặt tiền 10m song song và những lan can lục bình thanh thoát. Pha trộn trong nét đẹp cổ điển ấy là vẻ đẹp cứng cáp vững chãi. Chọn tường có màu sắc hiện đại được kết hợp khéo léo phá tan mọi quy tắc. Hai màu chủ đạo của kiến trúc nhà phố tân cổ điển pháp. KTS đã được thay thế bằng màu nâu tĩnh lặng trầm mặc. Màu trắng được giữ lại ở những viền trang trí. Nhằm tạo nên sự tương phản hút mắt cho mẫu biệt thự mặt tiền 10m.

Cách thi công trang trí nhà biệt thự rộng 10m 3 4 tầng
Mặt tiền tầng trệt biệt thự mặt tiền 10m được phối màu xám đậm nhạt. Kết hợp với màu đỏ của cánh cửa chính lớn tạo nên 1 sắc thái tĩnh và sang trọng đĩnh đạc. Những khung cửa sổ là phần được chăm chút kỹ lưỡng nhất. Với những khung viền bao quanh theo phong cách châu âu cầu kỳ. Những cây cột chống đỡ ban công và hệ mái cũng được tỉ mỉ. Gọt giũa và trang trí những họa tiết chẳng những ở chân và đầu cột. Mà còn ở 4 mặt xung quanh dọc theo thân cột. Gửi thêm anh chị biệt thự 10m nhưng 2 mặt tiền anh Tạo

- Xem trước căn biệt thự góc 2 mặt tiền 10m 4 tầng đã xây xong bàn giao cho anh Tạo mà chọn
Mô tả về mẫu nhà biệt thự mái thái ngang 10m 1 trệt 2 lầu
Trên mỗi đầu cột đều được gắn lên 1 chiếc đèn điện Neon cổ. Càng làm mặt tiền mẫu nhà biệt thự 3 tầng đẹp nổi bật lên nét tây âu đặc trưng. Hệ thống ban công thơ mộng vừa có lan can lục bình trang trí. Vừa có ban công hình bán nguyệt khiến người xem. Không khó để nhận ra vẻ lãng mạn của kiến trúc thiết kế biệt thự bán cổ điển pháp. Được đan xen 1 cách kỳ diệu vào mặt tiền mẫu thiết kế chính. Nếu thích phong cách nhà mái Nhật bánh Ú thì xem mẫu biệt thự phố có sân vườn hiện đại anh Hải. Tham khảo top 109+ mẫu nhà đẹp 2022 KTS thiết kế biệt thự đa phong cách hiện đại. Có cả cổ điển pháp đẹp nhất từ trước tới nay

- Truy cập đường dẫn này để them khảo biệt thự mái Nhật 3 tầng mặt tiền 10m anh Hải có mặt bằng tầng 1 như hình dưới

Mặt bằng kiến trúc mẫu biệt thự phố 3 tầng mặt tiền 10m
Trở lại với mặt bằng mẫu nhà biệt thự đẹp được thiết kế rộng 10m có gara với quy mô 3 tầng anh Văn. Nên có 1 không gian sinh hoạt cực kỳ thoải mái. Công năng sử dụng thực sự ở mức rất cao với 5 phòng ngủ và nhiều phòng chức năng khác. Chẳng những đáp ứng được cho sinh hoạt thường ngày của gia đình anh Văn. Mà còn có thể phục vụ cho cả bà con họ hàng, anh chị em tập trung về mỗi dịp lễ tết, giỗ chạp.



Mô tả mặt bằng biệt thự ngang 10m 3 tầng ở tầng 1
Tầng trệt của mẫu nhà phố mái thái 1 trệt 2 lầu 10x20m anh Văn. Được bố trí sân trước rộng có khu tiểu cảnh xung quanh tạo sự mát mẻ thanh bình. Khối nhà chính được thiết kế gara gọn gàng để xe ô tô. Phòng khách rộng rãi có cửa chính 3m 4 cánh gỗ mộc sang trọng. Bên trong là phòng ăn với khu bếp cũng rộng không kém. Phòng ăn có cửa thông ra sân sau làm nơi thư giãn tuyệt vời. Nếu xây 2 tầng mái Nhật biệt thự kiểu châu âu mình có mẫu này

- Tham khảo ở đường dẫn biệt thự sân vườn 10x20m chị Trâm cho đất mặt tiền 10m như hình đầy đủ hơn
Cách thiết kế nhà mặt tiền 10m có phòng ngủ dự phòng
Sân sau mẫu nhà đẹp 3 tầng mặt tiền phố 10m còn đóng vai trò như hành lang. Lấy sáng và đối lưu không khí giúp phòng ăn được thoáng mát và có phong thủy đẹp. Kế bên phòng ăn là 1 phòng ngủ dành cho người lớn tuổi. Để có thể đi lại cho tiện lợi. Nhà anh Văn có thành viên lớn tuổi nên làm phòng ngủ dự phòng. Để những vị khách đến thăm gia đình có thể nghỉ ngơi.

Nội thất biệt thự 3 tầng mái thái 10m thi công xong bổ sung
Tầng 2 của mẫu biệt thự 3 tầng đẹp được bố trí phòng sinh hoạt chung và 3 phòng ngủ nữa. Mỗi phòng đều có nhà vệ sinh riêng cực kỳ tiện lợi. Lấy ánh sáng chính ở cầu thang và mặt tiền trước nhà không gian rộng rãi. Tầng 3 được bố trí phòng thờ, phòng karaoke thư giãn, sân thượng. Có phòng giặt phơi và 1 phòng ngủ dành cho khách. Hiện phong cách thiết kế nội thất biệt thự 3 tầng mái thái 10×20. Đang được kts công ty thiết NHÀ ĐẸP MỚI bàn giao xong đưa vào sử dụng bạn XEM Ở BÀI VIẾT NÀY để xem hình thực tế từ A đến Z đầy đủ hơn

Mẫu biệt thự 3 tầng tân cổ điển kiểu Pháp chị Linh mặt tiền 10m
Mời quý vị đón theo dõi trong chuyên mục nội thất nhà đẹp ở menu công ty trong thời gian sớm nhất. Bạn nên tham khảo thêm từ trang 1 đến trang 10 top 100+ mẫu nhà đẹp 1 2 3 4 tầng kiến trúc biệt thự kiểu pháp

- Xem full biệt thự phố 3 tầng kiểu Pháp mặt tiền 10m tân cổ điển chị Linh đẹp nhất Đông Anh này

Tư vấn xây biệt thự 1 trệt 2 lầu mặt tiền 10m mái ngói kiểu pháp
Mẫu biệt thự mặt tiền 10m ngoài mẫu thiết kế chính đồ sộ khang trang. Còn có tường rào và cánh cổng cũng không kém phần hoa mỹ. Tuy chỉ là 3 trụ bê tông kết hợp với những song sắt mảnh. Có 2 cánh cổng nhẹ nhàng bên trên có mái lợp cũng đủ. Làm tăng thêm vẻ đẹp sang trọng cho bố cục tổng thể. Ba trụ bê tông trước cổng nhìn bề ngoài đơn giản. Nhưng được đổ bê tông chân đế cimen rất cứng cáp vững chãi.

- Truy cập đường dẫn này mà xem biệt thự mặt tiền 10m có gara 1 bên nếu cần như hình
Tư vấn xây cổng và sân trước nhà mặt tiền mái thái rộng 10m
Bởi nhiệm vụ của cổng nhà biệt thự là bảo vệ ngôi nhà. Lại được xây sát lề đường nên khó tránh khỏi những va đập mạnh. Do xe tải đi lại ở trục đường vào. Hoặc những va quẹt của xe hơi khi vào ra. Vì vậy 3 trụ cột này cần phải được đổ bê tông thật cứng chắc. Để có thể bảo vệ được khuôn viên sân và ngôi nhà bên trong. Nếu trụ cổng chính của mẫu biệt thự 3 tầng mái thái không vững. Sẽ dẫn đến những hậu quả không hay về sau.

- Xem thêm bản vẽ chi tiết nhà biệt thự mái thái có gara 1 bên chị Huyền xây trên đất bề ngang 10m
Biệt thự có tầng hầm mặt tiền 10m 4 tầng chú Hưng
Còn thích mẫu biệt thự mặt phố rộng 10m hay nếu 9m kiểu Vương Quốc Anh Victorian style. Vừa ở vừa kinh doanh chú Hưng cô Ái ổ Sài Gòn như hình. Vui lòng BẤM THAM KHẢO TRƯỚC Ở ĐÂY tham khảo biệt thự mặt phố có tầng hầm

Tản mạn đôi điều về biệt thự ngang 10m 1 trệt 2 lầu mái thái
Nếu có điều kiện, quý vị nên quan tâm và đầu tư cho mẫu biệt thự nhà 3 tầng đẹp mái thái màu sẫm này. Gia đình 1 cánh cổng và hệ thống hàng rào thật cứng cáp và vững chãi. Làm “vệ sĩ” cho ngôi nhà yêu dấu và cả gia đình. Theo quan niệm phong kiến ngày xưa, nhà nào tường rào càng cao. Cổng càng kín thì chứng tỏ gia đình ấy càng giàu có và địa vị cao. Kín cổng cao tường để tránh người ngoài dòm ngó và tránh trộm cướp an ninh chắc chắn.

- Xem thêm bản vẽ biệt thự anh Trung gam màu mệnh Thổ 10m trên
Tổng quan về mẫu nhà biệt thự phố 3 tầng mặt tiền 10m đẹp 2022
Mẫu biệt thự tân cổ điển 3 tầng mái ngói được thiết kế trên 1 diện tích đất rộng mặt tiền 10m. Nên được chừa sân trước sân sau và hành lang bên hông thông thoáng. Đặc điểm này giúp cho mẫu nhà có được những nét phong thủy tuyệt vời. Hai khuôn viên sân trước sau tương ứng. Giúp cho các nguồn năng lượng có thể cân đối và luân chuyển đều quanh nhà tạo nên vượng khí dồi dào.

Ý tưởng bản vẽ kiến trúc biệt thự 3 tầng mái thái có gara mặt tiền 10m
Hơn thế nữa, mẫu nhà biệt thự mini trên diện tích 100m2 mái thái xây xong này. Còn có 3 mặt có thể lấy sáng nên kts đã tận dụng lợi điểm này thiết kế cửa sổ. Ở những vị trí thích hợp để khai thác triệt để nguồn năng lượng quý giá. Do thiên nhiên ban tặng là các luồng gió mát. Những tia nắng mặt trời cần thiết cho đời sống sinh hoạt của con người. Nhờ đó, mà mẫu biệt thự phố đẹp luôn có nội thất thông thoáng. Trong nhà chan hòa ánh sáng, không khí mát mẻ dễ chịu. Hứa hẹn đem lại 1 cuộc sống thoải mái tiện nghi và cải thiện sức khỏe của mọi thành viên trong gia đình.

Lưu ý khi xây biệt thự ngang 10m cao tầng
Nếu đất mặt tiền Phố bề ngang rộng 10m mà xây hết đất bạn lưu ý thoát nước cho mái. Nhằm chống thấm cho sàn còn nếu xây mái Thái bạn phải thiết kế mái cắt gọn âm sê nô thu nước. Vì xây nhà cao tầng trời mưa lớn mà độ dốc mái thái chuẩn 37 độ thì nước sẽ hắt qua nhà bên cạnh. Mình cũng có thể chừa mỗi bên 50cm cho thoáng và hành lang

Các mẫu nhà biệt thự hiện đại mặt tiền 10m
Mẫu thiết kế nhà đẹp 3 tầng rộng 10m mái thái nên xây chữ L có hành lang thoáng. Bản vẽ lợp ngói theo kiến trúc mái thái chữ A giật cấp. Nóc nhà trên cùng vì kèo kiểu thái cao 2.8m thi công từ trần lên. Giúp cho lớp không khí từ trần đến nóc dày, tạo nên 1 lớp cách nhiệt tuyệt vời cho kiến trúc cao bề thế. Nhờ đó, không khí trong nhà luôn giữ được nhiệt độ. Mát mẻ phù hợp với cơ thể con người: mùa đông ấm, mùa hè mát rất dễ chịu tiện nghi. Ngoài ra mời anh chị xem kiểu biệt thự mặt phố ngang 9m – 10m tương thích chú Hưng cô Ái như hình tại. Bạn XEM ĐẦY ĐỦ TẠI BÀI VIẾT NÀY giúp mình có 2 phương án

- => Ngoài ra còn có các style thiết kế biệt thự hiện đại có tầng hầm. Có không gian mở khác bản quyền của công ty chúng tôi

Mặt tiền biệt thự 3 tầng rộng 10m kiểu khác
Quý vị vừa xem qua mẫu biệt thự phố 3 tầng mặt tiền 10m của người mệnh Thổ hay Hỏa. Xây cho gia đình anh Văn ở Bình Dương chắc cũng đồng ý rằng: Là 1 trong các mẫu biệt thự nhà phố đẹp ngang 8m – 10m 5 phòng ngủ. Có công năng sử dụng không thua kém gì những mẫu biệt thự theo phong thủy. Xem mẫu biệt thự 4 tầng mái Thái anh Tạo như hình dưới TẠI ĐÂY mà chọn thêm

Để biết thêm chi tiết, xin quý vị vui lòng liên hệ 1800 6015 anh Bản phó giám đốc công ty. Lưu ý làm việc trong giờ hành chính còn nếu anh chị chỉ rảnh ban đêm thì gửi thông tin qua zalo sáng sẽ trả lời. Để được tư vấn và trao đổi thêm nếu yêu thích màu sơn sẫm như anh Văn. Hay các phong cách nhà mái Nhật anh Hải hiện đại khác. Có bản quyền của NHÀ ĐẸP MỚI. Chúc anh chị nhiều sức khỏe.! Mãi yêu.!