Những mẫu nhà 2 tầng có phòng thờ đẹp phong thủy ở tầng 1
Khi xây nhà, các chủ đầu tư rất quan tâm đến vị trí đặt phòng thờ trong cách bố trí công năng sử dụng của mỗi ngôi nhà. Nếu bạn định xây dựng Mẫu nhà 2 tầng có phòng thờ tầng 1. vì vậy đừng bỏ qua bài viết sau đây từ CHÚNG TÔI LÀM Xin vui lòng. Chúng tôi sẽ đề cập đến những lưu ý quan trọng khi bố trí phòng thờ tầng 1 và các cách bố trí phòng thờ chuẩn phong thủy để các bạn tham khảo.
Lưu ý quan trọng gia chủ cần biết khi xây nhà 2 tầng có phòng thờ tầng 1
Từ xa xưa, nơi thờ tự đã rất quan trọng đối với người Việt Nam. Bởi thờ cúng tổ tiên là một truyền thống, văn hóa tốt đẹp của dân tộc ta. Theo điều kiện của mỗi gia đình, mỗi gia đình nên chọn vị trí đặt bàn thờ phù hợp. Nhiều gia đình lựa chọn cách đặt phòng thờ trên tầng thượng, đây là nơi yên tĩnh nhất trong ngôi nhà, nhưng cũng có những hộ gia đình lại quyết định đặt phòng thờ ở phòng khách để tiện cho việc hương khói mỗi dịp lễ tết. Năm.
Việc bố trí phòng thờ ở tầng 1 cũng mang đến những ưu điểm vượt trội như:
+ Đi lại dễ dàng, tổ chức bàn thờ, cúng bái mỗi dịp lễ tết. Đặc biệt đối với nhà có người già và trẻ em, việc di chuyển lên tầng cao rất khó khăn và nguy hiểm.+ Phòng thờ ở tầng 1 sẽ tạo không gian thoải mái nhưng có phần nghiêm trang cho ngôi nhà. + Tạo điều kiện tốt cho con cháu trong việc thờ cúng, nhắc nhở uống nước nhớ nguồn, hiểu được ý nghĩa của văn hóa thờ cúng.

Tuy nhiên, khi quyết định xây dựng Mẫu nhà 2 tầng có phòng thờ tầng 1.Chủ xe cần lưu ý những điểm sau:
- Gia chủ tuyệt đối không nên đặt phòng thờ cạnh hoặc dưới nhà vệ sinh, nhà bếp, nhà tắm. Nếu chọn không gian phía trên phòng thờ làm phòng ngủ của mình, gia chủ cần lưu ý kê giường kê lệch khỏi bàn thờ để tránh phạm phải những điều cấm kỵ trong thờ cúng.
Phòng thờ cần có không gian sáng sủa, thoáng mát và tốt nhất nên chọn nơi có ánh nắng chiếu vào. Điều này sẽ giúp khói hương không bị dồn lại và khét lẹt trong nhà mà thoát ra ngoài tạo không khí dễ chịu cho ban thờ.
Tuy cần đảm bảo yếu tố ánh sáng nhưng phòng thờ không nên có cửa sổ quá rộng để gió thổi mạnh làm rung lắc bát hương.
Không đặt bàn thờ dưới nhà vệ sinh trên lầu, không đặt bàn thờ ở nơi ồn ào (ví dụ: trong phòng ăn), không đặt bàn thờ sát tường nhà vệ sinh.
- Phòng thờ phải có không gian có thiết kế tối giản, không cầu kỳ cũng như màu sắc quá nổi bật hoặc quá tối. Đồng thời, không nên kê những đồ đạc không mong muốn, mù mịt trong phòng thờ làm ảnh hưởng đến không gian thờ cúng trang nghiêm và tâm linh này. Ngoài ra, gia chủ nên thường xuyên dọn dẹp, ngăn nắp để phòng thờ, bàn thờ luôn sạch sẽ, ngăn nắp.
- Nên tránh kê bàn thờ đối diện với cửa ra vào vì sẽ khiến tâm lý bất ổn, khó tập trung cầu nguyện, van xin người đứng thắp hương. Đây là điều mà nhiều gia đình gặp phải hiện nay nên gia chủ cần hết sức lưu ý.
- Gia chủ chỉ nên cúng hoa quả tươi trong ngày, sau đó hạ xuống dùng trong gia đình, không để thối, héo trên ban thờ, vì lúc này chỉ có thể vứt bỏ. Ngoài ra, hoa để thắp hương trên bàn thờ nên làm từ hoa tươi, không nên cắm hoa héo hoặc hoa giả trên bàn thờ.
Tham khảo mẫu thiết kế nhà 2 tầng có phòng thờ đẹp phong thủy ở tầng 1
Mẫu 1: Phòng thờ được bố trí phía trước phòng khách có vách ngăn.
Mẫu nhà 2 tầng có phòng thờ Đầu tiên dưới đây được nhiều gia chủ lựa chọn vì phù hợp với giá thành và nhu cầu sử dụng. Mẫu thiết kế nhà 2 tầng cũng rất thích hợp cho việc sinh hoạt của gia đình. Điểm nhấn của ngôi nhà là hệ thống mái thái độc đáo kiểu Nhật và không gian thoáng đãng là ban công tầng 2 rộng với khu vườn treo nhỏ xanh mát. Ngôi nhà được thiết kế xung quanh là sân vườn rộng rãi vừa tạo cảm giác gần gũi với thiên nhiên vừa mang đến không gian sống thoáng mát cho gia chủ. Tông màu trắng và nâu đen cũng giúp công trình thêm phần nổi bật và thu hút.

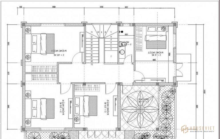
Không gian phòng thờ ở tầng 1 sẽ thuận tiện cho việc thờ cúng của gia đình. Ngoài ra, phòng thờ được bố trí ở tầng 1 thông với phòng khách để tiện cho việc hương khói. Nơi đây còn là vị trí đẹp theo tuổi của gia chủ, thu hút nhiều tài lộc và may mắn. Nhìn vào bản vẽ mặt bằng, bước vào qua cửa chính, bạn sẽ nhận thấy phòng khách và phòng thờ được đặt đối diện nhau. Không gian phòng thờ có vách ngăn với phòng khách mang lại phong thủy và sự yên tĩnh. Ngoài ra, bếp và phòng ngủ được bố trí bên trong.

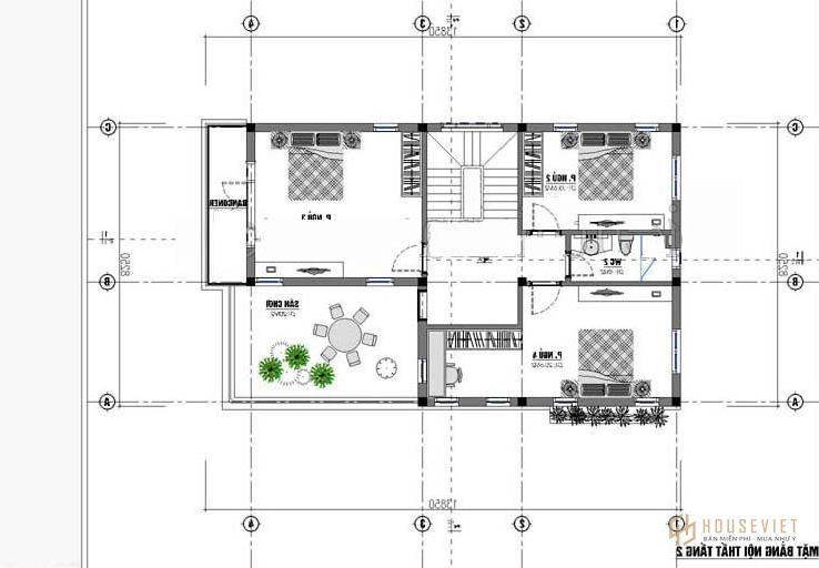
Không gian tầng 2 là không gian nghỉ ngơi với 4 phòng ngủ và ban công rộng làm sân café.

Dạng 2: Phòng thờ chung không gian với phòng khách.
Ngưỡng mộ Mẫu nhà 2 tầng có phòng thờ tầng 1. Với mái thái này, bạn sẽ bị hớp hồn bởi những hình khối chữ nhật vuông vắn. Những đường nét tinh xảo đã được đơn giản hóa và lược bỏ nhiều nhất có thể, nhưng ngôi nhà vẫn toát lên vẻ cuốn hút lạ thường. Những tấm kính cường lực trong suốt được lồng ghép thông minh vào khối kiến trúc vững chắc giúp tận dụng ánh sáng tự nhiên. Gam màu trắng và xám được kết hợp hài hòa tạo nên vẻ ấn tượng cho ngôi nhà. Khối mái rộng được thiết kế theo kiểu mái lệch tạo cảm giác bề thế và sang trọng cho tổng thể công trình.

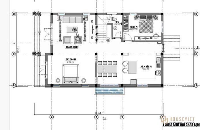
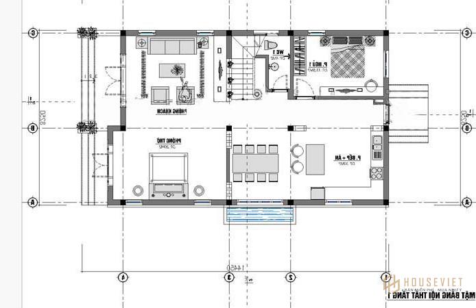
Chung phòng thờ với phòng khách là thiết kế phổ biến hiện nay. Phòng khách là nơi trang trọng nhất trong ngôi nhà, là nơi chứa đựng tài lộc của gia đình. Đặt bàn thờ ở phòng khách thể hiện lòng thành kính với tổ tiên và nhắc nhở con cháu hàng ngày phải thờ cúng ông bà. Với mẫu dưới đây, khi bước vào sảnh chính là phòng khách kết hợp phòng thờ. Ở phía dưới là khu vực bếp. Hai phòng ngủ được bố trí ở hai bên cầu thang thông tầng để đảm bảo sự yên tĩnh và thông thoáng. Nhà vệ sinh chung được thiết kế dưới gầm cầu thang để tiết kiệm diện tích và đảm bảo sự thuận tiện cho mọi người.

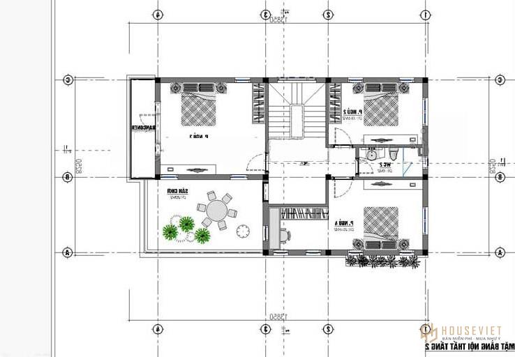
Tầng 2 bố trí 3 phòng ngủ tiện nghi, hiện đại. Một phòng ngủ cho bố mẹ có phòng tắm riêng và hai phòng ngủ nhỏ hơn sử dụng phòng tắm chung. Phòng sinh hoạt chung nằm đối diện cầu thang so với giếng trời.

Mẫu 3: Phòng thờ được bố trí riêng đối diện phòng khách.
Mẫu nhà 2 tầng có phòng thờ tầng 1. Vẻ đẹp truyền thống với thiết kế mái đỏ nổi bật giúp tăng thêm chiều cao cho công trình. Mẫu nhà đẹp có bố cục hợp lý được sắp xếp sáng tạo từ các khối hình học đơn giản tạo thành sự kết hợp ấn tượng. Nhờ lợi thế 2 mặt tiền, hệ thống mái thái bao phủ các khối nhà được tính toán độ cao hợp lý giúp mẫu nhà trông bề thế, cao ráo và sáng sủa.

Phòng thờ được bố trí ở tầng 1, tiếp giáp với khu vực ngoài trời, đối diện phòng khách. Là vị trí đắc địa, hợp phong thủy, yên tĩnh, thoáng mát, giao hòa với thiên nhiên. Các không gian còn lại được bố trí cẩn thận, khoa học, tạo sự thoải mái và tiện nghi trong cuộc sống.

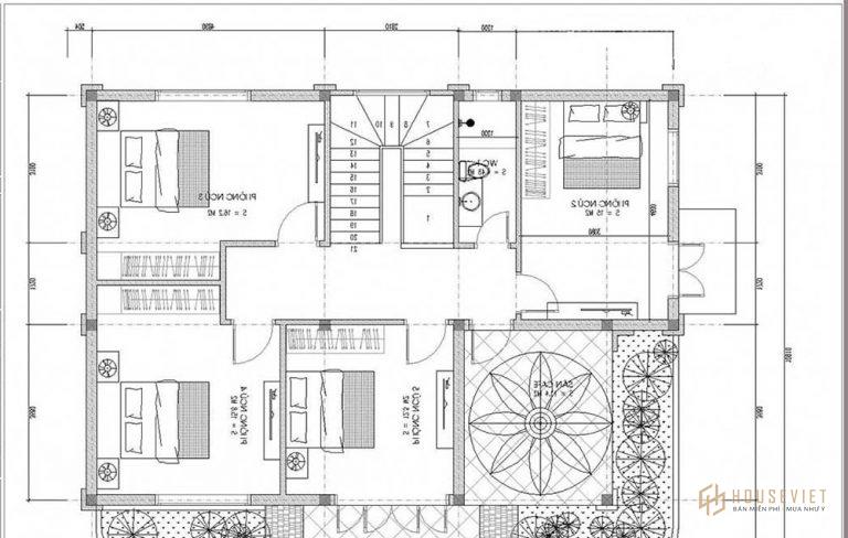
Tầng 2 bố trí 3 phòng ngủ và khu vui chơi. Phòng ngủ chính có diện tích lớn nhất và vị trí tuyệt vời để ngắm cảnh từ trên cao. Các phòng còn lại với diện tích nhỏ gọn được trang bị đầy đủ nội thất. Phòng ngủ sử dụng chung phòng vệ sinh nằm ở giữa 2 phòng ngủ nhỏ.

Nếu bạn định thiết kế Mẫu nhà 2 tầng có phòng thờ tầng 1. sau đó vui lòng liên hệ CHÚNG TÔI LÀM để được tư vấn cụ thể. Chúng tôi cam kết sẽ mang đến cho bạn và gia đình những mẫu thiết kế nhà lý tưởng nhất.