Phân loại nhà cấp 4 dựa vào công năng sử dụng nhà
Không thể phủ nhận trong những năm gần đây nhà cấp 4 đang nhận được rất nhiều sự ưu ái của người dân trên mọi miền tổ quốc. Các mẫu thiết kế nhà cấp 4 đẹp với nhiều kiểu dáng và phong cách khác nhau đan xen với các mẫu biệt thự và nhà phố đã tạo nên sự đa dạng trong kiến trúc nhà ở Việt Nam. Khi đánh giá các mẫu nhà đẹp, người ta không chỉ đánh giá về phần ngoại thất mà còn chú trọng nhiều vào công năng sử dụng của căn nhà. Chính bởi vậy trong bài viết này Nhà đẹp muốn đưa ra sự phân loại nhà cấp 4 dựa vào công năng sử dụng để đáp ứng trực tiếp nhu cầu về thẩm mỹ và thị hiếu của người dân.
Công năng sử dụng nhà cấp 4 là gì?
Công năng sử dụng của căn nhà là chức năng mà căn nhà đảm nhiệm để đáp ứng mọi nhu cầu của con người. Có thể vận dụng lý thuyết Tháp nhu cầu của Maslow để thiết lập lên mô hình công năng trong kiến trúc nhà ở dựa theo sự gia tăng về mức sống.
Để có thể phân chia được công năng khoa học người ta dựa vào 5 yếu tố sau: nhu cầu sinh lí, nhu cầu an toàn, nhu cầu xã hội, nhu cầu tôn trọng và nhu cầu thực hiện. Nhu cầu sinh lý chính là nhu cầu đảm bảo sự tồn tại của con người. Nó tương đương với các không gian thuộc chức năng nghỉ ngơi gồm khu bếp, phòng ăn, phòng ngủ, vệ sinh,… Đây là những không gian đóng vai trò quan trọng trong bất cứ loại hình nhà ở nào và đòi hỏi sự tính toán tỉ mỉ, chi tiết để có được không gian sinh hoạt tiện nghi, khoa học nhất.
Nhu cầu an toàn là nhu cầu được bảo vệ, chở che và ổn định cuộc sống tương đương với các không gian thuộc chức năng kinh tế như thương mại, dịch vụ, làm nghề thủ công và văn phòng. Tiếp theo là nhu cầu xã hội là nhu cầu gắn kết tình cảm trong gia đình. Nó không chỉ bao gồm các không gian sinh hoạt chung như phòng khách, phòng bếp mà còn bao gồm cả không gian thờ cúng, nơi thể hiện truyền thống “uống nước nhờ nguồn”, bày tỏ lòng biết ơn, kính trọng của người còn sống với người đã mất.
Hai nhu cầu còn lại thuộc yếu tố cá nhân của con người. Chẳng hạn nhu cầu tôn trọng là nhu cầu thể hiện cái tôi cá nhân và vị thế của mỗi người trong gia đình. Nhà phải có trên có dưới, có trước có sau, chuẩn theo gia giáo. Và cuối cùng là nhu cầu thực hiện là nhu cầu tự do theo đuổi năng khiếu của bản thân, trải nghiệm và sự hài lòng về cuộc sống.
Phân loại nhà cấp 4 dựa vào công năng sử dụng
Dựa vào công năng sử dụng người ta phân loại nhà cấp 4 thành 3 loại chính: nhà cấp 4 2 phòng ngủ, nhà cấp 4 3 phòng ngủ và nhà cấp 4 4 phòng ngủ. Vì là mẫu nhà có quy mô nhỏ dành cho những hộ gia đình ít thành viên nên công năng của căn nhà chủ yếu khác nhau ở số lượng phòng ngủ còn phòng khách, phòng bếp hay phòng thờ là những không gian cơ bản cần có ở mỗi căn nhà nên chúng tôi sẽ không xét đến. Có chăng chỉ là sự sắp xếp vị trí như thế nào sao cho hợp lý mà thôi.
Nhà cấp 4 2 phòng ngủ hiện đại
Nhà cấp 4 2 phòng ngủ có cách bố trí công năng rất đơn giản vì ngoài không gian của phòng khách, phòng bếp hoặc phòng thờ thì diện tích còn lại sẽ được chia đều cho 2 phòng ngủ. Chỉ cần bạn có một mảnh đất rộng 60-100m2 bạn hoàn toàn có thể sở hữu cho mình 1 căn nhà cấp 4 2 phòng ngủ tiện nghi, hiện đại. Tham khảo thêm các mẫu nhà dưới đây sẽ giúp bạn hình dung ra cách phân chia công năng cho nhà cấp 4 2 phòng ngủ như thế nào.


Đây là mẫu nhà cấp 4 7x14m mái thái đơn giản tại Long An với công năng 1 phòng khách kết hợp phòng thờ, 1 phòng bếp – ăn và 2 phòng ngủ. Trên diện tích 100m2 gia chủ phân chia các gian phòng như sau: phòng khách 30m2, 2 phòng ngủ mỗi phòng rộng 11.3m2, phòng bếp 13.4m2 và còn lại cho nhà vệ sinh và phòng giặt đồ. Kinh phí của căn nhà là 700 triệu.


Mẫu nhà thứ hai là mẫu nhà cấp 4 mái chéo ấn tượng tại Hải Phòng với kinh phí 400 triệu (chưa tính mái). Công năng sử dụng của căn nhà bao gồm 1 phòng khách, 1 phòng ăn – bếp và 2 phòng ngủ. Vì nhà rộng 6x13m nên gia chủ phân chia thành 2 khu: khu chính giành cho phòng khách và phòng ngủ, khu nhà phụ được tách biệt làm nhà ăn và nhà bếp.


Nhìn vào mặt bằng thiết kế nội thất của căn nhà có nhiều bạn nhầm tưởng đây là nhà cấp 4 3 phòng ngủ tuy nhiên thực tế căn nhà chỉ có 2 phòng ngủ mà thôi. Với diện tích 91m2 các nhà kiến trúc sư đã khéo léo mở rộng thêm công năng của căn nhà bằng cách mở rộng thêm diện tích của 1 phòng ngủ để có thể đặt được 2 giường. Phần diện tích còn lại vẫn đủ không gian cho phòng khách, phòng ăn – bếp và phòng thờ.


Nhà cấp 4 mái thái 8x9m tiện nghi tại Đồng Nai các bạn nhìn thấy trên đây có diện tích 72m2 với chi phí 360 triệu. Từ cửa bước vào sẽ là không gian phòng khách. Đối diện phòng khách là phòng ngủ rộng 11m2. Vị trí cuối nhà dành cho phòng bếp – ăn và 1 phòng ngủ rộng 10.5m2. Phòng ngủ 2 bé hơn phòng ngủ 1 vì còn dành diện tích cho nhà vệ sinh.


Tiếp tục chuỗi nhà cấp 4 nông thôn 2 phòng ngủ là mẫu nhà cấp 4 mái thái 7x14m đẹp tại Đồng Nai. Phần ngoại thất được thiết kế theo phong cách hiện đại, màu sắc nhẹ nhàng tươi sáng. Đồng bộ với ngoại thất, nội thất bên trong cũng được thiết kế rất đơn giản. Nhà bao gồm 1 phòng khách, 1 phòng ăn – bếp và 2 phòng ngủ. Trong 2 phòng ngủ có 1 phòng master có nhà vệ sinh riêng rất tiện lợi.


Mẫu nhà cuối cùng 2 phòng ngủ chúng tôi muốn giới thiệu đến các bạn là mẫu nhà cấp 4 7x13m đẹp tại Cà Mau. Chi phí xây dựng căn nhà là 480 triệu trên diện tích xây dựng 72m2. Nhà được thiết kế có sảnh trước và sảnh sau để tạo sự thông thoáng cho căn nhà cũng như thuận tiện cho quá trình đi lại.
Nhà cấp 4 3 phòng ngủ hiện đại đẹp
Nếu nhu cầu sử dụng của bạn cao hơn bạn nên lựa chọn mẫu nhà cấp 4 3 phòng ngủ. Tuy nhiên tăng công năng sử dụng đồng nghĩa với việc bạn phải mở rộng thêm diện tích xây nhà và chuẩn bị thêm kinh phí xây dựng. Nếu như nhà cấp 4 2 phòng ngủ chỉ cần diện tích 60-100m2 thì nhà 3 phòng ngủ phải cần đến mảnh đất rộng 100-150m2 và kinh phí cũng tăng lên từ 100-200 triệu. Dưới đây là một số mẫu nhà cấp 4 3 phòng ngủ đẹp, tiện nghi nổi bật nhất năm 2019 bạn có thể tham khảo.


Mẫu nhà đầu tiên trong bộ sưu tập này là nhà cấp 4 kiểu Nhật của gia đình chú Hợi tại Hải Dương. Nếu tách biệt riêng căn nhà chắc hẳn nhiều người sẽ lầm tưởng đây là căn biệt thự 1 tầng hiện đại vì cấu trúc khác biệt lại có thêm gara để xe vô cùng tiện nghi. Người Nhật nổi tiếng với sự thông minh, sáng tạo và tính tiết kiệm nên những đức tính đó được thể hiện rất rõ nét trong không gian sinh sống của họ.
Trên tổng diện tích đất 144m2 căn nhà cấp 4 mái bằng được phân chia công năng rất thông minh và khoa học. Trong 3 phòng ngủ có 1 phòng master dành cho bố mẹ. Bạn có thể tham khảo chi tiết về căn nhà trong bài viết Thiết kế nhà cấp 4 kiểu Nhật đơn giản và tiện nghi NDNC4112.


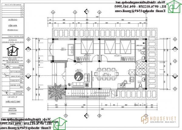
Dù có ảnh hưởng của rất nhiều phong cách khác nhau như cổ điển, tân cổ điển nhưng nhà cấp 4 mái thái vẫn luôn khẳng định được vị trí của nó khi ở bất kì mẫu nhà nào cũng có sự góp mặt phần lớn của những mẫu nhà mái thái. Thiết kế nhà cấp 4 9x12m mái thái tại Thái Bình là mẫu nhà tiêu biểu nhất hiện nay. Bạn có thể tham khảo cách bố trí công năng của căn nhà ngay trên bản vẽ.


Bên cạnh mẫu nhà cấp 4 truyền thống, nhà gác lửng cũng là lựa chọn thông minh giành cho những hộ gia đình có diện tích đất eo hẹp. Thay vì thiết kế thêm 1 phòng ngủ dưới tầng 1, không gian của các phòng sẽ được mở rộng thêm nhờ có thêm 1 tầng gác lửng như cách thiết kế bạn nhìn thấy ở mẫu nhà cấp 4 gác lửng 5x24m đẹp tại Hà Giang trên đây. Kinh phí xây dựng căn nhà là 870 triệu.


Mẫu nhà cấp 4 9x12m tại Đông Xá – Thái Bình được xây dựng trên diện tích 108m2 chi phí 520 triệu chứa công năng 3 phòng ngủ, 1 phòng khách, 1 phòng ăn – bếp và 1 phòng thờ. Mặt tiền rộng 9m là 1 lợi thế giúp cho các nhà kiến trúc sư dễ dàng lên ý tưởng thiết kế nội thất cho căn nhà.



Mẫu nhà cấp 4 có gác lửng 3 phòng ngủ đẹp tại Hải Dương nhận được sự quan tâm của nhiều người không chỉ bởi ngoại thất sang trọng, hiện đại mà còn bởi công năng bố trí khoa học. Giống như hầu hết căn nhà cấp 4 gác lửng, phòng thờ và phòng ngủ của căn nhà được đưa lên tầng gác giúp cho không gian dưới tầng 1 được rộng rãi, thoải mái hơn khi căn nhà chỉ có diện tích nhỏ 115m2.


Màu sắc lạ mắt kết hợp cùng với hệ thống mái thái là điểm độc đáo của mẫu nhà cấp 4 nông thôn đơn giản 7.5x17m tại Vĩnh Bảo Hải Phòng. Công năng sử dụng của căn nhà bao gồm 3 phòng ngủ, 1 phòng khách, 1 phòng bếp – ăn. Nếu tính cả phí nội thất, căn nhà được hoàn thiện với giá 800 triệu.


Và đây là mẫu nhà cuối cùng chứa công năng của 3 phòng ngủ. Nếu bạn để ý kĩ bạn sẽ thấy với mỗi căn nhà nội thất sẽ được đặt ở những hướng khác nhau tùy thuộc vào vận mệnh và sở thích của gia chủ.
Nhà cấp 4 4 phòng ngủ đẹp
Nhà cấp 4 4 phòng ngủ có quy mô tương đương với một căn biệt thự 1 tầng rộng trên 150m2. Chi phí xây dựng nhà cũng cao hơn nhiều so với nhà cấp 4 2 phòng ngủ hay 3 phòng ngủ vì khi diện tích tăng lên sẽ kéo theo hàng loạt các yếu khác tăng theo như cần nhiều nhân công, nhiều vật liệu xây dựng, thời gian thi công dài hơn,…


Mẫu nhà cấp 4 4 phòng ngủ tại Hải Dương có cách bố trí công năng như sau: từ cửa bước vào là phòng khách, đối diện phòng khách là phòng thờ và phòng ngủ. Không gian còn lại dành cho 3 phòng ngủ và 1 phòng ăn – bếp. Ngoài sảnh chính, nhà còn có thêm sảnh phụ để thuận tiện đi lại và giúp cho căn nhà thoáng mát hơn.


Khi biết cách kết hợp phòng khách với phòng thờ chỉ cần diện tích 112m2 như căn nhà cấp 4 2 mặt tiền của gia đình anh Huy tại Hải Dương bạn cũng có thể sở hữu cho mình một căn nhà cấp 4 4 phòng ngủ. Công năng của căn nhà bao gồm 4 phòng ngủ và 1 phòng khách. Trong 4 phòng ngủ, gia chủ còn sở hữu cho mình 1 phòng master có nhà vệ sinh riêng rất tiện lợi. Trong không gian này không có diện tích của phòng bếp vì gia chủ đã có một không khu bếp riêng ở cuối nhà để tránh mùi thức ăn ảnh hưởng đến nhà chính.
Ngoài phân loại nhà cấp 4 theo số phòng ngủ bạn còn có thể phân loại dựa vào diện tích, giá xây nhà hoặc phong cách xây dựng. Tuy nhiên dù phân loại theo cách nào cũng không quan trọng bằng việc bạn có quyết định đúng đắn phù hợp với ngân sách và nhu cầu của gia đình. Nếu bạn gặp bất kì khó khăn nào trong quá trình thiết kế và thi công nhà ở hãy liên lạc ngay với Nhà đẹp. Chúng tôi sẽ giúp bạn xây lên căn nhà mơ ước của mình.
Tham khảo thêm:
- https://thietkethicongnhadep.net/mau-nha-dep/biet-thu-2-tang/
- https://thietkethicongnhadep.net/mau-nha-dep/biet-thu-co-dien/