“Phóng to” thiết kế căn hộ studio 30m2 cực đơn giản
Bài toán sắp xếp không gian cho một căn hộ diện tích hạn chế quả thật luôn là một thách thức đối với bất kỳ ai. Việc tính toán sao cho vừa đảm bảo được thẩm mỹ, vừa đảm bảo được công năng luôn là một yêu cầu vô cùng khó. Tuy nhiên, thiết kế căn hộ studio 30m2 mà chúng tôi dưới thiệu dưới đây lại là một trường hợp đặc biệt. Hãy theo dõi đến tận cuối bài viết nhé!
1. Mục đích sử dụng căn hộ studio

Những căn hộ studio có diện tích nhỏ, vì vậy giá thuê/ bán cũng không quá cao. Điều này đặc biệt phù hợp với tài chính của hầu hết khách hàng. Nhất là đối tượng độc thân trong độ tuổi từ 18 – 30 tuổi hay các gia đình trẻ mới cưới. Ngoài ra, những thiết kế căn hộ studio cho thuê thường xuyên được xây dựng trong khu vực nội thành nên rất thuận tiện trong việc đi lại.
Mặt khác, các căn hộ studio thường không có vách ngăn giữa nên sẽ tiết kiệm năng lượng cho việc chiếu sáng vào căn hộ. Hơn nữa, việc dọn dẹp căn hộ cũng sẽ nhanh chóng và dễ dàng hơn. Ngoài ra, gia chủ cũng cần để ý sắp xếp lại đồ đạc trong studio để thiết kế nội thất căn hộ trở nên thông thoáng hơn.
Một diện tích căn hộ rất phù hợp cho người sống độc thân là khoảng 30m2 với chi phí thuê hợp lý. Bên cạnh ưu điểm hạn chế được công sức lau chùi dọn dẹp, lựa chọn thiết kế căn hộ studio 30m2 còn giúp cho các gia chủ tiết kiệm được chi phí trang trí nội thất cho các không gian trong căn hộ. Mọi người không cần phải trang trí quá nhiều bóng đèn, quạt hoặc máy lạnh tại mỗi phòng. Thay vào đó, các bạn chỉ cần sở hữu một căn hộ vừa phải không có nhiều phòng. Vì vậy, mục đích sử dụng căn hộ studio trên thị trường mà mọi người có thể thấy đó là tiết kiệm chi phí, giảm bớt gánh nặng về tài chính cho khách hàng.
2. Đối tượng sở hữu loại hình căn hộ studio 30m2

Với diện tích nhỏ chỉ 30m2 nên căn hộ studio ra đời chủ yếu để phục vụ nhu cầu cho thuê của học sinh, sinh viên, những người độc thân,… học tập và làm việc ở các trung tâm thành phố. Khi xuất hiện ở Việt Nam, các chủ đầu tư đã phải tập trung khai thác việc cho sở hữu bằng việc bán đứt cho khách hàng.
Khi sở hữu căn hộ studio, khách hàng có thể tự thiết kế căn hộ studio 30m2 theo phong cách của riêng mình. Theo ý kiến của các chuyên gia thiết kế, các căn hộ loại nhỏ hoàn toàn có thể biến thành nhà studio nếu như gia chủ yêu cầu và được tư vấn hoàn thiện.
Những chuyên gia thiết kế cũng đưa ra lời khuyên dành cho khách hàng trong việc lựa chọn không gian căn hộ studio đó là cất giữ đồ đạc vào các không gian tự tạo. Điển hình như dưới giường, dưới gầm tủ, ghế sofa,… Tuy nhiên, các bạn cũng không nên chất đống nhiều ở khu vực bếp đề phòng các trường hợp hỏa hoạn không may.
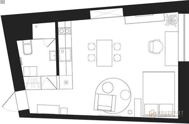
3. Khám phá thiết kế căn hộ studio 30m2
Tuy chỉ với diện tích vỏn vẹn 30m2, lại không hề dùng tường ngăn nhưng căn hộ nhỏ nhắn này lại gây “thương nhớ” đặc biệt cho người xem bởi vẻ đẹp và sự tiện nghi mà nó mang lại. Từng kkhu vực thiết kế nội thất, từng khoảng không gian phân vùng đều được tính toán kỹ lưỡng và có dụng ý rõ ràng, khiến thiết kế căn hộ studio 30m2 dù nhỏ nhưng vẫn trở thành không gian sống đáng mơ ước.


















4. Một số lưu ý khi thiết kế căn hộ studio 30m2 để “phòng nhỏ hóa rộng”

+ Nên sử dụng gam màu sáng và trung tính: Các gam màu sáng và trung tính, đặc biệt là gam màu trắng có tác dụng mở rộng không gian rất tốt. Thiết kế căn hộ studio 30m2 của bạn, nhờ đó sẽ trông có vẻ rộng hơn so với diện tích thực, góp phần tạo nên vẻ thoáng đãng cho căn hộ diện tích nhỏ.
+ Sử dụng đồ nội thất đa năng/ thông minh: Nếu lựa chọn màu giúp tăng cảm giác rộng rãi thì việc sử dụng đồ nội thất đa năng hay thông minh cho thiết kế căn hộ studio là biện pháp tiết kiệm diện tích thực sự để tăng khoảng không gian trống cho căn hộ khi không dùng đến một số đồ chức năng.
+ Hãy đưa không gian ngủ lên gác xép nếu được: Để khắc phục được việc không có không gian riêng tư cho phòng ngủ, bạn có thể đưa giường ngủ lên cao nếu có thể. Việc làm này vừa có thể tạo ra không gian ngủ riêng tư, vừa có thể tận dụng không gian bên dưới để làm các chức năng khác như tủ để đồ hoặc góc làm việc.
+ Sử dụng rèm ngăn cách cho không gian ngủ: Nếu bạn không thể đưa giường ngủ lên cao, bạn cũng có thể dùng rèm để tạo không gian riêng tư cho phòng ngủ.
+ Sử dụng gương: Hãy thiết kế căn hộ studio 30m2 thêm những chiếc gương vào các bức tường. Để nhằm tạo nên nguồn ánh sáng phản chiếu tốt khắp không gian. Và cũng từ đó giúp cho không gian căn hộ thêm rộng rãi hơn. Tuy nhiên, bạn cũng cần cân nhắc về vấn đề phong thủy trước khi chọn gương. Cần bố trí phù hợp để không vi phạm phong thủy và giúp quá trình sinh sống thuận lợi hơn.
+ Hãy treo mọi thức có thể: Với việc thiết kế căn hộ nhỏ theo phong cách studio thì không nên lãng phí tường và trần nhà. Hãy tận dụng các bức tường và treo mọi loại giá, móc treo. Vì như vậy có thể giúp lưu trữ nhiều hơn các món đồ dùng. Đối với trần nhà, bạn có thể ứng dụng để treo giá đỡ, hoặc các loại lưới chứa đồ để tăng thêm diện tích sinh hoạt.
+ Áp dụng triệt để phong cách tối giản hiện đại: Với diện tích khá nhỏ, bạn không nên thiết kế nội thất cầu kỳ. Thiết kế đó không những không đẹp, mà còn làm cho không gian trở nên rườm rà, chật chội và bí bách. Sự đơn giản và hiện đại chính là chìa khóa cho những không gian nhỏ.
Căn hộ studio ngoài việc đáp ứng vừa đủ nhu cầu về không gian cho các gia chủ trên. Lại vừa có thể đáp ứng được khả năng tài chính của họ trong thời buổi nhà đất đắt đỏ như hiện nay. Hãy liên hệ ngay với chúng tôi nếu bạn muốn sở hữu một thiết kế căn hộ studio 30m2 hiện đại và tinh tế nhé!