Siêu phẩm nhà cấp 4 mái thái có 4 phòng ngủ 17x11m tại Hòa Bình NDNC4194
Mẫu nhà cấp 4 mái thái 4 phòng ngủ 17x11m mang phong cách hiện đại kết hợp sân vườn đẹp thơ mộng được xây dựng trên mảnh đất khá vuông vắn. Để thiết kế được một ngôi nhà cấp 4 đẹp hoàn hảo như vậy, các kiến trúc sư đã phải lên ý tưởng rất tỉ mỉ và cẩn thận, chú trọng làm sao để tạo ra một khuôn viên ngập tràn không gian xanh, giúp gia đình tận hưởng cuộc sống. Gia đình chủ đầu tư có thể hòa mình vào thiên nhiên trong lành sau một ngày làm việc và học tập mệt mỏi.
Dưới đây là một vài hình ảnh phối cảnh 3D và cách bố trí công năng cùng với những thông tin hữu ích về mẫu thiết kế nhà cấp 4 mái thái đẹp của gia đình anh Thông ở tỉnh Hòa Bình. Xin mời quý vị và các bạn cùng tham khảo.
Thông tin mẫu nhà cấp 4 mái thái 4 phòng ngủ 17x11m
- Địa điểm xây dựng: Hòa Bình
- Chủ đầu tư: Anh Thông
- Kích thước nhà: 17x11m
- Diện tích nhà: 150m2
- Diện tích sảnh chính: 11,6m2
- Diện tích sảnh phụ: 5,51m2
- Diện tích diềm mái: 60m2
- Tổng diện tích mái bê tông: 150 + 11,6 + 60 = 221,6m2
- Tổng giá trị xây dựng nhà theo m2 mái bê tông: 221,6 × 5.500.000 = 1.218.800.000 đồng
- Diện tích mái ngói: 150 × 1,6 = 240m2
- Giá trị xây dựng mái ngói: 240 × 750.000 = 180.000.000 đồng
- Tổng giá trị hoàn thành: 1.218.800.000 + 180.000.000 = 1.398.800.000 VNĐ
Hình ảnh 3D mẫu nhà cấp 4 mái thái kiến trúc hiện đại

Nhìn từ xa mẫu nhà cấp 4 17x11m dường như các khối, đường nét kiến trúc có sức hút rất lớn tác động vào thị giác khiến người xem không thể rời mắt. Ngôi nhà được thiết kế và xây dựng theo một tỷ lệ khá cân đối với hình hộp chữ nhật luôn mang lại cảm giác chắc chắn và khỏe khoắn. Những đường kẻ ngang cùng với những đường gờ phào chỉ đơn giản trang trí ở chân móng, ô cửa giúp không gian ngoại thất nhẹ nhàng, đơn giản và tinh tế hơn.

Mẫu nhà cấp 4 hiện đại mái thái 4 phòng ngủ 17x11m với gam màu trắng trang nhã, thanh lịch làm chủ đạo. Nổi bật trên gam màu trắng là những gam màu tương phản cổ điển mà hiện đại, tươi mới. Đó là màu đen của hệ thống cửa, màu xanh than của hệ mái và màu xám của đá ốp giúp tạo nên một không gian ngoại thất sang trọng, đẳng cấp và ấn tượng cho người nhìn. Thêm vào đó, màu xanh của cây cảnh, hoa lá đã tô điểm cho mẫu nhà cấp 4 đẹp thêm phần tươi trẻ, trẻ trung, năng động và tràn đầy nguồn năng lượng tươi mới đáng quý.

Khi nhìn vào phối cảnh mẫu nhà cấp 4 3 phòng ngủ diện tích 17x11m này nổi bật nhất chính là hệ thống cửa. 100% hệ thống cửa được làm bằng khung nhôm kính xingfa cao cấp giúp không gian bên trong luôn sáng, thoáng và tràn đầy sức sống. Bên cạnh đó, nhờ hệ thống cửa kính, ngôi nhà như hòa vào với sân vườn xanh mát và cảnh quan thiên nhiên bên ngoài, mang đến nguồn sinh khí trong ngõ có lợi cho sức khỏe của gia đình chủ đầu tư. .

Phần chân tường mẫu nhà cấp 4 4 phòng ngủ 17x11m được ốp hoàn toàn bằng đá cao cấp rất tỉ mỉ và cẩn thận. Việc sử dụng đá ốp không chỉ có tác dụng trang trí, tôn thêm vẻ đẹp cho không gian ngoại thất mà nó còn có tác dụng che nắng, bảo vệ chân tường không bị bám bẩn, không mọc rêu, nứt nẻ cũng như tránh được những tác động của mối, kiến, sâu đục.

Hệ thống mái thái được sử dụng cho mẫu nhà cấp 4 đẹp 1 phòng ngủ này không chỉ bởi vẻ đẹp độc đáo, hài hòa mà còn bởi nó có nhiều ưu điểm vượt trội mà nhiều kiểu mái khác không có được. Do mái thái có độ dốc lớn nên có khả năng thoát nước mưa nhanh chóng, chống thấm, chống dột, điều hòa rất tốt. Mặt khác, về mặt phong thủy, mái thái giúp tích tụ vượng khí, xua đuổi tà khí hiệu quả, mang lại cuộc sống bình an cho gia đình chủ đầu tư.

Với phần diện tích còn lại, kiến trúc sư đã thiết kế thêm một khoảng sân vườn rộng rãi để trồng cây xanh và tiểu cảnh, thỏa mãn thú vui tao nhã cũng như đam mê của chủ đầu tư là kiến tạo không gian sống. hài hòa, gần gũi với thiên nhiên. Với khoảng sân rộng được lát toàn bộ bằng gạch trống cao cấp để gia đình chủ đầu tư có thể vui chơi, giải trí, thể dục thể thao vào các buổi sáng và có thể để xe. Xung quanh được bố trí thêm cây xanh, hoa lá, bóng mát… tất cả chỉ với mục đích nhỏ là mang đến sự trong lành, thoải mái cho các thành viên để họ có thể tận hưởng những giây phút thư giãn yên bình nhất.

Nhìn chung, với cách xử lý khéo léo, các đường nét góc cạnh khỏe khoắn, tự do, mẫu nhà cấp 4 mái thái có 4 phòng ngủ 17x11m đẹp với sự lồng ghép các không gian xanh cũng như sử dụng các vật liệu hiện đại, cao cấp. Việc dễ dàng thi công khiến kiến trúc công trình trở nên thanh thoát, trẻ trung và năng động.
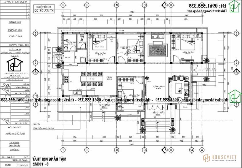
Mặt bằng công năng của mẫu nhà cấp 4 đẹp 1 phòng ngủ

Mặt bằng công năng của mẫu nhà cấp 4 mái thái 4 phòng ngủ 17x11m được bố trí vô cùng tiện nghi và ngăn nắp. Từ sảnh chính đi vào trong là phòng khách sang trọng nối liền với phòng thờ trang nghiêm. Bên phải phòng khách là phòng bếp + ăn sạch sẽ, có cửa phụ thông ra sân nên rất thoáng mát, giúp thoát nhanh mùi thức ăn. Tiếp đến là 4 phòng ngủ được bố trí xung quanh, tích hợp nhiều ô cửa sổ thoáng mát lấy sáng rất thuận tiện cho các thành viên nghỉ ngơi, thư giãn và lấy lại sức khỏe. Cuối cùng là phòng giặt, phòng vệ sinh chung nằm gần nhau rất dễ dàng cho việc sử dụng và sinh hoạt của gia đình chủ đầu tư.
Mẫu thiết kế nhà cấp 4 mái Thái có 4 phòng ngủ 17x11m sở hữu vẻ đẹp hiện đại, tinh tế được nhiều gia đình yêu thích. Hi vọng mẫu thiết kế nhà cấp 4 đẹp này sẽ là giải pháp tuyệt vời giúp gia đình bạn hoàn thiện những ý tưởng mới cho ngôi nhà trong thời gian tới.
- Mẫu nhà cấp 4 mái thái ấn tượng 4 phòng ngủ 1 phòng thờ 17x10m ở Lai Châu NDNC4195