Tham khảo bản vẽ thiết kế biệt thự hiện đại đẹp khó bỏ qua
Xây nhà được coi là việc trọng đại của đời người. Đây là lý do tại sao những Bản vẽ thiết kế biệt thự Tính hiện đại là điều cần thiết. Nó giúp chủ nhân có thể hình dung tổng thể về dự án. Một bản vẽ sẽ bao gồm 3 phần chính: phần kiến trúc, phần kết cấu và phần điện nước.
Bản Vẽ Thiết Kế Biệt Thự là gì?
Bạn có thể hiểu một bản vẽ thiết kế nhà là một bộ hồ sơ hoàn công. Nó là yếu tố đầu tiên để xây dựng nên một ngôi nhà kiên cố, có giá trị thẩm mỹ. Bản vẽ thiết kế nhà là một trong những công việc quan trọng trước khi tiến hành khởi công xây dựng.

có một bản vẽ Thiết kế biệt thự chi tiết để đảm bảo công việc của bạn chắc chắn và an toàn. Bản vẽ này có thể hiểu là một hồ sơ hoàn chỉnh về công trình từ hình dáng, kích thước, cấu tạo và các chi tiết của từng yếu tố.
Tại sao phải lập bản vẽ trước khi xây biệt thự?
Xây nhà được coi là công việc hệ trọng của mỗi con người. Với sự phát triển của xã hội ngày nay, nhu cầu sở hữu một ngôi nhà khang trang với đầy đủ nội thất tiện nghi đã trở thành yêu cầu thiết yếu của mỗi gia chủ.

Bản vẽ thiết kế biệt thự Nó sẽ chỉ ra cách tính toán các kết cấu khác nhau cho phù hợp, do đó đảm bảo độ bền lớn nhất. Bản vẽ thiết kế còn giúp bạn nắm được cách bố trí các phòng trong ngôi nhà của mình. Giúp ước lượng khối lượng vật tư một cách chính xác giúp đảm bảo thực hiện công việc kịp thời theo kế hoạch ban đầu.
Tham khảo mẫu bản vẽ thiết kế biệt thự đẹp đang trở thành xu hướng
Bản vẽ biệt thự 2 tầng mái thái gần
Mẫu biệt thự 2 tầng mái thái được kết hợp với tiểu cảnh sân vườn rộng rãi. Mang lại cảm giác như một ngôi nhà hiện đại và gần gũi với thiên nhiên hơn. Phần lớn kiến trúc mái chủ yếu sử dụng màu nâu nhạt bóng bẩy để phù hợp với màu sơn bên ngoài.
Hầu hết các mặt tiền của mẫu nhà 2 tầng mái thái đều sử dụng sơn bóng và được trang bị hệ thống cửa kính hiện đại. Trên mỗi đoạn cột đều bố trí đèn treo để chiếu sáng cho ngôi nhà vào ban đêm. Mẫu thiết kế biệt thự 2 tầng mái thái sẽ được ưu tiên bố trí công năng khoa học, hiện đại.

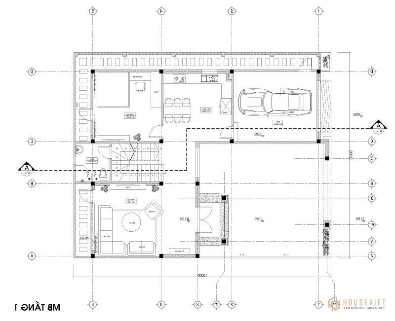
Thiết kế chủ yếu sẽ bao gồm khuôn viên tầng 1 bao gồm phòng khách, phòng bếp và khu vực nghỉ ngơi. Các mẫu thiết kế biệt thự đẹp thường có diện tích rộng nên các phòng được ngăn cách với nhau để tạo sự riêng tư trong sinh hoạt.
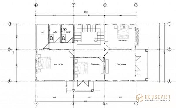
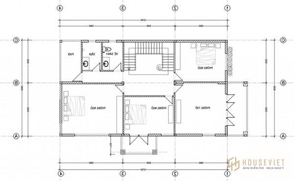
Tầng 2 gồm 3 phòng ngủ, 1 phòng thờ và khu sinh hoạt chung. Mẫu thiết kế nhà 2 tầng mái thái có phòng ngủ cạnh cửa sổ tạo không gian gần gũi với thiên nhiên nhất cho các thành viên trong gia đình.
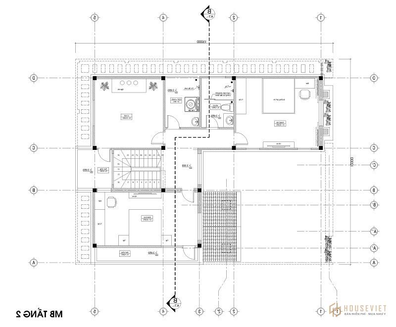
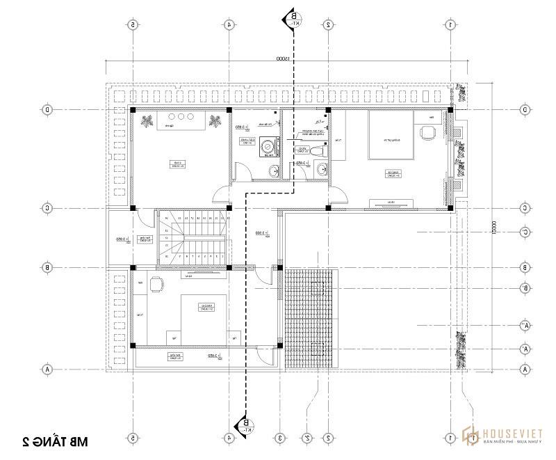
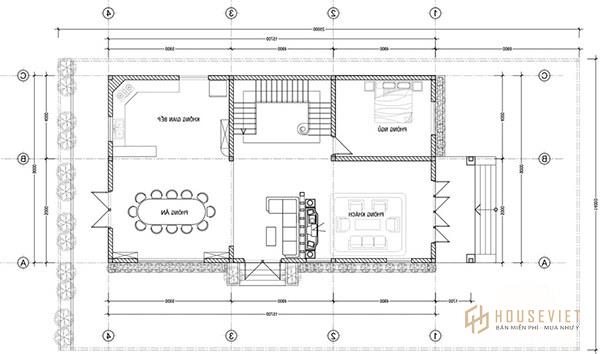
Bản vẽ mặt bằng biệt thự 2 tầng hiện đại
Kế hoạch Ngôi biệt thự 2 tầng kết hợp kiến trúc đơn giản mang đến không gian gần gũi với thiên nhiên, đề cao yếu tố hiện đại nhờ sử dụng kiến trúc mái bằng kiên cố, vững chãi. Mẫu thiết kế này ưu tiên mặt tiền rộng rãi của ngôi nhà bằng cách sử dụng cửa kính lớn mang đến sự thông thoáng và rộng mở. Sử dụng gam màu trung tính mặt tiền ngôi nhà tạo nên vẻ đẹp trang nhã, sang trọng.

Thiết kế biệt thự 2 tầng đơn giản, nghiêng về hướng thoáng với nhiều ô cửa sổ lớn giúp ngôi nhà trở thành khu nghỉ dưỡng cao cấp. Mẫu thiết kế biệt thự 2 tầng hiện đại ưu tiên bố trí khu vực lễ tân với tầm nhìn thoáng đãng, tự do. Thiết kế mặt bằng sẽ ưu tiên bố trí mặt bằng tầng 1 và tầng 2 đơn giản nhưng đáp ứng được chất lượng cuộc sống của gia đình. Ngoài ra, nhiều loài cây xanh được trồng xung quanh mặt tiền và hai bên sân mang đến không gian thoải mái, dễ chịu.


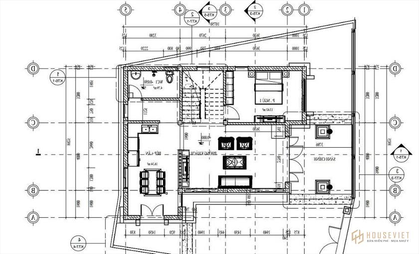
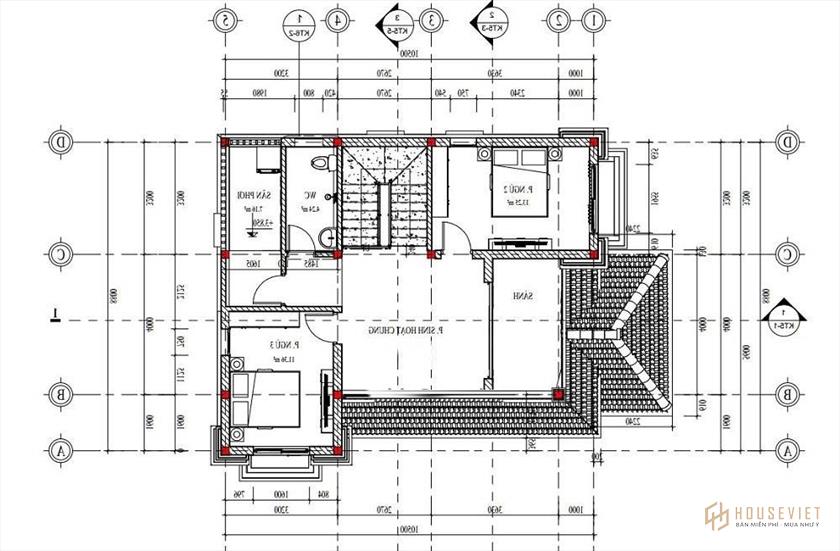
Bản vẽ thiết kế biệt thự mini 2 tầng hình vuông đặc
Mẫu biệt thự mini 2 tầng được thiết kế với kiến trúc và cảnh quan sân vườn đáp ứng đầy đủ các tiêu chí của một ngôi biệt thự sang trọng. Những mẫu nhà này chú trọng sử dụng mái Thái chất lượng cao mang đến cảm giác sang trọng, hiện đại với giá trị thẩm mỹ lớn.

Mặt tiền là sự kết hợp tinh tế của những mái vòm đặc trưng của kiến trúc tân cổ điển. Khu vực ban công được lắp những lan can uốn lượn, uyển chuyển tạo sức hút cho không gian sống. Phương án của ngôi biệt thự 2 tầng đơn giản nhưng vẫn đầy đủ tiện nghi.
Với thiết kế tủ bếp hình chữ L trong phòng bếp giúp tiết kiệm tối đa diện tích mà vẫn đảm bảo sinh hoạt thoải mái. Khu vực tầng 2 sẽ được bố trí hệ thống phòng ngủ, phòng thờ và khu sinh hoạt chung. Phòng tiếp khách được phân bổ hợp lý nhằm mang đến sự thuận tiện nhất cho các thành viên trong gia đình.


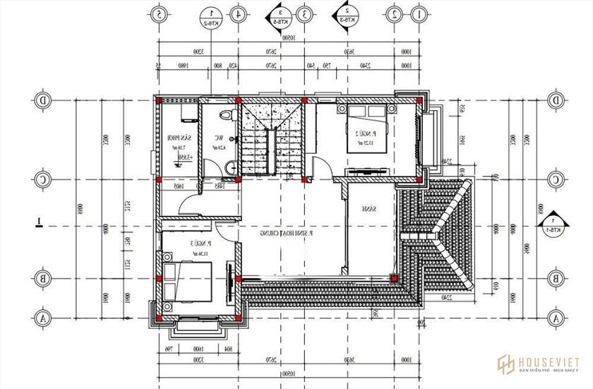
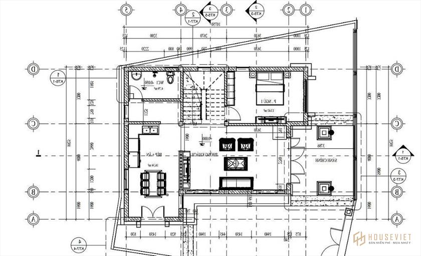
Thiết kế biệt thự tân cổ điển 2 tầng 3 phòng
Ngôi biệt thự phong cách tân cổ điển gây ấn tượng với người nhìn bởi mặt tiền kiên cố. Hầu hết các thiết kế này đều là sự kết hợp hài hòa với gam màu trắng chủ đạo, toát lên vẻ sang trọng và tinh tế. Điểm nhấn là kiến trúc mái thái với khối mái chữ A và khối mái hình thang được thiết kế đối xứng mang đến cho công trình vẻ bề thế, vững chãi.

Mẫu biệt thự tân cổ điển được gia công tỉ mỉ từng chi tiết, đặc biệt tinh tế, sang trọng và đẹp mắt. Từ hệ thống tường bao, mái thái ngoại thất, khối ban công cho đến mái thái giật cấp, mọi thứ đều toát lên vẻ sang trọng và bền đẹp của công trình.


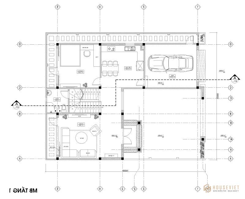
Bản vẽ thiết kế biệt thự 2 tầng hình chữ L 100m2 phong cách hiện đại
Mẫu thiết kế biệt thự 2 tầng này có thể đáp ứng được không gian sống của một gia đình 3 thế hệ. Thiết kế đề cao sự tiện nghi với không gian sống hiện đại, tối giản các đường nét bên ngoài. Ưu tiên môi trường sống xanh, gần gũi với thiên nhiên.

Tuy nhiên, bạn cũng cần chú ý đến yếu tố phong thủy để phù hợp với gia chủ. Các kiến trúc sư đã bố trí cửa chính của bản vẽ mặt bằng biệt thự hiện đại này ở góc chữ L của lô đất. Phương án này cho phép tăng thêm không gian sống, tăng vượng khí cho ngôi nhà.


Nếu bạn đang tìm kiếm chính mình Bản vẽ thiết kế biệt thự phù hợp với sở thích cá nhân mà vẫn đảm bảo sang trọng phù hợp với yếu tố phong thủy. xin vui lòng liên hệ CHÚNG TÔI LÀM Theo hotline 0938896767 - 02438168888. Đội ngũ kiến trúc sư của chúng tôi sẽ đồng hành cùng bạn để sở hữu ngôi nhà phù hợp và tiện nghi nhất cho gia đình bạn.